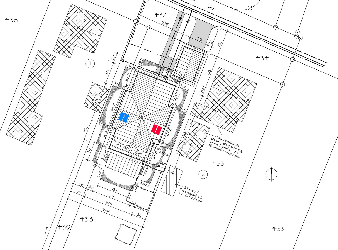
Hallo, wir müssen uns entscheiden, wohin die Solarthermie-Paneele auf unser Dach sollen.. Es gibt 2 Optionen... auf die Süd-Ost-Seite (rot) oder die Süd-West-Seite (blau). Das Haus liegt um 23 Grad gedreht zur Nord-Süd-Achse auf dem Grundstück. Das Dach hat die Form eines Kreuzdaches. Alle Dächer haben eine Neigung von 25 Grad. Wer hat Erfahrungen, wer kann helfen? LG Steffi

Ich merke gerade, dass ich einen Denkfehler habe... die Paneele sind ja jeweils nach Süden (mit 23 Grad Drehung Richtung West) ausgerichtet... wäre also eher die Frage, ob der Südgiebel eine längere Verschattung auf die rechte (rote) oder linke (blaue) Seite wirft (oder überhaupt)?
Hallo Steffi,
auch wenn es wohl schon zu spät ist:
Ich hätte an Deiner Stelle noch Euer Nutzungsverhalten mit einbezogen.
D.h. Wenn Ihr eher am Abend duscht und badet braucht Ihr DANN das warme Wasser. Somit wäre eine Aufheizung am Abend sinnvoll.
Duscht / badet Ihr eher am Vormittag, sollte die Thermie besser auch Vormittags unter Last sein. Allerdings - wenn Ihr sehr früh am Morgen duscht (w. der Arbeit), macht dies wenig Sinn, da hier ggf. die Sonne noch nicht hoch genug steht.
auch wenn es wohl schon zu spät ist:
Ich hätte an Deiner Stelle noch Euer Nutzungsverhalten mit einbezogen.
D.h. Wenn Ihr eher am Abend duscht und badet braucht Ihr DANN das warme Wasser. Somit wäre eine Aufheizung am Abend sinnvoll.
Duscht / badet Ihr eher am Vormittag, sollte die Thermie besser auch Vormittags unter Last sein. Allerdings - wenn Ihr sehr früh am Morgen duscht (w. der Arbeit), macht dies wenig Sinn, da hier ggf. die Sonne noch nicht hoch genug steht.
Ähnliche Themen