Hallo an die Forumsgemeinschaft!
Seit über einem Jahr (seit dem ich mich mit dem Thema Hausbau beschäftige) verfolge ich fleißig dieses Forum, dem ich schon viele wertvolle Informationen entnehmen konnte.
Nun sind unsere Hausbaupläne so weit gereift, dass ich sie Euch gerne präsentieren möchte.
In Grundsätzen steht die Planung. Allerdings hat sich gerade eine gewisse Projektblindheit eingeschlichen, sodass die Planung gerade etwas stockt. Hier brauche ich Eure Kritik und Ideen!
Wir wollen an das Haus der Schwiegereltern anbauen. Aus Planungstechnischen Gründen soll der Neubau eine Erweiterung des Bestandshauses zu einem Mehrgenerationenhaus sein. Sollte dies vom Bauamt nicht genehmigt werden, werden wir das Grundstück an der Bestandsgarage teilen und Baulasten eintragen.
Die Idee ist, ein Schlafhaus in Massivbauweise zu errichten, an welches sich eine Art Wohnscheune in Ständerbauweise anschließt. Wir möchten eine Abgrenzung der Bereiche Kinder/ Eltern/ Wohnen, einen Innenhof hinterm Haus und stilmäßig in die Richtung einer kleinen Hofanlage - damit passen wir uns an die Umgebung an 🙂
Bebauungsplan/Einschränkungen: nein
Größe des Grundstücks: ca. 900qm (insgesamt ca. 2300qm)
Hang: nein
Baufenster, Baulinie und -grenze: NO: Straße; SO: Bestandshaus mit Garage; SW: Wiesen; NW: Feldweg
Anzahl Stellplatz: 2
Geschossigkeit: 2/ 1
Dachform: Satteldach/ Pultdach
Stilrichtung: Bauernhaus - Schlafhaus mit Wohnscheune
Ausrichtung: Südwest
Anforderungen der Bauherren
Stilrichtung, Dachform, Gebäudetyp: Bauernhaus, Satteldach/ Pultdach
Keller, Geschosse: Nein, 2 /1 (ca. 210 qm + Dachboden)
Anzahl der Personen, Alter: 2 + 2 Kinder + 1 in Planung
Büro: Familiennutzung und Homeoffice (sehr geringer Platzbedarf)
Schlafgäste pro Jahr: ca.10 Mal 4 Personen
offene oder geschlossene Architektur: Schlafbereich geschlossen; Wohnbereich offen + hell
offene Küche, Kochinsel: ja kann
Anzahl Essplätze: 6-8
Kamin: Ja
Carport: ja
Hausentwurf
Von wem stammt die Planung: Architekt
Was gefällt: Anordnung Wohnen, Eltern, Kinder.
Was gefällt nicht?
- Carport verdunkelt Bad
- Eingang Elternbad
- Aufteilung Wohnscheune: Wohin mit dem Kamin? Wie die Küche planen? Küche und Esszimmer sollen eine Einheit sein. Wohnzimmer abgetrennt (durch Kamin, Fachwerkwand?))
Preisschätzung lt Architekt/Planer: 370000 (eigene Preisschätzung: minimum 400000 - ohne Außenanlagen)
favorisierte Heiztechnik: Solewärmepumpe/ Gas???
Wenn Ihr verzichten müsst, auf welche Details/Ausbauten
-könnt Ihr verzichten: Es könnte auch kleiner sein.
-könnt Ihr nicht verzichten: Große Fenster im Wohnbereich
Und nun freue ich mich auf Eure Meinung und Ideen!
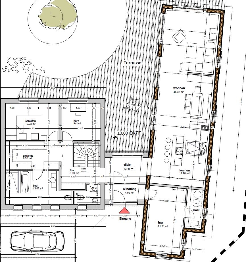
(Bei den Grundrissen ist Norden im Plan unten rechts)
Seit über einem Jahr (seit dem ich mich mit dem Thema Hausbau beschäftige) verfolge ich fleißig dieses Forum, dem ich schon viele wertvolle Informationen entnehmen konnte.
Nun sind unsere Hausbaupläne so weit gereift, dass ich sie Euch gerne präsentieren möchte.
In Grundsätzen steht die Planung. Allerdings hat sich gerade eine gewisse Projektblindheit eingeschlichen, sodass die Planung gerade etwas stockt. Hier brauche ich Eure Kritik und Ideen!
Wir wollen an das Haus der Schwiegereltern anbauen. Aus Planungstechnischen Gründen soll der Neubau eine Erweiterung des Bestandshauses zu einem Mehrgenerationenhaus sein. Sollte dies vom Bauamt nicht genehmigt werden, werden wir das Grundstück an der Bestandsgarage teilen und Baulasten eintragen.
Die Idee ist, ein Schlafhaus in Massivbauweise zu errichten, an welches sich eine Art Wohnscheune in Ständerbauweise anschließt. Wir möchten eine Abgrenzung der Bereiche Kinder/ Eltern/ Wohnen, einen Innenhof hinterm Haus und stilmäßig in die Richtung einer kleinen Hofanlage - damit passen wir uns an die Umgebung an 🙂
Bebauungsplan/Einschränkungen: nein
Größe des Grundstücks: ca. 900qm (insgesamt ca. 2300qm)
Hang: nein
Baufenster, Baulinie und -grenze: NO: Straße; SO: Bestandshaus mit Garage; SW: Wiesen; NW: Feldweg
Anzahl Stellplatz: 2
Geschossigkeit: 2/ 1
Dachform: Satteldach/ Pultdach
Stilrichtung: Bauernhaus - Schlafhaus mit Wohnscheune
Ausrichtung: Südwest
Anforderungen der Bauherren
Stilrichtung, Dachform, Gebäudetyp: Bauernhaus, Satteldach/ Pultdach
Keller, Geschosse: Nein, 2 /1 (ca. 210 qm + Dachboden)
Anzahl der Personen, Alter: 2 + 2 Kinder + 1 in Planung
Büro: Familiennutzung und Homeoffice (sehr geringer Platzbedarf)
Schlafgäste pro Jahr: ca.10 Mal 4 Personen
offene oder geschlossene Architektur: Schlafbereich geschlossen; Wohnbereich offen + hell
offene Küche, Kochinsel: ja kann
Anzahl Essplätze: 6-8
Kamin: Ja
Carport: ja
Hausentwurf
Von wem stammt die Planung: Architekt
Was gefällt: Anordnung Wohnen, Eltern, Kinder.
Was gefällt nicht?
- Carport verdunkelt Bad
- Eingang Elternbad
- Aufteilung Wohnscheune: Wohin mit dem Kamin? Wie die Küche planen? Küche und Esszimmer sollen eine Einheit sein. Wohnzimmer abgetrennt (durch Kamin, Fachwerkwand?))
Preisschätzung lt Architekt/Planer: 370000 (eigene Preisschätzung: minimum 400000 - ohne Außenanlagen)
favorisierte Heiztechnik: Solewärmepumpe/ Gas???
Wenn Ihr verzichten müsst, auf welche Details/Ausbauten
-könnt Ihr verzichten: Es könnte auch kleiner sein.
-könnt Ihr nicht verzichten: Große Fenster im Wohnbereich
Und nun freue ich mich auf Eure Meinung und Ideen!
(Bei den Grundrissen ist Norden im Plan unten rechts)
G
grinchmaster25.10.15 08:46Vielen Dank für Eure Antworten!
Tatsächlich sind Ansicht Ost und West vertauscht.
Die Fenster sind ein Punkt mit dem ich mich gerade beschäftige. Hier tendiere ich derzeit zu zweiflügeligen Fenstern mit Oberlicht, ohne Sprossen. Des Weiteren sollten die bodentiefen Fenster zur Terrasse höher werden.
Beim Eingang zum Elternbad stört mich die S-Kurve, die man laufen muss.
Die Möblierung ist angelehnt, entspricht aber nicht 1:1 unseren Möbeln.
Hinsichtlich des Ofens stelle ich mir eine verputzte Variante vor. Zwischen den Fenstern wäre zu wenig Platz. Oben Links wäre eine Alternative. Am derzeitigen Standort ist die Ofenbank an den esstisch angegliedert. Wäre das praktikabel, oder würde man am Esstisch verglühen? Der Ofen war bisher als Abgrenzung zum Wohnzimmer gedacht (wo jetzt die Trockenbauwand ist).
Der weite Weg zum WC war auch schon Thema. Wir sind zum gleichen Ergebnis gekommen, wie kbt09. Es ist kein Haus der kurzen Wege -)
Hat noch jemand eine Idee zur Küchengestaltung? Derzeit kann man vom Wohn-, Esszimmer voll in die Küche und auf die Abstellflächen gucken. Das möchte ich vermeiden.
Tatsächlich sind Ansicht Ost und West vertauscht.
Die Fenster sind ein Punkt mit dem ich mich gerade beschäftige. Hier tendiere ich derzeit zu zweiflügeligen Fenstern mit Oberlicht, ohne Sprossen. Des Weiteren sollten die bodentiefen Fenster zur Terrasse höher werden.
Beim Eingang zum Elternbad stört mich die S-Kurve, die man laufen muss.
Die Möblierung ist angelehnt, entspricht aber nicht 1:1 unseren Möbeln.
Hinsichtlich des Ofens stelle ich mir eine verputzte Variante vor. Zwischen den Fenstern wäre zu wenig Platz. Oben Links wäre eine Alternative. Am derzeitigen Standort ist die Ofenbank an den esstisch angegliedert. Wäre das praktikabel, oder würde man am Esstisch verglühen? Der Ofen war bisher als Abgrenzung zum Wohnzimmer gedacht (wo jetzt die Trockenbauwand ist).
Der weite Weg zum WC war auch schon Thema. Wir sind zum gleichen Ergebnis gekommen, wie kbt09. Es ist kein Haus der kurzen Wege -)
Hat noch jemand eine Idee zur Küchengestaltung? Derzeit kann man vom Wohn-, Esszimmer voll in die Küche und auf die Abstellflächen gucken. Das möchte ich vermeiden.
B
Bauexperte25.10.15 09:13Guten Morgen,
Grüße, Bauexperte
grinchmaster schrieb:Weshalb der Wunsch nach unterschiedlichen Baumaterialien und was soll er bezwecken?
Die Idee ist, ein Schlafhaus in Massivbauweise zu errichten, an welches sich eine Art Wohnscheune in Ständerbauweise anschließt.
grinchmaster schrieb:Ich würde auf TEUR 370 *nur* für den Hausbau als Putzbau, ohne Malerarbeiten, Bodenbeläge, Garage, Außenanlagen und Extra´s tippen. Im Schätzpreis ist auch keine Solewasserwärmepumpe enthalten, dafür eine Luft-Wasser-Wärmepumpe. Dein "Minimum" kommt imho nur hin, wenn Du über genügend Reserven darüber hinaus in der Hinterhand verfügst 😉
Preisschätzung lt Architekt/Planer: 370000 (eigene Preisschätzung: minimum 400000 - ohne Außenanlagen)
Grüße, Bauexperte
G
grinchmaster25.10.15 09:25Der Mix der Baumaterialien ist daraus entstanden, das in der Scheune Eichenbalken aus einem Fachwerkhaus verbaut werden sollen. Nach Aussage des Architekten sei die Scheune als Holzständerwerk im Verhältnis günstiger als in Massivbauweise, wenn sowieso eine Holzkonstruktion verbaut wird. Habe ich ehrlich gesagt auch nie hinterfragt.
Was ist Deiner Erfahrung nach ein realistischer Preis für das Projekt?
Was ist Deiner Erfahrung nach ein realistischer Preis für das Projekt?
Aus dem Essbereich wirst du es nie ganz vermeiden können, es sei denn du ziehst überall noch Zwischenwände ein. Das widerspricht aber irgendwie dem offenen Konzept.
Wg. Kamin ... ich habe mal dein PDF als JPG gespeichert, dann kann man direkter die Sachen sehen:

Aktuell sehe ich den Kaminschacht im Grunde zwischen Küche und Essen .. oder?
Da halte ich ihn für tatsächlich "Popoglühend"
Im Wohnbereich ist doch planoben links eher noch weniger Platz als zwischen den Fenstern. Die Fenster kannst du ja auch noch etwas schieben.
Ideal fände ich den Ofen eher so zwischen Wohnen/Essen, aber nicht zu nah am Sitzplatz .. wobei natürlich die Frage ist, welche Art Ofen man sich da vorstellen muss. Kannst du Beispiele benennen, möglichst so, dass man sie mit den Begriffen schnell bei Google findet? (denn direkte Links sind hier nicht erlaubt).
Wg. Kamin ... ich habe mal dein PDF als JPG gespeichert, dann kann man direkter die Sachen sehen:
Aktuell sehe ich den Kaminschacht im Grunde zwischen Küche und Essen .. oder?
Da halte ich ihn für tatsächlich "Popoglühend"
Im Wohnbereich ist doch planoben links eher noch weniger Platz als zwischen den Fenstern. Die Fenster kannst du ja auch noch etwas schieben.
Ideal fände ich den Ofen eher so zwischen Wohnen/Essen, aber nicht zu nah am Sitzplatz .. wobei natürlich die Frage ist, welche Art Ofen man sich da vorstellen muss. Kannst du Beispiele benennen, möglichst so, dass man sie mit den Begriffen schnell bei Google findet? (denn direkte Links sind hier nicht erlaubt).
Ähnliche Themen