Kostenschätzung Einfamilienhaus 145qm mit Keller

4,30 Stern(e) 3 Votes
Zuletzt aktualisiert 23.12.2025
Sie befinden sich auf der Seite 3 der Diskussion zum Thema: Kostenschätzung Einfamilienhaus 145qm mit Keller
>> Zum 1. Beitrag <<

C

chris87

Wenn ich im EG zur Haustür reingehe, stehe ich ja im Flur der WE1. WE1 und WE2 müssen ja getrennt sein. Daher würde es nur mit Außentreppe funktionieren. Allein 12,5 % der Wohnfläche als Fensterfleche ist im Keller schon sehr aufwändig.

Kommt für uns nicht in Frage, da wir keine anderen Leute im Haus haben wollen. Das ist ja mit der Grund warum wir überhaupt bauen. Wenn wir alt sind, würde eher noch eine Außentreppe zum DG in Frage kommen, so dass wir im EG wohnen.
 
C

chris87

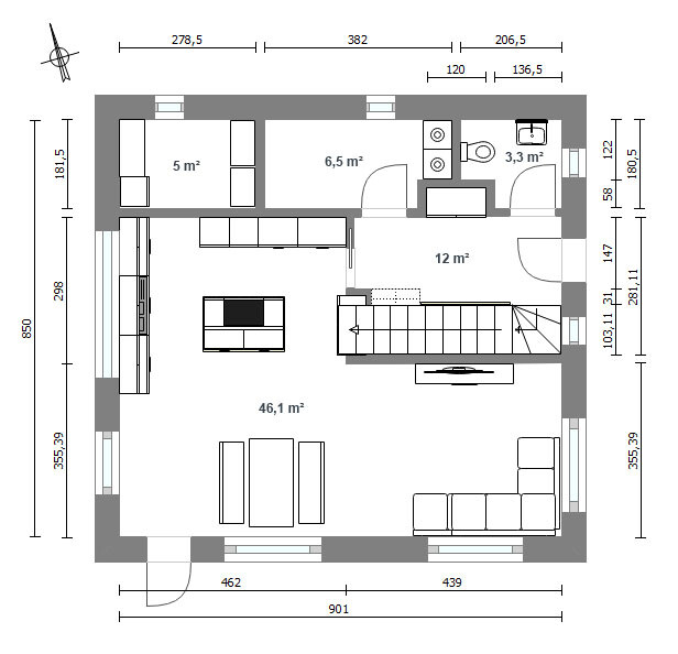
Ich bin jetzt doch nochmal auf eine ältere Idee zurück. Dadurch wird nur das Elternschlafzimmer/Bad etwas schlauchförmig. Vorteil ist aber jetzt ein aufgeräumter Flur, Haustür im Osten und der Kellerabgang ist jetzt nicht verwinkelt im Hauswirtschaftsraum. Küche und Wohnzimmer haben auch ein paar cm gewonnen. Ein Kinderzimmer ist jetzt 2 m² kleiner als das andere.

2D-Grundriss eines Hauses mit Wohnzimmer, Küche, Bad, Treppe und Maßangaben


2D-Grundriss eines Hauses mit Schlafzimmer, Bad, Küche, Wohnzimmer und Flur
 
Y

ypg

Zum einen finde ich 3,50 für die Sitzecke recht sportlich zum TV schauen, zum anderen die Relation vom Elternbereich zum 12qm Kinderzimmer unverhältnismäßig
 
C

chris87

hey, ich bin auch in 12m² glücklich groß geworden :D (bei einem 280qm Elternhaus :p)
Ne, das gefällt mir auch nicht so.. bekomm es aber gerade nicht besser hin.

Mein jetziges Wohnzimmer hat 3,44 Meter, fand das eigentlich gut. Da muss ich wohl noch in einige Musterhäuser. Was wäre "normal"? 4 Meter?
 
Zuletzt aktualisiert 23.12.2025
Im Forum Bauplanung gibt es 5078 Themen mit insgesamt 100874 Beiträgen


Ähnliche Themen zu Kostenschätzung Einfamilienhaus 145qm mit Keller
Nr.ErgebnisBeiträge
1Hauseingang mit Flur oder ohne - Seite 215
2Standort Küche und Wohnzimmer - Seite 355
3Schallschutz Kinderzimmer 12
4Entwurf Einfamilienhaus mit 3 Kinderzimmer, Keller und Grenzbebauung - Seite 232
5Grundriss Einfamilienhaus, ca. 200qm ohne Keller - Einschätzung - Seite 6172
6Haustür mit satiniertem Glas 20
7Planung Einbaustrahler Flur und Garderobe - Tipps 62
8Haustür mit oder ohne seitlichem Licht 42
9Wohnzimmer Grundrissplanungs-Ideen? - Seite 239
10Treppe im Flur, Grundriss steht eigentlich schon :o( - Seite 320
11Doppelflügeltür / Pendeltür zum Wohnzimmer 13
12Wohnzimmer: Wie Sofa, TV und Schränke stellen? - Seite 432
13Grundriss für 150qm Einfamilienhaus mit Wohnzimmer nach Norden - Seite 321
143. Zimmer im 40qm Wohnzimmer unterkriegen. Ideen 74
15Treppe im Wohnzimmer als Hype - Pro & Contra? - Seite 426
16Einfamilienhaus ~190qm, drei Kinderzimmer, ohne Keller - Feedback wäre mega - Seite 219
17Parkett von Flur in Zimmer durchlegen - Seite 217
18Flur-Grundriss vergrößern REH von 1921: Tipps? 27
19Kinderzimmer in Dachgeschoss zu klein geplant? - Seite 633
20Grundriss-Aufteilung OG - Elternbereich / 2 Kinderzimmer mit Bad 26

Oben