ᐅ Kosten für Sanierung und Aufstockung eines Einfamilienhaus aus den 70ern
Erstellt am: 26.04.23 21:04
A
Aufstockung 24A
Aufstockung 2426.04.23 21:04Hallo miteinander,
wir möchten einem Bungalow Bj. 1971 mit nicht ausgebautem Dachboden sanieren und im besten Falle aufstocken lassen und hoffen auf euer Schwarmwissen welche Kosten ganz ungefähr auf uns zukommen werden.
Der Bungalow hat die Maße 10x12m und ist voll unterkellert. Der Keller ist auch trocken und teilweise als Gästezimmer und Partyzimmer genutzt worden.
Aktuell ist eine Ölheizung vom selben Baujahr verbaut. Diese soll gegen Wärmepumpe ausgetauscht werden. Hierfür würden wir gerne auf Fußbodenheizung umrüsten. Also entweder Estrich raus und neu aufbauen oder Nachrüsten mit Trockenestrich und Ändern der Türenhöhen. Laut Unterlagen sollte das EG 2,70m Hoch sein. Zum Prüfen müssen wir allerdings erst noch die Holzdecke entfernen.
Die alten Holzfenster sollen gegen Kunststofffenster getauscht werden und ggfs. 1-2 Fenster hinzu kommen.
Im EG sollen teilweise Wände versetzt werden, sodass ein offener Wohn/Essbereich entsteht. Gerne mit angrenzender Speise- und Abstellkammer. Im EG soll ebenfalls noch ein Gäste-WC mit Dusche und ein Büro sein.
Die Elektrik und Wasserrohre müssten erneuert werden.
Der aktuell offene Treppenabgang zum Keller soll geschlossen werden.
Wunsch wäre den Bungalow in Holzrahmen-Bauweise mit Kniestock 1,00-1,40m aufzustocken. Oben sollen drei Schlafzimmer, eines davon mit Ankleide, ein Bad und ein Waschraum/Hauswirtschaftsraum Platz finden.
Zusätzlich soll das Haus gedämmt und mit einer Kontrollierte-Wohnraumlüftung ausgestattet werden. Ob dezentral oder zentral ist uns nicht wichtig, da wir von Freunden beide Varianten kennen und sie für uns in Ordnung gehen.
Als Eigenleistung wäre Estrich, Holzdecken und Türen entfernen, Wasserrohre erneuern(Unterstützung aus Familie und auch schon selbst gemacht),
Trockenbau bepflanken, Fußböden legen und Türen setzen denkbar. Streichen natürlich auch
Wünschenswert wäre auch eine Photovoltaik.
Aktuell wäre aufgrund des günstigen Kredits ein KFW85EE wünschenswert. Je höher umso schöner natürlich
Vorab vielen Dank


wir möchten einem Bungalow Bj. 1971 mit nicht ausgebautem Dachboden sanieren und im besten Falle aufstocken lassen und hoffen auf euer Schwarmwissen welche Kosten ganz ungefähr auf uns zukommen werden.
Der Bungalow hat die Maße 10x12m und ist voll unterkellert. Der Keller ist auch trocken und teilweise als Gästezimmer und Partyzimmer genutzt worden.
Aktuell ist eine Ölheizung vom selben Baujahr verbaut. Diese soll gegen Wärmepumpe ausgetauscht werden. Hierfür würden wir gerne auf Fußbodenheizung umrüsten. Also entweder Estrich raus und neu aufbauen oder Nachrüsten mit Trockenestrich und Ändern der Türenhöhen. Laut Unterlagen sollte das EG 2,70m Hoch sein. Zum Prüfen müssen wir allerdings erst noch die Holzdecke entfernen.
Die alten Holzfenster sollen gegen Kunststofffenster getauscht werden und ggfs. 1-2 Fenster hinzu kommen.
Im EG sollen teilweise Wände versetzt werden, sodass ein offener Wohn/Essbereich entsteht. Gerne mit angrenzender Speise- und Abstellkammer. Im EG soll ebenfalls noch ein Gäste-WC mit Dusche und ein Büro sein.
Die Elektrik und Wasserrohre müssten erneuert werden.
Der aktuell offene Treppenabgang zum Keller soll geschlossen werden.
Wunsch wäre den Bungalow in Holzrahmen-Bauweise mit Kniestock 1,00-1,40m aufzustocken. Oben sollen drei Schlafzimmer, eines davon mit Ankleide, ein Bad und ein Waschraum/Hauswirtschaftsraum Platz finden.
Zusätzlich soll das Haus gedämmt und mit einer Kontrollierte-Wohnraumlüftung ausgestattet werden. Ob dezentral oder zentral ist uns nicht wichtig, da wir von Freunden beide Varianten kennen und sie für uns in Ordnung gehen.
Als Eigenleistung wäre Estrich, Holzdecken und Türen entfernen, Wasserrohre erneuern(Unterstützung aus Familie und auch schon selbst gemacht),
Trockenbau bepflanken, Fußböden legen und Türen setzen denkbar. Streichen natürlich auch
Wünschenswert wäre auch eine Photovoltaik.
Aktuell wäre aufgrund des günstigen Kredits ein KFW85EE wünschenswert. Je höher umso schöner natürlich
Vorab vielen Dank
Aufstockung 24 schrieb:
Vorab vielen DankWie ist denn Deine Frage?Warst Du schon beim Statiker wegen der Tragfähigkeit?
Ward Ihr schon beim Bauamt wegen der Genehmigungsfrage?
Was sagt denn der Fachmann zu den Kosten des Potpourri an Wünschen? Das klingt ja schon fast nahe an Neubaukosten (minus Bodenplatte und Grundmauern)
ypg schrieb:
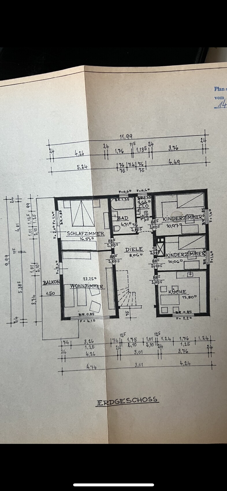
Das klingt ja schon fast nahe an Neubaukosten (minus Bodenplatte und Grundmauern)Das habe ich auch gedacht.Mir fehlt Lageplan, Nordpfeil und eine Schnittzeichnung. Ich kann mir 270 cm lichte Raumhöhe aktuell fast gar nicht vorstellen.
A
Aufstockung 2427.04.23 13:22Anfragen für Statiker und Architekt laufen. Ich wollte nur mal vorab eine ganz grobe Kostenschätzung haben.
Bspw Wärmepumpe 30k, Fußbodenheizung 20k, Innenausbau OG 30k, Elektrik…usw. Mir fehlen da die Erfahrungswerte. Diese hoffe ich hier zu finden
Bauamt sagt §34. Die umgebenden Häuser sind nahezu alle höher als unser Vorhaben.
Ein Zimmermann sagt, dass die Aufstockung ganz grob zwischen 100-150k liegen wird. Je nach Kniestock oder Vollgeschoss, Gauben, Dachfenster Usw. Dann stehen wir allerdings auf der blanken Stahlbetondecke im OG.
Ausschnitt für die Treppe beläuft sich auf ca. 7k.
Die 275cm sind eingezeichnet, aber darauf kam noch Estrich usw. Gemäß Unterlagen sind das 9cm plus der Boden. Also fehlt schon mal einiges. Richtig messen kann ich allerdings erst wenn die ersten Bretter der Holzdecke entfernt sind.
Norden ist recht genau „oben“ auf den Plänen

Bspw Wärmepumpe 30k, Fußbodenheizung 20k, Innenausbau OG 30k, Elektrik…usw. Mir fehlen da die Erfahrungswerte. Diese hoffe ich hier zu finden
Bauamt sagt §34. Die umgebenden Häuser sind nahezu alle höher als unser Vorhaben.
Ein Zimmermann sagt, dass die Aufstockung ganz grob zwischen 100-150k liegen wird. Je nach Kniestock oder Vollgeschoss, Gauben, Dachfenster Usw. Dann stehen wir allerdings auf der blanken Stahlbetondecke im OG.
Ausschnitt für die Treppe beläuft sich auf ca. 7k.
Die 275cm sind eingezeichnet, aber darauf kam noch Estrich usw. Gemäß Unterlagen sind das 9cm plus der Boden. Also fehlt schon mal einiges. Richtig messen kann ich allerdings erst wenn die ersten Bretter der Holzdecke entfernt sind.
Norden ist recht genau „oben“ auf den Plänen
K
KarstenausNRW28.04.23 13:47Wenn ich sehe, dass Ihr quasi eine Kernsanierung macht + Aufstockung, würde ich die normalen Gesamtkosten mit etwa um eine halbe Million € tippen. Mit Euren Eigenleistung sollte es etwas günstiger werden.
Was mich allerdings überrascht ist, dass Ihr bei all den Maßnahmen nur auf KfW85EE gehen wollt. Warum nicht direkt eine bessere Effizienz? Ich zieht im Prinzip einen Neubau hoch. Da würde ich einfach ein paar cm mehr Dämmung wählen und direkt KfW40 oder KfW 55 nehmen. Plus EE natürlich. Preislich kein so großer Unterschied mehr.
Was mich allerdings überrascht ist, dass Ihr bei all den Maßnahmen nur auf KfW85EE gehen wollt. Warum nicht direkt eine bessere Effizienz? Ich zieht im Prinzip einen Neubau hoch. Da würde ich einfach ein paar cm mehr Dämmung wählen und direkt KfW40 oder KfW 55 nehmen. Plus EE natürlich. Preislich kein so großer Unterschied mehr.
A
Aufstockung 2428.04.23 15:22KarstenausNRW schrieb:
Wenn ich sehe, dass Ihr quasi eine Kernsanierung macht + Aufstockung, würde ich die normalen Gesamtkosten mit etwa um eine halbe Million € tippen. Mit Euren Eigenleistung sollte es etwas günstiger werden.
Was mich allerdings überrascht ist, dass Ihr bei all den Maßnahmen nur auf KfW85EE gehen wollt. Warum nicht direkt eine bessere Effizienz? Ich zieht im Prinzip einen Neubau hoch. Da würde ich einfach ein paar cm mehr Dämmung wählen und direkt KfW40 oder KfW 55 nehmen. Plus EE natürlich. Preislich kein so großer Unterschied mehr.Hallo Karsten,danke für die Antwort. KFW 70 EE oder sogar KfW55EE war eigentlich das Ziel. Ich bin jedoch davon ausgegangen, dass es noch weitere Vorgaben sind. Das Gespräch mit einem Energieberatung steht noch aus.
Wenn es im Großen und Ganzen allerdings nur ein paar cm mehr Dämmung ist dann stellt sich die Frage nicht.
Ähnliche Themen