Hallo an alle,
wir sitzen gerade an den letzten Details der Bauplanung für unser kleines Haus, und es gibt ein paar Problemstellen, wo ich mir nicht ganz sicher bin, was der richtige Weg ist.
Vorwiegend geht es mir erst mal um die korrekte Ausführung der thermischen Trennung zwischen Haus und Garage. Das Haus soll in (leichter) Hanglage gebaut werden, Keller- bzw. Untergeschoss soll Richtung Norden nahezu im Hang eingegraben sein, Richtung Süden wiederum komplett offen sein - alles in WU-Beton ausgeführt, voraus. mit 24 cm Wände (Elementwände + Ortbeton) plus 14 cm XPS Perimeterdämmung. Darauf wird ein Holzständerwerk-Fertighaus mit 1,5 Geschossen stehen. Im KG/UG soll ein Wohnbereich/Einliegerwohnung & Haustechnikbereich entstehen, alles innerhalb der thermischen Hülle - angestrebter Standard für das gesamte Haus wäre KFW 55 (dies ist uns wichtig).
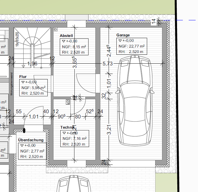
Neben diesem gedämmten Bereich soll sich, unmittelbar anschließend und über eine (T30)-Tür angeschlossen, die (vorzugsweise ungedämmte) Garage befinden. Falls relevant wird das Garagendach begehbar & begrünt sein, da der Seiteneingang (Gartenzugang) des Hauses direkt darüber liegt. Zur besseren Orientierung habe ich mal einen Planausschnitt angehängt - wobei darin noch die (meinerseits nicht gewünschte) Ausführung der Garage als gedämmter Raum dargestellt ist.
Der Energieberater hat vorgegeben, dass zwischen Haus und Garage zwingend eine Trennung zu erfolgen hat, durchgehend durch Dach, Wände und Bodenplatte. Die Trennung soll mit 140 mm XPS-Platten gedämmt sein. Dadurch soll garagenseitig noch einE Wand eingezogen werden, Dicke noch zu bestimmen. Die Architektin ist wiederum gar nicht begeistert von dieser Idee und würde eher zu einer kleineren Fuge mit 2 cm Dämmung + Innendämmung raten.
Nach dem, was ich gelesen habe, wäre der Weg des Energieberaters eigentlich der richtige, bin mir aber nicht sicher, ob es nicht eigene Probleme mit sich bringt.
Ich weiß z.B. nicht, wie die (Tau-)Wasser-Problematik bei so einer Semi-”kerndämmung” aussieht?
Sind Probleme zu erwarten, was die unterschiedliche Setzung der Bauteile angeht? Meine Überlegung war, nur die Bodenplatte für das Haus zu dämmen (140 mm XPS) und die BP der Garage ungedämmt zu lassen.
Wie versteckt man eigentlich so eine Gebäudefuge? Kann man ganz einfach drüber putzen, oder wird irgendwas anderes benötigt?
Hat jemand sowas (ähnliches) geplant & umgesetzt, und wenn ja, was sind eure Erfahrungen damit?
Gibt es eventuell auch andere Wege, die nach Rom führen?
Danke!

wir sitzen gerade an den letzten Details der Bauplanung für unser kleines Haus, und es gibt ein paar Problemstellen, wo ich mir nicht ganz sicher bin, was der richtige Weg ist.
Vorwiegend geht es mir erst mal um die korrekte Ausführung der thermischen Trennung zwischen Haus und Garage. Das Haus soll in (leichter) Hanglage gebaut werden, Keller- bzw. Untergeschoss soll Richtung Norden nahezu im Hang eingegraben sein, Richtung Süden wiederum komplett offen sein - alles in WU-Beton ausgeführt, voraus. mit 24 cm Wände (Elementwände + Ortbeton) plus 14 cm XPS Perimeterdämmung. Darauf wird ein Holzständerwerk-Fertighaus mit 1,5 Geschossen stehen. Im KG/UG soll ein Wohnbereich/Einliegerwohnung & Haustechnikbereich entstehen, alles innerhalb der thermischen Hülle - angestrebter Standard für das gesamte Haus wäre KFW 55 (dies ist uns wichtig).
Neben diesem gedämmten Bereich soll sich, unmittelbar anschließend und über eine (T30)-Tür angeschlossen, die (vorzugsweise ungedämmte) Garage befinden. Falls relevant wird das Garagendach begehbar & begrünt sein, da der Seiteneingang (Gartenzugang) des Hauses direkt darüber liegt. Zur besseren Orientierung habe ich mal einen Planausschnitt angehängt - wobei darin noch die (meinerseits nicht gewünschte) Ausführung der Garage als gedämmter Raum dargestellt ist.
Der Energieberater hat vorgegeben, dass zwischen Haus und Garage zwingend eine Trennung zu erfolgen hat, durchgehend durch Dach, Wände und Bodenplatte. Die Trennung soll mit 140 mm XPS-Platten gedämmt sein. Dadurch soll garagenseitig noch einE Wand eingezogen werden, Dicke noch zu bestimmen. Die Architektin ist wiederum gar nicht begeistert von dieser Idee und würde eher zu einer kleineren Fuge mit 2 cm Dämmung + Innendämmung raten.
Nach dem, was ich gelesen habe, wäre der Weg des Energieberaters eigentlich der richtige, bin mir aber nicht sicher, ob es nicht eigene Probleme mit sich bringt.
Ich weiß z.B. nicht, wie die (Tau-)Wasser-Problematik bei so einer Semi-”kerndämmung” aussieht?
Sind Probleme zu erwarten, was die unterschiedliche Setzung der Bauteile angeht? Meine Überlegung war, nur die Bodenplatte für das Haus zu dämmen (140 mm XPS) und die BP der Garage ungedämmt zu lassen.
Wie versteckt man eigentlich so eine Gebäudefuge? Kann man ganz einfach drüber putzen, oder wird irgendwas anderes benötigt?
Hat jemand sowas (ähnliches) geplant & umgesetzt, und wenn ja, was sind eure Erfahrungen damit?
Gibt es eventuell auch andere Wege, die nach Rom führen?
Danke!
Harakiri schrieb:
Gibt es eventuell auch andere Wege, die nach Rom führen?Aber dann vermutlich ohne Haltepunkt in Bielefeld Gratulation zu den beiden 850i
Harakiri schrieb:
wir sitzen gerade an den letzten Details der Bauplanung für unser kleines Haus, und es gibt ein paar Problemstellen, wo ich mir nicht ganz sicher bin, was der richtige Weg ist.
Vorwiegend geht es mir erst mal um die korrekte Ausführung der thermischen Trennung zwischen Haus und Garage.Das mag aus Deiner Sicht das wesentliche Akutproblem sein, aber Du kennst das Gesamtprojekt - wir nicht. Wenn Du uns ein bißchen weiter in den Topf schauen läßt, ist vermutlich viel besseres Ratgeben möglich.https://www.instagram.com/11antgmxde/
https://www.linkedin.com/company/bauen-jetzt/
Ehm, nein, lieber nicht, vielleicht findet ihr darin noch weitere Probleme, dann müssen wir alles umplanen.
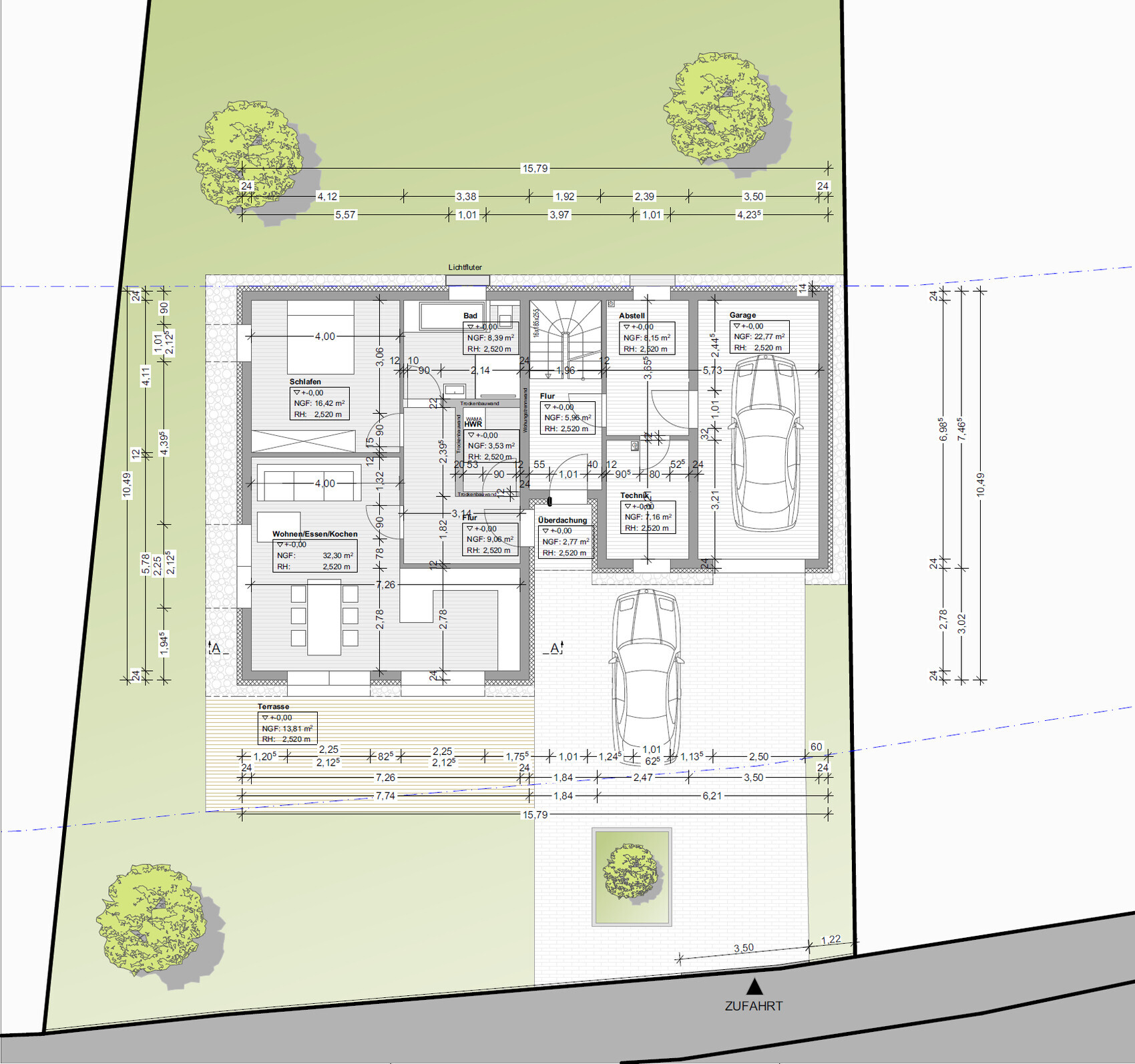
Nein, im Ernst, anbei die weiteren Pläne, voller UG/KG, EG sowie die Seitenansichten, falls es irgendwie hilfreich sein sollte.
Und nein, die fetten Karren sind nur als Platzhalter da. Zum Glück bin ich Golffahrer, somit bleibt in meiner zukünftigen Garage auch Platz für ein paar Fahrräder.



Nein, im Ernst, anbei die weiteren Pläne, voller UG/KG, EG sowie die Seitenansichten, falls es irgendwie hilfreich sein sollte.
Und nein, die fetten Karren sind nur als Platzhalter da. Zum Glück bin ich Golffahrer, somit bleibt in meiner zukünftigen Garage auch Platz für ein paar Fahrräder.
Harakiri schrieb:
Ehm, nein, lieber nicht, vielleicht findet ihr darin noch weitere Probleme, dann müssen wir alles umplanen.Da könntest Du recht haben - mehr frühestens heute Abend ...https://www.instagram.com/11antgmxde/
https://www.linkedin.com/company/bauen-jetzt/
Bei den Terrassentüren rund um den esstisch würde ich noch mal überdenken, welcher Flügel der zu öffnenden, zu schiebende Teil werden soll. Bei der Tür planunten, würde ich den rechten wählen, der näher zur Küche ist und bei der Tür planlinks, würde ich den planoberen wählen, der näher zum Sofa liegt.
Danke für den Hinweis - hatten wir auch etwas hin und her diskutiert. Ich hätte es so wie von dir vorgeschlagen gemacht, meine Frau meinte aber, dass die andere Öffnungsrichtung für Rechtshänder wie uns angenehmer zu bedienen wäre, was mir durchaus einleuchtet. Darüber „brüten“ wir noch.
Ähnliche Themen