Kontrollierte-Wohnraumlüftung im Keller Außenluft übers Dach

4,60 Stern(e) 8 Votes
Zuletzt aktualisiert 29.11.2025
Sie befinden sich auf der Seite 2 der Diskussion zum Thema: Kontrollierte-Wohnraumlüftung im Keller Außenluft übers Dach
>> Zum 1. Beitrag <<

andimann

andimann

Moin,
würde die Außenluft über einen Ansaugkamin und dann einen Erdwärmetauscher ansaugen. Damit ersparst du dir im Winter Probleme mit zu kalter Zuluft und im Sommer wird die Luft immerhin auf etwa 20-22 Grad vorgekühlt. Das bringt keine echte Kühlwirkung im Sommer aber zumindest ziehst du dir nicht noch zusätzliche Wärme ins Haus.

Wenn du ein klein wenig basteln magst, würde ich dir raten anstelle eines Ansaugkamins eine Auflagenbox (such mal nach Biohort und Auflagenbox) nehmen und die Luft darin ansaugen.
Warum?
  • ist auch nicht teurer als ein Ansaugkamin in Edelstahl
  • die für die Ansaugkamine erhältlichen Filter sind sauteuer und haben viel zu wenig Filteroberfläche. Als F7 Filter sitzen die sehr schnell zu. Das kann im Extremfall (Felder in der Nähe plus Saharastaub plus Kaminöfen rundherum) durchaus nach einer Woche der Fall sein..... Ich bastele mir die Filter inzwischen selber aus F7 Filterflies mit der dreifachen Größe wie die erhältlichen. Dann geht's. In der Auflagenbox könnte man sehr viel einfacher mehrere große Filter installieren. Billiger und simpler.
  • wenn du nicht die allerkleinste Box nimmst und auch schon einen Stromanschluss in die Nähe legst wäre es möglich, die Luft im Hochsommer bereits in der Box zu entfeuchten. Dafür entweder einen Luftentfeuchter in die Box mit installieren (Trotec oder sowas) oder gleich eine kleine Klimaanlage mit reinbauen. Die kleinsten kosten um die 600 Euro und haben mehr als genug Leistung um die Luft zu entfeuchten. Das bringt zwar auch keine echte Kühlung aber es weniger Luftfeuchtigkeit im Haus. Und 26 Grad bei 45 % sind gut auszuhalten, 26 Grad bei 75 % sind Dampfbad....



Viele Grüße,

Andreas
 
U

uncelsam

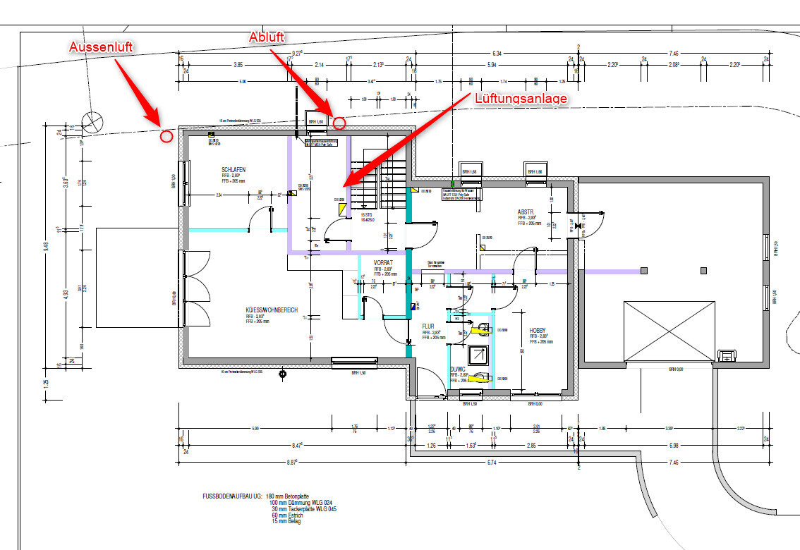
Vielen Dank für die Tipps, ich hab mal einen Plan angehängt wie ich nach dem Input hier jetzt machen würde.
Das mit der Ansaugbox lass ich mir noch durch den Kopf gehen, ist gar keine so schlechte Idee.

Noch was zur Leitungsführung:

Im Haus ist es klar, hier das Gedämte Rohr (MT-R160) von Maico.
Im Erdeich zur Außenluft würde ich dann auf KG Rohr zurrückgreifen, mit Gefälle hin zum Technikraum.

Einen Erdwärmetauscher möchte ich nicht unbedinkt, hier würde ich wenn dann einen Sole-EWT vorziehen.
Hier überlege ich gerade ob ich nicht 120m Soleleitung im Arbeitsraum ums Haus herum vorsehe, diese ist nicht sonderlich teuer und ich wäre für alle Fälle gerüstet.

Grüße

Grundriss eines Hauses mit Lüftungsanlage, Außenluft- und Abluftführung.
 
Zuletzt aktualisiert 29.11.2025
Im Forum Wärmepumpen / Lüftungsanlagen gibt es 815 Themen mit insgesamt 11811 Beiträgen


Ähnliche Themen zu Kontrollierte-Wohnraumlüftung im Keller Außenluft übers Dach
Nr.ErgebnisBeiträge
1Nur keine Hoval RS 250 - Seite 317
2Plötzliche Leistungserhöhung Luftüngsanlage - alle Filter frei 12
3Kontrollierte-Wohnraumlüftung - Filter direkt in Abluftventile 11
4Wartungsvertrag Wohnraumlüftung, günstigere Filter 29
5Kontrollierte-Wohnraumlüftung in Keller aufstellen - Außenluft / Fortluft, Tipps? 15
6Abstand Fortluft-Außenluft nur 2 Meter 17
7Kaminofen Außenluft Zufuhr - Wie sieht die beste Technik dafür aus? 22
8Problem mit Anschluss Waschbecken zu Abwasserleitung/-Rohr 16
9Erwärmung der Zuluft im Rohr - Seite 216
10Kondenswasser und Schimmel an Zuluft Rohr - Was tun? - Seite 211
11Gäste-WC: Decke abhängen oder Rohr verkleiden? - Seite 316
12Unbekanntes Rohr im Garten und Betondeckel 10

Oben