ᐅ KNX Planung - Integration Bussystem
Erstellt am: 03.05.2020 17:19
Danvane 03.05.2020 17:19
Hallo zusammen,
meine Frau und ich haben uns nach langem hin-und her überlegen für eine Integration eines Bussystems in unser Haus entschieden. Die Wahl fiel - wie der Threadtitel verrät - auf KNX..
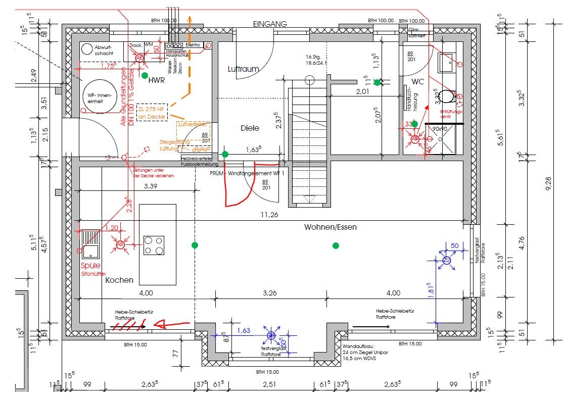
Jetzt müssen wir unserem GU die finale Planung unserer Deckenauslässe im EG übermitteln.
D.h. hier kommen nun auch die Positionen unserer PM ins Spiel.
1. Ist jemand von euch so lieb und schaut einmal über die Positionierung unserer PM (grüne Punkte im Grundriss) rüber und ob das so alles Sinn ergibt?
2. Ich würde gerne im Koch/Ess/Wohnbereich einen Accesspoint platzieren. Wo würdet ihr diesen an die Decke setzen?
3. Passt die Positionierung der Ventile für die Kontrollierte-Wohnraumlüftung so? Meine Überlegungen: Die Abluft im Gäste-WC aus der Dusche eher in die Mitte des Raums ziehen und die Zuluft im Wohnzimmer eher nach planoben, da an der jetzigen Position ein Sofa überaus wahrscheinlich ist.
4. Ich habe das Thema gerade im Parallelthread verfolgt. Der Einbau eines Fensterkontakts, der "gekippt" und "offen/geschlossen" detektiert, würde uns schlappe 170 Euro netto kosten.. Bei 14 Fenstern im EG und OG wären das einfach mal 2.380 Euro netto. Das ist uns bei aller Liebe zu viel. Was sind die Stellen, an denen die Kontakte unabdingbar sind eurer Meinung nach (ich weiß bestenfalls überall, aber das ist einfach zu viel Geld)? Terrassentüren ist klar, sonst noch etwas?
5. Nimmt man für die Haus- und Nebeneingangstüren ebenfalls Reedkontakte oder Riegelschaltkontakte wie ich jetzt häufiger las?
Wäre super, wenn ihr mir helfen könntet. Vielen Dank im Voraus schon einmal!

meine Frau und ich haben uns nach langem hin-und her überlegen für eine Integration eines Bussystems in unser Haus entschieden. Die Wahl fiel - wie der Threadtitel verrät - auf KNX..
Jetzt müssen wir unserem GU die finale Planung unserer Deckenauslässe im EG übermitteln.
D.h. hier kommen nun auch die Positionen unserer PM ins Spiel.
1. Ist jemand von euch so lieb und schaut einmal über die Positionierung unserer PM (grüne Punkte im Grundriss) rüber und ob das so alles Sinn ergibt?
2. Ich würde gerne im Koch/Ess/Wohnbereich einen Accesspoint platzieren. Wo würdet ihr diesen an die Decke setzen?
3. Passt die Positionierung der Ventile für die Kontrollierte-Wohnraumlüftung so? Meine Überlegungen: Die Abluft im Gäste-WC aus der Dusche eher in die Mitte des Raums ziehen und die Zuluft im Wohnzimmer eher nach planoben, da an der jetzigen Position ein Sofa überaus wahrscheinlich ist.
4. Ich habe das Thema gerade im Parallelthread verfolgt. Der Einbau eines Fensterkontakts, der "gekippt" und "offen/geschlossen" detektiert, würde uns schlappe 170 Euro netto kosten.. Bei 14 Fenstern im EG und OG wären das einfach mal 2.380 Euro netto. Das ist uns bei aller Liebe zu viel. Was sind die Stellen, an denen die Kontakte unabdingbar sind eurer Meinung nach (ich weiß bestenfalls überall, aber das ist einfach zu viel Geld)? Terrassentüren ist klar, sonst noch etwas?
5. Nimmt man für die Haus- und Nebeneingangstüren ebenfalls Reedkontakte oder Riegelschaltkontakte wie ich jetzt häufiger las?
Wäre super, wenn ihr mir helfen könntet. Vielen Dank im Voraus schon einmal!
Tarnari 03.05.2020 20:21
Wenn du meine Themen hier im Forum verfolgt hast, dann weißt du, dass auch ich noch jede Menge Fragezeichen habe. Aber Reed Kontakte an Fenstern sollten auf jeden Fall zwei sein, sonst kannst der Bus nicht unterscheiden, ob geöffnet oder nur gekippt. Da ist es dann auch egal, wo der sitzt. Bei einem gibt es nur offen oder zu. Schränkt die Möglichkeiten des Busses sehr ein. Das gleiche gilt für Türen. Wenn du schon den Bus einsetzt, dann willst du zumindest langfristig auch wissen, ob eine Tür offen oder zu ist. Voraus denken, dürfte hier das Stichwort sein.
Fuchur 03.05.2020 20:24
zu 1: ich gehe davon aus, dass alles PIR-Melder werden? Sofern im Hauswirtschaftsraum die Tür nicht dauerhaft zu ist, wird der Melder in den Flur bzw. Wohnzimmer schauen, hier wäre vielleicht direkt über der Tür besser. Der in der Küche könnte kritisch werden, da PIR auf Wärme reagiert und dann so nahe am kochfeld... Lösen musst du noch das Problem, dass im EG-Flur das Licht angeht, wenn du von oben die Treppe herunter kommst. Üblicherweise mit einem Melder im OG. Die Reichweiten für den Melder im Essbereich sind nicht ohne, sollte aber noch funktionieren. Schau dir die Leistungsdaten der beabsichtigten Melder vorher an.
zu 2: verstehe ich nicht, da sind 2 grüne Punkte?
zu 3: Wenn dort die Couch hin soll, dann kein Ventil direkt darüber. Das kann unangenehm sein.
zu 4: Terrassentüren sind Pflicht, sonst schränkst du dich bei der Automatisierung der Jalousien ein. Ganz nett ist die Funktion auch für eine Lüftungsstellung bei Raffstoren, für ein automatisiertes Hochfahren bei Öffnen des Fensters oder als Regenschutz. Vielleicht danach gehen, welche Fenster oft offen sind.
zu 5: wir haben an der Haustür Riegelkontakt, wobei mir der Unterschied für unsere Zwecke nicht wirklich einleuchtet.
zu 2: verstehe ich nicht, da sind 2 grüne Punkte?
zu 3: Wenn dort die Couch hin soll, dann kein Ventil direkt darüber. Das kann unangenehm sein.
zu 4: Terrassentüren sind Pflicht, sonst schränkst du dich bei der Automatisierung der Jalousien ein. Ganz nett ist die Funktion auch für eine Lüftungsstellung bei Raffstoren, für ein automatisiertes Hochfahren bei Öffnen des Fensters oder als Regenschutz. Vielleicht danach gehen, welche Fenster oft offen sind.
zu 5: wir haben an der Haustür Riegelkontakt, wobei mir der Unterschied für unsere Zwecke nicht wirklich einleuchtet.
Danvane 03.05.2020 20:53
Tarnari schrieb:
Wenn du meine Themen hier im Forum verfolgt hast, dann weißt du, dass auch ich noch jede Menge Fragezeichen habe. Aber Reed Kontakte an Fenstern sollten auf jeden Fall zwei sein, sonst kannst der Bus nicht unterscheiden, ob geöffnet oder nur gekippt. Da ist es dann auch egal, wo der sitzt. Bei einem gibt es nur offen oder zu. Schränkt die Möglichkeiten des Busses sehr ein. Das gleiche gilt für Türen. Wenn du schon den Bus einsetzt, dann willst du zumindest langfristig auch wissen, ob eine Tür offen oder zu ist. Voraus denken, dürfte hier das Stichwort sein.Ich habe deine Themen verfolgt
Ich weiß, dass ich zwei Kontakte für die Kippunterscheidung brauche. Die 170 Euro gelten für zwei Kontakte. Finde wie der Kollege im anderen Thread, dass der Preis recht hoch ist.
Mir fehlen da noch ein bisschen die Anwendungsfälle - abgesehen mal von der "Alarmanlage" und der Prüfung "alle Fenster zu" (was ich jetzt nicht herunterspielen möchte, aber zu dem Preis?!). Bei Türen sehe ich es ein und bei den Terrassentüren ein Muss, da ich mich nicht aussperren möchte
Danvane 03.05.2020 20:58
Fuchur schrieb:
zu 1: ich gehe davon aus, dass alles PIR-Melder werden? Sofern im Hauswirtschaftsraum die Tür nicht dauerhaft zu ist, wird der Melder in den Flur bzw. Wohnzimmer schauen, hier wäre vielleicht direkt über der Tür besser. Der in der Küche könnte kritisch werden, da PIR auf Wärme reagiert und dann so nahe am Kochfeld... Lösen musst du noch das Problem, dass im EG-Flur das Licht angeht, wenn du von oben die Treppe herunter kommst. Üblicherweise mit einem Melder im OG. Die Reichweiten für den Melder im Essbereich sind nicht ohne, sollte aber noch funktionieren. Schau dir die Leistungsdaten der beabsichtigten Melder vorher an.
zu 2: verstehe ich nicht, da sind 2 grüne Punkte?
zu 3: Wenn dort die Couch hin soll, dann kein Ventil direkt darüber. Das kann unangenehm sein.
zu 4: Terrassentüren sind Pflicht, sonst schränkst du dich bei der Automatisierung der Jalousien ein. Ganz nett ist die Funktion auch für eine Lüftungsstellung bei Raffstoren, für ein automatisiertes Hochfahren bei Öffnen des Fensters oder als Regenschutz. Vielleicht danach gehen, welche Fenster oft offen sind.
zu 5: wir haben an der Haustür Riegelkontakt, wobei mir der Unterschied für unsere Zwecke nicht wirklich einleuchtet.Danke für die Antwort!
Ja, geplant sind PIR-Melder. Okay, das mit der Hauswirtschaftsraum-Tür habe ich tatsächlich unterschätzt. Dachte, dass der Melder nicht "so weit schauen" kann. Über der Tür dann zum Flur?
Das mit dem Kochfeld könnte tatsächlich unglücklich sein..
2. Die grünen Punkte sind die geplanten Präsenzmelder.. Jetzt möchte ich noch einen Accesspoint setzen. Dafür habe ich bislang keinen Punkt eingezeichnet. Für mich wäre eure Meinung von Interesse, wo ihr den Accesspoint setzen würdet.
3. Ja, das dachte ich mir.. dann schiebe ich den wohl weiter nach planoben..
4. & 5. Danke für den Input!
rick2018 03.05.2020 21:19
Accesspoint im Wohnzimmer an der Decke. Empfehle Unifi nano HD.
Im OG einen Weiteren.
Im OG einen Weiteren.
Ähnliche Themen