Guten Tag Zusammen,
nach mehrmonatiger Planung unseres Sanierungsprojektes und einigem Einlesen auch in diesem Forum (Danke für alle Tipps!) möchte ich euch um eine kurze Einschätzung unserer Kostenplanung bitten. Erst einmal: Sorry für den Detailierungsgrad, ich bin jemand der gerne strukturiert und lange plant. Ich erwarte von euch (eigentlich gar nichts, ihr macht das ja aus Spaß und umsonst) nicht ein Durchlesen aller Details sondern einfach nur ein paar Ideen / Einschätzungen zu gewissen Punkten und eine grobe Bestätigung bzw. Einwände. Herzlichen Dank schon einmal dafür!
Kurz zu mir: Ich bin 37 Jahre alt und habe mal (vor 15 Jahren) Elektriker gelernt. Ich kenne also Baustellen halbwegs von innen, habe auch in der Zwischenzeit auf einigen Baustellen geholfen und kann einige Dinge (vor allem Technik wie Heizung und Elektro) recht gut einschätzen. Was ich gar nicht einschätzen kann ist alles was mit Bauelementen, Beton oder Mauerwerk zu tun hat...
Grundlegende Informationen zum Haus:
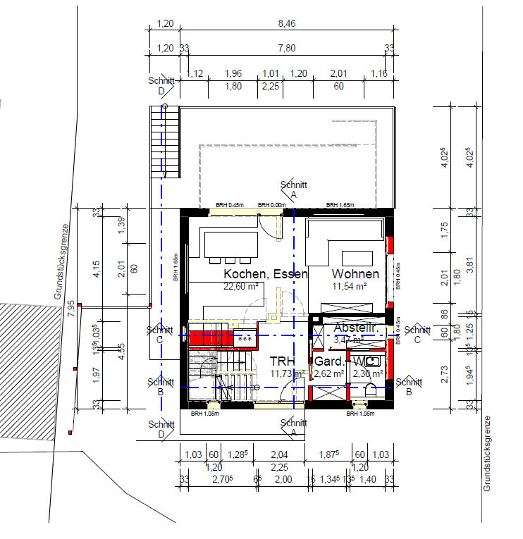
Auf dem Grundstück befindet sich ein 1960 errichtetes Gebäude in Massivbauweise mit einem Satteldach und zwei Dachgauben. Die Grundfläche des Hauses beträgt ca. 8,45 x 7,95 m und es befindet sich ein Balkonanbau zur Gartenseite hinaus. Das Haus hat eine Hanglage, zum Garten hin (also zur Südrichtung) ist das Kellergeschoss vollständig sichtbar, zur Straße ist das Kellergeschoss komplett bedeckt.
Die Wasserversorgung wird über einen eigenen Brunnen auf dem Grundstück realisiert. Die Abwasserversorgung erfolgt über eine Druckentwässerung, deren Schacht auf dem Grundstück liegt. Von dort aus wird das Schmutzwasser in eine höher gelegene Sammelstation der Kanalisation gepumpt. Die Entwässerung der Dach- und versiegelten Flächen erfolgt über eine auf dem Grundstück vorhandene Verrieselungsanlage, die das überschüssige Wasser in den kleinen Bachlauf am unteren Ende des Grundstücks leitet.
Das Grundstück befindet sich in ländlicher Lage im Außenbereich einer Mittelstadt in NRW. Kein Bebauungsplan vorhanden, Baustopp im Außenbereich, daher muss der Bau so stehen bleiben wie er ist (zumindest von außen). Ansonsten hätte ich das lieber abgerissen und neu gebaut. Der Ausblick und die Ruhe entschädigen aber für vieles.
Bausubstanz:
Die Bodenplatte im Keller besteht aus unbewehrtem Stampfbeton und ist etwa 8 cm stark. Unter der Bodenplatte befindet sich direkt das Erdreich, das aus lehmigem Boden besteht. Der Aufbau wurde über eine Kernbohrung ermittelt, ggf. kann es dennoch sein, dass der Beton bewehrt ist.
Die Außenwände sind als zweischaliges Mauerwerk ausgestaltet worden. Die Luftschicht zwischen dem Mauerwerk ist nachträglich mit einer Einblasdämmung aus mineralischem Material ausgeblasen worden. Die Dicke der Luftschicht variiert zwischen 4 und 8 cm. Als Material der Wände kamen unterschiedliche Steinarten zum Einsatz. Hauptsächlich wurden Lochziegel verbaut.
Die Kellergeschossdecke ist als Stahlträger-Kappendecke mit Hohlziegelmauerung ausgeführt. Die Erdgeschoss- und Obergeschossdecke sind als Holzbalkendecke ausgeführt.
Die Kellertreppe ist als Betontreppe ausgeführt worden. Als Stufenbelag kommen große Steinzeugplatten zum Einsatz. Die Obergeschosstreppe ist als Holztreppe ausgeführt worden. Diese Treppe hat zwei Treppenpodeste. Die Dachgeschosstreppe ist über eine Dachbodenluke mit Ausziehleiter aus dem Flur des Obergeschosses zu benutzen.
Das Dach ist ein Satteldach als Pfettendach mit einer Neigung von ca. 52 °. An den beiden Hausseiten links/rechts ist ein Dachüberstand von ca. 15 cm vorhanden, an den Gebäudeseiten zur Straße und zum Garten ist ein Dachüberstand von 25 cm vorhanden. Das Dach wurde in den späten 80er Jahren mit grauen Tonziegeln neu eingedeckt. In dieser Zeit wurde auch die Dachgaube zur Straßenseite aufgebaut. Die Dachgaube zum Garten war bereits bei Errichtung des Gebäudes Bestandteil des Hauses. Im Jahr 2003 wurde das Dachgeschoss mit mineralischen Dämmmatten gedämmt und es wurde eine Dampfbremse verklebt. Im Haus sind zwei Kaminzüge vorhanden, die auf dem Giebel des Daches sitzen. Der erste Kamin wird nicht mehr genutzt der zweite Kamin ist für die aktuell verbaute Ölheizung in Benutzung.
Das Haus verfügt über eine eigene Wasserversorgung über einen Brunnenanlage auf dem Grundstück. Die Abwasserentsorgung erfolgt über eine Druckwasserleitung, die aus dem Sammelschacht auf dem Grundstück in die höher gelegene städtische Kanalisation verläuft. Die Hausanschlüsse für Wasser und Abwasser liegen an der Ostseite im KG, dort ist auch das Pumpwerk inkl. Wasserbehälter untergebracht. Im Jahr 2003 wurde eine Ölheizung eingebaut, diese heizt die Räume über Radiatoren und sorgt für die zentrale Warmwasserbereitung. Die Ölheizung selbst befindet sich im Kellergeschoss, dort ist auch der Öltank untergebracht. Die Elektroinstallation ist halbwegs modern, der Zählerschrank inkl. Hauptverteiler liegt im Flurbereich des Kellers. Der Hausanschlusskasten ist an der Nordostseite des Hauses angebracht, dort erfolgt auch die Einführung der Zuleitung seitens der Stadtwerke. Die Zuleitung der Fernmeldeanlagen (Kupferkabel) ist zum aktuellen Zeitpunkt noch unklar.
Ein Bestands-Energieausweis wurde schon erstellt (Gebäudeklasse H). Der Rückbau ist in Eigenleistung bereits weit vorangeschritten, alle Wand- und Bodenbeläge wurden entfernt, alle Deckenverkleidungen wurden zurück gebaut und die Decken freigelegt. Der Bau scheint ohne größere Mängel zu sein (keine nassen Kellerwände, keine Abplatzungen oder Risse, kein Schimmel).
Grundlegendes zum Sanierungsvorhaben:
Bei dem Bauvorhaben handelt es sich um eine Kernsanierung eines bestehenden Einfamilienhauses. Das Gebäude wird vollständig entkernt und auf den KFW55 EE Standard gebracht. Daneben erfolgen umfangreiche Innenausbaumaßnahmen sowie der Anbau eines neuen Balkons, eines Carports und einer Eingangsüberdachung für die Hauseingangstür. Die größten Teilprojekte bei der Sanierung sind:
Ich weiß, dass gerade so ein Sanierungsprojekt seine Eigenheiten hat und schwierig einzuschätzen ist. Unser Vorteil ist, dass ein befreundeter, sachkundiger Bauleiter nebenan im Haus wohnt und uns bei vielem unterstützen wird. Ich habe die komplette Baubeschreibung nun soweit fertig, daher auch die detaillierte Beschreibung hier. Es soll grundsätzlich viel in Eigenleistung erfolgen, ich habe einiges an Zeit verfügbar und ein paar gute Kollegen, die mit anpacken werden. Alles was Statik, Dichtigkeit und andere schwierige bzw. gefährliche Arbeiten betrifft, wird natürlich durch Fachfirmen ausgeführt. Die Elektroinstallation in Eigenleistung wird später von dem Fachbetrieb abgenommen, von dem ich die Materialien beziehen werde.
Übersicht über die aktuelle Baukostenschätzung:
Die folgenden Baukosten habe ich in umfangreicher Recherche aus diversen Quellen (Architekt, mir bekannte Handwerker) zusammengetragen und danach in etwa gemittelt. Bei der Darstellung habe ich versucht, mich an die DIN 276 zu halten (ein wenig auf meine Bedürfnisse zugeschnitten, bitte seht mir nach, dass das nicht zu 100% in die Norm passt). Die Kosten sind alle als Bruttokosten ausgewiesen.
Erklärung der Spalten:
Kostengruppe Herrichten und Abreißen (Bitte beachten: Sehr viel Eigenleistung!):
-----
Kostengruppe Gründungen:
-----
Kostengruppe Außenwände:
-----
Kostengruppe Innenwände:
-----
Kostengruppe Decken / Bodenbelag:
-----
Kostengruppe Dach:
Die neue Dachfläche wird durch die geänderte Gaubenneigung wesentlich kleiner, daher hier nur 89 m² neu einzudeckende und zu dämmende Dachfläche.
-----
Kostengruppe Wasserver- und Abwasserentsorgung, Sanitär:
-----
Kostengruppe Wärmeversorgung:
-----
Kostengruppe Lüftungsanlagen:
-----
Kostengruppe Elektroinstallation (Bitte beachten: Das wird alles in Eigenleistung mit ein paar Kollegen gemacht, wir sind alle Elektriker. Also hier sind nur die Materialkosten gemeint. Insgesamt soll das einen sehr gehobenen Ausstattungsstand darstellen):
-----
Kostengruppe Verkehrsflächen:
-----
Kostengruppe Einfriedung:
-----
Kostengruppe Außenanlagen:
-----
Kostengruppe Planungskosten:
-----
Kostengruppe Genehmigung:
-----
Kostengruppe Baubegleitende Kosten:
In Summe sind das in Summe ca. 540.000 € inkl. aller oben aufgeführten Kostenpositionen und den bereits angefallenen Entsorgungskosten. Die Erdarbeiten sind recht kleinteilig aber bereits in einigen Positionen enthalten. Hier haben wir aber auch Zugang zu einem Minibagger und einem Gala-Bauer, der das günstig macht. Auf Grund des großen Grundstücks lässt sich viel vom Erdreich im Garten für Rasenflächenuntergründe wieder verwerten.
Die Ausführungsplanung erfolgt durch die Architektin auf Stundenbasis wo notwendig (alles was die Statik und die Dichtigkeit betrifft). Den Rest sollen die Gewerke oder wird selbst geplant. Die Bauleitung (und die Abstimmung der Ausführungsplanung) erfolgt durch den Nachbarn, mit dem wir gut befreundet sind und der auch beruflich Bauleiter ist.
Das Haus gehört bereits uns und ist daher Teil des Eigenkapitals. Das Haus hat später (inkl. anrechenbaren Balkonflächen) eine Wohn- und Nutzfläche von 156 m², es ergeben sich also ca. 3.400 € / m² Baukosten.
Was ist eure Einschätzung zu den geplanten Arbeiten? Passt das in etwa oder liege ich an der einen oder anderen Stelle deutlich unter / über euren Kostenschätzungen. Angehängt findet ihr die aktuellen Entwürfe, an denen jetzt noch ein wenig Detailarbeit stattfindet. Danach geht das so in die Genehmigung, deren Bauvoranfrage schon positiv beschieden wurde.
Vielen Dank für das Lesen und (wenn ihr Lust habt) beantworten. Ich bin für jeden Tipp dankbar und freue mich auf eure Rückfragen.
Beste Grüße!







nach mehrmonatiger Planung unseres Sanierungsprojektes und einigem Einlesen auch in diesem Forum (Danke für alle Tipps!) möchte ich euch um eine kurze Einschätzung unserer Kostenplanung bitten. Erst einmal: Sorry für den Detailierungsgrad, ich bin jemand der gerne strukturiert und lange plant. Ich erwarte von euch (eigentlich gar nichts, ihr macht das ja aus Spaß und umsonst) nicht ein Durchlesen aller Details sondern einfach nur ein paar Ideen / Einschätzungen zu gewissen Punkten und eine grobe Bestätigung bzw. Einwände. Herzlichen Dank schon einmal dafür!
Kurz zu mir: Ich bin 37 Jahre alt und habe mal (vor 15 Jahren) Elektriker gelernt. Ich kenne also Baustellen halbwegs von innen, habe auch in der Zwischenzeit auf einigen Baustellen geholfen und kann einige Dinge (vor allem Technik wie Heizung und Elektro) recht gut einschätzen. Was ich gar nicht einschätzen kann ist alles was mit Bauelementen, Beton oder Mauerwerk zu tun hat...
Grundlegende Informationen zum Haus:
Auf dem Grundstück befindet sich ein 1960 errichtetes Gebäude in Massivbauweise mit einem Satteldach und zwei Dachgauben. Die Grundfläche des Hauses beträgt ca. 8,45 x 7,95 m und es befindet sich ein Balkonanbau zur Gartenseite hinaus. Das Haus hat eine Hanglage, zum Garten hin (also zur Südrichtung) ist das Kellergeschoss vollständig sichtbar, zur Straße ist das Kellergeschoss komplett bedeckt.
Die Wasserversorgung wird über einen eigenen Brunnen auf dem Grundstück realisiert. Die Abwasserversorgung erfolgt über eine Druckentwässerung, deren Schacht auf dem Grundstück liegt. Von dort aus wird das Schmutzwasser in eine höher gelegene Sammelstation der Kanalisation gepumpt. Die Entwässerung der Dach- und versiegelten Flächen erfolgt über eine auf dem Grundstück vorhandene Verrieselungsanlage, die das überschüssige Wasser in den kleinen Bachlauf am unteren Ende des Grundstücks leitet.
Das Grundstück befindet sich in ländlicher Lage im Außenbereich einer Mittelstadt in NRW. Kein Bebauungsplan vorhanden, Baustopp im Außenbereich, daher muss der Bau so stehen bleiben wie er ist (zumindest von außen). Ansonsten hätte ich das lieber abgerissen und neu gebaut. Der Ausblick und die Ruhe entschädigen aber für vieles.
Bausubstanz:
Die Bodenplatte im Keller besteht aus unbewehrtem Stampfbeton und ist etwa 8 cm stark. Unter der Bodenplatte befindet sich direkt das Erdreich, das aus lehmigem Boden besteht. Der Aufbau wurde über eine Kernbohrung ermittelt, ggf. kann es dennoch sein, dass der Beton bewehrt ist.
Die Außenwände sind als zweischaliges Mauerwerk ausgestaltet worden. Die Luftschicht zwischen dem Mauerwerk ist nachträglich mit einer Einblasdämmung aus mineralischem Material ausgeblasen worden. Die Dicke der Luftschicht variiert zwischen 4 und 8 cm. Als Material der Wände kamen unterschiedliche Steinarten zum Einsatz. Hauptsächlich wurden Lochziegel verbaut.
Die Kellergeschossdecke ist als Stahlträger-Kappendecke mit Hohlziegelmauerung ausgeführt. Die Erdgeschoss- und Obergeschossdecke sind als Holzbalkendecke ausgeführt.
Die Kellertreppe ist als Betontreppe ausgeführt worden. Als Stufenbelag kommen große Steinzeugplatten zum Einsatz. Die Obergeschosstreppe ist als Holztreppe ausgeführt worden. Diese Treppe hat zwei Treppenpodeste. Die Dachgeschosstreppe ist über eine Dachbodenluke mit Ausziehleiter aus dem Flur des Obergeschosses zu benutzen.
Das Dach ist ein Satteldach als Pfettendach mit einer Neigung von ca. 52 °. An den beiden Hausseiten links/rechts ist ein Dachüberstand von ca. 15 cm vorhanden, an den Gebäudeseiten zur Straße und zum Garten ist ein Dachüberstand von 25 cm vorhanden. Das Dach wurde in den späten 80er Jahren mit grauen Tonziegeln neu eingedeckt. In dieser Zeit wurde auch die Dachgaube zur Straßenseite aufgebaut. Die Dachgaube zum Garten war bereits bei Errichtung des Gebäudes Bestandteil des Hauses. Im Jahr 2003 wurde das Dachgeschoss mit mineralischen Dämmmatten gedämmt und es wurde eine Dampfbremse verklebt. Im Haus sind zwei Kaminzüge vorhanden, die auf dem Giebel des Daches sitzen. Der erste Kamin wird nicht mehr genutzt der zweite Kamin ist für die aktuell verbaute Ölheizung in Benutzung.
Das Haus verfügt über eine eigene Wasserversorgung über einen Brunnenanlage auf dem Grundstück. Die Abwasserentsorgung erfolgt über eine Druckwasserleitung, die aus dem Sammelschacht auf dem Grundstück in die höher gelegene städtische Kanalisation verläuft. Die Hausanschlüsse für Wasser und Abwasser liegen an der Ostseite im KG, dort ist auch das Pumpwerk inkl. Wasserbehälter untergebracht. Im Jahr 2003 wurde eine Ölheizung eingebaut, diese heizt die Räume über Radiatoren und sorgt für die zentrale Warmwasserbereitung. Die Ölheizung selbst befindet sich im Kellergeschoss, dort ist auch der Öltank untergebracht. Die Elektroinstallation ist halbwegs modern, der Zählerschrank inkl. Hauptverteiler liegt im Flurbereich des Kellers. Der Hausanschlusskasten ist an der Nordostseite des Hauses angebracht, dort erfolgt auch die Einführung der Zuleitung seitens der Stadtwerke. Die Zuleitung der Fernmeldeanlagen (Kupferkabel) ist zum aktuellen Zeitpunkt noch unklar.
Ein Bestands-Energieausweis wurde schon erstellt (Gebäudeklasse H). Der Rückbau ist in Eigenleistung bereits weit vorangeschritten, alle Wand- und Bodenbeläge wurden entfernt, alle Deckenverkleidungen wurden zurück gebaut und die Decken freigelegt. Der Bau scheint ohne größere Mängel zu sein (keine nassen Kellerwände, keine Abplatzungen oder Risse, kein Schimmel).
Grundlegendes zum Sanierungsvorhaben:
Bei dem Bauvorhaben handelt es sich um eine Kernsanierung eines bestehenden Einfamilienhauses. Das Gebäude wird vollständig entkernt und auf den KFW55 EE Standard gebracht. Daneben erfolgen umfangreiche Innenausbaumaßnahmen sowie der Anbau eines neuen Balkons, eines Carports und einer Eingangsüberdachung für die Hauseingangstür. Die größten Teilprojekte bei der Sanierung sind:
- Entfernung der aktuellen Bodenplatte und Einbau einer neuen, gedämmten und abgedichteten Bodenplatte. Die Bodenplatte soll zwischen den Streifenfundamenten tiefergelegt werden, es ist ein Unterfangen der Streifenfundamente erforderlich um auf die Mindest-Deckenhöhe von 2,2 m (Aktuell genau 2 m) zu kommen. Statiker war schon da und sagt, dass das ohne größere Probleme zu machen sein sollte.
- Freilegen der Kelleraußenwände, Abdichten und Isolieren der Wände (Perimeterdämmung) sowie Einbau einer Drainage um das Haus.
- Dämmung der Außenwände mit einem Wärmedämmverbundsystem.
- Erneuerung des Daches inkl. Erweiterung der vorhandenen Dachgauben (diese werden breiter und die Neigung wird auf 25° abgeflacht).
- Erneuerung aller Fenster und Türen sowie ein Versetzen / Zumauern / Schaffen von neuen Außenwandöffnungen.
- Einbau einer neuen Heizungs- und Warmwasserbereitungsanlage. Es soll eine Luft-/Wasserwärmepumpe, eine separate Brauchwasser-Wärmepumpe und eine dezentrale Lüftungsanlage eingebaut werden.
- Einbau neuer Treppen KG/EG und EG/OG.
- Das Kellergeschoss soll in Zukunft als Wohnraum genutzt werden (daher die Unterfangung des Fundaments), hier sollen ein Büro, ein Hauswirtschaftsraum und der Technikraum Platz finden.
- Das Erdgeschoss wird einen großen, offenen Koch-, Ess- und Wohnbereich beinhalten. Daneben werden ein Abstellraum sowie eine Garderobe und ein Gäste-WC im EG untergebracht.
- Im Obergeschoss soll das Hauptbadezimmer sowie ein großes Schlafzimmer mit Ankleidebereich entstehen. Daneben wird dort ein zweites Büro bzw. ein Kinderzimmer eingerichtet.
- Der Spitzboden bleibt zunächst ungenutzt bzw. wird nur als Lagerfläche genutzt.
Ich weiß, dass gerade so ein Sanierungsprojekt seine Eigenheiten hat und schwierig einzuschätzen ist. Unser Vorteil ist, dass ein befreundeter, sachkundiger Bauleiter nebenan im Haus wohnt und uns bei vielem unterstützen wird. Ich habe die komplette Baubeschreibung nun soweit fertig, daher auch die detaillierte Beschreibung hier. Es soll grundsätzlich viel in Eigenleistung erfolgen, ich habe einiges an Zeit verfügbar und ein paar gute Kollegen, die mit anpacken werden. Alles was Statik, Dichtigkeit und andere schwierige bzw. gefährliche Arbeiten betrifft, wird natürlich durch Fachfirmen ausgeführt. Die Elektroinstallation in Eigenleistung wird später von dem Fachbetrieb abgenommen, von dem ich die Materialien beziehen werde.
Übersicht über die aktuelle Baukostenschätzung:
Die folgenden Baukosten habe ich in umfangreicher Recherche aus diversen Quellen (Architekt, mir bekannte Handwerker) zusammengetragen und danach in etwa gemittelt. Bei der Darstellung habe ich versucht, mich an die DIN 276 zu halten (ein wenig auf meine Bedürfnisse zugeschnitten, bitte seht mir nach, dass das nicht zu 100% in die Norm passt). Die Kosten sind alle als Bruttokosten ausgewiesen.
Erklärung der Spalten:
| Auszuführende Arbeit | | Koten pro Einheit | | Einheit | | Anzahl Einheiten | | Gesamtkosten |
Kostengruppe Herrichten und Abreißen (Bitte beachten: Sehr viel Eigenleistung!):
| Abbruch Dach | 20,00 € | m² Dachfläche | 112 | 2.240,00 € |
| Abbruch Innenwände | 80,00 € | m² Wandfläche | 30 | 2.400,00 € |
| Abbruch Außenflächen und Balkon | 2.000,00 € | pausch. | 1 | 2.000,00 € |
| Abbruch Bodenplatte | 50,00 € | m² | 56 | 2.800,00 € |
| Abgrabung und Planierung Bodenplatte | 100,00 € | m³ | 10 | 1.000,00 € |
| Abbruch Innenausstattung, Fenster, Türen | 2.200,00 € | pausch | 1 | 2.200,00 € |
| Abbruch und Entsorgung Ölheizung + Tank | 2.500,00 € | pausch | 1 | 2.500,00 € |
| Entsorgung Abbruchmaterial | 4.000,00 € | pausch. | 1 | 4.000,00 € |
| Anschütten und Verdichten Carport und Müllplatz | 70,00 € | m³ | 20 | 1.400,00 € |
| Erdarbeiten Gartenanalage | 70,00 € | m³ | 20 | 1.400,00 € |
| Anpassung Abwasserentsorgung | 2.500,00 € | pausch. | 1 | 2.500,00 € |
| Anpassung Wasserversorgung | 1.500,00 € | pausch. | 1 | 1.500,00 € |
-----
Kostengruppe Gründungen:
| Isolierte Bodenplatte Altbau | 220,00 € | m² | 56 | 12.320,00€ |
| Unterfangung Kellerfundamente | 45.000,00 € | pausch. | 1 | 45.000,00€ |
| L-Steine Müllplatz | 450,00 € | lfd m | 11 | 4.950,00€ |
| Stützwände Carport in Ortbeton | 350,00 € | m² | 24 | 8.400,00€ |
| Fundament Wärmepumpe | 1.200,00 € | pschl. | 1 | 1.200,00€ |
| Punktfundamente Balkon | 250,00 € | Stk. | 6 | 1.500,00€ |
-----
Kostengruppe Außenwände:
| Keller: Außenwandöffnungen schließen | 200,00 € | m² | 4,4 | 880,00€ |
| Perimeterdämmung Kelleraußenwände Bodenaushub | 60,00 € | m³ | 58,5 | 3.510,00€ |
| Perimeterdämmung Kelleraußenwände Untergrund vorbereiten | 30,00 € | m² | 36 | 1.080,00€ |
| Perimeterdämmung Kelleraußenwände Abdichtung Bitumendickbeschichtung, Dämmung, Noppenbahn | 160,00 € | m² | 36 | 5.760,00€ |
| Perimeterdämmung Kelleraußenwände Drainage, Sickerpackung | 90,00 € | lfd m | 25 | 2.250,00 € |
| Perimeterdämmung Kelleraußenwände Hinterfüllung | 50,00 € | m³ | 60 | 3.000,00 € |
| Erdgeschoss: Außenwandöffnungen schließen | 200,00 € | m² | 6 | 1.200,00 € |
| Erdgeschoss: Außenwandöffnungen schaffen | 700,00 € | m² | 6 | 4.200,00 € |
| Erdgeschoss: Innenwände mauern / Träger setzen | 5.000,00 € | pschl. | 1 | 5.000,00 € |
| Obergeschoss: Außenwandöffnungen schließen | 200,00 € | m² | 2 | 400,00€ |
| Obergeschoss: Außenwandöffnungen schaffen | 700,00 € | m² | 2 | 1.400,00 € |
| Dämmung Fassade (160 mm Mineralwollplatten) | 140,00 € | m² | 180 | 25.200,00 € |
| Fassade Verputzen, Anstreichen und Versiegeln | 80,00 € | m² | 180 | 14.400,00 € |
| Fenster und Nebeneingangstüren inkl. Verschattung | 1.000,00 € | m² | 36 | 36.000,00 € |
| Haustür | 6.000,00 € | pausch. | 1 | 6.000,00 € |
-----
Kostengruppe Innenwände:
| Trockenbauwand | 85,00 € | m² | 14 | 1.190,00 € |
| Innentüren | 1.000,00 € | pro Tür | 7 | 7.000,00 € |
| Schiebetüren | 1.200,00 € | pro Tür | 3 | 3.600,00 € |
| Putzarbeiten | 40,00 € | m² | 80 | 3.200,00 € |
| Wandfliesen Badezimmer und Küche | 130,00 € | m² | 27 | 3.510,00 € |
| Spachtel- und Schleifarbeiten (Streichen und Tapezieren ist Eigenleistung) | 30,00 € | m² | 400 | 12.000,00 € |
-----
Kostengruppe Decken / Bodenbelag:
| Trockenestrich EG und OG | 80,00 € | m² | 100 | 8.000,00 € |
| Bodenbelag KG | 90,00 € | m² | 39 | 3.510,00 € |
| Bodenbelag EG | 130,00 € | m² | 46 | 5.980,00 € |
| Bodenbelag OG | 90,00 € | m² | 37 | 3.330,00 € |
| Bodenbelag Bad | 90,00 € | m² | 9 | 810,00€ |
| Dämmung KG Geschossdecke | 50,00 € | m² | 48 | 2.400,00 € |
| Dämmung EG Geschossdecke | 50,00 € | m² | 46 | 2.300,00 € |
| Verkleidung Decken | 40,00 € | m² | 148 | 5.920,00 € |
| Treppe KG --> EG | 7.000,00 € | pausch. | 1 | 7.000,00 € |
| Treppe EG --> OG | 7.000,00 € | pausch. | 1 | 7.000,00 € |
| Zugang DG | 1.000,00 € | pausch. | 1 | 1.000,00 € |
-----
Kostengruppe Dach:
| Dach neu eindecken und isolieren (Aufdachdämmung) | 340,00 € | m² | 89 | 30.260,00 € |
| Anpassungen an den Dachgauben / Dachstuhl | 9.000,00 € | Stück | 2 | 18.000,00 € |
Die neue Dachfläche wird durch die geänderte Gaubenneigung wesentlich kleiner, daher hier nur 89 m² neu einzudeckende und zu dämmende Dachfläche.
-----
Kostengruppe Wasserver- und Abwasserentsorgung, Sanitär:
| Wasserfilter- und Enthärtungsanlage | 5.000,00 € | pausch. | 1 | 5.000,00 € |
| Warmwasser-Wärmepumpe | 4.500,00 € | pausch. | 1 | 4.500,00 € |
| Wasser- und Abwasserleitungen | 18.000,00 € | pauschl | 1 | 18.000,00 € |
| Toiletten | 500,00 € | Stück | 2 | 1.000,00 € |
| Waschbecken Bad | 500,00 € | Stück | 2 | 1.000,00 € |
| Ebenerdige Dusche | 4.000,00 € | Stück | 1 | 4.000,00 € |
| Zusätzlicher Außenanschluss | 1.000,00 € | pausch. | 1 | 1.000,00 € |
-----
Kostengruppe Wärmeversorgung:
| Luft-Wasser-Wärmepumpe | 20.000,00 € | pausch. | 1 | 20.000,00 € |
| Verlegung Fußbodenheizung | 9.000,00 € | pausch. | 1 | 9.000,00 € |
-----
Kostengruppe Lüftungsanlagen:
| Dezentrale Entlüftungsanlage mit Wärmerückgewinnung | 13.000,00 € | pausch. | 1 | 13.000,00 € |
-----
Kostengruppe Elektroinstallation (Bitte beachten: Das wird alles in Eigenleistung mit ein paar Kollegen gemacht, wir sind alle Elektriker. Also hier sind nur die Materialkosten gemeint. Insgesamt soll das einen sehr gehobenen Ausstattungsstand darstellen):
| Basis-Elektroninstallation | 10.000,00 € | pausch. | 1 | 10.000,00 € |
| Erweiterter Schaltschrank inkl. Smart Home Komponenten | 9.000,00 € | pausch. | 1 | 9.000,00 € |
| 5 kWp Photovoltaikanlage | 10.000,00 € | pausch. | 1 | 10.000,00 € |
| 7 kWh Speicher | 3.000,00 € | pausch. | 1 | 3.000,00 € |
| Wallbox | 1.000,00 € | pausch. | 1 | 1.000,00 € |
-----
Kostengruppe Verkehrsflächen:
| Pflasterarbeiten Einfahrt, Carport und Terrassen | 80,00 € | m² | 150 | 12.000,00 € |
| Errichtung Carport | 8.000,00 € | pausch. | 1 | 8.000,00 € |
| Eingangsbereich: Dach und Stufen | 5.000,00 € | pausch. | 1 | 5.000,00 € |
-----
Kostengruppe Einfriedung:
| Hecken | 80,00 € | m | 52 | 4.160,00 € |
-----
Kostengruppe Außenanlagen:
| Balkon (Hochgelegter Stahlbalkon mit Gartentreppe) | 650,00 € | m² | 30 | 19.500,00 € |
| Terrassierung Garten (Ebenen schaffen) | 8.000,00 € | pausch | 1 | 8.000,00 € |
-----
Kostengruppe Planungskosten:
| Architekt Leistungsphase 4 | 80,00 € | Stunde | 70 | 5.600,00 € |
| Statiker | 3.000,00 € | pausch. | 1 | 3.000,00 € |
| Energieberater | 89,00 € | Stunde | 70 | 6.230,00 € |
| Vermessung/Einmessung | 1.000,00 € | pausch. | 1 | 1.000,00 € |
-----
Kostengruppe Genehmigung:
| Bauvoranfrage, Baugenehmigung und weitere amtliche Genehmigungen | 2.000,00 € | pausch. | 1 | 2.000,00 € |
-----
Kostengruppe Baubegleitende Kosten:
| Gerüstaufbau und Verleih | 30,00 € | m² | 156 | 4.680,00 € |
| Baustraße / Vorbereitungen Schotterfläche vorm Haus | 5.000,00 € | pausch. | 1 | 5.000,00 € |
| WC, Allgemeine Einrichtungen | 1.000,00 € | pausch. | 1 | 1.000,00 € |
| Baustromversorgung | 500,00 € | pausch. | 1 | 500,00€ |
In Summe sind das in Summe ca. 540.000 € inkl. aller oben aufgeführten Kostenpositionen und den bereits angefallenen Entsorgungskosten. Die Erdarbeiten sind recht kleinteilig aber bereits in einigen Positionen enthalten. Hier haben wir aber auch Zugang zu einem Minibagger und einem Gala-Bauer, der das günstig macht. Auf Grund des großen Grundstücks lässt sich viel vom Erdreich im Garten für Rasenflächenuntergründe wieder verwerten.
Die Ausführungsplanung erfolgt durch die Architektin auf Stundenbasis wo notwendig (alles was die Statik und die Dichtigkeit betrifft). Den Rest sollen die Gewerke oder wird selbst geplant. Die Bauleitung (und die Abstimmung der Ausführungsplanung) erfolgt durch den Nachbarn, mit dem wir gut befreundet sind und der auch beruflich Bauleiter ist.
Das Haus gehört bereits uns und ist daher Teil des Eigenkapitals. Das Haus hat später (inkl. anrechenbaren Balkonflächen) eine Wohn- und Nutzfläche von 156 m², es ergeben sich also ca. 3.400 € / m² Baukosten.
Was ist eure Einschätzung zu den geplanten Arbeiten? Passt das in etwa oder liege ich an der einen oder anderen Stelle deutlich unter / über euren Kostenschätzungen. Angehängt findet ihr die aktuellen Entwürfe, an denen jetzt noch ein wenig Detailarbeit stattfindet. Danach geht das so in die Genehmigung, deren Bauvoranfrage schon positiv beschieden wurde.
Vielen Dank für das Lesen und (wenn ihr Lust habt) beantworten. Ich bin für jeden Tipp dankbar und freue mich auf eure Rückfragen.
Beste Grüße!
N
nordanney23.02.25 17:17Als Summe sollte das gut passen. Dafür könntest Du aber auch neu bauen - wenn Du es dürftest.
Solltest Du an Eigenleistungen denken, sind noch deutliche Einsparungen möglich bzw. es sind sinnlose Positionen dabei. Sinnlos weil unnötig.
Beispiele:
- Verlegung Fußbodenheizung in Eigenleistung
- Statt Warmwasser-Wärmepumpe bitte WW-Bereitung über Wärmepumpe
- 5kWp Photovoltaikanlage geplant zu den Kosten ein größeren Anlage (dafür ein Speicher dabei, der den gespeicherten Strom extrem teuer macht)
- Bodenbeläge inkl. Verlegung viel zu günstig
- Schiebetüren überdenke (die stehen eh meist offen und dann reicht auch ein Durchgang)
Solltest Du an Eigenleistungen denken, sind noch deutliche Einsparungen möglich bzw. es sind sinnlose Positionen dabei. Sinnlos weil unnötig.
Beispiele:
- Verlegung Fußbodenheizung in Eigenleistung
- Statt Warmwasser-Wärmepumpe bitte WW-Bereitung über Wärmepumpe
- 5kWp Photovoltaikanlage geplant zu den Kosten ein größeren Anlage (dafür ein Speicher dabei, der den gespeicherten Strom extrem teuer macht)
- Bodenbeläge inkl. Verlegung viel zu günstig
- Schiebetüren überdenke (die stehen eh meist offen und dann reicht auch ein Durchgang)
Finde das Projekt megainteressant. Ein Freund von mir hat ein Haus ähnlichen Alters aber keine Hanglage für etwa 500.000 kernsaniert. Alles in Allem sieht deine Berechnung solide aus. Ein paar Gewerke kommen mir auch zu hoch eingeschätzt vor, zB Fußbodenheizung, Estrich und Wärmepumpe. Aber es ist gut etwas Luft zu haben da immer unvorhergesehene Dinge kommen.
Jo danke für die schnellen Antworten!
Ja stimmt, aber ich glaube daran möchte ich nicht sparen wegen Gewährleistung.
Hmm weiß nicht, habe viel positives über Warmwasser-Wärmepumpe gelesen, aber ich lass mich da nochmal von einem Heizi beraten.
Stimmt, sehe auch gerade, dass ich die Kosten dafür nicht geändert habe. Danke für den Hinweis.
Bis auf die Fliesen alles in Eigenleistung. Nur das EG und die Bäder sollen gefliest werden, der Rest wird mit Laminat in EL gemacht.
Stimmt bei zwei Türen gehe ich das mit. Bei der Tür zwischen Schlafzimmer und Bad wäre eine Tür wohl gut.
Dann halte ich euch hier mal auf dem Laufenden.
nordanney schrieb:
- Verlegung Fußbodenheizung in Eigenleistung
Ja stimmt, aber ich glaube daran möchte ich nicht sparen wegen Gewährleistung.
nordanney schrieb:
- Statt Warmwasser-Wärmepumpe bitte WW-Bereitung über Wärmepumpe
Hmm weiß nicht, habe viel positives über Warmwasser-Wärmepumpe gelesen, aber ich lass mich da nochmal von einem Heizi beraten.
nordanney schrieb:
- 5kWp Photovoltaikanlage geplant zu den Kosten ein größeren Anlage (dafür ein Speicher dabei, der den gespeicherten Strom extrem teuer macht)
- Bodenbeläge inkl. Verlegung viel zu günstig
Stimmt, sehe auch gerade, dass ich die Kosten dafür nicht geändert habe. Danke für den Hinweis.
nordanney schrieb:
- Bodenbeläge inkl. Verlegung viel zu günstig
Bis auf die Fliesen alles in Eigenleistung. Nur das EG und die Bäder sollen gefliest werden, der Rest wird mit Laminat in EL gemacht.
nordanney schrieb:
- Schiebetüren überdenke (die stehen eh meist offen und dann reicht auch ein Durchgang)
Stimmt bei zwei Türen gehe ich das mit. Bei der Tür zwischen Schlafzimmer und Bad wäre eine Tür wohl gut.
heaaat_ schrieb:
Finde das Projekt megainteressant.
Dann halte ich euch hier mal auf dem Laufenden.
N
nordanney23.02.25 18:173601487 schrieb:
Ja stimmt, aber ich glaube daran möchte ich nicht sparen wegen Gewährleistung.Fast jeder Sanitär bietet Dir an, dass Du selbst verlegst und übernimmt die Gewährleistung. Ist ja auch kein Problem, da die Rohre am Heizkreisverteiler anfangen und enden und abgedrückt werden können.3601487 schrieb:
Hmm weiß nicht, habe viel positives über Warmwasser-Wärmepumpe gelesen, aber ich lass mich da nochmal von einem Heizi beraten.Sind halt Wärmepumpen. Nicht mehr und nicht weniger. Warum zwei Wärmepumpen? Doppelte Kosten. Jeder Heizungsbau in einer halbwegs normalen Situation schreckt davor zurück, weil es außer Kosten keinen Sinn erbringt. Und jede normale WP ist extra dafür vorgesehen, auch WW zu bereiten.Lass Dich gerne beraten.
3601487 schrieb:
Bis auf die Fliesen alles in Eigenleistung. Nur das EG und die Bäder sollen gefliest werden, der Rest wird mit Laminat in EL gemacht.Dann passt das. Aber tu mir einen Gefallen, und leg Dir kein Plastik ins Haus. Das ist - nicht böse gemeint - Mietwohnungssozialbauniveau. Für die Materialkosten bekommst Du schon fast Parkett, wenn Du ein wenig schaust.P.S. Habe mein 60er Jahre Haus im Flachland mit fast 95% in Eigenleistung saniert. Tipps dazu gerne bei Bedarf.
nordanney schrieb:
Fast jeder Sanitär bietet Dir an, dass Du selbst verlegst und übernimmt die Gewährleistung. Ist ja auch kein Problem, da die Rohre am HKV anfangen und enden und abgedrückt werden können.Okay, dann kommt das tatsächlich in Frage.
nordanney schrieb:
Sind halt Wärmepumpen. Nicht mehr und nicht weniger. Warum zwei Wärmepumpen?Wegen der sehr kleinen Photovoltaikanlage. Mit der kann ich zumindest die Warmwasser-Bereitung komplett fahren und den Warmwasser-Speicher dann als zusätzlichen Energiespeicher fahren. Aber stimmt schon, was du da sagst, ich denke da ist noch einiges an Feinplanung nötig.
nordanney schrieb:
und leg Dir kein Plastik ins Haus. Das ist - nicht böse gemeint - Mietwohnungssozialbauniveau.Stimmt, aber da bin ich ja auch noch flexibel. Mit den Kosten ist das dann drin, die Entscheidung für einen Bodenbelag fällt dann ja eh ein wenig später.
nordanney schrieb:
Tipps dazu gerne bei Bedarf.Oh ja gerne Erfahrungen sind immer Gold wert.
Mir ging es hier vor allem um die "großen" Vorhaben Kellerunterfangung/Bodenplatte, WDVS/Perimeterdämmung, Heizung und Dach. Wenn diese Punkte schonmal halbwegs passen ist der Rest OK. Ein bisschen Reserve ist ja auch noch auf dem Konto.
Ähnliche Themen