Die Gemeinde hat noch mal ein paar Klarstellungen zum Bebauungsplan gemacht und nun sind wir doch soweit, dass wir keinen Keller brauchen. Das Haus ist unseres Erachtens auch groß genug geplant und hat ausreichend Stellfächen (HAR, Hauswirtschaftsraum, Arbeitszimmer, Ankleide), so dass Keller oder Dachbodenausbau nicht notwendig sind. Klar, es wird eine bodeneinschubtreppe geben und oben Rauspund (oder ESB-Platten).
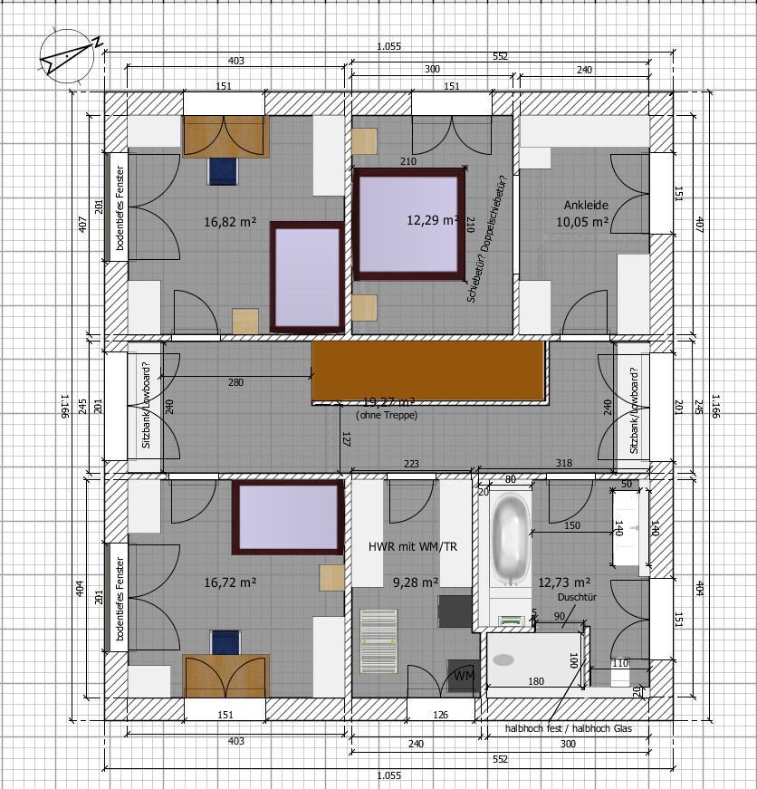
Grundrisse:
Ansichten (stark vereinfacht):
Grundstück:
Man stelle sich bitte die Fenster Basaltgrau (RAL 7012) vor. Sockelputz wird es geben, für eine Fassadenfarbe oder auch -Farben haben wir uns noch nicht entschieden.
Wie wir den Eingang zum Wohnzimmer machen, das ist auch noch nicht final. Ob dort eine normale Tür, eine einfach Zarge ohne Tür oder eine Schiebetür hin kommt. Flurtür steht bei uns fast immer offen, von daher...
Das Grundstück ist knapp 600qm groß und wir dürfen nach Grundflächenzahl-1 etwa 210qm überbauen und nach Grundflächenzahl-2 etwa 270qm überbauen. 2 Stellplätze müssen nachgewiesen werden, aber es gibt auch nur ein Auto. Das Dach ist, wie man sieht und wie vom Bebauungsplan gefordert, ein Walmdach mit gewisser Mindestlänge beim Dachfirst.
Wir sind zu dritt, irgendwann mal sicher zu viert - daher 2 Kinderzimmer. Wir wollten das Arbeitszimmer/PC-Zimmer unbedingt im EG. Es wird einen Hauswirtschaftsraum im OG geben (gebügelt wird aber selten/wenig; Hauswirtschaftsraum also für Waschen, Trocken und Abstellraum). Das Arbeitszimmer im EG taugt dann auch mal als Gästezimmer (Tisch rüber schieben; Couch aufklappen oder Aufblasmatratze hinstellen).
Im Wohnzimmer könnte die Couch übrigens auch um 180 Grad gedreht werden und der Fernseher zwischen den beiden Fenstern angeordnet werden - es sind dort knapp 2 Meter Platz. Wir werden entsprechende Kabel und Strom an beiden Stellen vorsehen.
Die Theke in der Küche ist auch etwas optischer Raumtrenner. Die Spüle vor dem Fenster ist großer Wunsch meiner Frau. Dass das Fenster evtl. dann nur zu kippen geht, ist klar. Die Brüstungshöhe sollte harmonieren, darauf werden wir achten. Es ist eine Kontrollierte-Wohnraumlüftung geplant (KFW55 geplant), daher müssen Fenster auch nicht unbedingt zu öffnen sein (schon gar nicht jedes). Da es anscheinend möglich ist, wird es wohl auch eine Dunstabzugshaube und keine Umlufthaube. Die Luft wird dann über den Fußbodenaufbau des OG geführt.
Wir würden gerne mit 42,5 Porenbeton als Außenwand und Kalksandstein für das Innenmauerwerk bauen. Selbstverständlich gibt es eine massive Zwischendecke aus Stahlbeton - Schallschutz sollte daher ok sein. Also vor allem der Schallschutz intern, nach draußen gibt es nicht so viel zu beachten.
Der Tisch in der Darstellung soll schon einen eventuellen, ausgezogenen Zustand symbolisieren. Also etwa 2 Meter für 4 Personen (1 Meter pro Person ist recht großzügig). Der ausgezogene Tisch hat sicher in der abgebildeten Größe Platz für 8-10 Personen und ließe sich weiter verlängern.
Die Garderobe ist mit ca. 2 Metern geplant, zusätzlich wird es noch Platz unter der Treppe geben. Diese Treppe ist im Wohnzimmer NICHT sichtbar, da von der Höhe bereits oberhalb der Unterkante Rohdecke. Wir planen ein leicht erhöhtes EG (etwa 2,67cm lichte Höhe von Fertigfußboden bis Decke). Die Treppe daher etwa bei 17,5 bis 18,0 in der Steigung und Auftritt geplant mit 27cm. Uns wurde gesagt, so etwas wäre schon sehr flach für ein Einfamilienhaus? Klar, bei EFHs baut man eher steiler, aber doch eher meistens aus der Not heraus?
Im HAR an Haustechnik vermutlich die Inneneinheit der Luft-Wasser-Wärmepumpe (direkt kombiniert mit integriertem Hygiene-Speicher) sowie die Kontrollierte-Wohnraumlüftung und das übliche Drumherum (Wasserfilter; Druckminderer; Sicherungskasten; Stromzähler; ...). Der Rest wäre Stauraum, evtl. sogar für Gartensachen erst mal, da vermutlich Platz da ist und direkt neben der Haustür.
Wir haben jetzt auch mal die Kinderzimmer möbliert mit 160cm-Tisch plus Stuhl und 210x140-Bett plus Nachttisch und Stauraum/Schrankmöglichkeiten. Ich denke/hoffe es passt so.
Für das Treppengeländer im OG könnte ich mir gut so eine geschlossene Lösung vorstellen - was ist das normalerweise? Trockenbau, oder? Also eine weiße, halbhohe Wand mit Geländer darüber.
Das Bad braucht vielleicht noch mal einen Screenshot zum besseren Verständnis:
Die Wanne wird also vorne, hinten und seitlich ein wenig mit Trockenbau und Fliesen eingebaut als Ablagefläche. Die Dusche bekommt eine sehr große Duschtasse (180x100; wir hatten an so etwas wie Kaldewei Conoflat gedacht; dazu eine Regendusche von Hansgrohe), wobei es trotzdem eine Duschabtrennung geben soll. An der Wand zur Toilette wird diese unten abgetrennt durch eine halbhohe Wand und daher nicht sichtbar von der Dusche. Oberhalb soll es dann mit Glas weitergehen. Beim Waschtisch wird es vermutlich so etwas wie Pelipal Cassca werden, gefällt uns einfach besser als Keramik. Dazu ein Spiegel, kein Spiegelschrank. Man hätte jetzt zwischen Dusche und Badewanne etwas Platz lassen können, aber nicht viel. Also haben wir uns gedacht, wir machen es zu und der Handtuchheizkörper kommt einfach darüber (also ist er auch in der Nähe von Badewanne und Dusche). Hinter Dusche und WC gibt es eine Vorwandinstallation (halbhoch oder ganzhoch - müsste man sich noch überlegen) und dort wird dann auch der Anschluss der Waschmaschine geführt (also vor allem das Abwasser).
Zwischen Ankleide und Schlafzimmer vermutlich eine Art Doppelschiebetür in der Wand. Unter dem Fenster, jetzt nicht eingezeichnet, wäre ja z.B. noch Platz für einen Schminktisch. Die Ankleide ist nicht übermäßig groß (eingezeichnet sind knapp über 5 Meter Schrankfläche mit je 60cm Tiefe), aber Sachen welche jetzt im Schlafzimmer lagern wie Bettwäsche, Handtücher oder "diverses" wird ja dann in den Hauswirtschaftsraum verfrachtet, so dass dort die Klamotten für den täglichen Bedarf Platz finden und sonst im Prinzip nichts weiter.
ach ja, man könnte etwa in der linken, unteren Ecke des Arbeitszimmers einen Schornstein einbauen und dieser würde dann in der linken, unteren Ecke des Schlafzimmers weiter gehen. Dann könnten wir etwa im Bereich unter der Treppe einen Kamin einbauen. Würde wohl schon passen und klar, geschenkt würden wir ihn nehmen. Aber ob es uns das Wert ist, wissen wir nicht (4.000 EUR Schornstein; 6.000 EUR Kamin; weiterer Aufwand evtl. wegen Kontrollierte-Wohnraumlüftung und Dunstabzugshaube). Evtl. auch erst mal nur sicherheitshalber den Schornstein setzen, wobei ich gelesen haben, dass selbst dieser in einem fertigen Haus innerhalb 1-2 Tage nachgerüstet ist. Es muss halt der Platz da sein.
Ähm ja, Verbesserungsvorschläge sind willkommen. Es sind übrigens etwa 189qm. Die Ideen sind jetzt auch nicht völlig aus der Luft gegriffen. Im Prinzip gibt es ähnliches beim Rensch-Haus im Prospekt "Innovation R" unter R2.
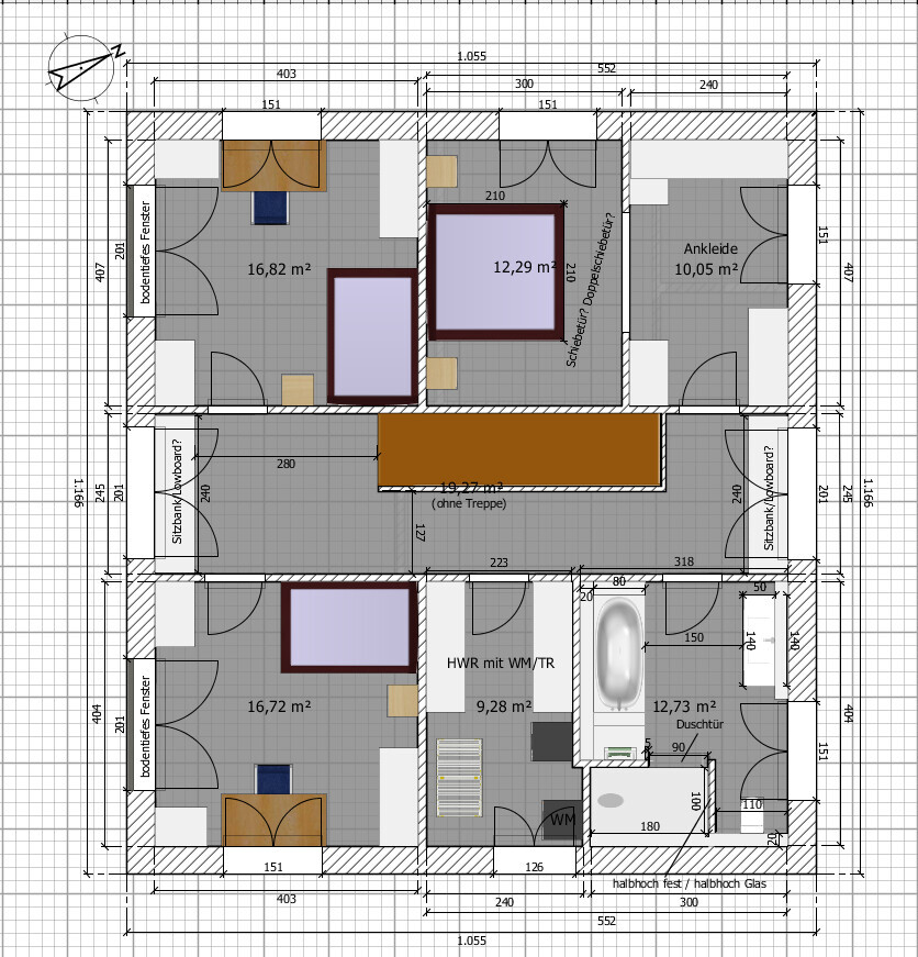
Grundrisse:
Ansichten (stark vereinfacht):
Grundstück:
Man stelle sich bitte die Fenster Basaltgrau (RAL 7012) vor. Sockelputz wird es geben, für eine Fassadenfarbe oder auch -Farben haben wir uns noch nicht entschieden.
Wie wir den Eingang zum Wohnzimmer machen, das ist auch noch nicht final. Ob dort eine normale Tür, eine einfach Zarge ohne Tür oder eine Schiebetür hin kommt. Flurtür steht bei uns fast immer offen, von daher...
Das Grundstück ist knapp 600qm groß und wir dürfen nach Grundflächenzahl-1 etwa 210qm überbauen und nach Grundflächenzahl-2 etwa 270qm überbauen. 2 Stellplätze müssen nachgewiesen werden, aber es gibt auch nur ein Auto. Das Dach ist, wie man sieht und wie vom Bebauungsplan gefordert, ein Walmdach mit gewisser Mindestlänge beim Dachfirst.
Wir sind zu dritt, irgendwann mal sicher zu viert - daher 2 Kinderzimmer. Wir wollten das Arbeitszimmer/PC-Zimmer unbedingt im EG. Es wird einen Hauswirtschaftsraum im OG geben (gebügelt wird aber selten/wenig; Hauswirtschaftsraum also für Waschen, Trocken und Abstellraum). Das Arbeitszimmer im EG taugt dann auch mal als Gästezimmer (Tisch rüber schieben; Couch aufklappen oder Aufblasmatratze hinstellen).
Im Wohnzimmer könnte die Couch übrigens auch um 180 Grad gedreht werden und der Fernseher zwischen den beiden Fenstern angeordnet werden - es sind dort knapp 2 Meter Platz. Wir werden entsprechende Kabel und Strom an beiden Stellen vorsehen.
Die Theke in der Küche ist auch etwas optischer Raumtrenner. Die Spüle vor dem Fenster ist großer Wunsch meiner Frau. Dass das Fenster evtl. dann nur zu kippen geht, ist klar. Die Brüstungshöhe sollte harmonieren, darauf werden wir achten. Es ist eine Kontrollierte-Wohnraumlüftung geplant (KFW55 geplant), daher müssen Fenster auch nicht unbedingt zu öffnen sein (schon gar nicht jedes). Da es anscheinend möglich ist, wird es wohl auch eine Dunstabzugshaube und keine Umlufthaube. Die Luft wird dann über den Fußbodenaufbau des OG geführt.
Wir würden gerne mit 42,5 Porenbeton als Außenwand und Kalksandstein für das Innenmauerwerk bauen. Selbstverständlich gibt es eine massive Zwischendecke aus Stahlbeton - Schallschutz sollte daher ok sein. Also vor allem der Schallschutz intern, nach draußen gibt es nicht so viel zu beachten.
Der Tisch in der Darstellung soll schon einen eventuellen, ausgezogenen Zustand symbolisieren. Also etwa 2 Meter für 4 Personen (1 Meter pro Person ist recht großzügig). Der ausgezogene Tisch hat sicher in der abgebildeten Größe Platz für 8-10 Personen und ließe sich weiter verlängern.
Die Garderobe ist mit ca. 2 Metern geplant, zusätzlich wird es noch Platz unter der Treppe geben. Diese Treppe ist im Wohnzimmer NICHT sichtbar, da von der Höhe bereits oberhalb der Unterkante Rohdecke. Wir planen ein leicht erhöhtes EG (etwa 2,67cm lichte Höhe von Fertigfußboden bis Decke). Die Treppe daher etwa bei 17,5 bis 18,0 in der Steigung und Auftritt geplant mit 27cm. Uns wurde gesagt, so etwas wäre schon sehr flach für ein Einfamilienhaus? Klar, bei EFHs baut man eher steiler, aber doch eher meistens aus der Not heraus?
Im HAR an Haustechnik vermutlich die Inneneinheit der Luft-Wasser-Wärmepumpe (direkt kombiniert mit integriertem Hygiene-Speicher) sowie die Kontrollierte-Wohnraumlüftung und das übliche Drumherum (Wasserfilter; Druckminderer; Sicherungskasten; Stromzähler; ...). Der Rest wäre Stauraum, evtl. sogar für Gartensachen erst mal, da vermutlich Platz da ist und direkt neben der Haustür.
Wir haben jetzt auch mal die Kinderzimmer möbliert mit 160cm-Tisch plus Stuhl und 210x140-Bett plus Nachttisch und Stauraum/Schrankmöglichkeiten. Ich denke/hoffe es passt so.
Für das Treppengeländer im OG könnte ich mir gut so eine geschlossene Lösung vorstellen - was ist das normalerweise? Trockenbau, oder? Also eine weiße, halbhohe Wand mit Geländer darüber.
Das Bad braucht vielleicht noch mal einen Screenshot zum besseren Verständnis:
Die Wanne wird also vorne, hinten und seitlich ein wenig mit Trockenbau und Fliesen eingebaut als Ablagefläche. Die Dusche bekommt eine sehr große Duschtasse (180x100; wir hatten an so etwas wie Kaldewei Conoflat gedacht; dazu eine Regendusche von Hansgrohe), wobei es trotzdem eine Duschabtrennung geben soll. An der Wand zur Toilette wird diese unten abgetrennt durch eine halbhohe Wand und daher nicht sichtbar von der Dusche. Oberhalb soll es dann mit Glas weitergehen. Beim Waschtisch wird es vermutlich so etwas wie Pelipal Cassca werden, gefällt uns einfach besser als Keramik. Dazu ein Spiegel, kein Spiegelschrank. Man hätte jetzt zwischen Dusche und Badewanne etwas Platz lassen können, aber nicht viel. Also haben wir uns gedacht, wir machen es zu und der Handtuchheizkörper kommt einfach darüber (also ist er auch in der Nähe von Badewanne und Dusche). Hinter Dusche und WC gibt es eine Vorwandinstallation (halbhoch oder ganzhoch - müsste man sich noch überlegen) und dort wird dann auch der Anschluss der Waschmaschine geführt (also vor allem das Abwasser).
Zwischen Ankleide und Schlafzimmer vermutlich eine Art Doppelschiebetür in der Wand. Unter dem Fenster, jetzt nicht eingezeichnet, wäre ja z.B. noch Platz für einen Schminktisch. Die Ankleide ist nicht übermäßig groß (eingezeichnet sind knapp über 5 Meter Schrankfläche mit je 60cm Tiefe), aber Sachen welche jetzt im Schlafzimmer lagern wie Bettwäsche, Handtücher oder "diverses" wird ja dann in den Hauswirtschaftsraum verfrachtet, so dass dort die Klamotten für den täglichen Bedarf Platz finden und sonst im Prinzip nichts weiter.
ach ja, man könnte etwa in der linken, unteren Ecke des Arbeitszimmers einen Schornstein einbauen und dieser würde dann in der linken, unteren Ecke des Schlafzimmers weiter gehen. Dann könnten wir etwa im Bereich unter der Treppe einen Kamin einbauen. Würde wohl schon passen und klar, geschenkt würden wir ihn nehmen. Aber ob es uns das Wert ist, wissen wir nicht (4.000 EUR Schornstein; 6.000 EUR Kamin; weiterer Aufwand evtl. wegen Kontrollierte-Wohnraumlüftung und Dunstabzugshaube). Evtl. auch erst mal nur sicherheitshalber den Schornstein setzen, wobei ich gelesen haben, dass selbst dieser in einem fertigen Haus innerhalb 1-2 Tage nachgerüstet ist. Es muss halt der Platz da sein.
Ähm ja, Verbesserungsvorschläge sind willkommen. Es sind übrigens etwa 189qm. Die Ideen sind jetzt auch nicht völlig aus der Luft gegriffen. Im Prinzip gibt es ähnliches beim Rensch-Haus im Prospekt "Innovation R" unter R2.
T
toxicmolotof19.08.16 21:18Ich sehe vor allem 24qm Verkehrsfläche. Es gibt Menschen, die leben auf so viel Raum.
... 2 oder 3 Anmerkungen von mir.
Deine Frau soll sich mal überlegen, ob es nicht sinnvoller ist, Arbeitsfläche vorm Fenster zu haben um beim Arbeiten herausgucken zu können. Soviel direkt an der Spüle macht man ja nicht.
Zu Kochinseln habe ich die bekannte Meinung .. lieber Vorbereitungshalbinsel ... aber, das ist halt Geschmackssache.
Bad-OG .. finde ich gut mit der Dusche, die Duschtür
würde ich allerdings links anschlagen und nach innen öffnen lassen. Dann hat man die Tropferei nicht vor der Dusche.
Im Schlafzimmer die Lösung mit dem großen Zugangsloch in der Mitte würde mir nicht gefallen. Ich würde das Fenster der Ankleide planoben setzen, zumindest aber die Tür in den Schlafraum gleich nach planunten in die Ecke.
Und mir persönlich wären die Fenster viel zu gleichmäßig verteilt, fast schon ein bisschen langweilig.
Und eigentlich müsstest du zum Vergleich mal deinen ersten Grundriss danebenstellen .
Deine Frau soll sich mal überlegen, ob es nicht sinnvoller ist, Arbeitsfläche vorm Fenster zu haben um beim Arbeiten herausgucken zu können. Soviel direkt an der Spüle macht man ja nicht.
Zu Kochinseln habe ich die bekannte Meinung .. lieber Vorbereitungshalbinsel ... aber, das ist halt Geschmackssache.
Bad-OG .. finde ich gut mit der Dusche, die Duschtür
würde ich allerdings links anschlagen und nach innen öffnen lassen. Dann hat man die Tropferei nicht vor der Dusche.
Im Schlafzimmer die Lösung mit dem großen Zugangsloch in der Mitte würde mir nicht gefallen. Ich würde das Fenster der Ankleide planoben setzen, zumindest aber die Tür in den Schlafraum gleich nach planunten in die Ecke.
Und mir persönlich wären die Fenster viel zu gleichmäßig verteilt, fast schon ein bisschen langweilig.
Und eigentlich müsstest du zum Vergleich mal deinen ersten Grundriss danebenstellen .
D
daniels8720.08.16 08:11Ich finde den gut.
Ähnliche Themen