kaho674 schrieb:
Oder vielleicht sowas:
[ATTACH alt="mit ELW-EG.jpg"]39704[/ATTACH]
[ATTACH alt="mit ELW-OG.jpg"]39703[/ATTACH]Besten Dank Katja, das sieht auch gut aus
Ich werde das mal meinem Architekt zeigen, Wohn Ess und Küche tzu Terrasse finde ich Klasse bei dem.
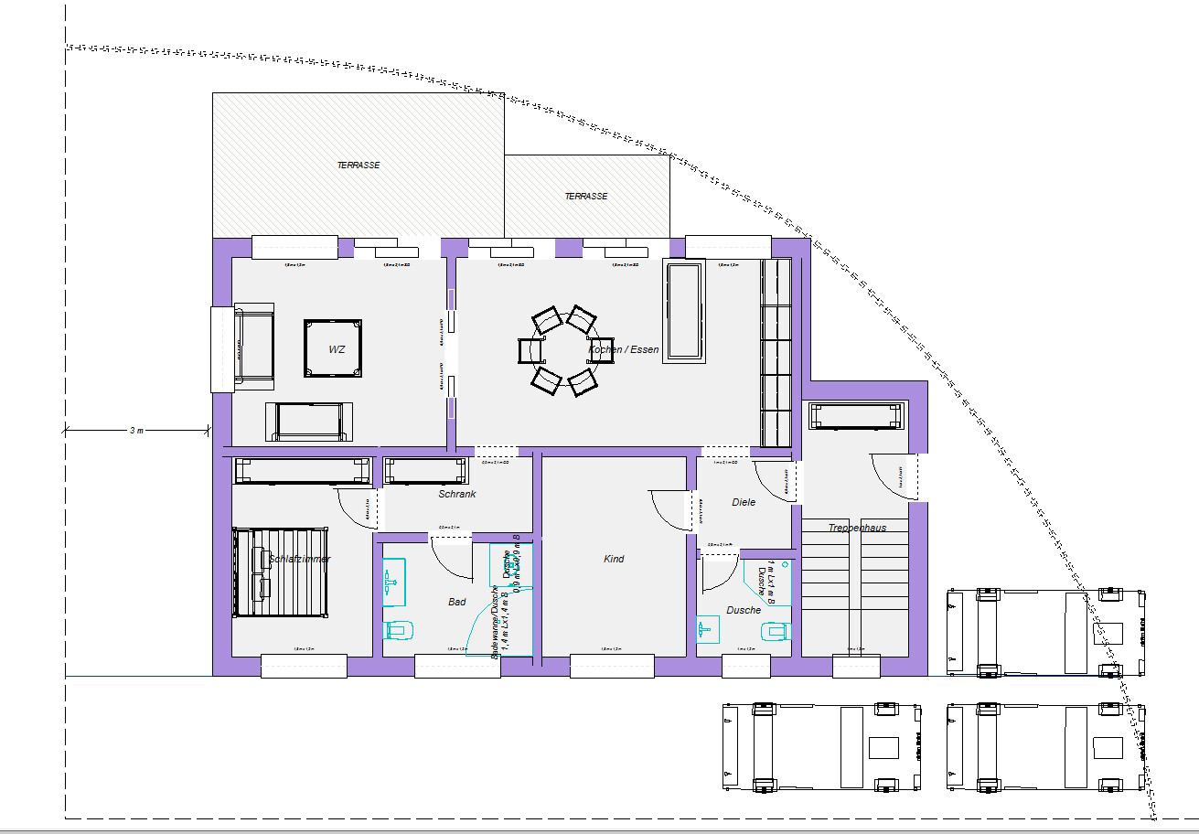
Mein Architekt hat auch wieder ein neuen Entwurf präsentiert, zeige ich dir gleich mal, aber dabei beim alten Muster geblieben ;D
LG und besten dank für deine Unterstützung, ich berichte späöter mal von der Integration, wie der Architekt damit umgeht
Kann mich leider nicht dafür erwärmen. Was sollen denn die Fenster zur Garage? Oder soll das ein Carport sein? Wieso der Eingang im Westen? Das WC des Hauptbades ist irre laut im Kinderzimmer. Wichtig wäre ja auch immer zu wissen, wie viel vom Grundstück noch übrig ist. Also der Süden muss komplett inkl. Terrasse dargestellt werden für eine Entwurfsdiskussion. Ebenso alle Stellplatzmöglichkeiten. Oder wird es jetzt doch nur ein Bungalow mit Keller für eine Familie?
Ich bin immer noch bei #12 als Favorit, wenn Ihr für Euch ein Haus baut und nicht feststeht, wer da sonst noch wohnen könnte.
Soll es unbedingt ein Zweifamilienhaus werden, musst Du zuerst mal die Stellplätze vorweisen! Wo sollen die sonst alle parken?
Dafür würde ich mich von der Südfixierung lösen und auf Westterrasse gehen. Das ganze sähe dann etwa so aus
(OG identisch):

Ich bin immer noch bei #12 als Favorit, wenn Ihr für Euch ein Haus baut und nicht feststeht, wer da sonst noch wohnen könnte.
Soll es unbedingt ein Zweifamilienhaus werden, musst Du zuerst mal die Stellplätze vorweisen! Wo sollen die sonst alle parken?
Dafür würde ich mich von der Südfixierung lösen und auf Westterrasse gehen. Das ganze sähe dann etwa so aus
(OG identisch):
Zeichne gerade im Allraum einmal richtige Möbel ein, wie du sie dir kaufen willst oder hast.
Der Mini-Esstisch zeigt wieder mehr Platz als ist
Wo kommen die Stellplätze hin?
Hat das Elternbad keine Toilette?
Irgendwie ist der Entwurf ein bundes Sammelsurium. Altbackenes Elternbad dazu die Rundung die sich im Inneren nicht als Highlight spiegelt.
Baukosten, das es ein die Schuhe auszieht und wohnen tut man in einer langweiligen Etagenwohnung.
Wenn euch die Rundung gefällt und ihr die wollt, dann plant euer Haus auch so, dass im Inneren was davon zu spüren ist. Plant ein Haus für 1-2 Kinder oder 3 was ihr euch gerade vorstellt. Wenn es doch keine Kinder gibt, dann habt ihr ein großzügiges Haus für 2.
Ein Master-Schafzimmer mit Bad mit freistehender Wanne.
Ein Wohnzimmer dass die Rundung im Inneren hat.
Hier hat kürzlich jemand eine wahnsinniges Bad gepostet. Mit großer Glasfläche vor der Badewanne und Galerie. Es gibt so viele Möglichkeiten. Schau dich mal um bei Schöner Wohnen oder im nächsten Fertighauspark bei Huf und Co.
Du versenkst weit mehr als 500K ehr so 700 bis 800K das sollte sich im inneren wiederfinden
Der Mini-Esstisch zeigt wieder mehr Platz als ist
Wo kommen die Stellplätze hin?
Hat das Elternbad keine Toilette?
Irgendwie ist der Entwurf ein bundes Sammelsurium. Altbackenes Elternbad dazu die Rundung die sich im Inneren nicht als Highlight spiegelt.
Baukosten, das es ein die Schuhe auszieht und wohnen tut man in einer langweiligen Etagenwohnung.
Wenn euch die Rundung gefällt und ihr die wollt, dann plant euer Haus auch so, dass im Inneren was davon zu spüren ist. Plant ein Haus für 1-2 Kinder oder 3 was ihr euch gerade vorstellt. Wenn es doch keine Kinder gibt, dann habt ihr ein großzügiges Haus für 2.
Ein Master-Schafzimmer mit Bad mit freistehender Wanne.
Ein Wohnzimmer dass die Rundung im Inneren hat.
Hier hat kürzlich jemand eine wahnsinniges Bad gepostet. Mit großer Glasfläche vor der Badewanne und Galerie. Es gibt so viele Möglichkeiten. Schau dich mal um bei Schöner Wohnen oder im nächsten Fertighauspark bei Huf und Co.
Du versenkst weit mehr als 500K ehr so 700 bis 800K das sollte sich im inneren wiederfinden
Serdar88 schrieb:
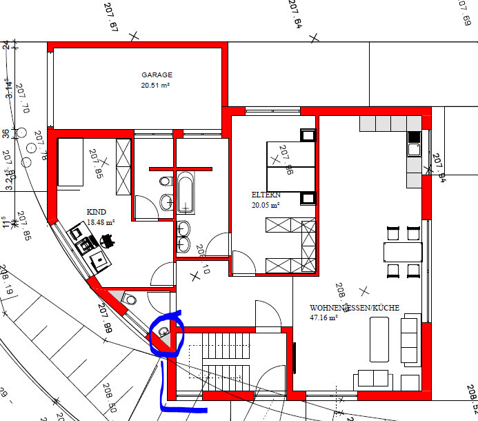
Mein Architekt hat auch wieder ein neuen Entwurf präsentiert, zeige ich dir gleich mal, aber dabei beim alten Muster gebliebenDa fehlt ein "s". Ich finde es auch g**l, beim Duschen auf den Lamborghini zu schauen - allerdings nicht von der Seite. Und ich muß @haydee zustimmen: wenn man schon die Mörderkohle für die Rundung raushaut, dann gehört sie auch prominent integriert. Theoretisch würde in den Viertelkreis eine Maisonette-Wohnküche mit Sitzeckengalerie gehören, wenn der Teufel nicht im Detail läge, daß das Ding an der Nordseite im Hinblick auf eine zweigeschoßhohe Verglasung energetisch nicht der Burner wäre.https://www.instagram.com/11antgmxde/
https://www.linkedin.com/company/bauen-jetzt/
Ähnliche Themen