Liebe Bau-Fans
Habe mich im Forum umgesehen, aber die Kombination der Schwierigkeiten – und Chancen – scheint es nicht so oft zu geben. Ich zermartere mir seit Monaten (!) das Hirn, vielleicht habt Ihr Hinweise und Ideen… Ich versuche, mich kurz zu halten, aber es ist echt kompliziert! (Ganz am Ende eine Zeichnung)
Ort:
Ich habe mich in ein Grundstück in Bremen in der Nähe des Weser-Deichs verguckt. Es ist in der Stadt gelegen, die Bebauung eng. Das Grundstück lang und schmal (10 m, insges. 800 qm). Nachbarbebauung eng und hoch (2 geschossig + Dach). Ich habe das Grundstück gekauft, wahrscheinlich war es ein Fehler, aber nun habe ich es und ich möchte es auch behalten. Ich mag den Gedanken nicht aufgeben, dass es eine kluge und bezahlbare Lösung gibt...

Lage: Am Hang!
Nordost = Weser, dann große Grünfläche, dann schmale Straße, mein langes Grundstück, Garten nach Südwest. Durch die Hang-Lage ist der Garten ca. ein Geschoss tiefer als die Straßenlage!
Noch steht hier ein altes, baufälliges Haus (es rutscht zum Garten hin ab, Nachkriegsgebäude, weicher Baugrund…) deshalb muss ich es abreißen, Sanieren lohnt nicht.
Bebauungsplan-Vorgaben:
Ich darf recht tief in das Grundstück hineinbauen.
Seitlich zu den Nachbarn muss ich entweder 3 m Abstand halten (dann sind Fenster möglich, aber Haus schmal) oder Brandschutzwände ohne Fenster bauen. Mit Brandschutzwand wäre der Abstand zu den Nachbarn relativ beliebig. Eigentlich ist sogar „geschossene“ Bebauung vorgeschrieben, also bis an die Nachbarn dran, aber es gibt viele „Dom“-Wege in die Gärten, ich dürfte das auch. Und einen solchen Weg hätte ich gern.
Hier zu sehen das Bestandsgebäude in Türkis

Weiteres Problem:
Das „Abrisshaus“ ist sehr weit zurück platziert, mit riesigem Vorgarten. Der Nachbar rechter Hand hat sich auf Höhe meines Vorgartens eine senkrechte Reihe Fenster eingebaut. Vielleicht nicht legal, aber ich mag mich nicht mit ihm anlegen und würde gerne eine Lösung finden, die auch ihn einigermaßen zufrieden sein lässt. D. h. seine Fenster möglichst nicht zubauen.
Hausform & Überlegungen:
Platzbedarf: ca. 100 m², ein bis zwei Personen-Haushalt
Grundstücksbreite: 10,50 m. Minus Fußweg in den Garten bleiben 9 Meter
Bei 7,50 Meter Hausbreite dürfte ich Fenster an einer Seite haben.
Das Grundstück macht noch einen "Knick", wäre ja auch zu einfach sonst...
Bin 50 möchte/muss barrierefrei bauen. Da bietet sich ein Bungalow an. Mein Grundstück ist groß genug, aber hauptsächlich lang. Wenn seitlich keine Fenster erlaubt sind, muss anders Licht ins Gebäude – aber wie??
Schöner Blick: Vom EG aus kann man „nur“ den oberen Teil des Deichs und die Bäume hinter der Straße in Richtung Fluss sehen. Von einem OG aus hätte man vermutlich einen sehr schönen Blick auf die Weser. (Also Bungalow mit Turm?
Ich habe auch mit einer Einliegerwohnung zur Vermietung geliebäugelt, aber bis sich die Mehrkosten für den zusätzlichen Platzbedarf amortisieren bin ich wohl sehr alt...
Keller:
War natürlich mein erster Gedanke, denn unten hätte man tollen Wohnraum direkt in den Garten. Die Fachleute warnen: Das wird teuer (60 T) wegen der engen Bebauung und dem uneinheitlichen Baugrund. Es sei günstiger, Erde aufzuschichten und ohne Keller zu bauen. (Kann das jemand bestätigen?). Dann hieße es, vom Wohnzimmer aus eine (Stelzen?)Terrasse zu bauen und von dort über eine Treppe nach unten in den Garten zu laufen.
Budget: Das Grundstück war kein Schnäppchen, ich rechne außerdem 20 T für den Abriss, die Gründung wird ebenfalls deutlich teurer als bei einem normalen Haus. Wenn der Bau bis Max. 200.000 möglich wäre, könnte es gehen.
Hier mein Versuch, einen Bungalow mit seitlichem Eingang über den Bebauungsplan zu legen. Der Eingang liegt weiter innen, sodass dort seitlich noch Fenster platziert werden können. (dachte ich mir)

Für Ideen und Hinweise wäre ich sehr dankbar!
Habe mich im Forum umgesehen, aber die Kombination der Schwierigkeiten – und Chancen – scheint es nicht so oft zu geben. Ich zermartere mir seit Monaten (!) das Hirn, vielleicht habt Ihr Hinweise und Ideen… Ich versuche, mich kurz zu halten, aber es ist echt kompliziert! (Ganz am Ende eine Zeichnung)
Ort:
Ich habe mich in ein Grundstück in Bremen in der Nähe des Weser-Deichs verguckt. Es ist in der Stadt gelegen, die Bebauung eng. Das Grundstück lang und schmal (10 m, insges. 800 qm). Nachbarbebauung eng und hoch (2 geschossig + Dach). Ich habe das Grundstück gekauft, wahrscheinlich war es ein Fehler, aber nun habe ich es und ich möchte es auch behalten. Ich mag den Gedanken nicht aufgeben, dass es eine kluge und bezahlbare Lösung gibt...
Lage: Am Hang!
Nordost = Weser, dann große Grünfläche, dann schmale Straße, mein langes Grundstück, Garten nach Südwest. Durch die Hang-Lage ist der Garten ca. ein Geschoss tiefer als die Straßenlage!
Noch steht hier ein altes, baufälliges Haus (es rutscht zum Garten hin ab, Nachkriegsgebäude, weicher Baugrund…) deshalb muss ich es abreißen, Sanieren lohnt nicht.
Bebauungsplan-Vorgaben:
Ich darf recht tief in das Grundstück hineinbauen.
Seitlich zu den Nachbarn muss ich entweder 3 m Abstand halten (dann sind Fenster möglich, aber Haus schmal) oder Brandschutzwände ohne Fenster bauen. Mit Brandschutzwand wäre der Abstand zu den Nachbarn relativ beliebig. Eigentlich ist sogar „geschossene“ Bebauung vorgeschrieben, also bis an die Nachbarn dran, aber es gibt viele „Dom“-Wege in die Gärten, ich dürfte das auch. Und einen solchen Weg hätte ich gern.
Hier zu sehen das Bestandsgebäude in Türkis
Weiteres Problem:
Das „Abrisshaus“ ist sehr weit zurück platziert, mit riesigem Vorgarten. Der Nachbar rechter Hand hat sich auf Höhe meines Vorgartens eine senkrechte Reihe Fenster eingebaut. Vielleicht nicht legal, aber ich mag mich nicht mit ihm anlegen und würde gerne eine Lösung finden, die auch ihn einigermaßen zufrieden sein lässt. D. h. seine Fenster möglichst nicht zubauen.
Hausform & Überlegungen:
Platzbedarf: ca. 100 m², ein bis zwei Personen-Haushalt
Grundstücksbreite: 10,50 m. Minus Fußweg in den Garten bleiben 9 Meter
Bei 7,50 Meter Hausbreite dürfte ich Fenster an einer Seite haben.
Das Grundstück macht noch einen "Knick", wäre ja auch zu einfach sonst...
Bin 50 möchte/muss barrierefrei bauen. Da bietet sich ein Bungalow an. Mein Grundstück ist groß genug, aber hauptsächlich lang. Wenn seitlich keine Fenster erlaubt sind, muss anders Licht ins Gebäude – aber wie??
Schöner Blick: Vom EG aus kann man „nur“ den oberen Teil des Deichs und die Bäume hinter der Straße in Richtung Fluss sehen. Von einem OG aus hätte man vermutlich einen sehr schönen Blick auf die Weser. (Also Bungalow mit Turm?
Ich habe auch mit einer Einliegerwohnung zur Vermietung geliebäugelt, aber bis sich die Mehrkosten für den zusätzlichen Platzbedarf amortisieren bin ich wohl sehr alt...
Keller:
War natürlich mein erster Gedanke, denn unten hätte man tollen Wohnraum direkt in den Garten. Die Fachleute warnen: Das wird teuer (60 T) wegen der engen Bebauung und dem uneinheitlichen Baugrund. Es sei günstiger, Erde aufzuschichten und ohne Keller zu bauen. (Kann das jemand bestätigen?). Dann hieße es, vom Wohnzimmer aus eine (Stelzen?)Terrasse zu bauen und von dort über eine Treppe nach unten in den Garten zu laufen.
Budget: Das Grundstück war kein Schnäppchen, ich rechne außerdem 20 T für den Abriss, die Gründung wird ebenfalls deutlich teurer als bei einem normalen Haus. Wenn der Bau bis Max. 200.000 möglich wäre, könnte es gehen.
Hier mein Versuch, einen Bungalow mit seitlichem Eingang über den Bebauungsplan zu legen. Der Eingang liegt weiter innen, sodass dort seitlich noch Fenster platziert werden können. (dachte ich mir)
Für Ideen und Hinweise wäre ich sehr dankbar!
J
j.bautsch25.10.16 08:28bei meinen Schwiegereltern tatsächlich kommt ?ein mal im Jahr? eine Firma. wie teuer sowas ist, keine Ahnung
B
Bauexperte25.10.16 13:36Guten Tag @Bremediana
ich denke, Du solltest Dich ganz schnell von einer fixen Vorstellung Bungalow, zur Bebauung Deines Grundstückes verabschieden. Das wirst Du nicht praktikabel umsetzen können; auch nicht der kreativste Architekt. Ganz davon ab, daß ein Bungalow in dieser vorhandenen Bebauung einfach untergehen _muß_. Ich sehe eher eine Variante eines Langhauses _mit_ Keller auf Deinem Grundstück; allerdings wirst Du Dein Budget dann aufstocken müssen - was Du imho eh müsstest, ein Bungalow ist nicht preiswert zu haben.
Wieso Keller: Du hast ein Hanggrundstück gekauft; Erde anzuschütten wird mit ziemlicher Sicherheit fast ebenso teuer werden, wie einen Keller zu bauen und ich weiß noch nichts über vorhandene Bodenverhältnisse.
Wieso Langhaus: das Grundstück läßt es zu und es läßt sich allemal besser planen, als einen Entwurf, der zwangsweise und mit der Einschränkung Licht irgendwie "gefrickelt" wird.
Ich bin mir auch ziemlich sicher, daß der Nachbar zur Rechten (vor dem Grundstück stehend) ganz sicher seine Fenster nicht schwarz eingebaut hat. Ein 3-FH erfordert meist einen regulären Bauantrag und dessen Umsetzung wird durch das Bauamt akribisch überwacht.
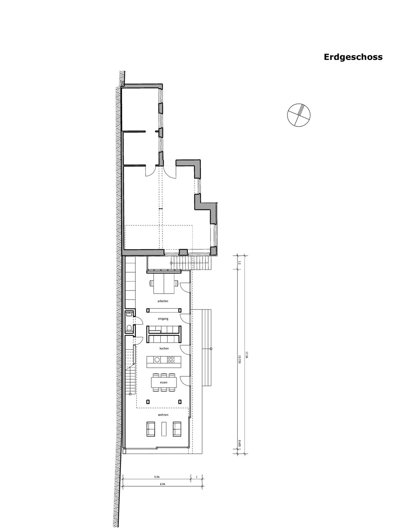
Vorschlag: denke über ein Langhaus nach; Barrierefreiheit läßt sich auch mit vernünftig breiter Treppe herstellen. Wohnraum (mit Blick in den Garten - weshalb solltest Du dieses Highlight brach liegen lassen?), Küche und HAR im Untergeschoss; Schlafräume und Bad im EG. Wir haben mal etwas ähnliches für eine selbstständige Kosmetikerin geplant; dummerweise finde ich die Entwürfe gerade nicht. Dafür zumindest etwas in meinem Fundus, daß ich Dir verdeutlichen kann, was ich meine.
Den Lückenanschluß hinten bitte wegdenken; ebenso die hintere Treppe. Stell Dir dann den Grundriss gedreht vor - arbeiten ist vorne (würde ich als HAR/Hauswirtschaftsraum anlegen) und Lebensräume hinten. Die auf 6.94 m begrenzte Breite erlaubt Dir sogar einen Lichthof vor Gäste-WC und Küche, nach hinten eh kein Problem. Dann ebenerdig Schlafräume, Bad und davon separierter Zugang über die Treppe nach unten. Ein guter Architekt - davon gibt es sicherlich auch in Bremen reichlich, wird Dir noch ganz andere Möglichkeiten aufzeigen. Dein Grundstück ist nicht einfach, aber ganz sicher eine Herausforderung es so zu planen, daß es nicht zwischen II- und III-Geschosser "verloren geht".
Grüße, Bauexperte

ich denke, Du solltest Dich ganz schnell von einer fixen Vorstellung Bungalow, zur Bebauung Deines Grundstückes verabschieden. Das wirst Du nicht praktikabel umsetzen können; auch nicht der kreativste Architekt. Ganz davon ab, daß ein Bungalow in dieser vorhandenen Bebauung einfach untergehen _muß_. Ich sehe eher eine Variante eines Langhauses _mit_ Keller auf Deinem Grundstück; allerdings wirst Du Dein Budget dann aufstocken müssen - was Du imho eh müsstest, ein Bungalow ist nicht preiswert zu haben.
Wieso Keller: Du hast ein Hanggrundstück gekauft; Erde anzuschütten wird mit ziemlicher Sicherheit fast ebenso teuer werden, wie einen Keller zu bauen und ich weiß noch nichts über vorhandene Bodenverhältnisse.
Wieso Langhaus: das Grundstück läßt es zu und es läßt sich allemal besser planen, als einen Entwurf, der zwangsweise und mit der Einschränkung Licht irgendwie "gefrickelt" wird.
Ich bin mir auch ziemlich sicher, daß der Nachbar zur Rechten (vor dem Grundstück stehend) ganz sicher seine Fenster nicht schwarz eingebaut hat. Ein 3-FH erfordert meist einen regulären Bauantrag und dessen Umsetzung wird durch das Bauamt akribisch überwacht.
Vorschlag: denke über ein Langhaus nach; Barrierefreiheit läßt sich auch mit vernünftig breiter Treppe herstellen. Wohnraum (mit Blick in den Garten - weshalb solltest Du dieses Highlight brach liegen lassen?), Küche und HAR im Untergeschoss; Schlafräume und Bad im EG. Wir haben mal etwas ähnliches für eine selbstständige Kosmetikerin geplant; dummerweise finde ich die Entwürfe gerade nicht. Dafür zumindest etwas in meinem Fundus, daß ich Dir verdeutlichen kann, was ich meine.
Den Lückenanschluß hinten bitte wegdenken; ebenso die hintere Treppe. Stell Dir dann den Grundriss gedreht vor - arbeiten ist vorne (würde ich als HAR/Hauswirtschaftsraum anlegen) und Lebensräume hinten. Die auf 6.94 m begrenzte Breite erlaubt Dir sogar einen Lichthof vor Gäste-WC und Küche, nach hinten eh kein Problem. Dann ebenerdig Schlafräume, Bad und davon separierter Zugang über die Treppe nach unten. Ein guter Architekt - davon gibt es sicherlich auch in Bremen reichlich, wird Dir noch ganz andere Möglichkeiten aufzeigen. Dein Grundstück ist nicht einfach, aber ganz sicher eine Herausforderung es so zu planen, daß es nicht zwischen II- und III-Geschosser "verloren geht".
Grüße, Bauexperte
Bauexperte schrieb:
Variante eines Landhauses _mit_ Keller auf Deinem GrundstückBeim ersten Mal Landhaus gelesen.... beim zweiten Mal Landhaus gelesen.... aber Du sprichst mir mit einem Landhaus aus der Seele.
Ich sehe das ganz genauso - und das nur mit Architekt!
Das mit den Fenstern beim Nachbarn sehe ich ganz ähnlich - die sind nicht rein zufällig im zurückgesetzten Gebäudeteil. Die Wahrscheinlichkeit eines Schwarzbaus ist hier äußerst gering.
Kann man natürlich mal abklopfen, einfach beim Bauamt melden. Das berechtigte Interesse zur Einsicht in die Bauakten der beiden Nachbarn ist durch den Grundstückserwerb gegeben. Kann man sich andererseits aber auch sparen, weil hier sowieso ein Architekt gebraucht wird, der den eigenen Bauantrag stellt und dabei natürlich auch die Nachbarbebauung grob abchecken sollte bzw. darauf aufbauend den Neubau plant.
MfG
Dirk Grafe
Kann man natürlich mal abklopfen, einfach beim Bauamt melden. Das berechtigte Interesse zur Einsicht in die Bauakten der beiden Nachbarn ist durch den Grundstückserwerb gegeben. Kann man sich andererseits aber auch sparen, weil hier sowieso ein Architekt gebraucht wird, der den eigenen Bauantrag stellt und dabei natürlich auch die Nachbarbebauung grob abchecken sollte bzw. darauf aufbauend den Neubau plant.
MfG
Dirk Grafe
@Bauexperte @ypg und @Dirk Grafe Danke für die Rückmeldungen!
Kann alles nachvollziehen: Bungalow geht unter zwischen den anderen Häusern, die Nachbarfenster will ich sowieso respektieren, und auf den Keller zu verzichten, finde ich eigentlich auch schade.
Vielleicht tut es ja eine halbe Unterkellerung...
Ebenso schade ist es, auf ein OG und den schönen Weserblick zu verzichten. Aber man kann eben nicht alles haben...
Langhaus ist ne nette Idee. Mitte November werde ich eine Architektin treffen und ihr das vorschlagen.
Budgetmäßig muss ich wohl in den sauren Apfel beißen - ist irgendwie unbefriedigend: man zahlt ein Wahnsinns Geld, verschuldet sich bis über den Tod hinaus und hat dann immer noch nicht alles, was man sich wünschen würde... (Deshalb wollte ich zunächst auch nur sanieren, trotz der schiefen Fußböden).
Kann alles nachvollziehen: Bungalow geht unter zwischen den anderen Häusern, die Nachbarfenster will ich sowieso respektieren, und auf den Keller zu verzichten, finde ich eigentlich auch schade.
Vielleicht tut es ja eine halbe Unterkellerung...
Ebenso schade ist es, auf ein OG und den schönen Weserblick zu verzichten. Aber man kann eben nicht alles haben...
Langhaus ist ne nette Idee. Mitte November werde ich eine Architektin treffen und ihr das vorschlagen.
Budgetmäßig muss ich wohl in den sauren Apfel beißen - ist irgendwie unbefriedigend: man zahlt ein Wahnsinns Geld, verschuldet sich bis über den Tod hinaus und hat dann immer noch nicht alles, was man sich wünschen würde... (Deshalb wollte ich zunächst auch nur sanieren, trotz der schiefen Fußböden).
Bremediana schrieb:
Budgetmäßig muss ich wohl in den sauren Apfel beißen - ist irgendwie unbefriedigend: man zahlt ein Wahnsinns Geld, verschuldet sich bis über den Tod hinaus und hat dann immer noch nicht alles, was man sich wünschen würde... (Deshalb wollte ich zunächst auch nur sanieren, trotz der schiefen Fußböden).Hallo Diana,
ohne Dir zu nahe treten zu wollen, aber Du hast einen Liebhaberkauf getätigt, wenn ich Deinen ET korrekt in Erinnerung habe. Über "Wahnsinnsgeld" zu diskutieren ist an der Stelle (fast) sinnlos, es sei denn, Du würdest Dich mit dem Bau tatsächlich überschulden. Das wirst Du allerdings nur in Zusammenarbeit mit Deiner Bank und einem Architekten herausfinden können. Da das Kind aber schon in den Brunnen gefallen ist, würde ich das ganz locker angehen, denn es gibt zwei Ausstiegsszenarien:
1. Das Grundstück incl. Haus so wie es ist erneut zum Kauf anbieten. Die Immo-Preise sind derzeit so gut, dass man das durchaus in Erwägung ziehen kann, mit ein wenig Glück kommst Du +/- Null aus der Sache raus.
2. Haus abreißen und das freie Grundstück zum Verkauf anbieten. Das aber vor dem Abriss mit Deinem Architekten durchdiskutieren. Vermutlich wirst Du dann viel Zeit benötigen, um auf Deinen Gesamt-Preis zu kommen, aber beide Varianten haben einen Vorteil:
Du bist am Ende nicht ruiniert.
MfG
Dirk Grafe
Ähnliche Themen