Hausbau - Ratgeber
Bauherrenhilfe
- Bauherrenhilfe vor Vertragsabschluss
-- Warum einen unabhängigen Baubetreuer?
-- Vertragsgrundlagen
-- Bausumme
-- Zahlungsplan zur Kostenkontrolle
-- Pflichten des Bauherren vor Vertragsabschluss
-- Unterlagen beim Hausbau vor Vertragsabschluss
- Bauherrenhilfe nach Vertragsabschluss
-- Bauantrag bei Behörden
-- Bau-Genehmigungsverfahren bei Baubehörden
-- Bauspezifische Versicherungen
-- Bauzeitenplan
-- Baubeginn - die Letzten Pflichten der Bauherrschaft
- Bauherrenhilfe während der Bauzeit
- Gewährleistungsansprüche
- Bauabnahme
Baufinanzierung
- Baufinanzierung - Allgemeine Fragen
- Kreditarten
- Kredit-Konditionen
- Bausparen
- Staatliche Förderungen
- Verkehrswert
- Haushaltsrechnung und Bonität
Hausbau Planung
- Haustypen
- Hausbau Vorbereitungsarbeiten
- Das Baugrundstück
- Baugrund beim Hausbau
- Baurecht
- Gebäudeschutz
- Erdarbeiten und Wasserhaltung
- Stützmauern
- Einfriedung
- Untergeschoss
- Kanalisation
- Tragende Elemente
- Nichttragende Innenwände
- Fundation / Fundament
- Deckenkonstruktionen
- Dächer
- Kaminanlagen
- Treppen Rampen Leitern
- Dachbeläge und Spengler
- Fenster
- Sonnen und Wetterschutz
- Aussenputze
- Einbauten, Küchen, Türen
- Bodenbeläge und Unterlagsböden
- Parkett
- Gips, Wand, Decke
Haustechnik und Energie
- Heiztechnik
- Lüftung und Klimatechnik
- Sanitärtechnik
- Elektrotechnik
- Erneuerbare Energie
Whirlpools / Jacuzzi
Hausbau Magazin
- Baufinanzierung trotz Krise?
- Das Blockhaus
- Moderne Dämmstoffe im Vergleich
- Erker Vor- und Nachteile
- Glasflächen beim Hausbau
- Günstig ein Haus Bauen
- Mediterraner Hausbaustil
- Mehrgenerationenhaus
- Moderne Architektur
- Gartengestaltung leicht gemacht
- Traditioneller Ziegelbau
- Villa als höchster Traum
- Im Eigenheim Ruhestand geniessen
- Altbau sanieren
- Kauf einer Holzgarage
- Immobilienmakler
- Arbeitshandschuhe für den Winter
- Zuhause verschönern
- Outdoor-Plissees
- Schlafzimmer planen
- Terrassenüberdachung
- Wohngebäudeversicherung
- Zaunarten und Eigenschaften
- Hauseingang gestalten
- Der perfekte Grundriss
- Sparsamer heizen im Altbau
- Einfamilienhaus smart finanzieren
- Planung einer PV-Anlage
- Neues Haus
- Immobilienfinanzierung
- Installation einer Photovoltaikanlage
- Asbest erkennen und entfernen
- Gartenpflege im Frühling – worauf achten
- Sauna im Fokus - Wellness zuhause
- Erfolgreich vermieten
- Die perfekte Winterbekleidung
- Das Niedrigenergiehaus
- Der April und seine Stürme
- Architektonische Vielfalt
- Ökologisch und nachhaltig bauen
- Das perfekte Schlafzimmer
- Nachhaltige Energieversorgung
- Zukunftsorientiert bauen
- Nachhaltigkeit beim Hausbau
- Tiny Houses
- Wärmepumpen als nachhaltige Heizvariante
- Maßgeschneiderten Kleiderschrank
- Der richtige Baukredit
- Ratgeber für erfolgreichen Hausbau
- Haus als Altersvorsorge
Do-it-yourself Anleitungen
- Verlegeanleitung für Bodenbeläge und Parkett
- Bodenbeläge und Parkett reinigen und pflegen
- Malerarbeiten am Haus
- Garten Tipps
- Umzug und Reinigung

ᐅ Grundrissplanung Stadthaus 150qm mit Satteldach 6 Zimmer

Erstellt am: 28.05.24 22:14
L
LeFy2023
L
LeFy2023
22.06.24 15:13
Hallo Zusammen,

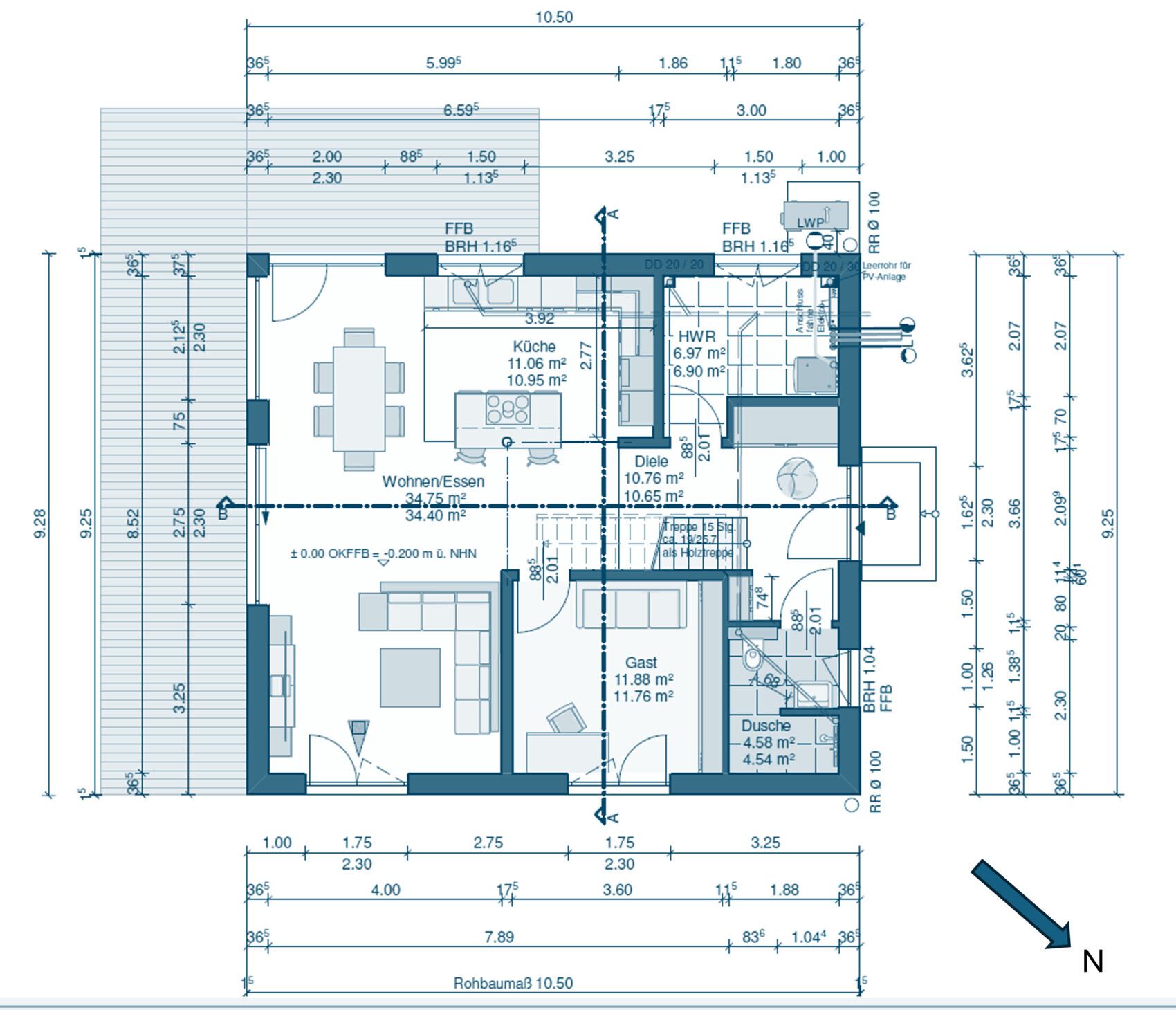
hier der aktuelle Stand der Vorplanung. Wir gehen damit jetzt in das Bauantragsgespräch mit dem Bauunternehmen. Die Details (wie z. B. das Gäste-WC, finale Treppenlänge etc.) klären wir dann anschließend im Rahmen der Ausführungsplanung.

Bei den Fenstern wird es Anfang nächster Woche ebenfalls nochmal Änderungen geben. Ich sende dann den finalen Stand der Vorplanung nochmal.


Blauer Grundriss eines Hauses mit Küche, Wohnen/Essen, Gast, Diele, Bad; Nordpfeil unten rechts.


Grundriss Obergeschoss: Schlafen, 2 Kinder, Abstellraum, Galerie, Bad, Ankleide, Treppe/Flur.


Querschnitt eines zweistöckigen Hauses mit Dachkonstruktion, Treppe und Höhenmaßen.


Schnitt durch mehrstöckiges Wohnhaus mit Innenräumen und 22° Dachneigung.
kbt0922.06.24 15:56
Ich finde es soweit ganz ok, nur beim Bad oben (Layout gefällt mir), da richte dich darauf ein, die linke Wand zum Hauswirtschaftsraum mind 20 bis 30 cm weiter nach links zu setzen.

Zwischen Dusch- und Außenwand sind 207 cm Rohbau, davon sollen 100-105 cm Durchgang sein. Dann dürfen waschbecken und Wanne zusammen nur noch gut 100 cm sein und das passt nicht.

Rechne Wanne mit 80 cm und Waschtisch mit 50-55 cm.
M
motorradsilke
22.06.24 16:09
kbt09 schrieb:

Ich finde es soweit ganz ok, nur beim Bad oben (Layout gefällt mir), da richte dich darauf ein, die linke Wand zum Hauswirtschaftsraum mind 20 bis 30 cm weiter nach links zu setzen.

Zwischen Dusch- und Außenwand sind 207 cm Rohbau, davon sollen 100-105 cm Durchgang sein. Dann dürfen Waschbecken und Wanne zusammen nur noch gut 100 cm sein und das passt nicht.

Rechne Wanne mit 80 cm und Waschtisch mit 50-55 cm.
Nö, das sind 227 im Rohbau. Guck mal, da sind noch 20 für den Vorbau der Toi.

In der Dusche ist es dann leider sehr dunkel.
Y
ypg
22.06.24 23:51
Ich würde die kurze Seitenwand in der Ankleide weglassen. Sie braucht man nicht, schränkt nur ein. Übers Gäste-WC kannst Du Dich ja überraschen lassen,
Ansonsten passt doch alles ganz gut.
kbt0923.06.24 00:38
motorradsilke schrieb:

Nö, das sind 227 im Rohbau. Guck mal, da sind noch 20 für den Vorbau der Toi.
Aber 106 cm zwischen den Mini-Waschbecken und der Wann eingezeichnet auf einer Gesamtstrecke von 207 cm
M
motorradsilke
23.06.24 07:42
kbt09 schrieb:

Aber 106 cm zwischen den Mini-Waschbecken und der Wann eingezeichnet auf einer Gesamtstrecke von 207 cm
Ja, das werden sicher keine 106, eher 80 als Durchgang. Aber das würde ja auch gut reichen.
Gefallen würde es mir nicht, Dusche dunkel, hinten gedrängt und vorn links viel Platz. Aber muss es ja auch nicht, ist ja für TE. Funktionieren wird es.
gäste-wcvorplanungrohbaudurchgangwaschbeckenwannedusche