Grundrissplanung für schmales Grundstück

4,40 Stern(e) 5 Votes
Zuletzt aktualisiert 20.11.2025
Sie befinden sich auf der Seite 3 der Diskussion zum Thema: Grundrissplanung für schmales Grundstück
>> Zum 1. Beitrag <<

kaho674

kaho674

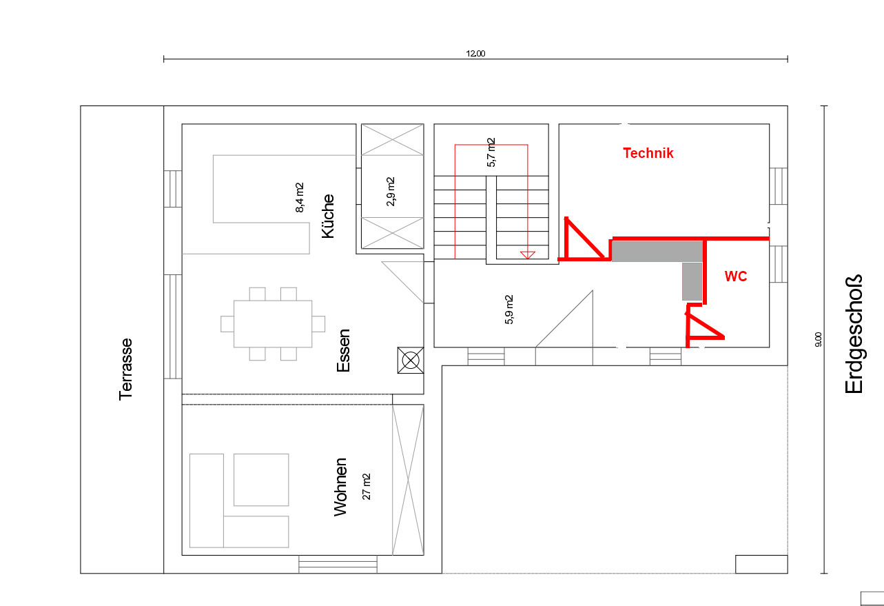
Bad unten weg, dafür dort der Hauswirtschaftsraum + HAR. Arbeitsraum oben als Kinderbad umfunktionieren. Tois in die Bäder integrieren und Elternbad direkt an Schlafzimmer angliedern.

Huch, dann hat Bad 2 kein Fenster - sorry. Das hatte ich kurz vergessen. Murks.

Erdgeschoss-Grundriss: Terrasse links, Küche 8,4 m2, Essen, Wohnen 27 m2, Technik und WC rechts.


Grundriss Obergeschoss: Eltern- und Kinderzimmer, zwei Bäder, Schrankraum, Balkon
 
M

moe01325

Herzlichen Dank für den vielen Input! Ich werd mir alles im Detail anschauen und melde mich in den nächsten Tagen wieder.
 
Zuletzt aktualisiert 20.11.2025
Im Forum Grundrissplanung / Grundstücksplanung gibt es 2535 Themen mit insgesamt 87978 Beiträgen


Ähnliche Themen zu Grundrissplanung für schmales Grundstück
Nr.ErgebnisBeiträge
1Fitness-Ecke im Hauswirtschaftsraum? 27
2 2 Vollgeschosse, Durchgang Garage, Hauswirtschaftsraum unter Treppe - Seite 325
3Technik / Hauswirtschaftsraum im OG Meinungen? 27
4Zusätzlicher Hauswirtschaftsraum im OG für Waschmaschine etc. 13
5Fußbodenheizung auch im Technikraum / Hauswirtschaftsraum - Seite 319
6Reicht der Hauswirtschaftsraum auch als Abstellkammer aus? 22
7Heizungsanlage passt nicht wie geplant in den Hauswirtschaftsraum 27
8Schallschutztür im Hauswirtschaftsraum notwendig? Erfahrungen? 22
9Hauswirtschaftsraum streichen - Welche Farbe? Latexfarbe? - Seite 216
10Schrank für Hauswirtschaftsraum 21
11Leitungsführung vom Hauswirtschaftsraum zum Bad 23
12Wie Hauswirtschaftsraum im Keller sinnvoll in die thermische Hülle? 15
13Hausanschlusssäule im Garten vs. Hausanschluss direkt im Hauswirtschaftsraum 35
14Hauswirtschaftsraum mit Gipsputz streichen - Welche Farbe? 20
15CAT Kabel im Hauswirtschaftsraum - nicht gecrimpt? - Seite 545
16Zugang von der Garage in den Hauswirtschaftsraum 49
17Ikea Pax Hauswirtschaftsraum/Waschküche System? - Was habt ihr? 64
18Kleinstmögliches Fenster für Lüftung Hauswirtschaftsraum 22
19Ideen Wäsche trocknen Hauswirtschaftsraum 20
20Hauswirtschaftsraum vorstreichen - frischer Estrich 10

Oben