Hausbau - Ratgeber
Bauherrenhilfe
- Bauherrenhilfe vor Vertragsabschluss
-- Warum einen unabhängigen Baubetreuer?
-- Vertragsgrundlagen
-- Bausumme
-- Zahlungsplan zur Kostenkontrolle
-- Pflichten des Bauherren vor Vertragsabschluss
-- Unterlagen beim Hausbau vor Vertragsabschluss
- Bauherrenhilfe nach Vertragsabschluss
-- Bauantrag bei Behörden
-- Bau-Genehmigungsverfahren bei Baubehörden
-- Bauspezifische Versicherungen
-- Bauzeitenplan
-- Baubeginn - die Letzten Pflichten der Bauherrschaft
- Bauherrenhilfe während der Bauzeit
- Gewährleistungsansprüche
- Bauabnahme
Baufinanzierung
- Baufinanzierung - Allgemeine Fragen
- Kreditarten
- Kredit-Konditionen
- Bausparen
- Staatliche Förderungen
- Verkehrswert
- Haushaltsrechnung und Bonität
Hausbau Planung
- Haustypen
- Hausbau Vorbereitungsarbeiten
- Das Baugrundstück
- Baugrund beim Hausbau
- Baurecht
- Gebäudeschutz
- Erdarbeiten und Wasserhaltung
- Stützmauern
- Einfriedung
- Untergeschoss
- Kanalisation
- Tragende Elemente
- Nichttragende Innenwände
- Fundation / Fundament
- Deckenkonstruktionen
- Dächer
- Kaminanlagen
- Treppen Rampen Leitern
- Dachbeläge und Spengler
- Fenster
- Sonnen und Wetterschutz
- Aussenputze
- Einbauten, Küchen, Türen
- Bodenbeläge und Unterlagsböden
- Parkett
- Gips, Wand, Decke
Haustechnik und Energie
- Heiztechnik
- Lüftung und Klimatechnik
- Sanitärtechnik
- Elektrotechnik
- Erneuerbare Energie
Whirlpools / Jacuzzi
Hausbau Magazin
- Baufinanzierung trotz Krise?
- Das Blockhaus
- Moderne Dämmstoffe im Vergleich
- Erker Vor- und Nachteile
- Glasflächen beim Hausbau
- Günstig ein Haus Bauen
- Mediterraner Hausbaustil
- Mehrgenerationenhaus
- Moderne Architektur
- Gartengestaltung leicht gemacht
- Traditioneller Ziegelbau
- Villa als höchster Traum
- Im Eigenheim Ruhestand geniessen
- Altbau sanieren
- Kauf einer Holzgarage
- Immobilienmakler
- Arbeitshandschuhe für den Winter
- Zuhause verschönern
- Outdoor-Plissees
- Schlafzimmer planen
- Terrassenüberdachung
- Wohngebäudeversicherung
- Girokonto für Bauherren finden
- Hauseingang gestalten
- Zaunarten und Eigenschaften
- Der perfekte Grundriss
- Sparsamer heizen im Altbau
- Einfamilienhaus smart finanzieren
- Planung einer PV-Anlage
- Neues Haus
- Immobilienfinanzierung
- Installation einer Photovoltaikanlage
- Asbest erkennen und entfernen
- Gartenpflege im Frühling – worauf achten
- Sauna im Fokus - Wellness zuhause
- Erfolgreich vermieten
- Die perfekte Winterbekleidung
- Das Niedrigenergiehaus
- Der April und seine Stürme
- Architektonische Vielfalt
- Ökologisch und nachhaltig bauen
- Das perfekte Schlafzimmer
- Nachhaltige Energieversorgung
- Zukunftsorientiert bauen
- Nachhaltigkeit beim Hausbau
- Tiny Houses
- Wärmepumpen als nachhaltige Heizvariante
- Maßgeschneiderten Kleiderschrank
- Der richtige Baukredit
- Ratgeber für erfolgreichen Hausbau
- Haus als Altersvorsorge
Do-it-yourself Anleitungen
- Verlegeanleitung für Bodenbeläge und Parkett
- Bodenbeläge und Parkett reinigen und pflegen
- Malerarbeiten am Haus
- Garten Tipps
- Umzug und Reinigung

ᐅ Grundrissplanung für schmales Grundstück, 2. Versuch.

Erstellt am: 11.12.17 17:31
M
moe01325
Willkommen in meinem 2. Grundriss Thema.
Im ersten Thema war der Input des Forums wirklich toll, allerdings sind wir weder mit dem Entwurf noch mit der Baufirma zusammen gekommen. Daher jetzt der 2. Ansatz. Der Übersichtlichkeit halber im neuen Thema.


Zur Situation:
Am Plan, der genordet ist:
rot: das Grundstück, Zufahrt via Weg rosa, Haus wäre momentan am blauen Standpunkt. Bestehendes Gebäude Gelb als Garage und Kellerersatz, rundherum am Grundstück Garten.
auf der westlichen Grundstücksgrenze Bestandsbau vom Nachbarn, hohe landwirtschaftliche Lagerhallen.
2 Vollgeschosse möglich.
"Geschlossene Bauweise" ist ein Muss. d.h. mindestens an eine Seite anbauen, an die andere Seite zumindest mittels Mauer/Tor o.ä.
Grundstück ist an der schmalsten Stelle, ganz nördlich, exakt 12m breit. Eine Durchfahrtsmöglichkeit wäre nett (auch wegen bestehender Garage), daher 9m maximale Breite des Hauses.

Größe des Grundstücks: 630m²
Hang: nein, nur sehr leicht abfallend

kein Keller, zusätzliche Garage vorhanden, siehe gelbe Markierung am Plan.
2 Geschosse, momentan 2 Erwachsene, 34 und 35. 1-2 Kinder geplant.

gewünschte Räume:
EG:
Wohnzimmer / Essen / Küche, mit Kamin
Speis / Abstellraum
WC+Dusche
Vorraum/Garderobe
Technikraum
OG:
Schlafzimmer,
Ankleide/Wirtschaftsraum mit Waschmaschine
1 Kinderzimmer
Bad
Büro zur Homeoffice Nutzung (falls es wirklich ein 2. Kind gibt, wird der Raum zum Kinderzimmer)

Gäste: eher sehr selten, ausziehbare Couch im Büro ausreichend.
Stilrichtung: klassisch-modern, Satteldach
unbedingt offene Küche, Insel wäre nett, 6 Essplätze, mit Möglichkeit auf mehr.
"normale" Wohnzimmerwand mit TV, nichts besonderes.
Größe: 140-170m²

momentaner Hausentwurf:
vom Architekten eines FTH Anbieters
Wir schon recht zufrieden damit. Exakte Einrichtung des Bades vielleicht noch bessere machbar?
Aufteilung im OG noch nicht perfekt? Schlafzimmer und Kinderzimmer tauschen? Kamin "durchs" Kinderzimmer?
Der momentane Entwurf hat ca. 148m² Wohnfläche.

400.000,- Budget fürs Haus, Schlüsselfertig.
Technik: Wärmepumpe. Kontrollierte-Wohnraumlüftung und KNX noch in Diskussion (würde dann vermutlich das Budget "ändern"...)

Wenn Ihr verzichten müsst, auf welche Details/Ausbauten
-könnt Ihr nicht verzichten: offener Wohnraum, mit Terrasse.
Sonst eher flexibel.

Offene Fragen:
Grundsätzliche Kommentare sind erwünscht. Meinungen zur Raumaufteilung? Welche Schwachstellen hat der Plan?

Herzlichen Dank für alle Beiträge!


Luftbild eines Grundstücks mit grüner Hauptfläche und farbigen Umrandungen.

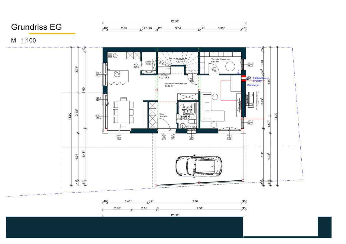
Grundriss EG mit offenem Wohn- und Essbereich, Küche, Bad und Garage.

Grundriss OG: detaillierter Architektenplan mit Zimmern, Türen, Treppen und Maßlinien


Westansicht eines zweigeschossigen Hauses mit Carport und Holzverkleidung

Querschnitt durch ein modernes zweigeschossiges Wohnhaus mit Dach, Fenstern und Fundament.

Moderne Hausansicht Ost mit Garage, Holzverkleidung und Balkon

3D-Darstellung eines modernen Hauses mit Holzverkleidung, Carport und Terrasse

3D-Ansicht eines modernen zweigeschossigen Hauses mit Carport und grauer Fassade

Nordansicht eines modernen Einfamilienhauses mit Holzfassade, Garage und blauem Auto.
kaho67413.12.17 08:10
ypg schrieb:

Schön, dass wir plaudern: der TE bleibt still
Daran ham mer uns doch schon gewöhnt, oder?
Y
ypg
13.12.17 14:29
Diskussionsfreudig, der TE [emoji2]
M
moe01325
13.12.17 15:22
Ich versuche die antworten zu lesen, zu verstehen, und mir ein paar Gedanken zu machen bevor ich meine erstbeste Reaktion schreibe. Werde versuchen etwas häufiger reinzuschauen und zu antworten!

Die Stiegen mittiger mit getrennter Küche-Essen und Wohnzimmer hatten wir schon, hat uns nicht so gefallen wie die kombinierte Variante. Siehe:

Grundriss Erdgeschoss eines Hauses mit Wohnzimmer Küche Essbereich und Garage


Den gesamten Kochen-Essen-Wohn Bereich ins OG zu verlegen haben wir schon diskutiert, wurde "abgelehnt" da ja dann der Gartenzugang dabei "weg" ist. Nur das Wohnzimmer ins OG ist allerding eins sehr interessanter Ansatz und eine detailliertere Überlegung wert.
Nachteile die ich sehe: Die Familie "verteilt" sich mehr übers Haus, z.b bei Kochen/Fernsehen/spielen?
Mit Kleinkindern über 2 Etagen: Das ist zumindest nur zeitlich begrenzt ein Problem.
Bei Besuch: Oben oder unten?
Und vermutlich wirken beide Räume getrennt kleiner als gemeinsam.
Wohin den Ofen?
Ich werd mir aber am Wochenende mal die Zeit nehmen und das versuchen mit korrekten Maßen zu zeichnen, um zu sehen ob sich das ausgehen kann.

Die Terrasse in Ri NW funktioniert meiner Meinung nach Aufgrund der Nachbargebäude nicht.
An diese Stelle soll das Haus, der Giebel ist am Übersichtsplan das Haus mit der Photovoltaik.

Aussengebaeude mit Metalltore, brueckelige Waende, Dach und Silos im Hintergrund

Das gedrehte OG is auch etwas dem Bestand daneben geschuldet, um korrekten Wasserabluß und Optik zu erreichen, bei möglichst viel Fenstern um Licht zu bekommen.
Aus der Richtung der Zufahrt:

Außenansicht eines Hofgeländes mit Scheune, Silos, Gebäuden und geparktem Auto.


Nochmal zum Thema Hauswirtschaftsraum ;-)
Wie sollte dann der optimale Hauswirtschaftsraum gebaut sein? Im Technik Raum? Mit zusätzlicher Lüftung? Was ist da die "best-practice"?
Am Flur scheint mir keinen Sinn zu machen, da hab ich dann nichtmal die Möglichkeit übers Fenster zu lüften.
Kontrollierte-Wohnraumlüftung ist, wie schon erwähnt, noch unter Diskussion (Budget...).
Oder ist nur die Mischung mit frischem Gewand das Problem?

Danke! :-)
wohnzimmerhauswirtschaftsraum