Grundrissplanung freistehendes Einfamilienhaus 9x16 m - erbitte Vorschläge

4,00 Stern(e) 10 Votes
Zuletzt aktualisiert 22.11.2025
Sie befinden sich auf der Seite 3 der Diskussion zum Thema: Grundrissplanung freistehendes Einfamilienhaus 9x16 m - erbitte Vorschläge
>> Zum 1. Beitrag <<

H

haydee

Zeichne bei jedem Entwurf Möbel im Maßstab ein.

Weiß jetzt nicht was ihr mit diesem gigantischen Wohnzimmer vorhabt. Überlegt euch ob ihr den Billardtisch oder Lesebereich nicht in ein separates Zimmer plant.

Zwei Autos hintereinander ist mehr als unpraktisch. Fahrräder und Co müssen auch durch diesen Schlauch mit 2 parkenden Autos.

Gebt den Haus im Eingangsbereich mehr Großzügigkeit.
Nutzt die Treppe als Teiler.
Wenn ihr die Treppe mittigen ins Haus setzt, könnt ihr im OG zur Straße hin den Elternteil planen und nach hinten die Kinderzimmer ohne zu verschachteln
 
C

Curly

den Grundriss würde ich nicht verbessern, sondern komplett verwerfen und neu planen, der ist einfach nichts. Viel zu eng im Flur, stockdunkel und eng in der Garderobe und ein Wohnzimmer wie ein Großraumbüro. Wenn ein so großes Wohnzimmer gewünscht ist, dann doch etwas aufgeteilter, wie zum Beispiel in einem Erker/Wintergarten, den man noch mal extra mit Sesseln und Pflanzen möblieren kann. In einem nahezu quadratischen, riesigem Wohnraum fühlt man sich einfach unwohl.
Vom Schlafzimmer kommt man in Ankleide oder Bad, wie soll da der Partner mal in Ruhe länger schlafen? Das Kinderbad liegt auch maximal entfernt von den Kinderzimmern. Schaut euch doch mal ein paar Musterhäuser an, da könnt ihr die Abmessungen und verschiedenen Raumkonzepte mal in echt sehen.

LG
Sabine
 
K

Klaus23

Besten Dank für die Hinweise und ehrlichen Kritiken.

Ich habe nochmals alles überarbeitet und mich dabei an einen Hausentwurf hier im Forum orientiert.

Nochmals mit der Bitte um ehrliche Ratschläge!!!
Danke vorab!!!!

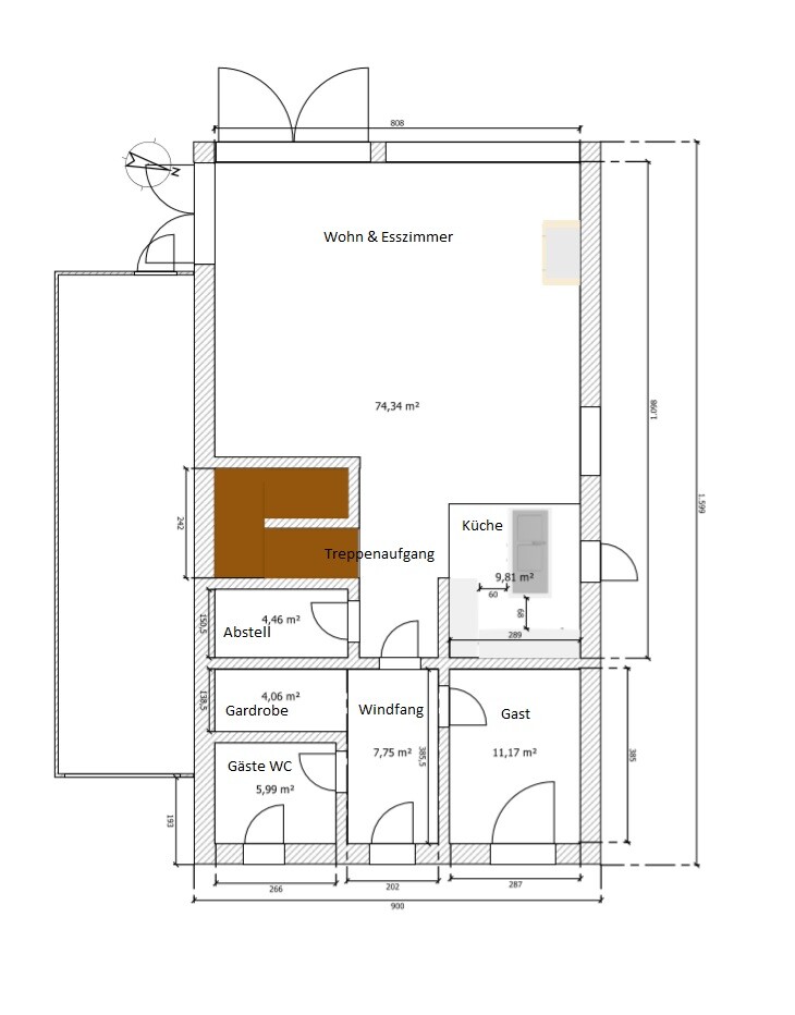
Grundriss eines Wohn- und Esszimmers mit Küche, Gastzimmer, Windfang und Treppenaufgang.


Grundriss eines Hauses mit Kind 1, Kind 2, Eltern, Ankleide, Flur, Elternbad, Kind Bad; braun markierter Bereich.
 
M

Müllerin

Oben viel besser als vorher.
Unten.. naja ich nehm an es soll eine offen Küche werden? Warum ist dann die Insel so gequetscht, da kann man ja nicht gescheit dran arbeiten.
Ich schließe mich an: Möbel rein, maßstabsgetreu natürlich.
 
Zuletzt aktualisiert 22.11.2025
Im Forum Grundrissplanung / Grundstücksplanung gibt es 2535 Themen mit insgesamt 87982 Beiträgen


Ähnliche Themen zu Grundrissplanung freistehendes Einfamilienhaus 9x16 m - erbitte Vorschläge
Nr.ErgebnisBeiträge
1Platzierung der Möbel im Wohnzimmer im Grundriss 10
2Treppe im Wohnzimmer als Hype - Pro & Contra? - Seite 426
3Wohnzimmer Grundrissplanungs-Ideen? - Seite 239
4Wohin mit der Treppe? Dachausbau Walmdachbungalow - Seite 319
5Treppe im Flur, Grundriss steht eigentlich schon :o( 20
6Grundrissfrage, Treppe, Fenster, Ausrichtung 12
7Grundriss für 150qm Einfamilienhaus mit Wohnzimmer nach Norden 21
8Grundrissplanung Wohnzimmer und Flur zu schmal? 21
9Standort Küche und Wohnzimmer - Seite 355
10Grundriss-Änderung Einfamilienhaus 150 m² aufgrund von Treppe 36
11Grundrissfrage: Tausch gerader Treppe durch L-Treppe - Seite 331
12Eure Meinung zum Grundriss für das EG - Seite 428
13Der Einzug ins Haus - Möbel, Umzug Einrichten 91
14Umfrage Ikea-Möbel im neuen Haus - Kastenmöbel, Polster, usw. - Seite 435
15Möbel-Tipp für Bad-Nische gesucht - Seite 428
16Alte/frühere Möbel mitnehmen ins neue Haus oder "alles" neu? 42
17Parkett nachölen - Möbel wegräumen oder drumherum ölen, Erfahrungen 10
18Holzbalkendecke für schwere Möbel ausreichend? 15
19Wohnzimmer Heimkino separat ? 21
20Planung Podest im Wohnzimmer 12

Oben