Da ich im Finanzierungsthread so schnell konstruktive Antworten bekommen habe, hoffe ich hier auch noch auf einige hilfreiche Verbesserungsvorschläge. Hier erstmal die Randbedingungen:
Größe des Grundstücks: 800 qm (32 Meter lang an der Straßenseite, 25 Meter breit
Hang: Nein
Grundflächenzahl: 0,4
Geschossflächenzahl: 0,8
Baufenster, Baulinie und -grenze: Baufenster ist ca. 18x18 Meter
Randbebauung: möglich gemäß Baugesetzbuch
Anzahl Stellplatz: 4, 2 überdacht
Geschossigkeit: 2 Vollgeschosse, Dachboden ohne Kniestock
Dachform: Satteldach, 38-45 grad, hier ist unsere Abweichung, dass wir nur 28 grad wollen. Im Gebiet gibt es mittlerweile einige Häuser mit anderer Dachneigung und teilweise Auch Walmdächer
Stilrichtung: nicht vorgegeben
Ausrichtung: Firstrichtung vorgegeben
Maximale Höhen/Begrenzungen: Traufhöhe Max 6,10 m
weitere Vorgaben: Dachüberstände 0,4 Ortgang bzw. 0,5 Traufe
- Terrasse maximal 1/3 überdacht
- Keine Mauern und Zäune auf Betonsockel, maximal 1 Meter hoch
- und noch einige Kleinigkeiten, die aber eher Standard sind
Anforderungen der Bauherren
- Stilrichtung, Dachform, Gebäudetyp: klassisches Einfamilienhaus
- Keller, Geschosse: kein Keller, 2 vollgeschosse
- Anzahl der Personen, Alter: 4, 31/30/3/1
- Raumbedarf im EG, OG:
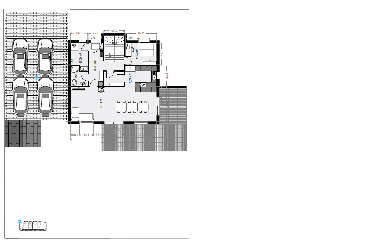
EG: Wohn-Koch-essbereich, Bad mit Dusche, kleines Büro auch als Not-Schlafzimmer, Speisekammer, Reiner Technikraum ohne Waschmaschine und Trockner etc.
OG: 2 Kinderzimmer, Schlafzimmer mit Ankleide, Hauptbad, Hauswirtschaftsraum
Dachboden: ungedämmt geplant, vorerst nur für Temperaturunempfindliche Sachen als Lager
- Büro: Familiennutzung
- Schlafgäste pro Jahr: Noch nicht abzuschätzen, wahrscheinlich 5x/Jahr
- offene Architektur, klassisch durch Bebauungsplan vorgegeben
- offene Küche, mit Halbinsel
- Anzahl Essplätze: bei größeren Festen sind wir auch mal 16 Personen, aber da kann es auch mal etwas enger sein.
Kamin: ist gewünscht, ohne Wasserführung geplant. Darf ein Kamin so nah an einer Tür sein?
Musik/Stereowand: nein
Balkon, Dachterrasse: nein
Garage, Carport: Doppelcarport
Nutzgarten, Treibhaus: ja aber erst später
weitere Wünsche/Besonderheiten/Tagesablauf:
Wir haben zum Thema Raffstore und Rollläden jetzt so viele unterschiedliche Meinungen gehört. Lager 1 sagt, dass man in den Schlafräumen lieber Rollläden zum verdunkeln nehmen soll, Lager 2 ist der Meinung, dass mit modernen Raffstores auch eine nahezu komplette Abdunklung möglich ist. Komplett dunkel muss es für uns nicht sein, da wir momentan in den Schlafzimmern runde Oberlichter haben, die wir nicht abdunkeln können.
Hausentwurf
Von wem stammt die Planung:
Grundriss war ein Standard-Grundriss, den ich selber etwas angepasst habe und der Verkäufer der Firma dann umgesetzt hat mit einigen Änderungen, damit es auch technisch funktioniert
Was gefällt besonders? Warum?
Anordnung Räume ist für uns ideal, vor allem das Obergeschoss.
Platzierung Technikräume und Bäder sinnvoll.
Wohnzimmer und Kinderzimmer mit Südausrichtung
Ausreichende Stauraummöglichkeiten
Was gefällt nicht? Warum?
- Eingangsbereich, wenig Platz für Schuhe etc.
- TV-Wand im Wohnzimmer sehr schmal, Blick vom Flur direkt auf die Couch, bzw. vor dem Fernseher schaut man direkt auf die Tür und ich bin mir nicht sicher ob das dann zur Gemütlichkeit beiträgt. wäre aber nur anders lösbar wenn man Küche und Wohnzimmer tauscht, dann ist die Speisekammer aber nicht mehr sinnvoll positioniert
- Preisschätzung lt Architekt/Planer:
- 383000, genaues Angebot liegt vor
Persönliches Preislimit fürs Haus, inkl Ausstattung: 390000, lieber weniger und etwas mehr Puffer für Außenanlagen etc.
favorisierte Heiztechnik: Schön wäre eine Sole-wärmepumpe aber finanziell nicht drin, aktuell normale Luft-Wasser Wärmepumpe im Angebot
- Photovoltaik ist zumindest vorbereitet aber noch nicht einkalkuliert
Wenn Ihr verzichten müsst, auf welche Details/Ausbauten
-könnt Ihr verzichten:
- Kamin ist eher Luxus, aber ein großer Wunsch der Frau
- Erker wäre auch denkbar und dann ggf. mit platzsparender Treppe planen um vielleicht noch etwas mehr Platz im Wohnbereich zu generieren.
- Speisekammer weg wäre wirklich nur sinnvoll, wenn irgendwo anders der Stauraum geschaffen wird aber gleichzeitig auch mehr Wohnfläche entsteht
- im Wohnzimmer die Hebeschiebetür tauschen gegen eine normale Drehtür, aber da ist dann der Platz zum Essbereich zu eng.
-könnt Ihr nicht verzichten:
- Raumprogramm
- alles was heutzutage so Standard ist.
Was ist die wichtigste/grundlegende Frage zum Grundriss in 130 Zeichen zusammengefasst?
Seht ihr irgendwo Potenzial um evtl. den ein oder anderen „Toten“ Quadratmeter einzusparen und könnte man den Wohnbereich noch besser gestalten um die oben angesprochenen Probleme zu lösen?





Größe des Grundstücks: 800 qm (32 Meter lang an der Straßenseite, 25 Meter breit
Hang: Nein
Grundflächenzahl: 0,4
Geschossflächenzahl: 0,8
Baufenster, Baulinie und -grenze: Baufenster ist ca. 18x18 Meter
Randbebauung: möglich gemäß Baugesetzbuch
Anzahl Stellplatz: 4, 2 überdacht
Geschossigkeit: 2 Vollgeschosse, Dachboden ohne Kniestock
Dachform: Satteldach, 38-45 grad, hier ist unsere Abweichung, dass wir nur 28 grad wollen. Im Gebiet gibt es mittlerweile einige Häuser mit anderer Dachneigung und teilweise Auch Walmdächer
Stilrichtung: nicht vorgegeben
Ausrichtung: Firstrichtung vorgegeben
Maximale Höhen/Begrenzungen: Traufhöhe Max 6,10 m
weitere Vorgaben: Dachüberstände 0,4 Ortgang bzw. 0,5 Traufe
- Terrasse maximal 1/3 überdacht
- Keine Mauern und Zäune auf Betonsockel, maximal 1 Meter hoch
- und noch einige Kleinigkeiten, die aber eher Standard sind
Anforderungen der Bauherren
- Stilrichtung, Dachform, Gebäudetyp: klassisches Einfamilienhaus
- Keller, Geschosse: kein Keller, 2 vollgeschosse
- Anzahl der Personen, Alter: 4, 31/30/3/1
- Raumbedarf im EG, OG:
EG: Wohn-Koch-essbereich, Bad mit Dusche, kleines Büro auch als Not-Schlafzimmer, Speisekammer, Reiner Technikraum ohne Waschmaschine und Trockner etc.
OG: 2 Kinderzimmer, Schlafzimmer mit Ankleide, Hauptbad, Hauswirtschaftsraum
Dachboden: ungedämmt geplant, vorerst nur für Temperaturunempfindliche Sachen als Lager
- Büro: Familiennutzung
- Schlafgäste pro Jahr: Noch nicht abzuschätzen, wahrscheinlich 5x/Jahr
- offene Architektur, klassisch durch Bebauungsplan vorgegeben
- offene Küche, mit Halbinsel
- Anzahl Essplätze: bei größeren Festen sind wir auch mal 16 Personen, aber da kann es auch mal etwas enger sein.
Kamin: ist gewünscht, ohne Wasserführung geplant. Darf ein Kamin so nah an einer Tür sein?
Musik/Stereowand: nein
Balkon, Dachterrasse: nein
Garage, Carport: Doppelcarport
Nutzgarten, Treibhaus: ja aber erst später
weitere Wünsche/Besonderheiten/Tagesablauf:
Wir haben zum Thema Raffstore und Rollläden jetzt so viele unterschiedliche Meinungen gehört. Lager 1 sagt, dass man in den Schlafräumen lieber Rollläden zum verdunkeln nehmen soll, Lager 2 ist der Meinung, dass mit modernen Raffstores auch eine nahezu komplette Abdunklung möglich ist. Komplett dunkel muss es für uns nicht sein, da wir momentan in den Schlafzimmern runde Oberlichter haben, die wir nicht abdunkeln können.
Hausentwurf
Von wem stammt die Planung:
Grundriss war ein Standard-Grundriss, den ich selber etwas angepasst habe und der Verkäufer der Firma dann umgesetzt hat mit einigen Änderungen, damit es auch technisch funktioniert
Was gefällt besonders? Warum?
Anordnung Räume ist für uns ideal, vor allem das Obergeschoss.
Platzierung Technikräume und Bäder sinnvoll.
Wohnzimmer und Kinderzimmer mit Südausrichtung
Ausreichende Stauraummöglichkeiten
Was gefällt nicht? Warum?
- Eingangsbereich, wenig Platz für Schuhe etc.
- TV-Wand im Wohnzimmer sehr schmal, Blick vom Flur direkt auf die Couch, bzw. vor dem Fernseher schaut man direkt auf die Tür und ich bin mir nicht sicher ob das dann zur Gemütlichkeit beiträgt. wäre aber nur anders lösbar wenn man Küche und Wohnzimmer tauscht, dann ist die Speisekammer aber nicht mehr sinnvoll positioniert
- Preisschätzung lt Architekt/Planer:
- 383000, genaues Angebot liegt vor
Persönliches Preislimit fürs Haus, inkl Ausstattung: 390000, lieber weniger und etwas mehr Puffer für Außenanlagen etc.
favorisierte Heiztechnik: Schön wäre eine Sole-wärmepumpe aber finanziell nicht drin, aktuell normale Luft-Wasser Wärmepumpe im Angebot
- Photovoltaik ist zumindest vorbereitet aber noch nicht einkalkuliert
Wenn Ihr verzichten müsst, auf welche Details/Ausbauten
-könnt Ihr verzichten:
- Kamin ist eher Luxus, aber ein großer Wunsch der Frau
- Erker wäre auch denkbar und dann ggf. mit platzsparender Treppe planen um vielleicht noch etwas mehr Platz im Wohnbereich zu generieren.
- Speisekammer weg wäre wirklich nur sinnvoll, wenn irgendwo anders der Stauraum geschaffen wird aber gleichzeitig auch mehr Wohnfläche entsteht
- im Wohnzimmer die Hebeschiebetür tauschen gegen eine normale Drehtür, aber da ist dann der Platz zum Essbereich zu eng.
-könnt Ihr nicht verzichten:
- Raumprogramm
- alles was heutzutage so Standard ist.
Was ist die wichtigste/grundlegende Frage zum Grundriss in 130 Zeichen zusammengefasst?
Seht ihr irgendwo Potenzial um evtl. den ein oder anderen „Toten“ Quadratmeter einzusparen und könnte man den Wohnbereich noch besser gestalten um die oben angesprochenen Probleme zu lösen?
A
Allthewayup16.04.23 13:21Ich würde definitiv die zweite Tür in der Speisekammer rauswerfen diese frisst in der jetzigen Konstellation der Räume enorm viel Staufläche. Die Kammer dann etwas verkleinern und die gewonnenen 1,5 Quadratmeter dem Flur zuschlagen, damit wäre das Flurproblem weitestgehend erledigt. Ist euch die Ankleide denn sehr wichtig? Unser Schlafzimmer hat auch nur etwas mehr als 12qm das reicht zum Schlafen und anziehen - für uns wohlgemerkt! Mir persönlich wäre auch das Bad im EG zu klein. Ich würde das vergrößern indem ich einen Teil des Hauswirtschaftsraum dem Bad zuschlage, den Hauswirtschaftsraum ins Büro im EG switche und das Büro hoch ins Ankleidezimmer. Dann könntet ihr auch den Eingangsbereich etwas „platzoptimieren“. Kann man den Hauswirtschaftsraum nicht vielleicht auch in den Außenbereich mit kleinem Anbau oder die Garage verlegen, das würde extrem viel helfen. Das haben unsere Nachbarn zum Beispiel echt gut umgesetzt. Ob der jetzige Hauswirtschaftsraum mit etwas über 5qm ausreicht um die gesamte Technik (an die spätere Photovoltaikanlage denken!) unterzubringen ist fraglich.
Alles in allem kein schlechter Grundriss und durchaus effizient gestaltet. Bedenkt aber wenn ihr euren Lebensabend mal in dem Haus verbringen wollt fällt das Treppensteigen zunehmend schwerer, sodass sich der Lebensmittelpunkt ins EG verlagert. Könnt ihr durch eine Trockenbauwand einen Schlafplatz generieren? Eignet sich das Bad/WC dann zur dauerhaften Nutzung? Das ist jetzt sehr weit gedacht aber der Zeitpunkt kommt irgendwann und dann zahlt es sich aus, darüber mal nachgedacht zu haben. Einen Treppenlift gibt es natürlich auch ;-)
Mein Kaminkehrer hat mir einen Leitfaden ausgehändigt wo die Abstände alle beschrieben sind. Es entzieht sich meiner Kenntnis ob das jedes Bundesland anders regelt. Ich füge mal paar Fotos bei, vielleicht hilft das. Im Zweifel würde ich den Bezirksschornsteinfeger kontaktieren.


Alles in allem kein schlechter Grundriss und durchaus effizient gestaltet. Bedenkt aber wenn ihr euren Lebensabend mal in dem Haus verbringen wollt fällt das Treppensteigen zunehmend schwerer, sodass sich der Lebensmittelpunkt ins EG verlagert. Könnt ihr durch eine Trockenbauwand einen Schlafplatz generieren? Eignet sich das Bad/WC dann zur dauerhaften Nutzung? Das ist jetzt sehr weit gedacht aber der Zeitpunkt kommt irgendwann und dann zahlt es sich aus, darüber mal nachgedacht zu haben. Einen Treppenlift gibt es natürlich auch ;-)
Mein Kaminkehrer hat mir einen Leitfaden ausgehändigt wo die Abstände alle beschrieben sind. Es entzieht sich meiner Kenntnis ob das jedes Bundesland anders regelt. Ich füge mal paar Fotos bei, vielleicht hilft das. Im Zweifel würde ich den Bezirksschornsteinfeger kontaktieren.
A
Allthewayup16.04.23 13:28Edit:
Macht das Thema Raffstores von den (End)Kosten abhängig ggf. erübrigt sich diese Diskussion nach einigen Bemusterungsterminen. Verdunkeln können spezielle Raffstores annähernd genau so gut, allerdings würde ich behaupten, dass Rollladen weniger Fehleranfällig sind aufgrund ihrer Konstruktionsweise und damit auch eine längere Lebensdauer besitzen bei geringerem Wartungs-/Pflegeaufwand.
Macht das Thema Raffstores von den (End)Kosten abhängig ggf. erübrigt sich diese Diskussion nach einigen Bemusterungsterminen. Verdunkeln können spezielle Raffstores annähernd genau so gut, allerdings würde ich behaupten, dass Rollladen weniger Fehleranfällig sind aufgrund ihrer Konstruktionsweise und damit auch eine längere Lebensdauer besitzen bei geringerem Wartungs-/Pflegeaufwand.
B
Bau-beendet16.04.23 14:15Der Hauswirtschaftsraum mit 5qm finde ich schon etwas klein. Hab selber ca 10qm Hauswirtschaftsraum, kleiner hätte es nicht sein sollen. Dafür das Gäste-WC etwas vergrößern, den Hauswirtschaftsraum ins Arbeitszimmer wie schon gesagt und den gewonnenen Platz, wenn man rein kommt, als großzügige Garderobenecke nutzen. Und die Türe der Speisekammer vom Flur aus sparen. So lässt sich ein regal noch hinten schön um die Ecke ziehen.
Danke erstmal für den Input.
Ich habe das mal grob geändert, wie ihr es gesagt habt und finde dann den Eingangsbereich und das Wohnzimmer deutlich schöner. Mit dem Kamin müsste man dann schauen, ob dieser auch einen anderen Platz findet.
Nur finde ich so keine Möglichkeit das kleine Gästezimmer/Büro oben unterzubekommen.
Wir planen ja oben mit einem separaten Abstellraum, wo waschmaschine, Trockner, Bügeleisen und noch etwas Stauraum sein soll, daher hatte ich die Hoffnung auf den 5 qm alles unter zu bekommen. Ein Kollege von mir hat einen ähnlich kleinen Technikraum inkl. Photovoltaik, Speicher, wärmepumpe, ist zwar nicht geräumig aber es hat alles seinen Platz.
Auf den Preis wurde ich auch schon aufmerksam gemacht, aber vermutlich ist es im Osten der Republik noch etwas eher möglich unter 3000€/qm zu kommen. Ein schriftliches Angebot habe ich bereits vorliegen.

Ich habe das mal grob geändert, wie ihr es gesagt habt und finde dann den Eingangsbereich und das Wohnzimmer deutlich schöner. Mit dem Kamin müsste man dann schauen, ob dieser auch einen anderen Platz findet.
Nur finde ich so keine Möglichkeit das kleine Gästezimmer/Büro oben unterzubekommen.
Wir planen ja oben mit einem separaten Abstellraum, wo waschmaschine, Trockner, Bügeleisen und noch etwas Stauraum sein soll, daher hatte ich die Hoffnung auf den 5 qm alles unter zu bekommen. Ein Kollege von mir hat einen ähnlich kleinen Technikraum inkl. Photovoltaik, Speicher, wärmepumpe, ist zwar nicht geräumig aber es hat alles seinen Platz.
Auf den Preis wurde ich auch schon aufmerksam gemacht, aber vermutlich ist es im Osten der Republik noch etwas eher möglich unter 3000€/qm zu kommen. Ein schriftliches Angebot habe ich bereits vorliegen.
Ähnliche Themen