Hausbau - Ratgeber
Bauherrenhilfe
- Bauherrenhilfe vor Vertragsabschluss
-- Warum einen unabhängigen Baubetreuer?
-- Vertragsgrundlagen
-- Bausumme
-- Zahlungsplan zur Kostenkontrolle
-- Pflichten des Bauherren vor Vertragsabschluss
-- Unterlagen beim Hausbau vor Vertragsabschluss
- Bauherrenhilfe nach Vertragsabschluss
-- Bauantrag bei Behörden
-- Bau-Genehmigungsverfahren bei Baubehörden
-- Bauspezifische Versicherungen
-- Bauzeitenplan
-- Baubeginn - die Letzten Pflichten der Bauherrschaft
- Bauherrenhilfe während der Bauzeit
- Gewährleistungsansprüche
- Bauabnahme
Baufinanzierung
- Baufinanzierung - Allgemeine Fragen
- Kreditarten
- Kredit-Konditionen
- Bausparen
- Staatliche Förderungen
- Verkehrswert
- Haushaltsrechnung und Bonität
Hausbau Planung
- Haustypen
- Hausbau Vorbereitungsarbeiten
- Das Baugrundstück
- Baugrund beim Hausbau
- Baurecht
- Gebäudeschutz
- Erdarbeiten und Wasserhaltung
- Stützmauern
- Einfriedung
- Untergeschoss
- Kanalisation
- Tragende Elemente
- Nichttragende Innenwände
- Fundation / Fundament
- Deckenkonstruktionen
- Dächer
- Kaminanlagen
- Treppen Rampen Leitern
- Dachbeläge und Spengler
- Fenster
- Sonnen und Wetterschutz
- Aussenputze
- Einbauten, Küchen, Türen
- Bodenbeläge und Unterlagsböden
- Parkett
- Gips, Wand, Decke
Haustechnik und Energie
- Heiztechnik
- Lüftung und Klimatechnik
- Sanitärtechnik
- Elektrotechnik
- Erneuerbare Energie
Whirlpools / Jacuzzi
Hausbau Magazin
- Baufinanzierung trotz Krise?
- Das Blockhaus
- Moderne Dämmstoffe im Vergleich
- Erker Vor- und Nachteile
- Glasflächen beim Hausbau
- Günstig ein Haus Bauen
- Mediterraner Hausbaustil
- Mehrgenerationenhaus
- Moderne Architektur
- Gartengestaltung leicht gemacht
- Traditioneller Ziegelbau
- Villa als höchster Traum
- Im Eigenheim Ruhestand geniessen
- Altbau sanieren
- Kauf einer Holzgarage
- Immobilienmakler
- Arbeitshandschuhe für den Winter
- Zuhause verschönern
- Outdoor-Plissees
- Schlafzimmer planen
- Terrassenüberdachung
- Wohngebäudeversicherung
- Zaunarten und Eigenschaften
- Hauseingang gestalten
- Der perfekte Grundriss
- Sparsamer heizen im Altbau
- Einfamilienhaus smart finanzieren
- Planung einer PV-Anlage
- Neues Haus
- Immobilienfinanzierung
- Installation einer Photovoltaikanlage
- Asbest erkennen und entfernen
- Gartenpflege im Frühling – worauf achten
- Sauna im Fokus - Wellness zuhause
- Erfolgreich vermieten
- Die perfekte Winterbekleidung
- Das Niedrigenergiehaus
- Der April und seine Stürme
- Architektonische Vielfalt
- Ökologisch und nachhaltig bauen
- Das perfekte Schlafzimmer
- Nachhaltige Energieversorgung
- Zukunftsorientiert bauen
- Nachhaltigkeit beim Hausbau
- Tiny Houses
- Wärmepumpen als nachhaltige Heizvariante
- Maßgeschneiderten Kleiderschrank
- Der richtige Baukredit
- Ratgeber für erfolgreichen Hausbau
- Haus als Altersvorsorge
Do-it-yourself Anleitungen
- Verlegeanleitung für Bodenbeläge und Parkett
- Bodenbeläge und Parkett reinigen und pflegen
- Malerarbeiten am Haus
- Garten Tipps
- Umzug und Reinigung

ᐅ Grundrissplanung Einfamilienhaus, ca. 9x11m, 2 Vollgeschosse + Dachgeschoss

Erstellt am: 30.07.18 08:54
D
Daniel1984
kaho67402.08.18 08:25
Ich finde den Entwurf als Idee super. Würde wie Yvonne vermutlich Ankleide und Bad tauschen.

Die Entsorgung des Kinderbad würde ich allerdings als allererstes mit meinem Bauleiter klären. Eventuell muss eine Extrawand zur Treppe gezogen werden.

Wie tief ist das Wohnzimmer jetzt? Ich fürchte, irgendwo muss da noch ne Säule in den Essbereich, damit die Decke nicht runterfällt.
Y
ypg
02.08.18 09:50
kaho674 schrieb:
Wie tief ist das Wohnzimmer jetzt? Ich fürchte, irgendwo muss da noch ne Säule in den Essbereich, damit die Decke nicht runterfällt.

Da hatte ich spontan gedacht, die Hochschränke? der Küche weiter nach planoben zu versetzen (mit Wand), damit eine Tür zur Küche geöffnet werden kann und das WZ etwas mehr aus der Schusslinie gerät.

Grundsätzlich eine schöne Basis, weiterzumachen.
Das grüne Forum bestätigt meine Abfluss-Sorgen
kaho67402.08.18 10:20
ypg schrieb:

Das grüne Forum bestätigt meine Abfluss-Sorgen
Wer ist das denn?
J
j.bautsch
02.08.18 12:51
das grüne Forum ist das "Bau Experten Forum"
11ant02.08.18 13:25
kaho674 schrieb:
Ich fürchte, irgendwo muss da noch ne Säule in den Essbereich, damit die Decke nicht runterfällt.
Ich fürchte da einen Unterzug pfeilgerade auf den Sturz des Fensters ggü. der Kochinsel zuschießen.
https://www.instagram.com/11antgmxde/
https://www.linkedin.com/company/bauen-jetzt/
D
Daniel1984
16.08.18 13:16
Hallo,

Hier ist unsere aktualisierte Version.
Vielleicht habt ihr ja noch ein paar hilfreiche Kommentare!

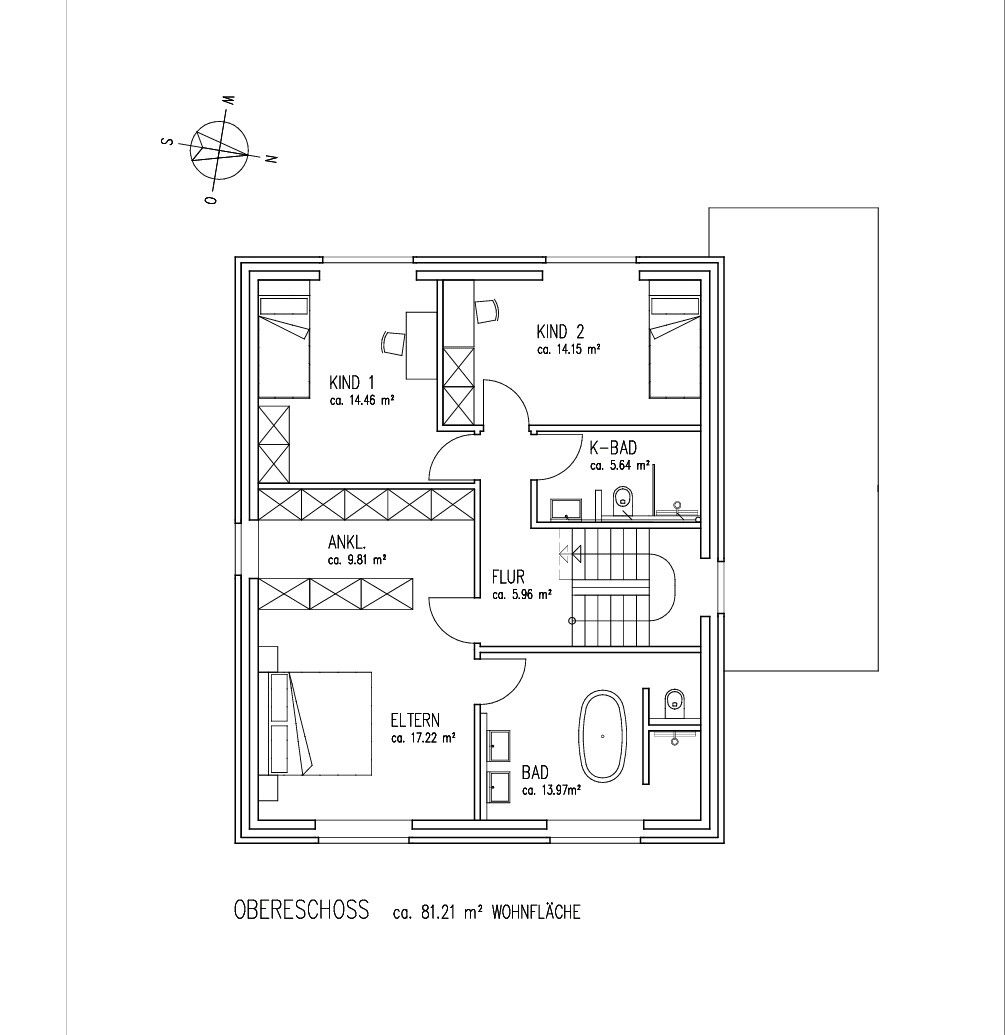
Grundriss Obergeschoss: zwei Kinderzimmer, Elternzimmer, Flur, Bad.


Grundriss Erdgeschoss: KÜCHE/ESSEN/WOHNEN, DIELE, HWR, WC, GARAGE


West- und Nordansicht eines zweistöckigen Hauses mit Satteldach, Fenstern.


Architekturzeichnung: Ost- und Südansicht eines zweigeschossigen Hauses mit Garage.


Spitzboden-Grundriss: Büro, Flur, Abstellraum, Speicher; Treppe und Notausgang.
küche