Grundrissplanung Einfamilienhaus ca. 190qm -eure Meinung-

4,30 Stern(e) 4 Votes
Zuletzt aktualisiert 11.10.2025
Sie befinden sich auf der Seite 3 der Diskussion zum Thema: Grundrissplanung Einfamilienhaus ca. 190qm -eure Meinung-
>> Zum 1. Beitrag <<

kbt09

kbt09

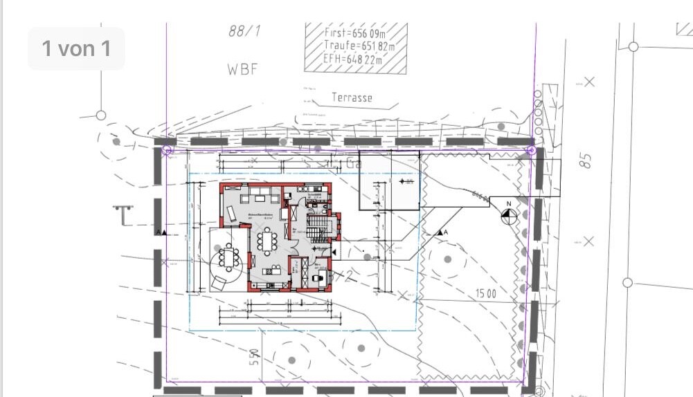
Na, die Grundrisse in Beitrag 7 sind wohl nicht identisch ausgerichtet? Wäre ein Akt der Höflichkeit und der Übersichtlichkeit, ansonsten eben bitte in jedes Machwerk den Nordpfeil eintragen. Manchmal frage ich mich wirklich, wer hier mitdenkt, wenn er einen Beitrag erstellt.
 
U

ullw889

Das sind die einzigen Grundstückzeichnungen die ich noch gefunden habe. Den Rest müsste ich wohl bei der Architektin anfragen.

Lageplan eines Baugrundstücks mit blau umrandetem Gebäudebereich und Straßenzugang


2D-Grundriss eines Hauses auf Grundstück mit Umriss und Außenbereich
 
Y

ypg

Das Problem ist das man im Süden auf die Dorfstraße in Richtung nächstes Dorf schaut (inkl. Bauernhof) und somit den Verkehr etwas hört. D.h Westseiten ist 100 mal schöner.
Es geht nicht um den Ausblick, es geht um die Sonneneinstrahlung in die Innenräume und deren folgliche Helligkeit bzw Behaglichkeit.
Ich habe es in einem anderen Thread gerade geschrieben: ich würde "Ausblicke" nicht überbewerten: klar setzt man den Fokus auf den tollen Ausblick, aber man schaut eben nicht nur in seiner Freizeit. Tagsüber ist man auf Arbeit oder hat sein Tageswerk im Haus, abends schaut man Fern oder sitzt im Sommer auf der Terrasse... aber man gärtnert auch oder was weiss ich.
Man baut nicht nur um in seiner Zukunft "nur nach draußen zu schauen".
 
Zuletzt aktualisiert 11.10.2025
Im Forum Grundrissplanung / Grundstücksplanung gibt es 2513 Themen mit insgesamt 87238 Beiträgen


Ähnliche Themen zu Grundrissplanung Einfamilienhaus ca. 190qm -eure Meinung-
Nr.ErgebnisBeiträge
1Terrasse mit Plenera Dielen 32
2Grundriss Einfamilienhaus mit Doppelgarage und Terrasse 19
3Begehbare Garage (Terrasse) - Seite 211
4Terrasse mit Platten über Eck (L-Form). Realisierung Gefälle 12
5Terrasse erstellen lassen 11
6Terrasse auf Flachdach - Aufbau - Belag 12
7Fundament/Untergrund WPC Terrasse 36
8Terrasse und Auffahrt 55
9Terrasse auf Garage wird nur zum teil genehmigt 11
10Terrasse vom Nachbar grenzt an Garage 11
11Wohin mit Terrasse/Wohnräumen wenn Straße auf Westseite liegt? 45
12Winkelbungalow, Terrasse ganz oder halb überdachen? 57
13Terrasse anlegen - Probleme mit dem Gefälle 18
14Holz-Terrasse - Welche Holzart wählen, oder WPC Dielen? - Seite 431
15Lichtverlust durch überdachte Terrasse zu gross? 16
16Ausrichtung und Form von Einfamilienhaus - Ecke für Terrasse abschneiden? 14
17Schuhe an der Terrasse; wohin damit? Wäre ein Schrank die Lösung? 28
18Terrasse an Hanglage auf Stelzen - Holz oder Stahl besser? 38
19Neu verlegte Terrasse mit Betonsteinplatten -> ist das normal? - Seite 211
20Terrasse ebenerdig raus? Oder mit Stufe? 12

Oben