Bebauungsplan/Einschränkungen
Größe des Grundstücks : 549m²
Grundflächenzahl 0,3
Baufenster, Baulinie und -grenze : 14x12m
Geschossigkeit : erlaubt sind 2 mit Traufhöhe bis zu 4m
Dachform : Satteldach 38 -45°
Maximale Höhen/Begrenzungen: Traufhöhe Max. 4m; Firsthöhe Max. 11m
weitere Vorgaben
Anforderungen der Bauherren
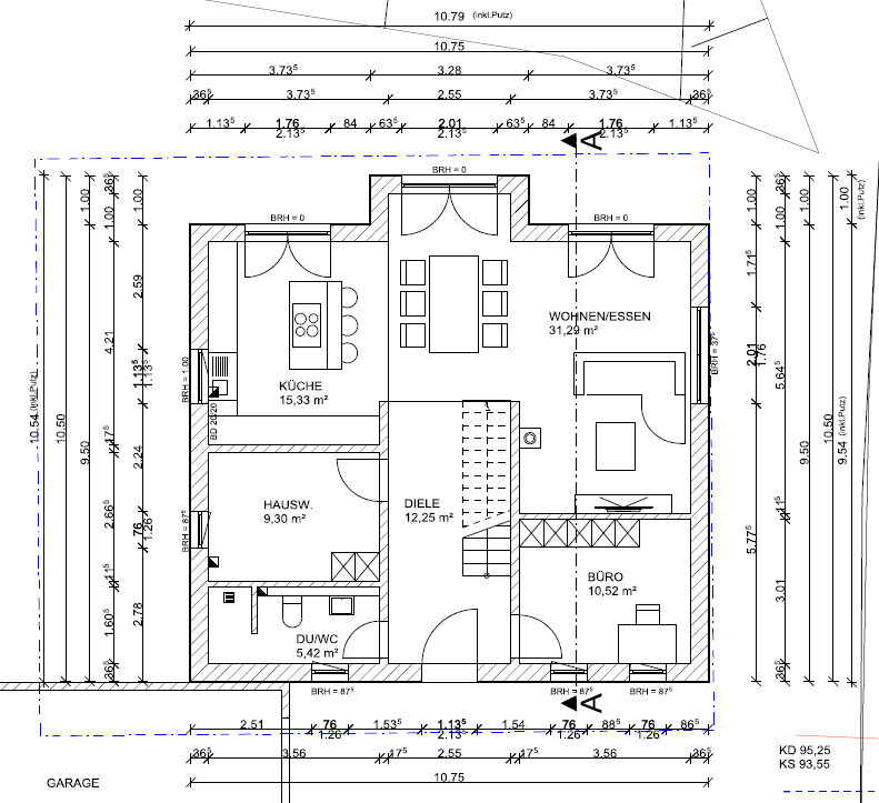
Stilrichtung, Dachform, Gebäudetyp : Einfamilienhaus mit Satteldach zwischen modern und klassisch
Keller, Geschosse : ohne Keller
Anzahl der Personen, Alter : noch 2, 29Jahre, geplant final 4
Büro: Familiennutzung oder Homeoffice? Familiennutzung eher als Gästezimmer
offene Küche, Kochinsel Küche mit Schiebetür, die meist offen stehen wird außer bei Fisch oder Besuch
Kamin Kaminzug für Grundofen geplant
Garage, Carport Garage 9x4m geplant, Carport soll folgen
weitere Wünsche/Besonderheiten/Tagesablauf geplant ist noch ein kleiner Pool
Hausentwurf
Von wem stammt die Planung:
-Planer eines Bauunternehmens Ja
-Architekt Ja
Was gefällt besonders? Ist schon ziemlich nach unseren Vorstellung geplant, jedoch verbesserungswürdig
Was gefällt nicht? Treppe, Anordnung Bad OG
favorisierte Heiztechnik: noch unschlüssig Luft-Wasser-Wärmepumpe oder Gas (braucht aber ST für Energieeinsparverordnung oder? ); Erdwärme nicht erlaubt
Bitte um Verbesserungs-/Optimierungsvorschläge. Insbesondere zur Treppe würde Ich gerne eure Meinungen hören. Das Dachfenster würden wir wahrscheinlich nicht über der Ankleide lassen sondern über den Treppen anordnen, Meinungen?
Edit: Das Haus wird etwa 152m² Wohnfläche haben

Größe des Grundstücks : 549m²
Grundflächenzahl 0,3
Baufenster, Baulinie und -grenze : 14x12m
Geschossigkeit : erlaubt sind 2 mit Traufhöhe bis zu 4m
Dachform : Satteldach 38 -45°
Maximale Höhen/Begrenzungen: Traufhöhe Max. 4m; Firsthöhe Max. 11m
weitere Vorgaben
Anforderungen der Bauherren
Stilrichtung, Dachform, Gebäudetyp : Einfamilienhaus mit Satteldach zwischen modern und klassisch
Keller, Geschosse : ohne Keller
Anzahl der Personen, Alter : noch 2, 29Jahre, geplant final 4
Büro: Familiennutzung oder Homeoffice? Familiennutzung eher als Gästezimmer
offene Küche, Kochinsel Küche mit Schiebetür, die meist offen stehen wird außer bei Fisch oder Besuch
Kamin Kaminzug für Grundofen geplant
Garage, Carport Garage 9x4m geplant, Carport soll folgen
weitere Wünsche/Besonderheiten/Tagesablauf geplant ist noch ein kleiner Pool
Hausentwurf
Von wem stammt die Planung:
-Planer eines Bauunternehmens Ja
-Architekt Ja
Was gefällt besonders? Ist schon ziemlich nach unseren Vorstellung geplant, jedoch verbesserungswürdig
Was gefällt nicht? Treppe, Anordnung Bad OG
favorisierte Heiztechnik: noch unschlüssig Luft-Wasser-Wärmepumpe oder Gas (braucht aber ST für Energieeinsparverordnung oder? ); Erdwärme nicht erlaubt
Bitte um Verbesserungs-/Optimierungsvorschläge. Insbesondere zur Treppe würde Ich gerne eure Meinungen hören. Das Dachfenster würden wir wahrscheinlich nicht über der Ankleide lassen sondern über den Treppen anordnen, Meinungen?
Edit: Das Haus wird etwa 152m² Wohnfläche haben
Also:
-der Ofen kommt in die Wand, dann kommt davor noch ne Verkleidung und die Tür ist gerade.
Sieht aber echt lustig aus
-Die Tür zum Hauswirtschaftsraum würde ich gerne "um die Ecke schieben und die Eingangstür " andersrum aufmachen
- Unter die Treppe soll ein Einbauschrank rein. Sonst wäre der Platz ganz verschenkt.
-Die Abflüsse sind beide über dem Gast/Büro? Darüber hab ich noch gar nicht nachgedacht
Total vermurkst? Ganz neu anfangen?
-der Ofen kommt in die Wand, dann kommt davor noch ne Verkleidung und die Tür ist gerade.
Sieht aber echt lustig aus
-Die Tür zum Hauswirtschaftsraum würde ich gerne "um die Ecke schieben und die Eingangstür " andersrum aufmachen
- Unter die Treppe soll ein Einbauschrank rein. Sonst wäre der Platz ganz verschenkt.
-Die Abflüsse sind beide über dem Gast/Büro? Darüber hab ich noch gar nicht nachgedacht
Total vermurkst? Ganz neu anfangen?
Was hat denn der Planer hier für einen Beruf?
Ja, neu! Es sind grundsätzliche Patzer drin.
Das mit dem Kamin/Schiebetür? kann und wird nicht funktionieren.
Deine Erklärung erklärt sich auch nicht. Wenn ich Ahnung hätte, wäre der Kamin gedreht eingezeichnet oder die beiden Wandstumnel in einer Linie. Eine Schiebetür sehe ich auch nicht, ich sehe eine Linie, die Wohnen und essen trennt. Wo soll da eine Schiebetür hinpassen?
In aller Kürze Grüsse
Ja, neu! Es sind grundsätzliche Patzer drin.
Das mit dem Kamin/Schiebetür? kann und wird nicht funktionieren.
Deine Erklärung erklärt sich auch nicht. Wenn ich Ahnung hätte, wäre der Kamin gedreht eingezeichnet oder die beiden Wandstumnel in einer Linie. Eine Schiebetür sehe ich auch nicht, ich sehe eine Linie, die Wohnen und essen trennt. Wo soll da eine Schiebetür hinpassen?
In aller Kürze Grüsse
Climbee schrieb:
Die Treppe durch's Gästezimmer... naja... suboptimal, aber zur Not kann man darunter einen Einbauschrank machen.Suboptimal mag das ja auf dem Plan noch sein, real wird es viel schlimmer: die Wand zwischen Treppenhaus und Zimmer würde ja auf den Stufen aufstehen müssen, damit unter der Treppe frei sein könnte (da wo das Nachttischchen steht).
Der Planer ist wohl ein großer Fan von M. C. Escher und hat noch keine Baustelle gesehen.
Verschwenkungen macht man bei Landstraßen, bevor sie das Dorf durchfahren, aber nicht bei Unterzügen, unter die man auch schon aus Aberglauben keinen Ofen hinstellen würde
Stünde der andere Wandstummel "ordnungsgemäß" gegenüber und verschöbe man die Öffnungen-Suite linear, schlägt auch die eine Terrassentür nicht mehr in das Sofa; die am Esstisch sollte dann ein Festelement sein - wer braucht zwei rollstuhlbreite Ausgänge so nah nebeneinander ?
Der Haustürsturz hängt an der Anschlagseite optisch in der Luft. Der Rücksprung der Fassade ab da würde beim sogenannten "Bauhausstil" gliedernd wirken mögen, mit Satteldach sieht das aber aus, als wäre versehentlich das Dachgeschoss für ein anderes Erdgeschoss geliefert worden. Aschenbrödels Täubchen werden gurren, der rechte Architekt sitze noch daheim.
https://www.instagram.com/11antgmxde/
https://www.linkedin.com/company/bauen-jetzt/
Cico1 schrieb:
das Haus grundlegend geändert und ich würde gerne Verbessungsvorschläge von euch bekommen.Das werden wohl nicht mehr viele, denn die Änderung war ja wirklich sehr grundlegend. Nun sieht das aktuelle Stand genehmigungsreif aus.Cico1 schrieb:
Die Platzierung des Kaminzugs macht mir noch Kopfzerbrechen,Wieso ? - der scheint mir an einer gut gewählten Stelle zu stehen, ein bißchen weiter abrücken von der Firstpfette sollte und könnte er noch. Was soll an den Schornstein denn dran: ein Gemütlichkeitskamin ? - für eine Feuerungsanlage wäre er ja auf der anderen Hausseite angesagt.Cico1 schrieb:
Die Fenster im OG wollen wir auf 1,26 vergrößern.Das würde ich dann auch im EG berücksichtigen (wo auch noch zu schauen wäre, daß sich das Fenster in der Küche und der Wasserhahn der Spüle nicht in die Quere kommen).https://www.instagram.com/11antgmxde/
https://www.linkedin.com/company/bauen-jetzt/
Ähnliche Themen