Bebauungsplan/Einschränkungen
Größe des Grundstücks : 549m²
Grundflächenzahl 0,3
Baufenster, Baulinie und -grenze : 14x12m
Geschossigkeit : erlaubt sind 2 mit Traufhöhe bis zu 4m
Dachform : Satteldach 38 -45°
Maximale Höhen/Begrenzungen: Traufhöhe Max. 4m; Firsthöhe Max. 11m
weitere Vorgaben
Anforderungen der Bauherren
Stilrichtung, Dachform, Gebäudetyp : Einfamilienhaus mit Satteldach zwischen modern und klassisch
Keller, Geschosse : ohne Keller
Anzahl der Personen, Alter : noch 2, 29Jahre, geplant final 4
Büro: Familiennutzung oder Homeoffice? Familiennutzung eher als Gästezimmer
offene Küche, Kochinsel Küche mit Schiebetür, die meist offen stehen wird außer bei Fisch oder Besuch
Kamin Kaminzug für Grundofen geplant
Garage, Carport Garage 9x4m geplant, Carport soll folgen
weitere Wünsche/Besonderheiten/Tagesablauf geplant ist noch ein kleiner Pool
Hausentwurf
Von wem stammt die Planung:
-Planer eines Bauunternehmens Ja
-Architekt Ja
Was gefällt besonders? Ist schon ziemlich nach unseren Vorstellung geplant, jedoch verbesserungswürdig
Was gefällt nicht? Treppe, Anordnung Bad OG
favorisierte Heiztechnik: noch unschlüssig Luft-Wasser-Wärmepumpe oder Gas (braucht aber ST für Energieeinsparverordnung oder? ); Erdwärme nicht erlaubt
Bitte um Verbesserungs-/Optimierungsvorschläge. Insbesondere zur Treppe würde Ich gerne eure Meinungen hören. Das Dachfenster würden wir wahrscheinlich nicht über der Ankleide lassen sondern über den Treppen anordnen, Meinungen?
Edit: Das Haus wird etwa 152m² Wohnfläche haben

Größe des Grundstücks : 549m²
Grundflächenzahl 0,3
Baufenster, Baulinie und -grenze : 14x12m
Geschossigkeit : erlaubt sind 2 mit Traufhöhe bis zu 4m
Dachform : Satteldach 38 -45°
Maximale Höhen/Begrenzungen: Traufhöhe Max. 4m; Firsthöhe Max. 11m
weitere Vorgaben
Anforderungen der Bauherren
Stilrichtung, Dachform, Gebäudetyp : Einfamilienhaus mit Satteldach zwischen modern und klassisch
Keller, Geschosse : ohne Keller
Anzahl der Personen, Alter : noch 2, 29Jahre, geplant final 4
Büro: Familiennutzung oder Homeoffice? Familiennutzung eher als Gästezimmer
offene Küche, Kochinsel Küche mit Schiebetür, die meist offen stehen wird außer bei Fisch oder Besuch
Kamin Kaminzug für Grundofen geplant
Garage, Carport Garage 9x4m geplant, Carport soll folgen
weitere Wünsche/Besonderheiten/Tagesablauf geplant ist noch ein kleiner Pool
Hausentwurf
Von wem stammt die Planung:
-Planer eines Bauunternehmens Ja
-Architekt Ja
Was gefällt besonders? Ist schon ziemlich nach unseren Vorstellung geplant, jedoch verbesserungswürdig
Was gefällt nicht? Treppe, Anordnung Bad OG
favorisierte Heiztechnik: noch unschlüssig Luft-Wasser-Wärmepumpe oder Gas (braucht aber ST für Energieeinsparverordnung oder? ); Erdwärme nicht erlaubt
Bitte um Verbesserungs-/Optimierungsvorschläge. Insbesondere zur Treppe würde Ich gerne eure Meinungen hören. Das Dachfenster würden wir wahrscheinlich nicht über der Ankleide lassen sondern über den Treppen anordnen, Meinungen?
Edit: Das Haus wird etwa 152m² Wohnfläche haben
Hi zusammen,
nach langer Zeit und etwas hin und her mit mehreren Sachen geht es nun weiter mit den Plänen.
Wir haben Ende des Monats ein Gespräch mit unserem Planer und bis dahin würde Ich gerne Tipps von euch skizzieren und die Zeichnung vorbereiten.
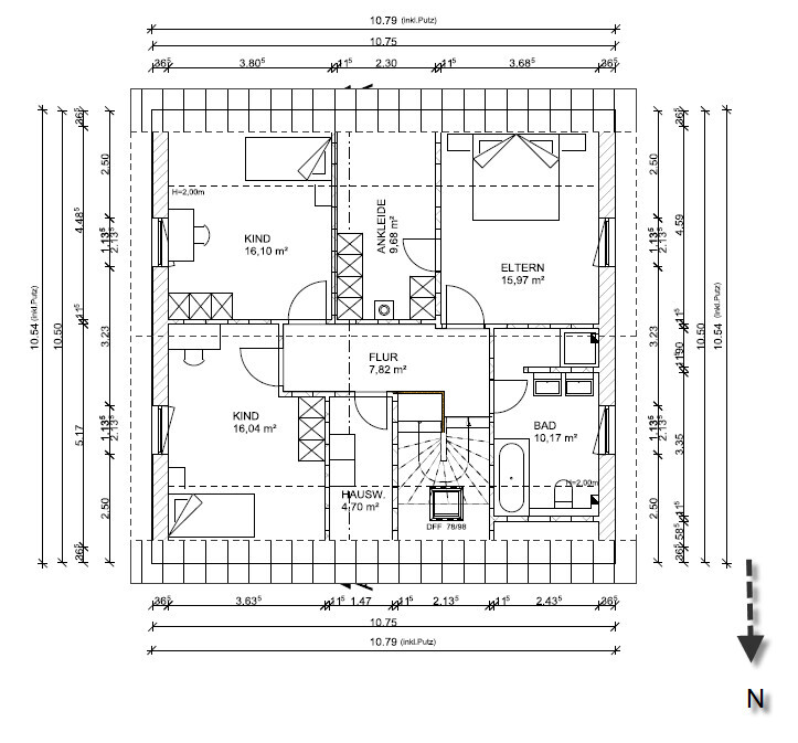
Anbei der aktuelle Stand mit Maßen. Ich habe unten rechts einen Pfeil mit Norden eingemalt.
Gruß
P.S. Wenn es so nicht klappt würde ich die Dateien noch woanders hochladen.


nach langer Zeit und etwas hin und her mit mehreren Sachen geht es nun weiter mit den Plänen.
Wir haben Ende des Monats ein Gespräch mit unserem Planer und bis dahin würde Ich gerne Tipps von euch skizzieren und die Zeichnung vorbereiten.
Anbei der aktuelle Stand mit Maßen. Ich habe unten rechts einen Pfeil mit Norden eingemalt.
Gruß
P.S. Wenn es so nicht klappt würde ich die Dateien noch woanders hochladen.
Wer hat denn diese Planung gemacht?
Gleich zwei Abflüsse, die unten durch ein Zimmer gehen, die Wand im OG überhaupt nicht bündig mit einem überflüssigen Versatz, das gleiche im EG mit der geöffneten Trennwand.
Der Treppenverlauf durch das EG-Zimmer ist die Krönung.
Gruß, Yvonne
Gleich zwei Abflüsse, die unten durch ein Zimmer gehen, die Wand im OG überhaupt nicht bündig mit einem überflüssigen Versatz, das gleiche im EG mit der geöffneten Trennwand.
Der Treppenverlauf durch das EG-Zimmer ist die Krönung.
Gruß, Yvonne
Cico1 schrieb:
nach langer Zeit und etwas hin und her mit mehreren Sachen geht es nun weiter mit den Plänen.Dein Planer sollte sein Lehrgeld zurückgeben. Ich kann leider die ersten Pläne nicht öffnen, sie müssen wohl noch schlimmer gewesen sein, wenn Du nun geändert hast.Vlt. meldet sich noch @Bauexperte, sie scheint Deinen BU wohl zu kennen und hat hoffentlich gute Vorschläge für Dich.
ypg schrieb:
Bauexperte ist hier nicht mehr aktiv!Woanders schon?Zurück auf Start!
So geht das gar nicht. Stimme meinen Vorrednern, äh, Vorschreibern uneingeschränkt zu.
Was ist das für ein Planer????
Sehr lustig: die schiefe Schiebetür um den Ofen rum (das soll doch ein Ofen sein, oder?). Das meint der nicht ernst, oder? Wenn jemand so eine Schiebetür in ein bestehendes Objekt in unübertroffener DIY- Mentalität mal einbaut, würde ich lachen und den Kopf schütteln, aber wenn das so geplant wird, kann man nur eins: den Planer sofort seines Jobs entheben.
Die Treppe durch's Gästezimmer... naja... suboptimal, aber zur Not kann man darunter einen Einbauschrank machen.
Die Badaufteilung finde ich grausam. Wenn ich zur Tür rein komme, stolpere ich dem, der am äußeren Waschbecken Zähne putzt gleich mal in die Lende. Und der arme Kerl, der aus der Dusche kommt und sich vor der Dusche noch abtrocknet, läuft permanent Gefahr, die Tür vor den Latz geknallt zu kriegen.
Die Garderobe ist eher für die Katz, da durch zwei Türen in WC und Hauswirtschaftsraum quasi unbenutzbar. Für ein 4-Personen-Haus auf jeden Fall unzweckmäßig.
So geht das gar nicht. Stimme meinen Vorrednern, äh, Vorschreibern uneingeschränkt zu.
Was ist das für ein Planer????
Sehr lustig: die schiefe Schiebetür um den Ofen rum (das soll doch ein Ofen sein, oder?). Das meint der nicht ernst, oder? Wenn jemand so eine Schiebetür in ein bestehendes Objekt in unübertroffener DIY- Mentalität mal einbaut, würde ich lachen und den Kopf schütteln, aber wenn das so geplant wird, kann man nur eins: den Planer sofort seines Jobs entheben.
Die Treppe durch's Gästezimmer... naja... suboptimal, aber zur Not kann man darunter einen Einbauschrank machen.
Die Badaufteilung finde ich grausam. Wenn ich zur Tür rein komme, stolpere ich dem, der am äußeren Waschbecken Zähne putzt gleich mal in die Lende. Und der arme Kerl, der aus der Dusche kommt und sich vor der Dusche noch abtrocknet, läuft permanent Gefahr, die Tür vor den Latz geknallt zu kriegen.
Die Garderobe ist eher für die Katz, da durch zwei Türen in WC und Hauswirtschaftsraum quasi unbenutzbar. Für ein 4-Personen-Haus auf jeden Fall unzweckmäßig.
Ähnliche Themen