Robert84 schrieb:
Der Balkon und die Terrasse werden auf die Süd West Seite um die Ecke zur Nord West Seite verlagert. Da hat man dann deutlich mehr Platz. Der Balkon dient gleichzeitig als Überdachung für die Terrasse. Da das Gelände leicht zur Ostseite abfällt und der Keller auf der Ostseite rausschaut, plane ich eine Kellertüre wo dann Fahrräder etc. direkt in den Keller verbracht werden können ohne das Treppenhaus zu nutzen.Es bringt keinen richtigen Spaß hier irgendetwas zu überlegen. Die Zeichnungen aus Beitrag 27 scheinen ja auch nicht komplett genordet zu sein, externer Kellerzugang ist auch nicht erkenntlich, genauso müsste es nach der Zwischendurchbeschreibung beim Eingang irgendwie ein Treppenpodest geben.Die Stellplätze so zu verteilen, da sollte man auch die Möglichkeiten zum Laden von Elektroautos berücksichtigen.
Und ich bezweifle immer noch, dass man das alles für 800-850000 hinbekommt.
kbt09 schrieb:
Da ist jetzt ziemliches Flickschustern.So meinte ich es ja auch in meinem Post. Sowas wäre meine Idee, wenn ich quasi ein Haus im Bestand gekauft hätte und nun mit begrenztem Aufwand die Wohnung aufpeppen möchte. Im Neubau würde ich das aber von vorneherein sauber planen. Wie ich schon schrieb braucht man dazu ALLE Informationen zu dem Projekt und den Bewohneren.Robert84 schrieb:
Du meinst in dieser Richtung?Ja, so meinte ich das als ganz grobe Idee, wie man das dunkle Loch auflösen könnte, das man aber gar nicht erst geplant haben sollte. Gäste-WC wäre fü mich PflichtRobert84 schrieb:
Die Terrassentüren sind noch nicht ausgeplant.Die möbel sind wohl auch nicht maßgerecht, wie soll man den aktuell auf den Balkon kommen, ohne sich am Sofa vorbeidrücken zu müssen?Ich hatte ja bereits geschrieben: Einmal einen ganz neuen Thread beginnen mit allen Infos zum Projekt und den Bewohnern.
Klar kann man auch ein bisschen hin und her schubsen, um ein paar Kanten zu glätten aber so kommt man ja nicht zu einem guten Ergebnis.
Der Balkon muss ja genehmigt sein, warum ist er nicht eingezeichnet? Dazu meine voriuge Frage, on jede Wohnung den gleichen bekommt an derselben Ecke?
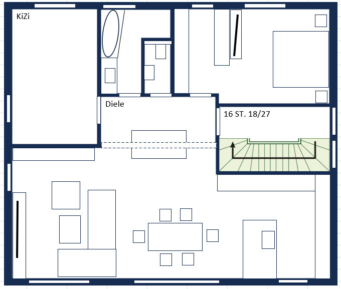
H
hanghaus202315.04.25 10:43H
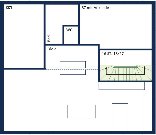
hanghaus202315.04.25 12:46Hier mal noch mit Möbel. Schlafzimmer und Kinderzimmer sind so gross wie bei Deinem ersten Entwurf. Wohn Essbereich sogar 4 m2 mehr. Trotz das das Haus von 150 m2 auf 120m2 reduziert wurde ist es mMn besser zu nutzen.
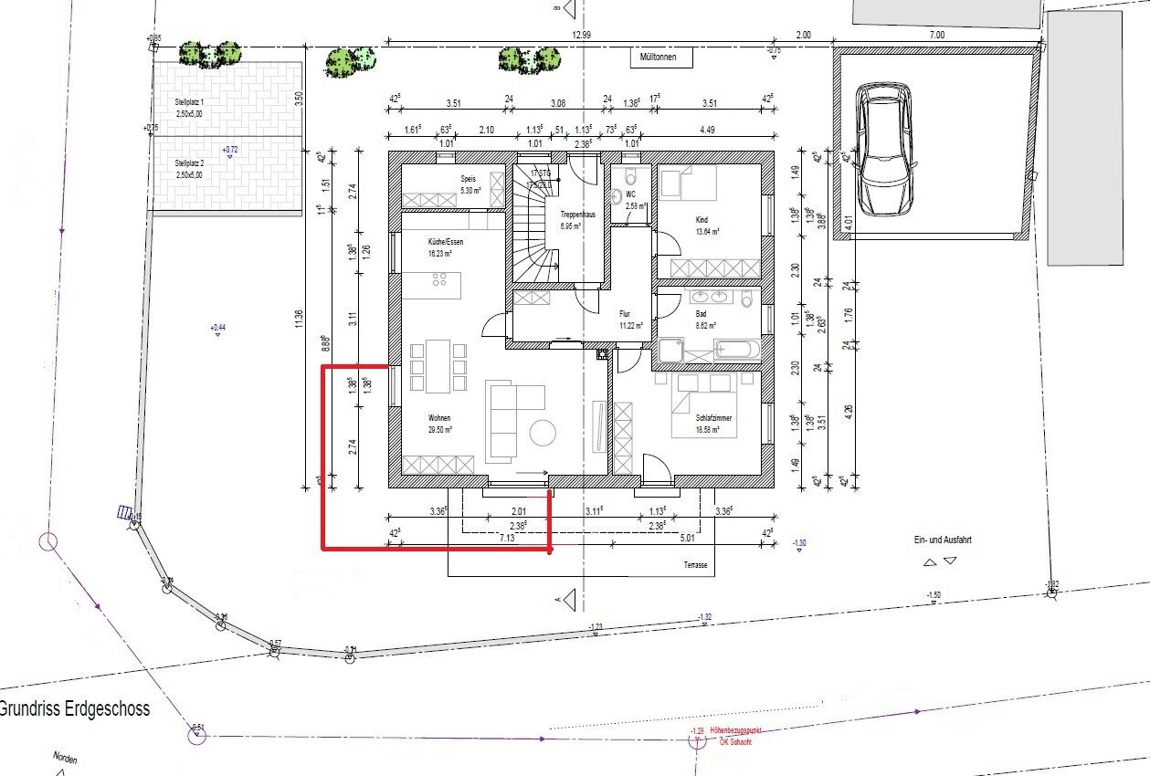
Da ich vermute, das von 2 Wohnungen mind. 1 Wohneinheit behindertengerecht sein soll ist dann das WC im Bad einzuplanen.
Die Speisekammer wird durch 3 zusätzliche Hochschränke ersetzt. Das funktioniert recht gut da die Küche über 0.6m breiter ist.

Da ich vermute, das von 2 Wohnungen mind. 1 Wohneinheit behindertengerecht sein soll ist dann das WC im Bad einzuplanen.
Die Speisekammer wird durch 3 zusätzliche Hochschränke ersetzt. Das funktioniert recht gut da die Küche über 0.6m breiter ist.
Ähnliche Themen