Hausbau - Ratgeber
Bauherrenhilfe
- Bauherrenhilfe vor Vertragsabschluss
-- Warum einen unabhängigen Baubetreuer?
-- Vertragsgrundlagen
-- Bausumme
-- Zahlungsplan zur Kostenkontrolle
-- Pflichten des Bauherren vor Vertragsabschluss
-- Unterlagen beim Hausbau vor Vertragsabschluss
- Bauherrenhilfe nach Vertragsabschluss
-- Bauantrag bei Behörden
-- Bau-Genehmigungsverfahren bei Baubehörden
-- Bauspezifische Versicherungen
-- Bauzeitenplan
-- Baubeginn - die Letzten Pflichten der Bauherrschaft
- Bauherrenhilfe während der Bauzeit
- Gewährleistungsansprüche
- Bauabnahme
Baufinanzierung
- Baufinanzierung - Allgemeine Fragen
- Kreditarten
- Kredit-Konditionen
- Bausparen
- Staatliche Förderungen
- Verkehrswert
- Haushaltsrechnung und Bonität
Hausbau Planung
- Haustypen
- Hausbau Vorbereitungsarbeiten
- Das Baugrundstück
- Baugrund beim Hausbau
- Baurecht
- Gebäudeschutz
- Erdarbeiten und Wasserhaltung
- Stützmauern
- Einfriedung
- Untergeschoss
- Kanalisation
- Tragende Elemente
- Nichttragende Innenwände
- Fundation / Fundament
- Deckenkonstruktionen
- Dächer
- Kaminanlagen
- Treppen Rampen Leitern
- Dachbeläge und Spengler
- Fenster
- Sonnen und Wetterschutz
- Aussenputze
- Einbauten, Küchen, Türen
- Bodenbeläge und Unterlagsböden
- Parkett
- Gips, Wand, Decke
Haustechnik und Energie
- Heiztechnik
- Lüftung und Klimatechnik
- Sanitärtechnik
- Elektrotechnik
- Erneuerbare Energie
Whirlpools / Jacuzzi
Hausbau Magazin
- Baufinanzierung trotz Krise?
- Das Blockhaus
- Moderne Dämmstoffe im Vergleich
- Erker Vor- und Nachteile
- Glasflächen beim Hausbau
- Günstig ein Haus Bauen
- Mediterraner Hausbaustil
- Mehrgenerationenhaus
- Moderne Architektur
- Gartengestaltung leicht gemacht
- Traditioneller Ziegelbau
- Villa als höchster Traum
- Im Eigenheim Ruhestand geniessen
- Altbau sanieren
- Kauf einer Holzgarage
- Immobilienmakler
- Arbeitshandschuhe für den Winter
- Zuhause verschönern
- Outdoor-Plissees
- Schlafzimmer planen
- Terrassenüberdachung
- Wohngebäudeversicherung
- Zaunarten und Eigenschaften
- Hauseingang gestalten
- Der perfekte Grundriss
- Sparsamer heizen im Altbau
- Einfamilienhaus smart finanzieren
- Planung einer PV-Anlage
- Neues Haus
- Immobilienfinanzierung
- Installation einer Photovoltaikanlage
- Asbest erkennen und entfernen
- Gartenpflege im Frühling – worauf achten
- Sauna im Fokus - Wellness zuhause
- Erfolgreich vermieten
- Die perfekte Winterbekleidung
- Das Niedrigenergiehaus
- Der April und seine Stürme
- Architektonische Vielfalt
- Ökologisch und nachhaltig bauen
- Das perfekte Schlafzimmer
- Nachhaltige Energieversorgung
- Zukunftsorientiert bauen
- Nachhaltigkeit beim Hausbau
- Tiny Houses
- Wärmepumpen als nachhaltige Heizvariante
- Maßgeschneiderten Kleiderschrank
- Der richtige Baukredit
- Ratgeber für erfolgreichen Hausbau
- Haus als Altersvorsorge
Do-it-yourself Anleitungen
- Verlegeanleitung für Bodenbeläge und Parkett
- Bodenbeläge und Parkett reinigen und pflegen
- Malerarbeiten am Haus
- Garten Tipps
- Umzug und Reinigung

ᐅ Grundrissplanung eines Zweifamilienhauses

Erstellt am: 25.03.25 19:16
R
Robert84
kbt0925.03.25 21:16
ypg schrieb:

Man kommt rein in einen quadratischen Flur mit Bewegungsfläche und Garderobennische,
Genau, so hatte ich mir meine Wohnung ja auch geplant.
RomeoZwo25.03.25 21:37
Robert84 schrieb:

Doppelhaus ist zu teuer ca. 1 Mio und zu groß.
240m2 + Keller kosten für 240m2 + Keller. Ob das 2 horizontal oder vertikal gestapelte Wohnungen sind, ist dem Preis erstmal egal. Doppelhaus wird teurer, wenn man 2x völlig getrennte Technik will, dass muss hier ja aber nicht sein. Ich denke da auch nicht an ein klassisches gespiegeltes DH, sondern eins mit 2 individuellen "Hälften" die sich durchaus auch überlappen dürfen.
Z.B. die Wohnung für die Eltern fast vollständig im EG und nur z.B. ein Zimmer für Besuch oder den Pflegedienst im OG. Die Hauptwohnung mit "nur" Esszimmer und Küche im EG und die Wohnräume im OG.

Für die Größe halte ich in Augsburg übrigens 800k für völlig illusorisch.
240m2 * 3500€/m2 sind schon 840k + Keller 100k + Baunebenkosten.
Ja, das wird bei 1 Mio. landen. So oder so.
Y
ypg
25.03.25 21:41
kbt09 schrieb:

Genau, so hatte ich mir meine Wohnung ja auch geplant.
Ich weiß jetzt nicht, ob Du im Mehrfamilienhaus wohnst oder im OG eines Zweifamilienhaus, aber letztendlich gilt: wenn man in einem Mehrfamilienhaus, wo meist links und rechts noch Nachbarn wohnen und keine Fenster möglich sind, dennoch fast überall Tageslicht hinbekommt, dann sollte es wohl auch auf einer Grundfläche möglich sein, wo man an allen vier Seiten Außenwände hat. Man verzichtet halt auf ungemütliche zu lange Flure, also nutzlose Qm und verbindet Wohnen und trennt die Privatzone.
RomeoZwo25.03.25 21:48
ypg schrieb:

Daran musste ich denken: eingestaubte Alt-Grundrisse, als Wohnen noch nicht Leben war.

Ne, die waren sogar 1968 kreativer. Immerhin getrenntes WC und "schrägen" Flur um den Zugang zum WC zu ermöglichen (60er Tür fehlt in der Skizze).


Grundriss einer Wohnung mit Wohnzimmer, Küche, Schlafzimmer, Kinderzimmer, Bad und Flur.
Y
ypg
25.03.25 22:11
Ach, man braucht doch nur den ein oder anderen Häuslebauer googeln. Wir leben schließlich im Zeitalter des Internets.
Ich finde innerhalb von 5 Minuten zig Grundrissideen, wahrlich alle wertvoller ein der im Eingangsbeitrag. Kann überhaupt nicht verstehen, wie man das nicht selbst erkennt.
Zweistöckiger Grundriss eines Hauses mit Erd- und Dachgeschoss, Wohnraum und Küche.

Grundriss eines Hauses mit Erdgeschoss und Dachgeschoss, Zimmer, Küche und Bad.

Zweistöckiger Grundriss eines Hauses mit zwei Wohnungen, Wohnzimmer, Küche und Treppenhaus.

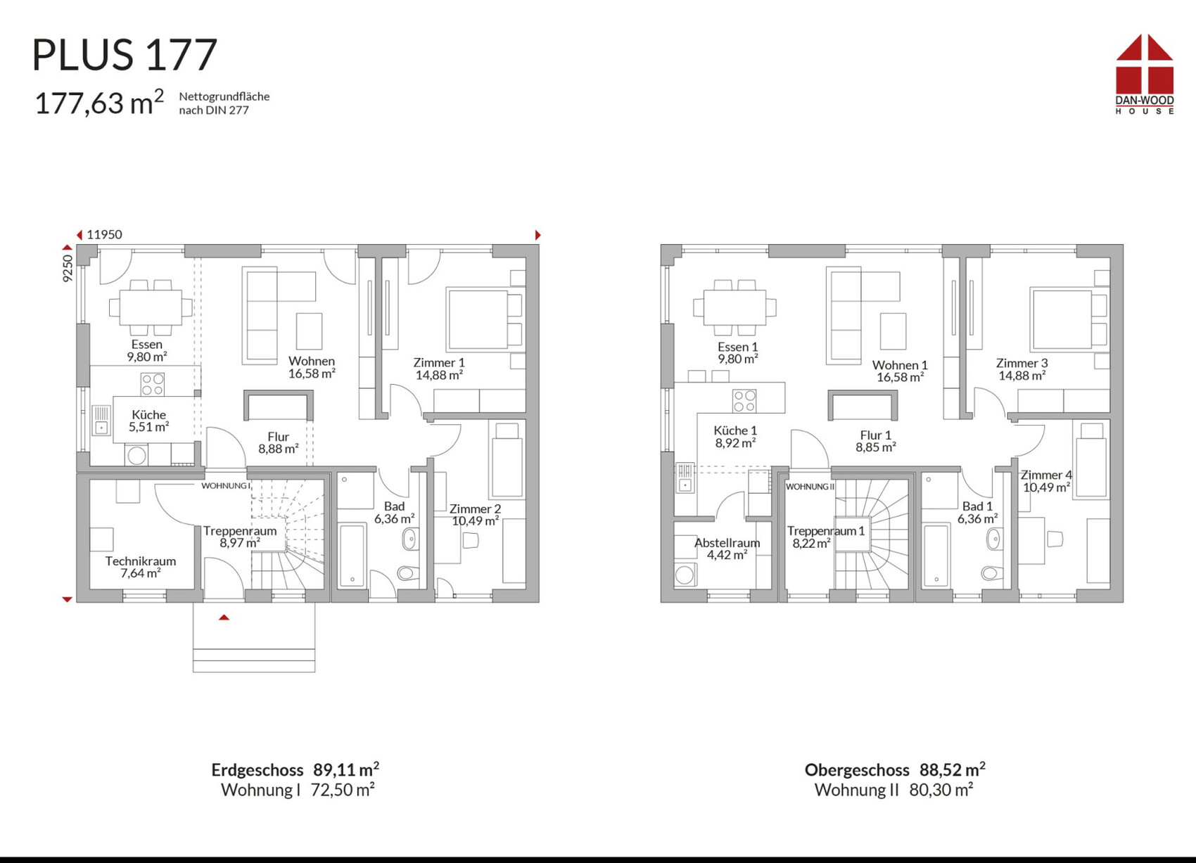
Zweistöckiger Hausgrundriss: Erdgeschoss und Obergeschoss mit Wohnen, Essen, Küche und Zimmern.
11ant26.03.25 00:20
Robert84 schrieb:

in plane ein Zweifamilienhaus in der Nähe von Augsburg. Es sollen 2 Wohnungen mit jeweils ca. 100 qm übereinander entstehen.
Ich habe jetzt eine grobe Planung von meiner Bauzeichnerin zugeschickt bekommen. Was haltet ihr von der Raumaufteilung? Das Grundstück hat 600 qm und ist länger als breit. Es soll mit Doppelgarage und Keller gebaut werden.
Ich schließe mich dem allgemeinen Ruf nach mehr Details / ausgefülltem Fragebogen an (und ebenso der Bewertung des Entwurfes als Nullachtvierzehnkommaneun). Im übrigen fühle ich mich hier vom Murmeltier gegrüßt: https://www.hausbau-forum.de/threads/grundriss-haus-auf-2-etagen-mit-leichter-hanglage.46014/ bzw. https://www.hausbau-forum.de/threads/einfamilienhaus-ausrichtung-garten-und-terrasse-sueden-oder-westen.47167/
https://www.instagram.com/11antgmxde/
https://www.linkedin.com/company/bauen-jetzt/
kellerwohnungmehrfamilienhaus