ᐅ Balkon überdacht oder außenliegend
Erstellt am: 20.08.19 22:29
G
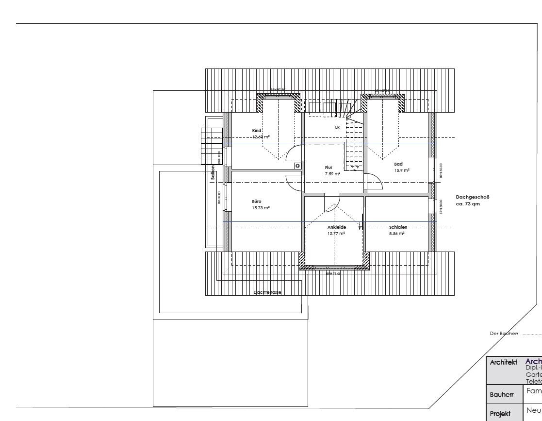
Guido198020.08.19 22:29Es gibt aktuell bei der Hausplanung zwei Varianten zur Auswahl:
Variante A mit innenliegendem/überdachtem Balkon zu Lasten der Wohnfläche im Dachgeschoss

Variante B außenliegender Balkon unüberdacht


Welche Variante würdet Ihr favorisieren bzw. wo sind die Vor- und Nachteile? (Es geht hier nicht um Raumaufteilung oder sonstigen, einzig und allein um die Balkongestaltung)

Variante A mit innenliegendem/überdachtem Balkon zu Lasten der Wohnfläche im Dachgeschoss
Variante B außenliegender Balkon unüberdacht
Welche Variante würdet Ihr favorisieren bzw. wo sind die Vor- und Nachteile? (Es geht hier nicht um Raumaufteilung oder sonstigen, einzig und allein um die Balkongestaltung)
Guten Morgen.
Optisch finde ich den innenliegenden ansprechender. ABER:
Wozu einen Balkon??? Wie möchtest du ihn nutzen? In aller Regel wirst du dich wohl auf der Terrasse aufhalten (mehr Platz - für Familie und Freunde, Nähe zum Garten & Küche).
Außer bei einer Einliegerwohnung habe ich noch niemanden einen Balkon nutzen gesehen, wenn eine Terrasse zur Verfügung steht!?
Ein Möglichkeit, wenn du es dir platztechnisch leisten kannst: Die jetzt angedachte Balkonfläche (ggf. etwas mehr) auch im EG aussparen, Dachüberstand erhöhen und du hast sofort eine überdachte Terrasse.
Ich spreche hier aus eigener Erfahrung. Während unsere Nachbarn auch noch im zweiten Jahr (aller Voraussicht nach auch noch im dritten, vierten, ...) auf der Terrasse braten, sitzen wir von Anfang an geschützt auf der Terrasse. Und so ein warmes Sommergewitter unter so einer überdachten Terrasse ist auch sehr entspannend - kann ich dir sagen
(Zwecks Sonnenschutz muss ich aber erwähnen, dass wir oben kein Vollgeschoss haben - somit das Dach auch etwas tiefer kommt. Es soll hier nur als Gedanke/Idee dienen, da man in aller Regel sich anfangs das Geld für eine Überdachung der Terrasse einspart, speziell bei einer Südausrichtung wie bei uns.)
Optisch finde ich den innenliegenden ansprechender. ABER:
Wozu einen Balkon??? Wie möchtest du ihn nutzen? In aller Regel wirst du dich wohl auf der Terrasse aufhalten (mehr Platz - für Familie und Freunde, Nähe zum Garten & Küche).
Außer bei einer Einliegerwohnung habe ich noch niemanden einen Balkon nutzen gesehen, wenn eine Terrasse zur Verfügung steht!?
Ein Möglichkeit, wenn du es dir platztechnisch leisten kannst: Die jetzt angedachte Balkonfläche (ggf. etwas mehr) auch im EG aussparen, Dachüberstand erhöhen und du hast sofort eine überdachte Terrasse.
Ich spreche hier aus eigener Erfahrung. Während unsere Nachbarn auch noch im zweiten Jahr (aller Voraussicht nach auch noch im dritten, vierten, ...) auf der Terrasse braten, sitzen wir von Anfang an geschützt auf der Terrasse. Und so ein warmes Sommergewitter unter so einer überdachten Terrasse ist auch sehr entspannend - kann ich dir sagen
(Zwecks Sonnenschutz muss ich aber erwähnen, dass wir oben kein Vollgeschoss haben - somit das Dach auch etwas tiefer kommt. Es soll hier nur als Gedanke/Idee dienen, da man in aller Regel sich anfangs das Geld für eine Überdachung der Terrasse einspart, speziell bei einer Südausrichtung wie bei uns.)
G
Guido198021.08.19 10:28Winjoe1 schrieb:
Guten Morgen.
Optisch finde ich den innenliegenden ansprechender. ABER:
Wozu einen Balkon??? Wie möchtest du ihn nutzen? In aller Regel wirst du dich wohl auf der Terrasse aufhalten (mehr Platz - für Familie und Freunde, Nähe zum Garten & Küche).
Außer bei einer Einliegerwohnung habe ich noch niemanden einen Balkon nutzen gesehen, wenn eine Terrasse zur Verfügung steht!?
Ein Möglichkeit, wenn du es dir platztechnisch leisten kannst: Die jetzt angedachte Balkonfläche (ggf. etwas mehr) auch im EG aussparen, Dachüberstand erhöhen und du hast sofort eine überdachte Terrasse.
Ich spreche hier aus eigener Erfahrung. Während unsere Nachbarn auch noch im zweiten Jahr (aller Voraussicht nach auch noch im dritten, vierten, ...) auf der Terrasse braten, sitzen wir von Anfang an geschützt auf der Terrasse. Und so ein warmes Sommergewitter unter so einer überdachten Terrasse ist auch sehr entspannend - kann ich dir sagen
(Zwecks Sonnenschutz muss ich aber erwähnen, dass wir oben kein Vollgeschoss haben - somit das Dach auch etwas tiefer kommt. Es soll hier nur als Gedanke/Idee dienen, da man in aller Regel sich anfangs das Geld für eine Überdachung der Terrasse einspart, speziell bei einer Südausrichtung wie bei uns.)Guten Morgen,
vielen Dank für Deine Denkanstöße.
Also die Grundrissplanung gibt vor, dass der Balkon vor dem Büro angeordnet wird. Da ich viel von zuhause aus arbeite, wäre das Ziel, dass der Balkon auch zum Arbeiten genutzt werden kann.
Das würde prinzipiell für einen überdachten Balkon sprechen, da dieser windstiller (wegfliegende Blätter, Windgeräusche beim Telefonieren) ist und die Beschattung ein Arbeiten am Laptop eher bzw. besser zu lässt.
Außerdem sitzt man nicht so auf dem Präsentierteller.
Die Terrasse bietet sich dafür nicht so sehr an, weil man dann den langen Weg ins Büro hat und außerdem dort mehr Leben sein wird, als auf dem "abgeschotteten" Balkonbereich.
Andersrum ist es auch suboptimal und m.E. nicht mehr zeitgemäß zu Lasten eines Balkons Wohnraum zu opfern.
Für die außenliegende Variante spricht, dass man eben die volle Dachgeschossfläche als Wohnraum nutzen kann und den Balkon auch zum Sonnen nutzen könnte, was aber wohl eher in der Praxis nicht vorkommen wird, da man dafür wirklich die Terrasse nutzen wird.
Dann müsste man sich wiederum fragen, ob der Balkon überhaupt erforderlich ist, wenn er zum Arbeiten nur eingeschränkt nutzbar ist und ansonsten keine wirkliche Daseinsberechtigung hat, denn als Beschattung oder Überdachung für die darunter liegende Terrasse wird er aufgrund der Abmessungen ebenfalls nicht nutzbar sein.
Wie würdet ihr Kosten bzw. das Einsparpotenzial für einen außenliegenden Balkon inkl. Geländer ungefähr beziffern?
Das Haus im EG auszusparen scheidet aus, weil dann zu viel Wohnraum verloren geht. Außerdem ist bei der zweiseitigen Terrassenausrichtung Süd und West ja durchaus die Option da, dass man auch ein schattiges Plätzen findet. Alternativ Überdachung/Markise/sonnenschirm!
Moin,
im Prinzip bin ich auch der Meinung, dass ein Balkon bei einem Einfamilienhaus kompletter Blödsinn und Geldverschwendung ist. Wenn du allerdings wirklich viel von daheim aus arbeitest, könnte der ein netter Luxus sein. Dann allerdings die Version "innenliegend", auch die Optik ziemlich 80iger ist.
In welcher Himmelsrichtung liegt der denn?
Gruß,
Andreas
im Prinzip bin ich auch der Meinung, dass ein Balkon bei einem Einfamilienhaus kompletter Blödsinn und Geldverschwendung ist. Wenn du allerdings wirklich viel von daheim aus arbeitest, könnte der ein netter Luxus sein. Dann allerdings die Version "innenliegend", auch die Optik ziemlich 80iger ist.
In welcher Himmelsrichtung liegt der denn?
Gruß,
Andreas
Sitzt man zum Arbeiten wirklich auf dem Balkon? *grübel*
Glaub, das hört sich schöner an als es ist und dass man das schnell wieder bleiben lässt.
Wir haben aus optischen Gründen einen Balkon. In Summe (und u. a. weil wir ein sauteures Geländer genommen haben) dürfte der Preis für die Platte, die Wärmeentkoppelung, Estrich, Fliesen und eben Geländer aber schon ein eher hoher vierstelliger Betrag sein. Ob der Balkon darüber raus statisch einen unterschied gemacht hat (teurer wegen Mehraufwand) weiß ich nicht.
Glaub, das hört sich schöner an als es ist und dass man das schnell wieder bleiben lässt.
Wir haben aus optischen Gründen einen Balkon. In Summe (und u. a. weil wir ein sauteures Geländer genommen haben) dürfte der Preis für die Platte, die Wärmeentkoppelung, Estrich, Fliesen und eben Geländer aber schon ein eher hoher vierstelliger Betrag sein. Ob der Balkon darüber raus statisch einen unterschied gemacht hat (teurer wegen Mehraufwand) weiß ich nicht.
Ähnliche Themen