ᐅ Grundriss Penthouse Wohnung anders planen
Erstellt am: 02.03.22 22:47
Hallo Zusammen,
wir haben die Möglichkeit, eine knapp 100qm Penthouse Wohnung zu erwerben.
Aktuell liegen die Unterlagen des Bauträgers beim Amt, wodurch wir noch in einem sehr sehr frühen Status sind.
Fertigstellung ist für 2024 geplant.
Wir möchten bewusst keine große Wohnung, wodurch wir mit der Wohnfläche ( ohne Terrasse) super klar kommen.
Allerdings ist die Aufteilung nicht wirklich das, was wir von einem großen offenen Wohn- Essbereich verstehen.
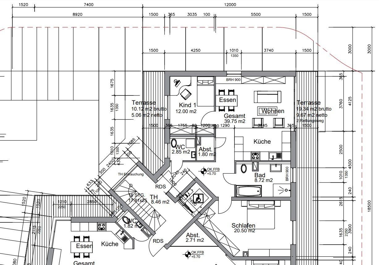
Im Anhang dazu mal der Originale Entwurf(Wohnung alter Grundriss).
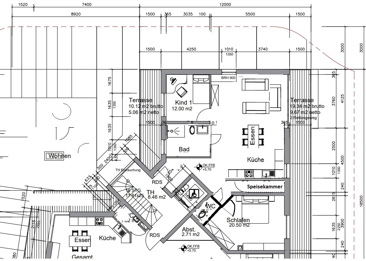
Dazu von uns, einmal mit veränderten Bad, versetzter Küche + Speise/Abstellkammer der neue Entwurf(Wohnung neu) sowie unsere
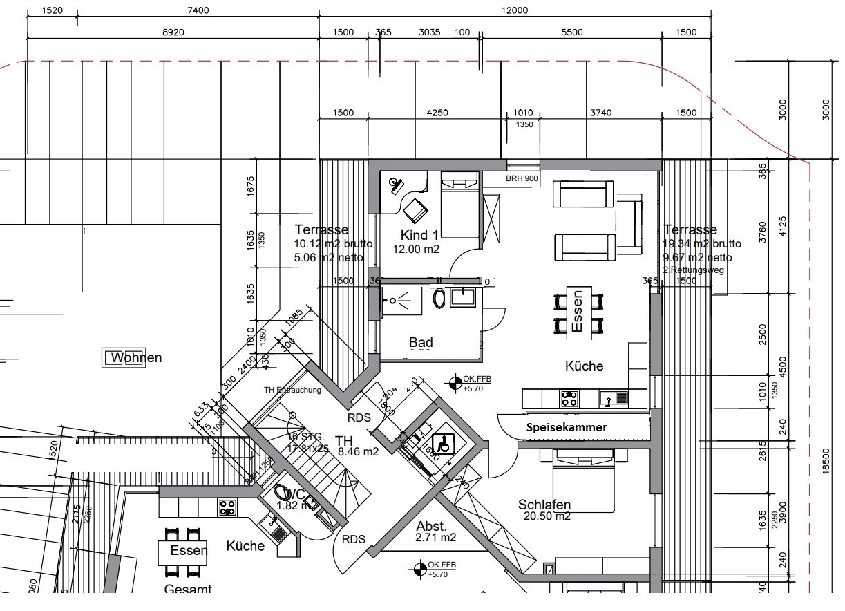
Deluxe Version, mit Gäste-WC neben dem Schlafzimmer(Wohnung neu incl Gäste-WC).
Ob diese Deluxe Version umgesetzt werden kann ( Zu- und Ablauf) kann ich aktuell noch nicht sagen.
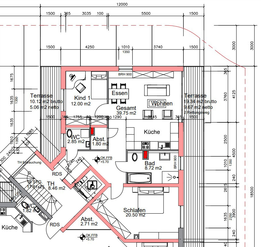
In dem ersten Entwurf von uns würden Leitungen genauso an den selben Stellen genutzt werden.
Ist dies so überhaupt möglich? Wie sieht es mit den tragenden Wänden aus?
Vielen Dank für eine Einschätzung, vielleicht bekomme ich auch nochmal direkt neuen/ anderen Input.
Grüße



wir haben die Möglichkeit, eine knapp 100qm Penthouse Wohnung zu erwerben.
Aktuell liegen die Unterlagen des Bauträgers beim Amt, wodurch wir noch in einem sehr sehr frühen Status sind.
Fertigstellung ist für 2024 geplant.
Wir möchten bewusst keine große Wohnung, wodurch wir mit der Wohnfläche ( ohne Terrasse) super klar kommen.
Allerdings ist die Aufteilung nicht wirklich das, was wir von einem großen offenen Wohn- Essbereich verstehen.
Im Anhang dazu mal der Originale Entwurf(Wohnung alter Grundriss).
Dazu von uns, einmal mit veränderten Bad, versetzter Küche + Speise/Abstellkammer der neue Entwurf(Wohnung neu) sowie unsere
Deluxe Version, mit Gäste-WC neben dem Schlafzimmer(Wohnung neu incl Gäste-WC).
Ob diese Deluxe Version umgesetzt werden kann ( Zu- und Ablauf) kann ich aktuell noch nicht sagen.
In dem ersten Entwurf von uns würden Leitungen genauso an den selben Stellen genutzt werden.
Ist dies so überhaupt möglich? Wie sieht es mit den tragenden Wänden aus?
Vielen Dank für eine Einschätzung, vielleicht bekomme ich auch nochmal direkt neuen/ anderen Input.
Grüße
Hmm .. es fehlen ein paar Angaben über Personen, die dort wohnen sollen, Nutzung von Räumen usw. Außerdem vermisse ich einen Nord-/Südpfeil.
Beide Varianten von offenem Wohn/Ess/Kochraum sind nicht gerade großzügig. Man muss auch sofa/Terrassenzugang beachten.
In eurer geplanten Variante ist der Zugang zum Hauptbad prominent im öffentlichen Raum.
Was stellst du dir unter der nur knapp 100 cm breiten Schlauchspeisekammer vor? Die ist quasi mehr als unpraktisch.
In der Ursprungsvariante gibt es ja noch den Abstellraum, wo vermutlich die Waschmaschine geplant ist ... wo soll denn die jetzt hin?
Insgesamt ein paar mehr Erläuterungen, wer wie warum so leben soll, wären mehr als sinnvoll.
Ich sehe übrigens auch keine 100 qm ... da zählen wohl die Terrassenflächen schon jeweils zur Hälfte dazu. Die Räumlichkeiten selber scheinen so 85 bis max. 90 qm zu haben.
Beide Varianten von offenem Wohn/Ess/Kochraum sind nicht gerade großzügig. Man muss auch sofa/Terrassenzugang beachten.
In eurer geplanten Variante ist der Zugang zum Hauptbad prominent im öffentlichen Raum.
Was stellst du dir unter der nur knapp 100 cm breiten Schlauchspeisekammer vor? Die ist quasi mehr als unpraktisch.
In der Ursprungsvariante gibt es ja noch den Abstellraum, wo vermutlich die Waschmaschine geplant ist ... wo soll denn die jetzt hin?
Insgesamt ein paar mehr Erläuterungen, wer wie warum so leben soll, wären mehr als sinnvoll.
Ich sehe übrigens auch keine 100 qm ... da zählen wohl die Terrassenflächen schon jeweils zur Hälfte dazu. Die Räumlichkeiten selber scheinen so 85 bis max. 90 qm zu haben.
Ein Penthouse ist keine Insel - insofern fehlt uns das Stockwerk darunter zu kennen ...
https://www.instagram.com/11antgmxde/
https://www.linkedin.com/company/bauen-jetzt/
mayor333 schrieb:... genau das erkenne ich hier nicht klar.
In dem ersten Entwurf von uns würden Leitungen genauso an den selben Stellen genutzt werden.
https://www.instagram.com/11antgmxde/
https://www.linkedin.com/company/bauen-jetzt/
K
K a t j a03.03.22 08:12M
Myrna_Loy03.03.22 08:49Falls da wirklich ein Kind mit einzieht, würde ich Schlafzimmer und Kind1 tauschen. Unsere Kinder sind beide erstaunlich lärmempfindlich und wachen auf, wenn der Fernseher oder Besuch zu laut sind.
T
Tolentino03.03.22 09:17Ich glaube die Wohnung ist nichts für eine Familie mit Kind(ern), sorry. Das ist so eine typische DINK Wohnung, wo allenfalls ein Büro, aber kein Kinderzimmer reinpasst.
Ähnliche Themen