ᐅ Grundrissplanung eines Zweifamilienhauses
Erstellt am: 25.03.25 19:16
Hallo zusammen,
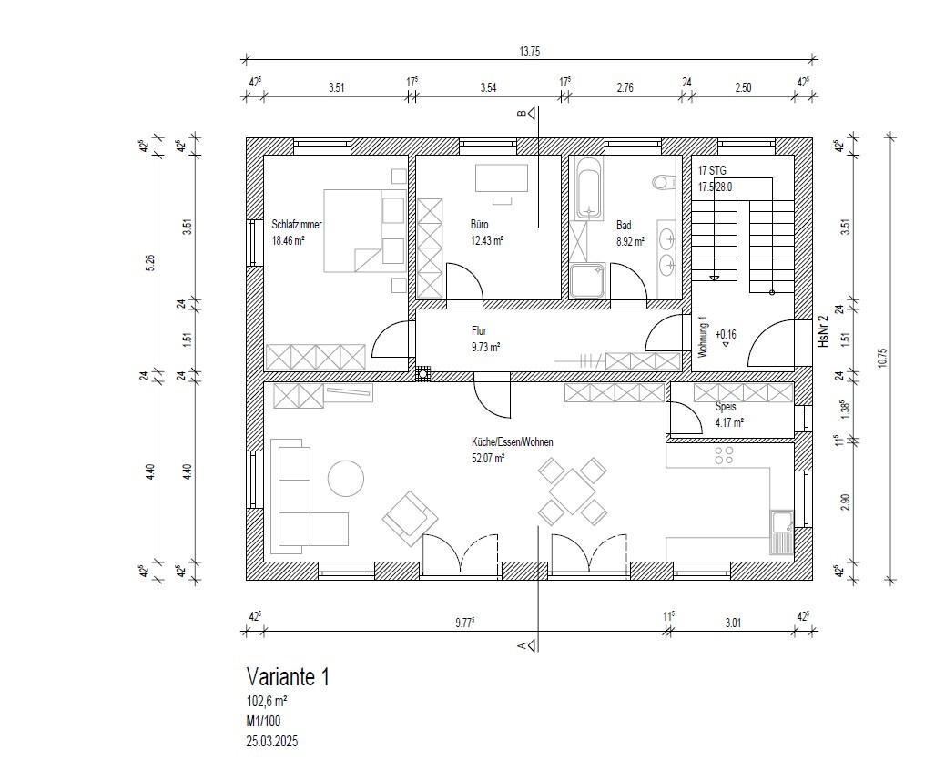
in plane ein Zweifamilienhaus in der Nähe von Augsburg. Es sollen 2 Wohnungen mit jeweils ca. 100 qm übereinander entstehen.
Ich habe jetzt eine grobe Planung von meiner Bauzeichnerin zugeschickt bekommen. Was haltet ihr von der Raumaufteilung? Das Grundstück hat 600 qm und ist länger als breit. Es soll mit Doppelgarage und Keller gebaut werden. Ich finde aktuelle die Variante 1 besser, wobei eventuell das fehlende 2 Kinderzimmer (bei Vermietung) stören könnte. Was meint ihr?
Ich werde eine Wohnung selbst bewohnen und die andere Wohnung soll erstmal von meinen Eltern bewohnt werden. Langfristig eventuell dann vermietet werden.
Würde mich über Verbesserungsvorschläge freuen.
Gruß
Robert


in plane ein Zweifamilienhaus in der Nähe von Augsburg. Es sollen 2 Wohnungen mit jeweils ca. 100 qm übereinander entstehen.
Ich habe jetzt eine grobe Planung von meiner Bauzeichnerin zugeschickt bekommen. Was haltet ihr von der Raumaufteilung? Das Grundstück hat 600 qm und ist länger als breit. Es soll mit Doppelgarage und Keller gebaut werden. Ich finde aktuelle die Variante 1 besser, wobei eventuell das fehlende 2 Kinderzimmer (bei Vermietung) stören könnte. Was meint ihr?
Ich werde eine Wohnung selbst bewohnen und die andere Wohnung soll erstmal von meinen Eltern bewohnt werden. Langfristig eventuell dann vermietet werden.
Würde mich über Verbesserungsvorschläge freuen.
Gruß
Robert
Das sind sehr wenige Eingangsinformationen für eine seriöse Beantwortung einer Frage:
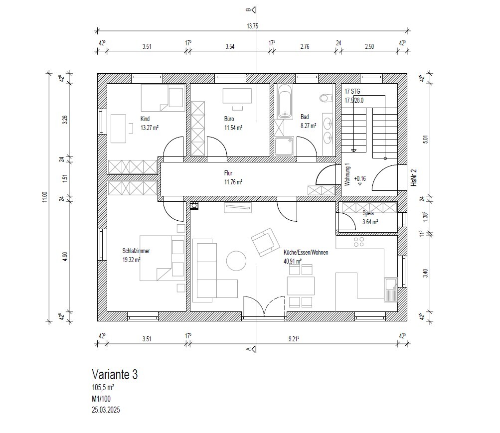
Bei mir wären beide Entwürfe gleichermaßen sofort raus, da sie beide eine endlos lange Dunkelkammer als Flur haben. Weiter habe ich dann nicht mehr geschaut, weil das für mich in einem modernen Neubau nicht infrage käme.
Bei mir wären beide Entwürfe gleichermaßen sofort raus, da sie beide eine endlos lange Dunkelkammer als Flur haben. Weiter habe ich dann nicht mehr geschaut, weil das für mich in einem modernen Neubau nicht infrage käme.
Wir haben in diesem Bereich einen angepinnten Beitrag. Wäre sinnvoll danach zu handeln. Da wäre dann z. B. ein Lageplan dabei, wo man auch erkennen kann, wie sich das Grundstück und die Hauslage einpassen. Wo z. B. Terrasse(n), Balkone sind, wie die Ausrichtung ist usw.
Nur mal so am Rande. Die Wohnflächen sind in der einen Variante ca. 106/107 qm und in der anderen Variante knapp 110 qm, dazu das Treppenhaus.
Erlaubt das Grundstück diese Bebauung?
Dem Statement mit dem langen Flur schließe ich mich an und ergänze noch, dass z. B. die Schlafzimmervarianten mit 18 bis knapp 20 qm recht groß sind, aber keine 3m Schrank erlauben.
Nur mal so am Rande. Die Wohnflächen sind in der einen Variante ca. 106/107 qm und in der anderen Variante knapp 110 qm, dazu das Treppenhaus.
Erlaubt das Grundstück diese Bebauung?
Dem Statement mit dem langen Flur schließe ich mich an und ergänze noch, dass z. B. die Schlafzimmervarianten mit 18 bis knapp 20 qm recht groß sind, aber keine 3m Schrank erlauben.
Robert84 schrieb:
Du kannst mir gerne sagen, wie man den Flur verkleinern kann um mehr Platz zu schaffen. Das Treppenhaus sollte schon auf der Ostseite des Hauses sein, da sich dort der Eingang und die Doppelgarage befindet.Es macht generell wenig Sinn für das Forum, sich lediglich mit einem begrenzten Ausschnitt eines Hauses zu beschäftigen. Um ein gutes Ergebnis an Antworten zu erhalten solltest Du das gesamte Projekt vorstellen; dazu gibt es den vielzitierten Fragebogen.Je mehr rein kommt an Informationen umso mehr kommt raus.
Wohnen kann man überall und auch endlos viele Weisen, insofern muss man den Kontext der jeweilige Bewohner kennen, um sich dazu äußern zu können.
Magst Du Dein Projekt hier einstellen?
K
K a t j a25.03.25 19:58Robert84 schrieb:
...da sich dort der Eingang und die Doppelgarage befindet.Warum? Bitte Lageplan inkl. Nebengebäude hochladen.Ähnliche Themen