S
skybiker200006.09.16 23:15Danke Maria für den Hinweis! Daran haben wir bisher noch nicht gedacht.
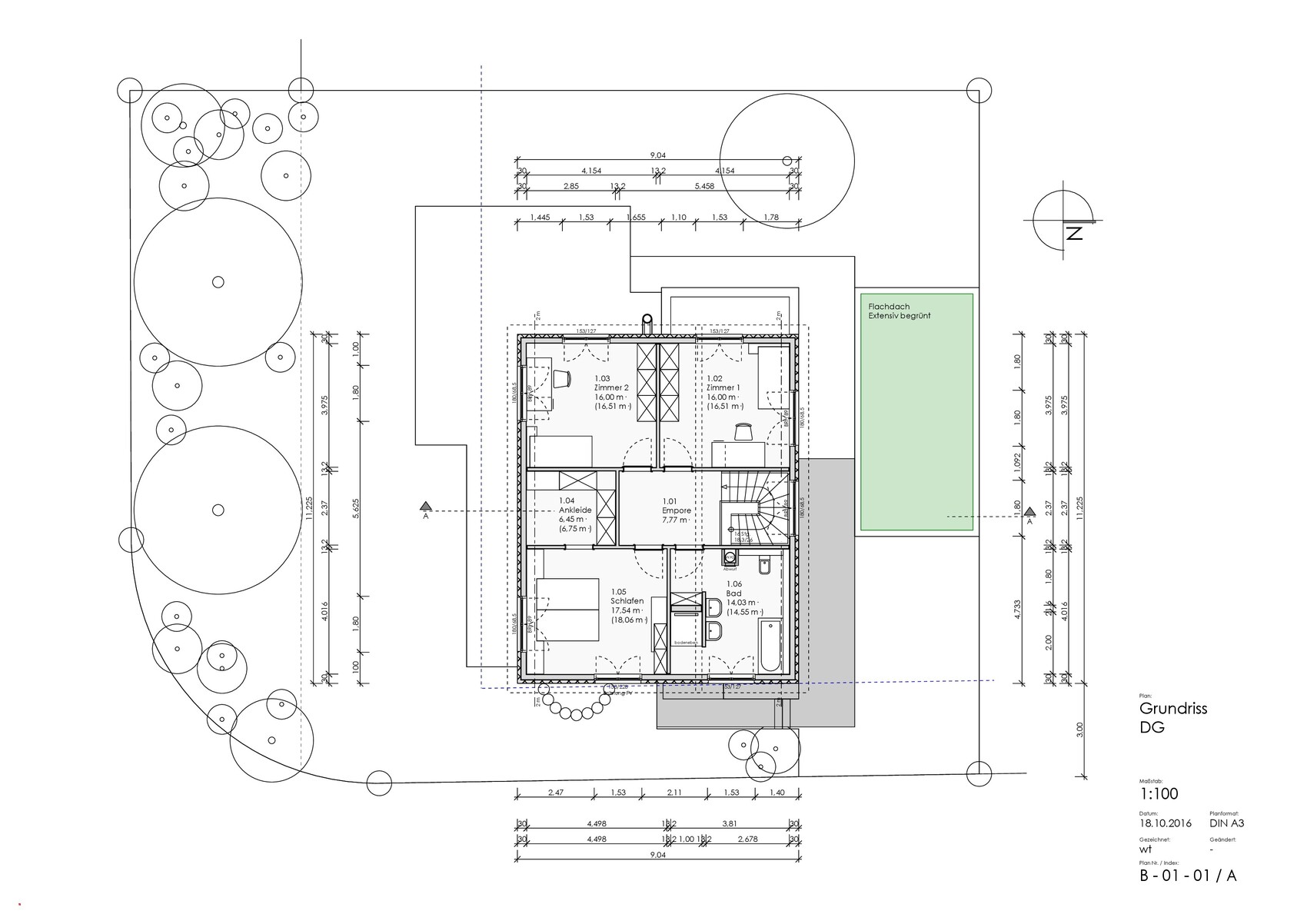
Ich habe mir gerade noch einmal die Pläne angeschaut. In der Südansicht macht sich der höhere Kniestock bemerkbar. Die Außenwand im OG sieht irgendwie kahl aus. Was meint ihr? Im Kinderzimmer (Zimmer 2) wollen wir noch ein Kniestockfenster unterbringen.
Im Schlafzimmer ist hierfür kein Platz da das Bett im Weg stehen würde.
Ich habe mir gerade noch einmal die Pläne angeschaut. In der Südansicht macht sich der höhere Kniestock bemerkbar. Die Außenwand im OG sieht irgendwie kahl aus. Was meint ihr? Im Kinderzimmer (Zimmer 2) wollen wir noch ein Kniestockfenster unterbringen.
Im Schlafzimmer ist hierfür kein Platz da das Bett im Weg stehen würde.
S
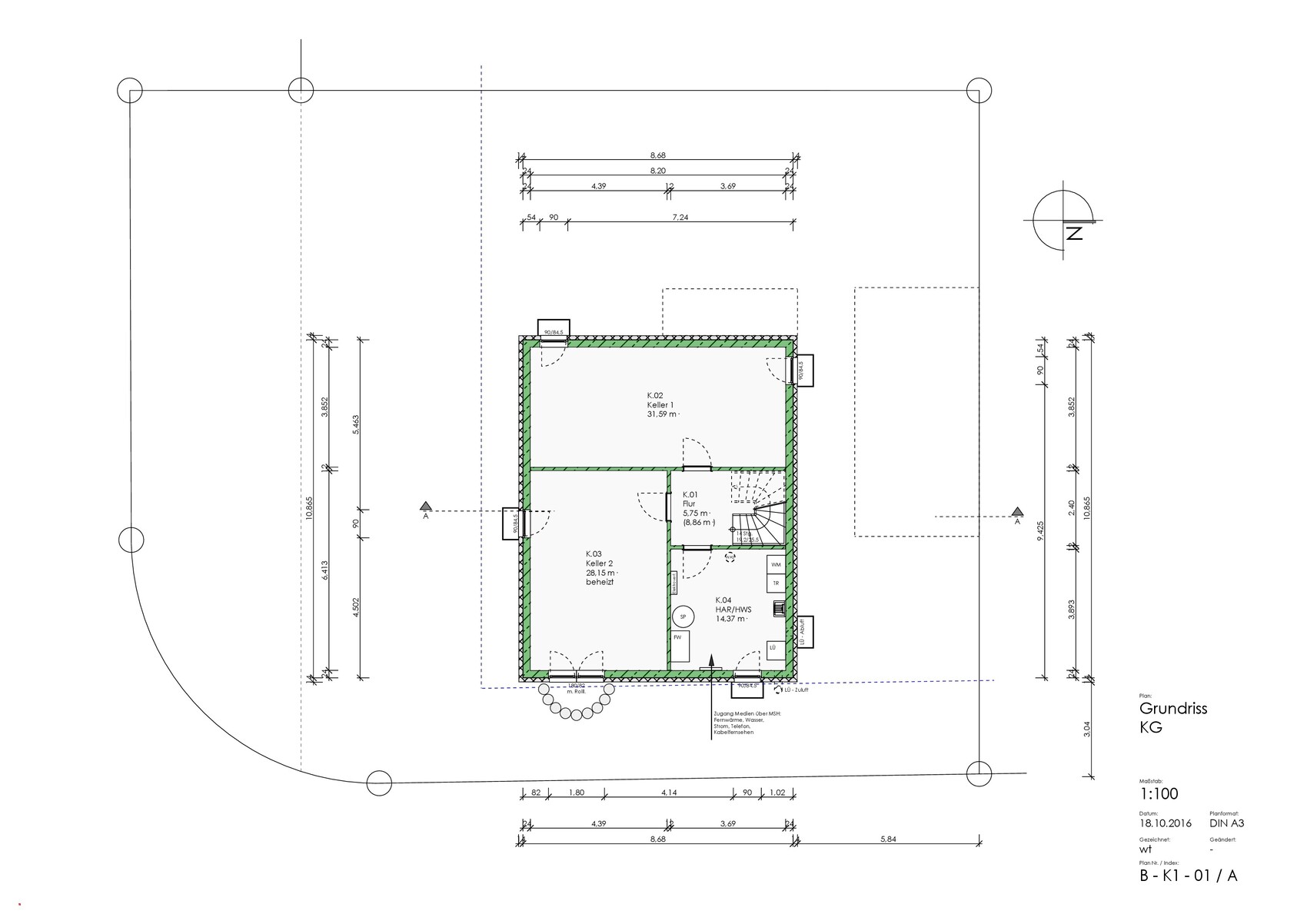
skybiker200018.10.16 20:19Danke für die Rückmeldung! Wir haben von unserem Architekten nun die Pläne für den Bauantrag erhalten und wollten diese bis Ende Oktober fixieren.

Geändert wurden...
Im Büro ist nun ein "normales" Fenster geplant.
In den Kinderzimmern und im Schlafzimmer sind nun Kniestockfenster vorgesehen. Im Schlafzimmer hab ich noch bedenken wg. unserem Bett. Da verschwindet das Fenster hinter der Rückenlehne.
Die Größe der Kinderzimmer wurde vermittelt. Hat zur Folge, dass der begehbare Kleiderschrank nur noch 6,45 m^2 groß ist. Ist das noch ausreichend?
Die Tür zur Küche wurde etwas Richtung Esszimmer geschoben. Ein Blick aus der Küche ins Ess- und Wohnzimmer habe ich angehängt.
Im Bad wurde noch ein WAS eingeplant. Wir sind uns aber nicht sicher, ob im EG (Bad) noch genug Platz übrig bleibt. Was meint ihr?
Die Ansicht West bzw. die 2 Fenster im Kinderzimmer wurden verkleinert. Mit den Kniestockfenstern sollte es hell genug sein.
Habt ihr noch eine finale Anregung?
Vielen Dank!
Björn
Geändert wurden...
Im Büro ist nun ein "normales" Fenster geplant.
In den Kinderzimmern und im Schlafzimmer sind nun Kniestockfenster vorgesehen. Im Schlafzimmer hab ich noch bedenken wg. unserem Bett. Da verschwindet das Fenster hinter der Rückenlehne.
Die Größe der Kinderzimmer wurde vermittelt. Hat zur Folge, dass der begehbare Kleiderschrank nur noch 6,45 m^2 groß ist. Ist das noch ausreichend?
Die Tür zur Küche wurde etwas Richtung Esszimmer geschoben. Ein Blick aus der Küche ins Ess- und Wohnzimmer habe ich angehängt.
Im Bad wurde noch ein WAS eingeplant. Wir sind uns aber nicht sicher, ob im EG (Bad) noch genug Platz übrig bleibt. Was meint ihr?
Die Ansicht West bzw. die 2 Fenster im Kinderzimmer wurden verkleinert. Mit den Kniestockfenstern sollte es hell genug sein.
Habt ihr noch eine finale Anregung?
Vielen Dank!
Björn
Gefällt mir nach wie vor sehr gut.
Das ergänzende Kniestockfenster im Kinderzimmer finde ich sehr sinnvoll.
Im Elternschlafzimmer eher weniger, auch weil darunter das Bett steht. Die Frage ist, ob ihr dort nur schlaft oder euch in diesem Raum länger aufhaltet? Falls ja ist das zusätzliche Fenster sinnvoll, ansonsten könntet ihr meiner Meinung nach darauf verzichten. Dann lieber noch ein kleines Fenster im Ankleidezimmer.
Wird im Schlafzimmer auch ein Schrank stehen? Wenn ja reicht das Ankleidezimer gut aus, ansonsten müsstet ihr noch mal überlegen. Platz wäre im Schlafzimmer schließlich genug vorhanden.
Das ergänzende Kniestockfenster im Kinderzimmer finde ich sehr sinnvoll.
Im Elternschlafzimmer eher weniger, auch weil darunter das Bett steht. Die Frage ist, ob ihr dort nur schlaft oder euch in diesem Raum länger aufhaltet? Falls ja ist das zusätzliche Fenster sinnvoll, ansonsten könntet ihr meiner Meinung nach darauf verzichten. Dann lieber noch ein kleines Fenster im Ankleidezimmer.
Wird im Schlafzimmer auch ein Schrank stehen? Wenn ja reicht das Ankleidezimer gut aus, ansonsten müsstet ihr noch mal überlegen. Platz wäre im Schlafzimmer schließlich genug vorhanden.
Ähnliche Themen