Grundrissoptimierung Stadtvilla + Aufschüttüberlegung

4,70 Stern(e) 21 Votes
Zuletzt aktualisiert 21.11.2025
Sie befinden sich auf der Seite 73 der Diskussion zum Thema: Grundrissoptimierung Stadtvilla + Aufschüttüberlegung
>> Zum 1. Beitrag <<

Status
Für weitere Antworten geschlossen.
S

Shiny86

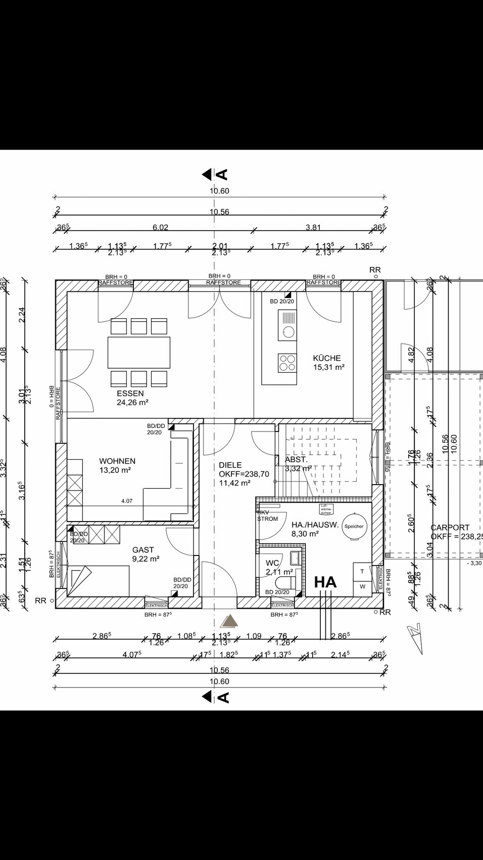
Ja da hast du recht. Da wurde eine 1m Tür vorgesehen.

Wie findet ihr, dass die podesttreppe nicht bündig zum Flur ist bzw. etwas eingerückt ist? Es sind 60cm.
In den ganzen Grundrissen durch die ich mich gewälzt habe sieht das immer anders aus. Findet ihr das wirkt unstimmig?
Ich wüsste nicht wie man das ändern könnte.

Wenn ich vom Hauswirtschaftsraum noch mehr weg nehme ist da bald nichts mehr von übrig.

Grundriss eines Wohnhauses mit Küche, Essen, Wohnen, Diele, Abstellraum, Bad, WC.
 
kaho674

kaho674

Ich würde die Treppe gar nicht Einhausen und lieber einen Schrank darunter stellen, damit mehr Offenheit herrscht.
Wenn es denn unbedingt sein muss, würde ich den Abstellraum von der Küche aus zugänglich machen und im Flur zusätzlich noch einen Schrank stellen.
 
11ant

11ant

Ja da hast du recht. Da wurde eine 1m Tür vorgesehen.
Nein - die letzte Zeichnung (in Beitrag #430) vor Deiner Frage zeigte eine zweiflügelige Tür, geschätzt 151.

Wie findet ihr, dass die podesttreppe nicht bündig zum Flur ist bzw. etwas eingerückt ist? Es sind 60cm.
Wieso formulierst Du nicht einfach ´mal Leitlinien und läßt dann hinter´m Komma die Profis ihre Arbeit machen, statt ständig für Platz 1 auf der Weltrangliste der unerträglichen Beifahrerinnen zu trainieren ?
 
S

Shiny86

Wieso formulierst Du nicht einfach ´mal Leitlinien und läßt dann hinter´m Komma die Profis ihre Arbeit machen, statt ständig für Platz 1 auf der Weltrangliste der unerträglichen Beifahrerinnen zu trainieren ?
Sorry, wie meinst Du das?
Geht jetzt nicht um cm. Hätte ich mir sparen können . Ich weiß halt nicht ob das so gemacht wird wie in unserem Grundriss oder ob das komisch aussieht. Ich bin etwas blind geworden für den Grundriss.

Aber das mit einer schönen Kommode oder Schrank ist eine gute Idee. Auf den Abstellraum kann ich nicht verzichten.
 
11ant

11ant

Sorry, wie meinst Du das?
Na, daß Du das Grundgerüst vorgibst: welche Zimmer oben, welche Zimmer unten, kein Fallrohr neben dem Sofa, fertig. Und dann den ganzen Krümelkram die Leute machen läßt - ohne denen ständig am Rockzipfel zu zupfen ! - die im Schnitt jede Woche eine Bauherrenfamilie "unter Dach und Fach" bringen. Mach´ Dich von der Wahnvorstellung frei, daß Du für jedes nicht siebenmal gesiebte Detail den Rest Deines Lebens büßen müßtest. Du wirst nicht in sechzig Jahren noch im selben Haus wohnen - eher wirst Du dieses Jahr Weihnachten nicht mehr erleben, erschlagen vom Maler oder Elektriker. Deine Fliesen und Dunstabzugshaube sehe ich schon auf zusammen siebenhundert Beiträge kommen.
 
S

Shiny86

Ich weiß auch nicht, warum ich so penibel bin. Schwer das abzulegen.

Was sagt ihr zum aktuellen Lageplan?
Finde die Positionierung schwierig. Wir sind da mitten im Bogen. Aktuell sieht es so aus. Es ist ein 3,3x9m Carport eingezeichnet. Habt ihr da einen Tipp für die Positionierung? Ich weiß nicht wie das normalerweise gemacht. Aber von der Straße aus gesehen sieht es komisch aus oder?

Im Osten können wir aus dem Wohnzimmer aufgrund des höhenunterschieds nicht austreten. Wir hatten im Essbereich und tv ecke ja 2 Fenstertüren und Glaselement geplant in gesamt 3.01/2.13. Türen machen ja keinem Sinn, wenn man nicht austreten kann. Daher wollen wir nun ein bodentiefen Fensterelement. Habt ihr Vorschläge welche Größe sich eignet? Die gleiche Größe in großflächig Scheibe ist zu krass finde ich.
 
Status
Für weitere Antworten geschlossen.
Zuletzt aktualisiert 21.11.2025
Im Forum Grundrissplanung / Grundstücksplanung gibt es 2535 Themen mit insgesamt 87982 Beiträgen


Ähnliche Themen zu Grundrissoptimierung Stadtvilla + Aufschüttüberlegung
Nr.ErgebnisBeiträge
1Grundriss Haus, Verbesserungen / Vorschläge 1,5 geschossig - Seite 322
2Grundriss eines Einfamilienhauses, Feedback - Seite 8142
3Grundriss für Einfamilienhaus mit 200m² mit Einliegerwohnung 75 +Keller 140m² +Garage 56m² - Seite 659
4Grundriss Einfamilienhaus (ca. 170 qm) mit Garage - Hanglage 35
5Gestaltung Schlafzimmer - Seite 435
6Parkett von Flur in Zimmer durchlegen 17
7Flur-Grundriss vergrößern REH von 1921: Tipps? 27
8Grundriss & Positionierung Einfamilienhaus ca. 150qm 2 Vollgeschosse Satteldach 34
9Unser Grundriss... bitte um Hilfe zur Optimierung.. 33
10Feedback zu unserem Grundriss und Hausentwurf - Seite 218
11Doppelhaushälfte - Verbesserungen im Grundriss 15
12Probleme bei der Flur-Möblierung, wer hat Ideen? - Seite 443
13Feedback zur Grundriss-Planung 150 qm - Seite 251
14Grundriss Reiheneckhaus in Planung - Änderungsvorschläge? - Seite 8176
15Wohnbereich Grundriss einplanen - Seite 962
16Grundriss kein konkretes Einfamilienhaus ca. 200m² mit 2 Wohnungen - Seite 1269
17Wie findet ihr diesen Grundriss? - Seite 211
18Meinungen zum Grundriss EG 10
19Meinungen zu Grundriss "Haus am Hang" erbeten 31
20Wie findet ihr unseren Grundriss??? 21

Oben