Guten Tag,
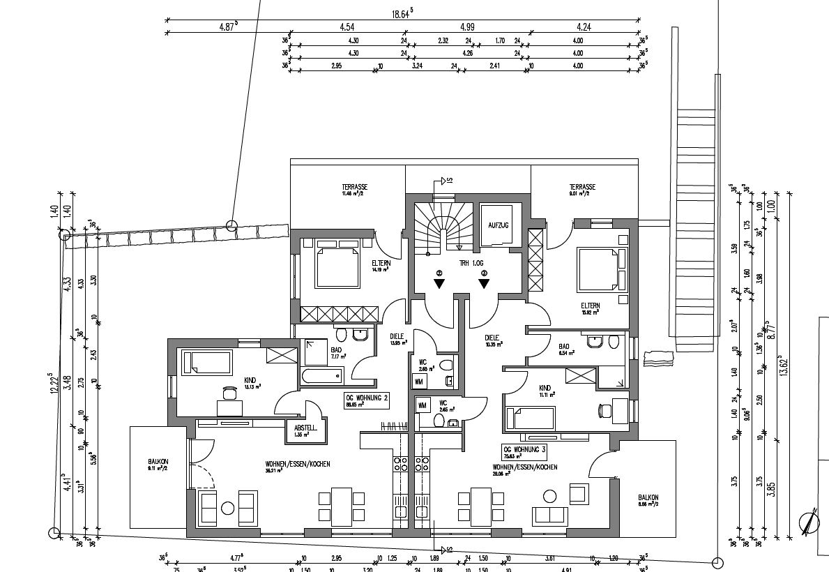
wir planen momentan in der Familie ein Mehrfamilienhaus mit 6 Wohnungen im Großraum Stuttgart. Der Hauskörper ergibt sich durch ein relativ kleines und deswegen komplett ausgenutztes Grundstück. In folgender Wohnung sind wir momentan nicht glücklich mit dem Bad und dem Kinderzimmer. Folgende zwei Alternativoptionen haben wir uns überlegt. Was meint Ihr? (Die Optionen sind momentan noch nicht im Detail ausgeplant). Unten in der Skizze ist Süden und eine Straße.



wir planen momentan in der Familie ein Mehrfamilienhaus mit 6 Wohnungen im Großraum Stuttgart. Der Hauskörper ergibt sich durch ein relativ kleines und deswegen komplett ausgenutztes Grundstück. In folgender Wohnung sind wir momentan nicht glücklich mit dem Bad und dem Kinderzimmer. Folgende zwei Alternativoptionen haben wir uns überlegt. Was meint Ihr? (Die Optionen sind momentan noch nicht im Detail ausgeplant). Unten in der Skizze ist Süden und eine Straße.
puh - da sind doch beide Wohnungen nichts - aber in Stuttgart wird doch sowieso alles gemietet.
Zur Option 1, also ein Kinderzimmer mit 2m Rohnaumaß als Breite ist schon eine Ansage. Nach der 1983 zurückgezogenen DIN 283 wäre das Nichtmal ein Zimmer, da damals Zimmer eine Mindestbreite von 2,10m haben mussten.
Ziehst du mal die Balkonflächen ab, hat Wohnung 2 noch 78m2, Wohnung 3 nur noch 66m2, da würde ich eine 2-Zimmer Wohnung bei heutigen Ansprüchen für vernünftiger halten.
Zur Option 1, also ein Kinderzimmer mit 2m Rohnaumaß als Breite ist schon eine Ansage. Nach der 1983 zurückgezogenen DIN 283 wäre das Nichtmal ein Zimmer, da damals Zimmer eine Mindestbreite von 2,10m haben mussten.
Ziehst du mal die Balkonflächen ab, hat Wohnung 2 noch 78m2, Wohnung 3 nur noch 66m2, da würde ich eine 2-Zimmer Wohnung bei heutigen Ansprüchen für vernünftiger halten.
Scorp05 schrieb:
Der Hauskörper ergibt sich durch ein relativ kleines und deswegen komplett ausgenutztes Grundstück.Was bedeutet das (Grundflächenzahl, Geschossflächenzahl etcetera) ?Die Optionen scheinen mir auch in der anderen Wohnung, nach der ja eigentlich nicht gerfagt wurde, den Rahmen zu sprengen.
RomeoZwo schrieb:
puh - da sind doch beide Wohnungen nichts - aber in Stuttgart wird doch sowieso alles gemietet.Ich hätte es nicht schöner sagen können.Was macht der Architekt eigentlich beruflich ?
Schaut Euch mal diesen Thread an: https://www.hausbau-forum.de/threads/mehrgenerationenhaus-mit-tiefgarage-für-3-Familien.30444/
https://www.instagram.com/11antgmxde/
https://www.linkedin.com/company/bauen-jetzt/
Mal von den Fakten abgesehen, dass 2 Meter echt nicht Wohnraumcharakter haben und man auf dieser Breite eben nicht ein normales 90er Bett neben einer Wohnraumzimmertür stellen kann , würde ich das Bad um einen Meter kürzen, auch damit die Raum-Ecke nicht den Hereinkommenden bedroht, sondern auch im Eingangsbereich etwas Raum entsteht. Dieser „Raum“ ist natürlich überall nötig - gegenteilig ist immer ein Zugang, der wie eine Röhre gestaltet ist (hier: Bad)
.........
Reset: sehe gerade Option und IST:
Ich hätte jetzt IST als den besten Entwurf gesehen.
Da wäre auch die Küche etwas besser zu nutzen.
.........
Reset: sehe gerade Option und IST:
Ich hätte jetzt IST als den besten Entwurf gesehen.
Da wäre auch die Küche etwas besser zu nutzen.
Ähnliche Themen