Hausbau - Ratgeber
Bauherrenhilfe
- Bauherrenhilfe vor Vertragsabschluss
-- Warum einen unabhängigen Baubetreuer?
-- Vertragsgrundlagen
-- Bausumme
-- Zahlungsplan zur Kostenkontrolle
-- Pflichten des Bauherren vor Vertragsabschluss
-- Unterlagen beim Hausbau vor Vertragsabschluss
- Bauherrenhilfe nach Vertragsabschluss
-- Bauantrag bei Behörden
-- Bau-Genehmigungsverfahren bei Baubehörden
-- Bauspezifische Versicherungen
-- Bauzeitenplan
-- Baubeginn - die Letzten Pflichten der Bauherrschaft
- Bauherrenhilfe während der Bauzeit
- Gewährleistungsansprüche
- Bauabnahme
Baufinanzierung
- Baufinanzierung - Allgemeine Fragen
- Kreditarten
- Kredit-Konditionen
- Bausparen
- Staatliche Förderungen
- Verkehrswert
- Haushaltsrechnung und Bonität
Hausbau Planung
- Haustypen
- Hausbau Vorbereitungsarbeiten
- Das Baugrundstück
- Baugrund beim Hausbau
- Baurecht
- Gebäudeschutz
- Erdarbeiten und Wasserhaltung
- Stützmauern
- Einfriedung
- Untergeschoss
- Kanalisation
- Tragende Elemente
- Nichttragende Innenwände
- Fundation / Fundament
- Deckenkonstruktionen
- Dächer
- Kaminanlagen
- Treppen Rampen Leitern
- Dachbeläge und Spengler
- Fenster
- Sonnen und Wetterschutz
- Aussenputze
- Einbauten, Küchen, Türen
- Bodenbeläge und Unterlagsböden
- Parkett
- Gips, Wand, Decke
Haustechnik und Energie
- Heiztechnik
- Lüftung und Klimatechnik
- Sanitärtechnik
- Elektrotechnik
- Erneuerbare Energie
Whirlpools / Jacuzzi
Hausbau Magazin
- Baufinanzierung trotz Krise?
- Das Blockhaus
- Moderne Dämmstoffe im Vergleich
- Erker Vor- und Nachteile
- Glasflächen beim Hausbau
- Günstig ein Haus Bauen
- Mediterraner Hausbaustil
- Mehrgenerationenhaus
- Moderne Architektur
- Gartengestaltung leicht gemacht
- Traditioneller Ziegelbau
- Villa als höchster Traum
- Im Eigenheim Ruhestand geniessen
- Altbau sanieren
- Kauf einer Holzgarage
- Immobilienmakler
- Arbeitshandschuhe für den Winter
- Zuhause verschönern
- Outdoor-Plissees
- Schlafzimmer planen
- Terrassenüberdachung
- Wohngebäudeversicherung
- Zaunarten und Eigenschaften
- Hauseingang gestalten
- Der perfekte Grundriss
- Sparsamer heizen im Altbau
- Einfamilienhaus smart finanzieren
- Planung einer PV-Anlage
- Neues Haus
- Immobilienfinanzierung
- Installation einer Photovoltaikanlage
- Asbest erkennen und entfernen
- Gartenpflege im Frühling – worauf achten
- Sauna im Fokus - Wellness zuhause
- Erfolgreich vermieten
- Die perfekte Winterbekleidung
- Das Niedrigenergiehaus
- Der April und seine Stürme
- Architektonische Vielfalt
- Ökologisch und nachhaltig bauen
- Das perfekte Schlafzimmer
- Nachhaltige Energieversorgung
- Zukunftsorientiert bauen
- Nachhaltigkeit beim Hausbau
- Tiny Houses
- Wärmepumpen als nachhaltige Heizvariante
- Maßgeschneiderten Kleiderschrank
- Der richtige Baukredit
- Ratgeber für erfolgreichen Hausbau
- Haus als Altersvorsorge
Do-it-yourself Anleitungen
- Verlegeanleitung für Bodenbeläge und Parkett
- Bodenbeläge und Parkett reinigen und pflegen
- Malerarbeiten am Haus
- Garten Tipps
- Umzug und Reinigung

ᐅ Grundrissentwurf für 220m² Einfamilienhaus

Erstellt am: 20.06.17 22:41
R
R.Hotzenplotz
M
matte
28.06.17 07:03
Guten Morgen erst mal.

Auch ich bin der Meinung, man sollte das mit der SW-Leitung nicht dramatisieren. Es gibt wahrlich schlimmere Probleme auf ner Baustelle, als ein 100er KG Rohr in ne Steuerberater-Decke zu legen. Bei Lüftungsrohren kräht doch auch kein Hahn danach. (Ja, ich weiß, die sind dünner, rechtzeitig geplant ist aber auch ne 100er Leitung kein Problem)
Man sollte lediglich darauf achten, dass die Leitung beim Betonieren nicht durch Aufschwimmen o.ä. seine Verbindung löst. Mit KG2000-Rohren sollte so ein Problem nicht auftauchen.

Alternativ könnte ich mir eine Abhangdecke vorstellen, wodurch sowieso das ganze Problem gelöst werden würde. Fände ich bei solch einem Haus nicht gerade abwegig. Kommt halt darauf an, was noch an Technik verbaut wird, allem voran Elektro.
Will man nämlich andere Einbauleuchten als die bekannten Spots verbauen, wird es mit Einbaudosen in der Steuerberater-Decke eh schon schwieriger, da geht vieles nur noch mit ner Abhangdecke.

Viel interessanter finde ich 2 andere Punkte:

1. Wenn die Nische beim Wohnzimmer gebaut werden soll, wieso kragt man die dann nicht so weit aus wie beim Büro? Fände ich optisch ansprechender, aber das ist Geschmackssache.

2. Statisch wird das schon eine interessante Sache, da man beim Wohnzimmer doch relativ große Spannweiten der Decke haben wird, noch dazu die Wände vom OG nicht über den Wänden vom EG stehen. Das gilt für nen Großteil der planoberen Fassade, sowie für fast sämtliche Innenwände.
Ich bin wahrlich kein Statiker, aber ich könnte mir vorstellen, dass diese Punkte durch Unterzüge im EG aufgefangen werden müssen, welche optisch alles andere als toll sind.
Das würde ich den Architekten viel eher fragen und klar kommunizieren, dass man Unterzüge im Wohnraum nicht sehen will (sollte es so gewünscht sein, kann ja auch sein, dass ihr gern nen Stahlträger in Sichtinstallation haben wollt )
Alternativ könnte man einen Vorlauf. benötigten Unterzug wieder durch ne Abhangdecke kaschieren.
R
R.Hotzenplotz
28.06.17 07:20
Die Nische würde man hinbekommen. Ist aber noch mal mehr Wohnfläche, die kein Mensch braucht und die bezahlt werden muss. Der Architekt meinte, das bringt so auch ein wenig Dynamik in die Fassade. Stören tut es mich nicht.

Zum Thema Unterzug frage ich nach.
11ant28.06.17 13:34
R.Hotzenplotz schrieb:
Ecke ab? Was meinst du damit?
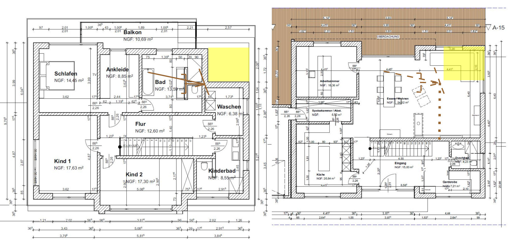
Bitte sehr, inklusive eingezeichnetem Schwarzwasser:

Zwei Grundrisse: links Schlaf/Flur/Bad; rechts Küche/Essen/Wohnen mit Balkon.

matte1987 schrieb:
2. Statisch wird das schon eine interessante Sache, da man beim Wohnzimmer doch relativ große Spannweiten der Decke haben wird,
Das sehe ich ähnlich.
https://www.instagram.com/11antgmxde/
https://www.linkedin.com/company/bauen-jetzt/
kaho67428.06.17 13:59
Echt coole Hütte. Ich würde folgende Punkte überdenken:
EG
- Treppenrichtung
- Weg vom Sofa bis zum Kühlschrank (Küche / Speis tauschen?)
- Enges Duschbad im EG, obwohl viel Platz vorhanden davor
OG
- Kinderzimmer / Elternschlafzimmer direkt nebeneinander (Schallschutz), obwohl jede Menge Zimmerchen als Puffer dienen könnten
- Entwässerung Elternbad wird schon diskutiert

Sorry, wenn Wiederholungen enthalten sind, möchte nicht den ganzen Riesen-Fred lesen müssen.
R
R.Hotzenplotz
28.06.17 21:20
Danke 11ant:

Was stört denn daran, dass über der Couch im OG Freifläche liegt? Wir brauchen dort keine Wohnfläche mehr und wenn wir das künstlich ausdehnen würden, würde es natürlich unnötig teurer.
11ant28.06.17 22:53
R.Hotzenplotz schrieb:
und wenn wir das künstlich ausdehnen würden, würde es natürlich unnötig teurer.
Die Außenwand hier einen Haken schlagen zu lassen, wird schon von der Statik her teurer als da noch 8 qm mehr Raum zu haben als benötigt.

Mich stört es nicht, ich muß in diesem Windfang kein Laub harken
https://www.instagram.com/11antgmxde/
https://www.linkedin.com/company/bauen-jetzt/
leitungabhangdeckesteuerberaterwohnzimmerfassadeunterzügeunterzugwohnfläche