ᐅ Grundrissentwurf Einfamilienhaus165qm ohne Keller auf 400qm Grundstück
Erstellt am: 10.08.23 09:33
M
MaulwurfbauMaulwurfbau schrieb:
Lustig. Hab nirgends was von zu dunkel gelesen.Frage mich gerade, wie man "Bunker" und "Schießscharten" anders interpretieren kann, aber sei's drum.Maulwurfbau schrieb:
Ging davon aus, dass alles zwischen 15 und etwas über 20% der Zimmerfläche als Fensterfläche ausreichend sei. In nahezu jedem größeren Zimmer sind auch 2 Fenster um Licht aus 2 Himmelsrichtungen rein zu bekommen. Ein glaspalast sollte es nicht werden. Würde ja im 2000er Jahre schick auch hier gen mal gemacht.Ich frage mich manchmal, ob jemand noch nie aus einem Fenster geguckt hat? Einfach mal den Zollstock nehmen und an das Fenster halten, wo man jetzt wohnt. Dann vergleichen mit einem Fenster in einem Haus, wo einem das Licht richtig gut gefällt - notfalls Musterhäuser besuchen. Dann die Maße auf dem Plan ansehen. Wir kennen sie ja nicht - vielleicht täuscht es ja - keine Ahnung. Für mich sehen die teilweise sehr klein, zu niedrig, zu schmal usw. aus. Hängt auch immer von den Räumen ab, aber Du zeigst ja nur das EG.M
Maulwurfbau17.05.24 09:46Ja ich sagte ja bereits, von den Höhen passt das nicht auch im OG, das ist nach hinten los gegangen, das müssen wir überarbeiten lassen. Besser spät auf dem Papier gemerkt, als erst auf der Baustelle.
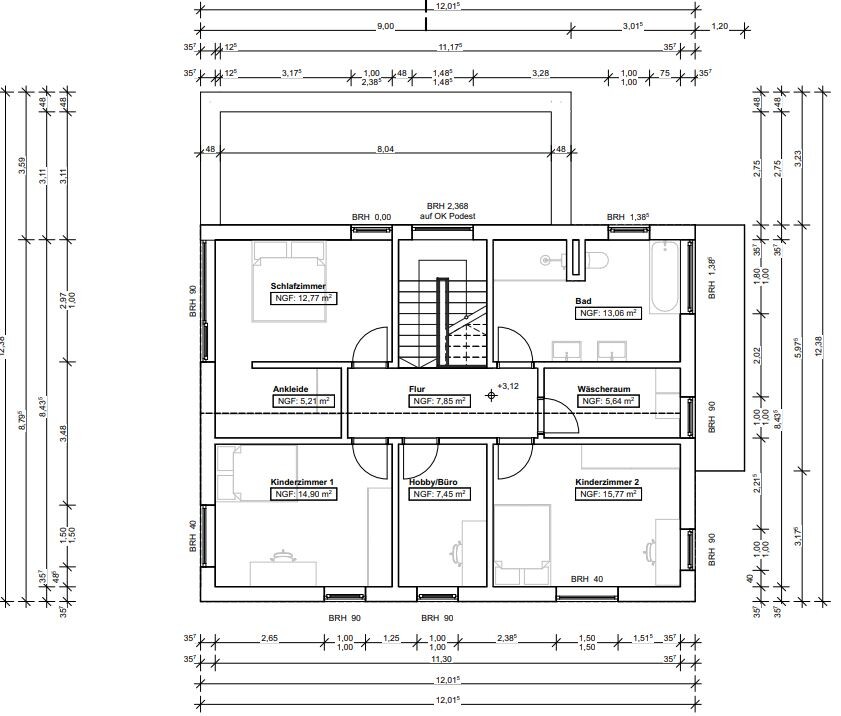
Was die Größe der Fenster angeht, sind in jedem Raum an die 20% der Raumfläche als Fenster geplant. Im Wohn-Ess-Koch Bereich, oder WC unten sogar ~30%. Das meiste davon Süd und West und etwas OST ausgerichtet. Also quasi nix im (dunklen) Norden.
Was wäre denn Deine "persönliche" Vorgabe, damit es hell genug ist?
Anbei nochmal das OG.

Was die Größe der Fenster angeht, sind in jedem Raum an die 20% der Raumfläche als Fenster geplant. Im Wohn-Ess-Koch Bereich, oder WC unten sogar ~30%. Das meiste davon Süd und West und etwas OST ausgerichtet. Also quasi nix im (dunklen) Norden.
Was wäre denn Deine "persönliche" Vorgabe, damit es hell genug ist?
Anbei nochmal das OG.
Ich kann den Ansatz ja verstehen, die Fenster von innen nach außen zu planen, aber trotzdem könnte man ein deutlich harmonischeres Bild schaffen gerade für die Eingangsseite. Die Ansicht sieht einfach schrecklich aus für mich - und das ist ja das Erste, was man sieht, wenn man zuhause ankommt. Und das hat meiner Meinung nach auch nichts mit "Neubausiedlungs-Standard-Satteldachhaus-Look" zu tun, den du vermeiden möchtest. Anders ist ist diesem Fall einfach schlechter. Die OG-Fenster mit verschiedenen Brüstungshöhen und Größen gefallen mir gar nicht. Da ist es fast egal, wie du das Fenster im Arbeitszimmer ausführst. Den Vorschlag von kbt09 find ich aber deutlich schöner als alles, was du präferierst. Denk bitte nochmal darüber nach!
M
motorradsilke17.05.24 10:31kbt09 schrieb:
Warum im Arbeitszimmer überhaupt nur so ein Fensterband .. so, wie es jetzt ist, kann man doch im Stehen nicht raussehen. Wie wäre es so:

Ich würde die Fenster im OG auf der Eingangsseite alle auf die gleiche Brüstungshöhe bringen und alle gleich gross machen (Größe des rechten Fensters). Dann sieht das harmonisch aus.Maulwurfbau schrieb:
Was wäre denn Deine "persönliche" Vorgabe, damit es hell genug ist?Zunächst mal eine Vereinheitlichung. Dieses Haus strahlt auch nach innen eine Unruhe aus, die einen völlig gaga macht, sobald man von einem Raum in den nächsten geht. Mindesthöhe bei Fenstern 120 besser 130. Breite für zweiflüglig mindestens 160 eher 170, einflüglig 100 - größer geht fast immer. Ich persönlich nehme immer 180er für Zweiflüglig bei kleinen Häusern und 200 bei größeren Häusern. Das passt dann auch zu den Terrassentüren. Brüstungshöhe überall 90, abgesehen von bodentiefen natürlich.
Für Bäder eignen sich geteilte Fenster, welche im unteren Bereich Milchglas haben. Fenster über der Wanne ist schlecht zu bedienen und es fehlt das Licht am Waschbecken - von der Dusche will ich gar nicht erst reden.
Bürofenster mit 60er Rohbaumaß bodentief lässt kaum Licht rein. Das gleiche gilt für das 80-hohe Band zur Straße. Das ist in meinen Augen Müll.
Wohnzimmer zwar lichtdurchflutet aber jedes Fenster anders. Das erzeugt sehr viel Unruhe. Bei der Länge des großen Fensters kommen Zweifel zur Stabilität. Sowas können nur Spezialisten und ein Stino-Fensterbauer macht da gern mal Mist und es verzieht sich in der Sonne.
Die "Treppenseite" haben wir noch gar nicht gesehen, oder? Das ist ja auch ziemlich gewürfelt, wenn ich das recht sehe.
Ähnliche Themen