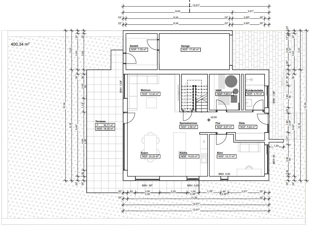
ᐅ Grundrissentwurf Einfamilienhaus165qm ohne Keller auf 400qm Grundstück
Erstellt am: 10.08.23 09:33
M
MaulwurfbauM
Maulwurfbau19.04.24 08:24Findest Du das zu hoch? Was wäre denn dein Vorschlag? Ist ja noch nicht fertiggestellt.
H
hanghaus202319.04.24 09:17Schaut irgendwie seltsam aus, wenn die Oberkannte ungleich ist. Die benachbarten Fenster sind dann eventuell zu tief oder zu klein.
Deine Frau wird doch eh irgend etwas blickdichtes wollen.
Wenn es Euch nicht stört, das man dem Haus die DIY Planung ansieht warum nicht.
Deine Frau wird doch eh irgend etwas blickdichtes wollen.
Wenn es Euch nicht stört, das man dem Haus die DIY Planung ansieht warum nicht.
M
Maulwurfbau19.04.24 09:36Die beiden Fenster im Bad sind gleich hoch. Da gibt es keinen Oberkannte die ungleich ist. Vielleicht meinst Du die Fassade wo die Eingangstür ist. Ja da sind die Fenster oben nicht eingefangen. Ich formuliere es mal so. Es ist nachvollziehbar, dass hier eher der Traditionelle Baustil insbesondere mit symmetrischen Fassaden und absolut ausgerichteten Fenstern gepusht wird. Und es ist nachvollziehbar, dass die Geschmäcker sich an Architektur reiben und alles "unsymmetrische" gleich als DIY betitelt wird. Nichts anderes erwarte ich hier im Forum.
Dennoch, geplant wurde von innen nach außen und zwar der Funktion nach. Wenn dabei ein höhen unterschied entsteht. Ja, dann ist der da.
Dennoch, geplant wurde von innen nach außen und zwar der Funktion nach. Wenn dabei ein höhen unterschied entsteht. Ja, dann ist der da.
M
Maulwurfbau14.05.24 09:20Wir denken gerade darüber nach das Lichtband im Wohnzimmerbereich entfallen zu lassen. Frauchen macht sich sorgen, dass die WZ Ecke dann ein eher schattiges (dunkles Loch) werden könnte. Wie seht ihr experten das?
Ich persönlich bin mir nicht sicher. Es ist eigentlich reichlich Süd und West Glas da, aber eben nicht genau in diesem Eckchen, sondern eher weiter entfernt.


Ich persönlich bin mir nicht sicher. Es ist eigentlich reichlich Süd und West Glas da, aber eben nicht genau in diesem Eckchen, sondern eher weiter entfernt.
Maulwurfbau schrieb:
Frauchen macht sich sorgen, dass die WZ Ecke dann ein eher schattiges (dunkles Loch) werden könnte. Wie seht ihr experten das?Wenn Ihr Euch mal Eure Möblierung anschaut, könnte das sein, dass ihr in ein dunkles Eck schaut.Ich würde die Couch und TV so drehen, dass man von der Couch auch ins Licht, also in den Garten schauen kann. Und dann würde ich an die Westecke ein schmales bodentiefes Fenster hinsetzen. Würde wohl harmonischer von innen und außen aussehen.
Ähnliche Themen