kaho674 14 August 2017 Teilen #25 kbt09 schrieb: .. Einfach einen Nordpfeil mit auf die Zeichnung, dann muss man sich die Infos nicht immer erst im Text suchen Zum Vergrößern anklicken.... Nordpfeile sind da - allerdings zeigen sie jedes mal in eine andere Richtung.
kbt09 schrieb: .. Einfach einen Nordpfeil mit auf die Zeichnung, dann muss man sich die Infos nicht immer erst im Text suchen Zum Vergrößern anklicken.... Nordpfeile sind da - allerdings zeigen sie jedes mal in eine andere Richtung.
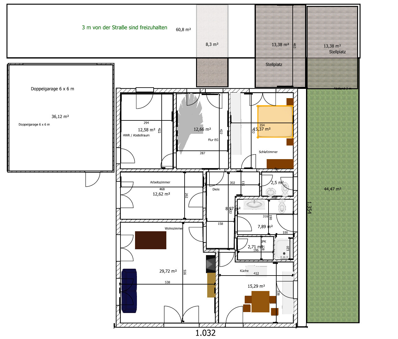
F fortuneflake 4 Dezember 2017 Teilen #26 Hier nochmal mein neuer Entwurf: EG und OG Die Anordnung der Garage ist bewusst so gewollt. und die Verbindung ins Haus auch gewünscht. Bitte um Meinungen dazu. Bin für neue Anregungen immer offen.
Hier nochmal mein neuer Entwurf: EG und OG Die Anordnung der Garage ist bewusst so gewollt. und die Verbindung ins Haus auch gewünscht. Bitte um Meinungen dazu. Bin für neue Anregungen immer offen.