
kaho674
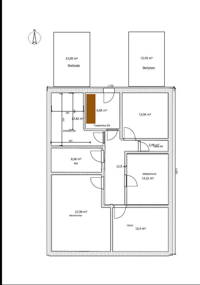
Planlinks ist Norden - ergibt sich eigentlich aus der Straßenzufahrt der Garage. Sagte Sie nicht irgendwas von Randbebauung? Das ist alles bissel verwirrend, die Infos kommen immer so häppchenweise.Kerstin, das Grundstück ist 20 Meter breit. Wie ist denn bei Dir die Ausrichtung?
Gruß, Yvonne
Ich wollt eigentlich auch nur die Idee in den Raum werfen, die Garage zu überbauen.