ᐅ Grundriss, was sagt ihr?
Erstellt am: 15.09.20 18:53
Hallo liebe Community,
ich bin neu hier, also bitte verzeiht mir, wenn ich nicht alle Informationen gleich hier hineingeschrieben habe. Ich kann diese gerne nachreichen.
Wir stehen vor dem Kauf eines Grundstücks (870m2) und aktuell zeichnen wir unser ,,Wunsch-Haus".
Ich hoffe dass die Infos ausreichen, kann sonst wie gesagt gerne nachreichen.
Bebauungsplan/Einschränkungen
Größe des Grundstücks 870qm
Hang nein
Grundflächenzahl 0,4
Geschossflächenzahl --
Baufenster, Baulinie und -grenze 20m Start ab 5 m
Randbebauung --
Anzahl Stellplatz 2
Geschossigkeit --
Dachform alles
Stilrichtung alles
Ausrichtung egal
Maximale Höhen/Begrenzungen Flachdach bis 8m
weitere Vorgaben: Zisterne gefordert
Anforderungen der Bauherren
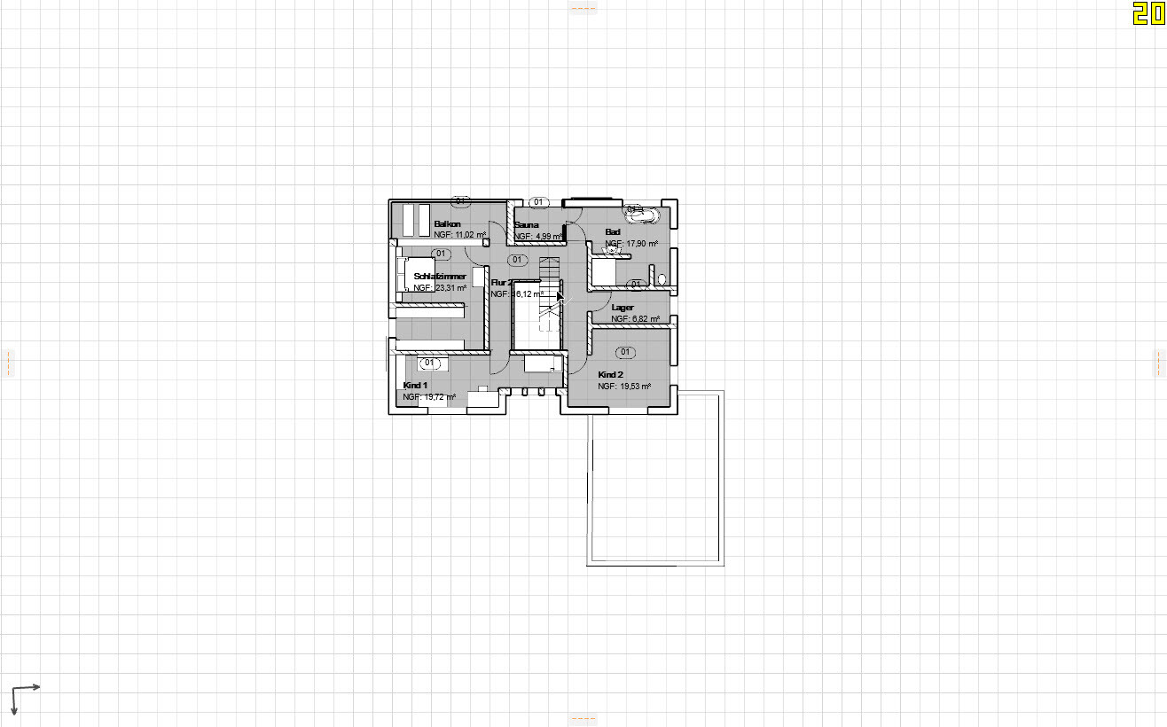
Stilrichtung, Dachform, Gebäudetyp: Flachdach, Bauhaus
Keller, Geschosse: nein, EG und OG
Anzahl der Personen, Alter: 2 Erw, 2 Kinder (Kleinkinder)
Raumbedarf im EG, OG --
Büro: Familiennutzung oder Homeoffice? Mit Arbeitszimmer
Schlafgäste pro Jahr --
offene oder geschlossene Architektur: offen
konservativ oder moderne Bauweise --
offene Küche, Kochinsel: Kochinsel mit Essplatzgruppe im Raum
Anzahl Essplätze >8
Kamin Ja, toll wäre als Raumteiler zwischen Küche und Wohnzimmer
Musik/Stereowand
Balkon, Dachterrasse: Dachterrasse
Garage
Hausentwurf
Von wem stammt die Planung:
-von mir
Was gefällt besonders? Warum? Offene Gestaltung, Dachfenster
Was gefällt nicht? Warum? eventuell kleines Kinderbad
Preisschätzung lt Architekt/Planer: Was sagt ihr ?
Persönliches Preislimit fürs Haus, inkl Ausstattung: 600.000
favorisierte Heiztechnik: Erdwärme
Wenn Ihr verzichten müsst, auf welche Details/Ausbauten
- kleinere Garage, Dachfenster
Warum ist der Entwurf so geworden, wie er jetzt ist? ZB
Wir haben ein Fertighaus mit unseren Wünschen so angepasst.
Was ist die wichtigste/grundlegende Frage zum Grundriss in 130 Zeichen zusammengefasst?
Ausrichtung:
Die Küche befindet sich SW. Wohnzimmer W
Schöne Grüße









ich bin neu hier, also bitte verzeiht mir, wenn ich nicht alle Informationen gleich hier hineingeschrieben habe. Ich kann diese gerne nachreichen.
Wir stehen vor dem Kauf eines Grundstücks (870m2) und aktuell zeichnen wir unser ,,Wunsch-Haus".
Ich hoffe dass die Infos ausreichen, kann sonst wie gesagt gerne nachreichen.
Bebauungsplan/Einschränkungen
Größe des Grundstücks 870qm
Hang nein
Grundflächenzahl 0,4
Geschossflächenzahl --
Baufenster, Baulinie und -grenze 20m Start ab 5 m
Randbebauung --
Anzahl Stellplatz 2
Geschossigkeit --
Dachform alles
Stilrichtung alles
Ausrichtung egal
Maximale Höhen/Begrenzungen Flachdach bis 8m
weitere Vorgaben: Zisterne gefordert
Anforderungen der Bauherren
Stilrichtung, Dachform, Gebäudetyp: Flachdach, Bauhaus
Keller, Geschosse: nein, EG und OG
Anzahl der Personen, Alter: 2 Erw, 2 Kinder (Kleinkinder)
Raumbedarf im EG, OG --
Büro: Familiennutzung oder Homeoffice? Mit Arbeitszimmer
Schlafgäste pro Jahr --
offene oder geschlossene Architektur: offen
konservativ oder moderne Bauweise --
offene Küche, Kochinsel: Kochinsel mit Essplatzgruppe im Raum
Anzahl Essplätze >8
Kamin Ja, toll wäre als Raumteiler zwischen Küche und Wohnzimmer
Musik/Stereowand
Balkon, Dachterrasse: Dachterrasse
Garage
Hausentwurf
Von wem stammt die Planung:
-von mir
Was gefällt besonders? Warum? Offene Gestaltung, Dachfenster
Was gefällt nicht? Warum? eventuell kleines Kinderbad
- Ansicht von vorne mit Eingang
- Garagenintegration, sodass so wenig wie möglich Platz benötigt wird!
- Wie weit darf diese nach an die Straße gesetzt werden?
Preisschätzung lt Architekt/Planer: Was sagt ihr ?
Persönliches Preislimit fürs Haus, inkl Ausstattung: 600.000
favorisierte Heiztechnik: Erdwärme
Wenn Ihr verzichten müsst, auf welche Details/Ausbauten
- kleinere Garage, Dachfenster
Warum ist der Entwurf so geworden, wie er jetzt ist? ZB
Wir haben ein Fertighaus mit unseren Wünschen so angepasst.
Was ist die wichtigste/grundlegende Frage zum Grundriss in 130 Zeichen zusammengefasst?
- Ich bin mit dem Plan bisher sehr zufrieden. Es ist eigentlich alles so wie wir es uns vorstellen. Würde jedoch gerne noch Meinungen hören - vielleicht haben wir die rosarote Brille auf.
- Vielleicht habt ihr eine Idee bezüglich des Eingangs und der Garageneinfahrt.
- Vor ich die nächsten schritte gehe würde ich gern wissen ob das unser Preislimit überschreitet?
Ausrichtung:
Die Küche befindet sich SW. Wohnzimmer W
Schöne Grüße
N
Nice-Nofret15.09.20 19:23wenn 1 Kästchen 1m sein soll, dann ist der Küchen/Essbereich zu schmal gedacht.
Durchgänge sollte nicht unter 1m sein; von Esstischkante bis Wände/Kücheninsel sollte ebenfalls jwls 1m eingeplant werden...
Durchgänge sollte nicht unter 1m sein; von Esstischkante bis Wände/Kücheninsel sollte ebenfalls jwls 1m eingeplant werden...
"Grundriss, was sagt Ihr ?" - na klar: zunächst von meiner Deutschlehrerin einen schönen Gruß, "sprich´ bitte in ganzen Sätzen !"
https://www.instagram.com/11antgmxde/
https://www.linkedin.com/company/bauen-jetzt/
https://www.instagram.com/11antgmxde/
https://www.linkedin.com/company/bauen-jetzt/
Ähnliche Themen