ᐅ Grundriss von Architekt für Einfamilienhaus mit Keller
Erstellt am: 08.12.16 15:57
Hallo liebe Forenmitglieder,
anbei die Informationen zu unserer Planung.
Bebauungsplan/Einschränkungen
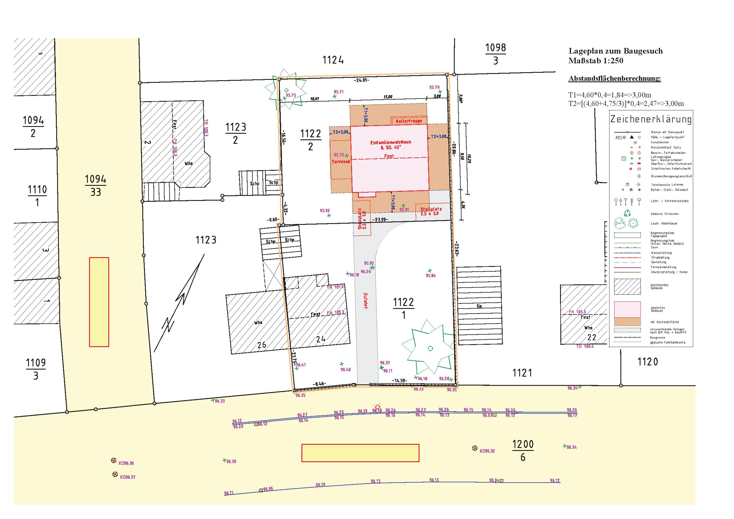
Größe des Grundstücks 500qm
Hang nein
Grundflächenzahl max 0,6 inkl Stellplätze
Anzahl Stellplatz 2
Geschossigkeit 1,5
Dachform Satteldach 30° - 45°
Abstand: Mindestabstand zum Nordgrundstück 7m
Anforderungen der Bauherren
Anzahl der Personen aktuell 2 Erwachsene + 1 Kind (1Jahr), geplant 2-3 Kinder
Büro: eventuelle Homeofficenutzung 1xpro Woche
Schlafgäste pro Jahr keine
Anzahl Essplätze bis zu 10
Kamin ja
Balkon, Dachterrasse nein
Garage, Carport nein
Hausentwurf
Von wem stammt die Planung: Architekt
Was gefällt nicht?
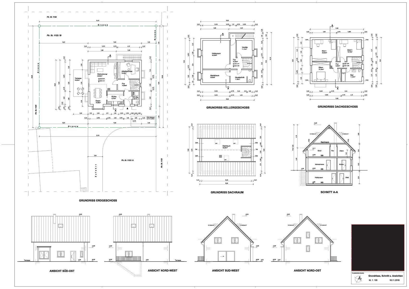
Eventuell ist die Küche zu klein
favorisierte Heiztechnik: Luft-Wasser-Wärmepumpe, Fußbodenheizung
-könnt Ihr verzichten: Dachboden, Treppe vom Keller in den Garten
-könnt Ihr nicht verzichten: Kamin, Keller,
Warum ist der Entwurf so geworden, wie er jetzt ist?
Ausrichtung der Zimmer im EG:
Wohn- /Essbereich, sowie Küche sollten eine Südwestausrichtung haben, um möglich hell zu wirken.
Eingangstür haben wir an diese Stelle gesetzt, um von der Straße aus direkt auf diese zuzulaufen und nicht nochmal um das Haus herum gehen zu müssen.
Ausrichtung Zimmer OG und Keller:
keinen bestimmten Hintergrund
Problemstellung:
Aktuell sind wir uns unsicher, ob die Küche ein wenig zu klein ist. Bzw. wie man diese sinnvoll vergrößern könnte. Wir haben uns eventuell gedacht, die innenliegende Wand gegenüber der Hauswand weiter nach hinten zu schieben um so mehr Platz zu schaffen. Jedoch sind wir uns bei dieser Variante unsicher, ob dadurch der Flur zu eng wird und wie wir am besten den Kamin mit Ofen platzieren.
Um mögliche Anregungen / Vorschläge wäre ich dankbar.
anbei die Informationen zu unserer Planung.
Bebauungsplan/Einschränkungen
Größe des Grundstücks 500qm
Hang nein
Grundflächenzahl max 0,6 inkl Stellplätze
Anzahl Stellplatz 2
Geschossigkeit 1,5
Dachform Satteldach 30° - 45°
Abstand: Mindestabstand zum Nordgrundstück 7m
Anforderungen der Bauherren
Anzahl der Personen aktuell 2 Erwachsene + 1 Kind (1Jahr), geplant 2-3 Kinder
Büro: eventuelle Homeofficenutzung 1xpro Woche
Schlafgäste pro Jahr keine
Anzahl Essplätze bis zu 10
Kamin ja
Balkon, Dachterrasse nein
Garage, Carport nein
Hausentwurf
Von wem stammt die Planung: Architekt
Was gefällt nicht?
Eventuell ist die Küche zu klein
favorisierte Heiztechnik: Luft-Wasser-Wärmepumpe, Fußbodenheizung
-könnt Ihr verzichten: Dachboden, Treppe vom Keller in den Garten
-könnt Ihr nicht verzichten: Kamin, Keller,
Warum ist der Entwurf so geworden, wie er jetzt ist?
Ausrichtung der Zimmer im EG:
Wohn- /Essbereich, sowie Küche sollten eine Südwestausrichtung haben, um möglich hell zu wirken.
Eingangstür haben wir an diese Stelle gesetzt, um von der Straße aus direkt auf diese zuzulaufen und nicht nochmal um das Haus herum gehen zu müssen.
Ausrichtung Zimmer OG und Keller:
keinen bestimmten Hintergrund
Problemstellung:
Aktuell sind wir uns unsicher, ob die Küche ein wenig zu klein ist. Bzw. wie man diese sinnvoll vergrößern könnte. Wir haben uns eventuell gedacht, die innenliegende Wand gegenüber der Hauswand weiter nach hinten zu schieben um so mehr Platz zu schaffen. Jedoch sind wir uns bei dieser Variante unsicher, ob dadurch der Flur zu eng wird und wie wir am besten den Kamin mit Ofen platzieren.
Um mögliche Anregungen / Vorschläge wäre ich dankbar.
Hallo Bauexperte,
der kleine Erker war der Wunsch meiner Frau für eine Art Sitzfenster.
Über die Garderobe haben wir uns tatsächlich keine Gedanken gemacht.
Zum Thema Küche:
Was genau meinst du mit ergonomisch in Ordnung? Würde eine Vergrößerung überhaupt Sinn machen, bzw. wie würde diese Sinn machen?
Anbei die Pläne in JPG.


der kleine Erker war der Wunsch meiner Frau für eine Art Sitzfenster.
Über die Garderobe haben wir uns tatsächlich keine Gedanken gemacht.
Zum Thema Küche:
Was genau meinst du mit ergonomisch in Ordnung? Würde eine Vergrößerung überhaupt Sinn machen, bzw. wie würde diese Sinn machen?
Anbei die Pläne in JPG.
Ich bin zwar ypg und nicht Bauexperte, aber macht nix. Ich bin die mit den Grundrissen 😉
Die Küche ist meiner Meinung nach völlig in Ordnung. Die Fläche zwischen den Zeilen könnte sogar noch 20cm schmaler sein. Mit 120cm/140 liegst Du gut, da ja die Küche irgendwie auch als Durchgang dient. Das wäre allerdings ein Problem, wenn "sie alle" hier durch wollen, das wird dann hinderlich sein.
Garderobe sollte schon großzügig als Kammer oder Einbauschrank geplant werden. Ich sehe keinen Platz, wo Schuhe aller wie auch Taschen und Mäntel griffbereit im Flur sind. Kinderkarre wäre auch ein Problem
Grüsse
Die Küche ist meiner Meinung nach völlig in Ordnung. Die Fläche zwischen den Zeilen könnte sogar noch 20cm schmaler sein. Mit 120cm/140 liegst Du gut, da ja die Küche irgendwie auch als Durchgang dient. Das wäre allerdings ein Problem, wenn "sie alle" hier durch wollen, das wird dann hinderlich sein.
Garderobe sollte schon großzügig als Kammer oder Einbauschrank geplant werden. Ich sehe keinen Platz, wo Schuhe aller wie auch Taschen und Mäntel griffbereit im Flur sind. Kinderkarre wäre auch ein Problem
Grüsse
Ähnliche Themen