Hausbau - Ratgeber
Bauherrenhilfe
- Bauherrenhilfe vor Vertragsabschluss
-- Warum einen unabhängigen Baubetreuer?
-- Vertragsgrundlagen
-- Bausumme
-- Zahlungsplan zur Kostenkontrolle
-- Pflichten des Bauherren vor Vertragsabschluss
-- Unterlagen beim Hausbau vor Vertragsabschluss
- Bauherrenhilfe nach Vertragsabschluss
-- Bauantrag bei Behörden
-- Bau-Genehmigungsverfahren bei Baubehörden
-- Bauspezifische Versicherungen
-- Bauzeitenplan
-- Baubeginn - die Letzten Pflichten der Bauherrschaft
- Bauherrenhilfe während der Bauzeit
- Gewährleistungsansprüche
- Bauabnahme
Baufinanzierung
- Baufinanzierung - Allgemeine Fragen
- Kreditarten
- Kredit-Konditionen
- Bausparen
- Staatliche Förderungen
- Verkehrswert
- Haushaltsrechnung und Bonität
Hausbau Planung
- Haustypen
- Hausbau Vorbereitungsarbeiten
- Das Baugrundstück
- Baugrund beim Hausbau
- Baurecht
- Gebäudeschutz
- Erdarbeiten und Wasserhaltung
- Stützmauern
- Einfriedung
- Untergeschoss
- Kanalisation
- Tragende Elemente
- Nichttragende Innenwände
- Fundation / Fundament
- Deckenkonstruktionen
- Dächer
- Kaminanlagen
- Treppen Rampen Leitern
- Dachbeläge und Spengler
- Fenster
- Sonnen und Wetterschutz
- Aussenputze
- Einbauten, Küchen, Türen
- Bodenbeläge und Unterlagsböden
- Parkett
- Gips, Wand, Decke
Haustechnik und Energie
- Heiztechnik
- Lüftung und Klimatechnik
- Sanitärtechnik
- Elektrotechnik
- Erneuerbare Energie
Whirlpools / Jacuzzi
Hausbau Magazin
- Baufinanzierung trotz Krise?
- Das Blockhaus
- Moderne Dämmstoffe im Vergleich
- Erker Vor- und Nachteile
- Glasflächen beim Hausbau
- Günstig ein Haus Bauen
- Mediterraner Hausbaustil
- Mehrgenerationenhaus
- Moderne Architektur
- Gartengestaltung leicht gemacht
- Traditioneller Ziegelbau
- Villa als höchster Traum
- Im Eigenheim Ruhestand geniessen
- Altbau sanieren
- Kauf einer Holzgarage
- Immobilienmakler
- Arbeitshandschuhe für den Winter
- Zuhause verschönern
- Outdoor-Plissees
- Schlafzimmer planen
- Terrassenüberdachung
- Wohngebäudeversicherung
- Girokonto für Bauherren finden
- Hauseingang gestalten
- Zaunarten und Eigenschaften
- Der perfekte Grundriss
- Sparsamer heizen im Altbau
- Einfamilienhaus smart finanzieren
- Planung einer PV-Anlage
- Neues Haus
- Immobilienfinanzierung
- Installation einer Photovoltaikanlage
- Asbest erkennen und entfernen
- Gartenpflege im Frühling – worauf achten
- Sauna im Fokus - Wellness zuhause
- Erfolgreich vermieten
- Die perfekte Winterbekleidung
- Das Niedrigenergiehaus
- Der April und seine Stürme
- Architektonische Vielfalt
- Ökologisch und nachhaltig bauen
- Das perfekte Schlafzimmer
- Nachhaltige Energieversorgung
- Zukunftsorientiert bauen
- Nachhaltigkeit beim Hausbau
- Tiny Houses
- Wärmepumpen als nachhaltige Heizvariante
- Maßgeschneiderten Kleiderschrank
- Der richtige Baukredit
- Ratgeber für erfolgreichen Hausbau
- Haus als Altersvorsorge
Do-it-yourself Anleitungen
- Verlegeanleitung für Bodenbeläge und Parkett
- Bodenbeläge und Parkett reinigen und pflegen
- Malerarbeiten am Haus
- Garten Tipps
- Umzug und Reinigung

ᐅ Grundriss Umbau Zweifamilienhaus in Einfamilienhaus - Verbesserungsvorschläge

Erstellt am: 19.10.22 10:11
S
stöckli
Hallo zusammen,

es geht um den Umbau eines Zweifamilienhauses, das als Einfamilienhaus bewohnt werden soll.

Fragebogen:
- Größe des Grundstücks: 750 qm
- Hang: nein
- Randbebauung: nein
- Keller: voll unterkellert
- Geschossigkeit: 2 Vollgeschosse
- Dachform: Satteldach
- Ausrichtung: Terrasse im Süden
- Anzahl der Personen: 2 Erwachsene + 2 Kinder
- offene oder geschlossene Architektur: offen
- offene Küche, Kochinsel: Halbinsel
- Anzahl Essplätze: 6-8
- Kamin: ja
- Schlafgäste pro Jahr: 20
- Garage/Carport: Hof und Doppelgarage

Stand jetzt:
- Zwei Wohnungen EG/OG mit fast identischem Grundriss. (siehe Pläne alt)
- Das OG ist vor wenigen Jahren renoviert worden. Hier wohnen wir derzeit.
- Das EG ist auf einem alten renovierungsbedürftigem Stand.
- DG nicht ausgebaut, dient als großer Abstellraum.
- Keller vorhanden mit Gas-Zentralheizung

Ziel:
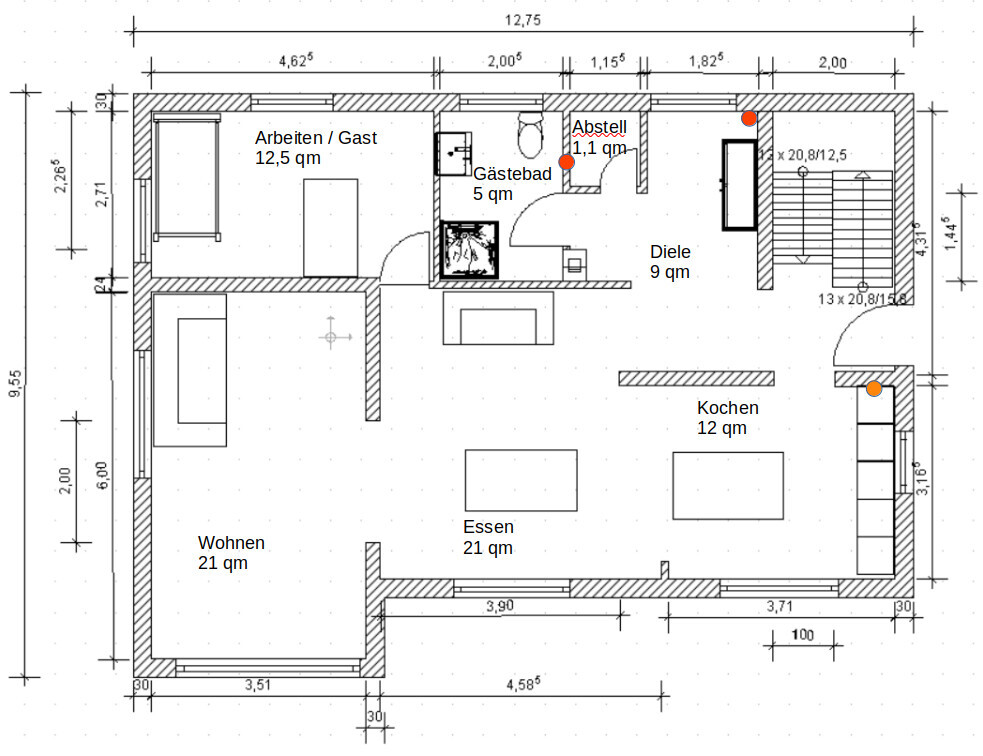
EG: Umbau des EG, damit EG und OG zusammengenutzt werden können wie in einem Einfamilienhaus. Zusammenhängender Wohn/Essbereich im EG, kleines Gästebad und Diele, Arbeitszimmer. Vergleiche Pläne EG alt und EG neu.
OG: Die Küche und das Esszimmer werden zusammen ein Kinderzimmer. Die Toilette, das Bad und die Diele sollen später zu einem größeren Bad zusammengelegt werden. Das OG ist somit zukünftig nur für Bad und Kinderzimmer/Schlafzimmer.

Hier zeige ich euch zwei Varianten, die sich hauptsächlich in der Anordnung von Gästebad und Diele unterscheiden. Die beiden Abwasserfallrohre habe ich mit roten Kreisen eingezeichnet.

Von wem stammt die Planung: Entwurf vom Architekt, Verfeinerung von mir.
Was gefällt besonders: Küche und Esszimmer im Süden direkt an der Terrasse, größeres Esszimmer, Küche und Esszimmer kombiniert.

Konkret wünsche ich mir von euch folgendes Feedback bzw. Verbesserungsvorschläge.

Was haltet ihr davon im EG, wie in den neuen Plänen zu sehen, die Küche und das Esszimmer an die Terrasse nach vorne zu legen? Wasser-/Abwasser-Anschlüsse für die Küche sind dort schon vorhanden. Die Wände zwischen altem Flur / Schlafzimmer und Kinderzimmer / Schlafzimmer (vgl. Plan EG alt) würden dazu entfernt werden. Ein Statiker hat dafür schon sein OK gegeben.
Die Treppe muss bleiben wo sie ist, sie könnte nur mit sehr großem Aufwand verschoben werden.
Die Küchenplanung ist nur ein Vorschlag. Die Küche kann man auch anders anordnen. Die alte Tür zwischen Küche und Diele kann man abhängig von der Küchenplanung zumauern.
Beim Bereich Diele/Gästebad bin ich mir noch ziemlich unsicher. Welche der beiden Planvarianten findet ihr besser? Habt ihr noch andere Varianten oder Ideen?
Fällt euch etwas auf, das ich übersehen habe? Gibt es noch Verbesserungen? Was gefällt euch gar nicht?

Ich hoffe die Angaben reichen. Ich freue mich auf euer Feedback.

Grundrissplan eines Hauses mit Wohnzimmer, Schlafzimmer, Kinderzimmer, Küche, Bad und Garage.


2D Grundriss eines Hauses mit Wohnzimmer, Küche, Bad und Schlafzimmer


Grundriss: Wohnen 21qm, Essen 21qm, Kochen 12qm, Diele 8,5qm; Pfeile markieren Wandänderungen.


Grundriss eines Hauses mit Wohnen, Essen, Kochen, Diele, Bad und Arbeits-/Gästezimmer.
Climbee19.10.22 12:41
Wenn auf der Seite planunten schon Anschlüsse liegen, ist die Frage, wo genau.

Mein Vorschlag wäre dann: da wo jetzt Küche ist, das alte Kinderzimmer so lassen und als Gast/Büro nutzen; dann im Anschluss Küche und Essen; Wohnen da, wo jetzt in der Neuplanung Gast/Büro ist.
Küche als zwei Zeilen mit freistehender Insel, kein U. Da hat man dann den direkten Zugang zur Terrasse und Wohnen ist schön kuschelig aus der Laufzone raus.

Muß der Wandstummel in der Mitte bleiben oder würde man der Statik auch durch einen Unterzug gerecht werden können? Dann würde ich das so machen.
Auch den gegenüberliegenden Wandstummel von der Außenwand weg machen.
Sollen die Fenster so bleiben? Wie sind die gerade überhaupt?
S
stöckli
19.10.22 23:41
Danke schon mal für Euer Feedback.
ypg schrieb:

Wie ist denn das Haus ausgerichtet? Bleibt die Terrasse dort?
Ist der Eingang wirklich durch die Garage? Soll das so bleiben?
Ein Lageplan vom Grundstück mit dem Rest (Zufahrt, Garage, Garten) wäre gut.
Zuerst möchte ich noch ein paar Infos nachreichen. Ihr erkennt nun die Lage des Hauses auf dem Grundstück sowie die Ausrichtung und die Lage der Terrasse. Die Terrasse soll definitiv dort bleiben, da sie im Süden ist und sich dort auch der größte Teil des Gartens befindet.
Im angehängten Grundriss (dieses Beitrags) habe ich mit einem orangenen Kreis die Position der vorhandenen Küchenanschlüsse markiert.

Lageplan eines Grundstücks mit Grundstücksgrenze, Gebäudeumriss und Standortmarkierung.


Vogelperspektive eines Einfamilienhauses mit Garten, Terrasse und Zufahrt.


Grundrissplan eines Wohnhauses mit Wohn-, Ess- und Kochbereich sowie Gästebad


Außenansicht eines Eingangsbereichs mit gewölbtem Türbogen, Holztuer und Garagentor


Terrasse mit weißen Kunststoffstühlen, runder Tisch und Liegen vor Holzwand.
S
stöckli
20.10.22 00:00
K a t j a schrieb:

Finde die 1. Lösung ganz gut. Die Diele ist nicht zu groß - eher das Gäste-Bad. Für mein Empfinden ist die offene Diele hier ungemütlich. Ich würde den Eingangsbereich + Diele vom Wohnbereich mit Trockenbau abtrennen.

Deine Änderungen finde ich nicht schön. Sie machen aus dem Arbeitszimmer einen Schlauchraum, der den Platz gar nicht braucht. Die Garderobe ist sehr viel wichtiger.
Wir tendieren auch gefühlsmäßig zur 1. Lösung. Eine Möglichkeit für das Gästebad bei Variante 1 wäre noch die Dusche in den linken größeren Badteil zu integrieren und dann anstatt der Dusche noch einen Abstellraum einzuplanen. Die Diele könnte man vom Esszimmer mit Trockenbau und einer Glastür trennen.
Climbee schrieb:

Was habt ihr mit dem Treppenhaus geplant. Momentan ist der ja nicht zum Wohnbereich dazu gehörend, wahrscheinlich unbeheizt und mit dem Charme eines Ganges im Ärztehaus, oder? Wenn ich plane OG und EG zu verbinden, würde ich das Treppenhaus mit in die Gestaltung einbeziehen und ggf. offen zur Garderobe machen. Ist da was geplant?

Genau, das Treppenhaus ist unbeheizt, soll aber im Keller einen Heizkörper und überall einen neuen Fußbodenbelag (Holz oder Fliesen) bekommen. Es gab auch Architektenentwürfe das Treppenhaus mehr in die Hausmitte zu verschieben, das wären aber zu viele Kosten und das OG müsste auch komplett umgestaltet werden. Geplant ist evtl. den Durchgang zwischen Treppenhaus und Diele zu verbreitern von 0,9 m auf ca. 1,2 m, damit es zusammen mit der Diele mehr wie ein Raum wirkt.
Climbee schrieb:

Mein Vorschlag wäre dann: da wo jetzt Küche ist, das alte Kinderzimmer so lassen und als Gast/Büro nutzen; dann im Anschluss Küche und Essen; Wohnen da, wo jetzt in der Neuplanung Gast/Büro ist.
Küche als zwei Zeilen mit freistehender Insel, kein U. Da hat man dann den direkten Zugang zur Terrasse und Wohnen ist schön kuschelig aus der Laufzone raus.

Muß der Wandstummel in der Mitte bleiben oder würde man der Statik auch durch einen Unterzug gerecht werden können? Dann würde ich das so machen. Auch den gegenüberliegenden Wandstummel von der Außenwand weg machen.

Sollen die Fenster so bleiben? Wie sind die gerade überhaupt?
Der Wandstummel in der Mitte ist schon durch einen früheren Durchbruch entstanden. Dort ist schon ein Träger über der 2,00 m Öffnung. Davor war die Wand zu, wie im Plan OG alt. Würde man den Stummel zusätzlich zum geplanten Durchbruch der großen Wand auch noch entfernen, gäbe es im EG fast keine tragenden Wände mehr. Und in der jetzigen Variante gefällt uns, wenn das Wohnzimmer vom Esszimmer halb abgetrennt ist.

Das Wohnzimmer sollte auf jeden Fall im Süden (z.B. plan unten links) bleiben. Der Raum ist sehr hell mit großen Fenstern und Terrassenzugang.

Meine Frau mag die Küche an der Terrasse haben, deswegen das Arbeitszimmer im Norden (plan oben links). Gäste haben wir nicht oft. 1-2 Nächte im Monat. Das wäre dann ok, wenn die durchs Esszimmer gehen um ins Bad zu kommen. Im OG gäbe es außerdem auch noch eine Möglichkeit für Gäste zum übernachten. (Kinderzimmer OG alt)

Einzelne Fenster könnte man versetzen, wenn es einen großen Vorteil bringt.
K a t j a schrieb:

Der Herdanschluss ist auch nicht selten so ne Strippe, die nicht mehrfach im Haus rum liegt.
Die Elektrik im gesamten EG wird neu verlegt. Es geht in Richtung Kernsanierung. Auch eine Fußbodenheizung wird eingebaut.
ypg schrieb:

Ist der Eingang wirklich durch die Garage? Soll das so bleiben?

Das sieht man jetzt auf dem Bild im vorherigen Post, dass der Eingang vom Hof in den überdachten Windfang und dann ins Haus geht.
Y
ypg
20.10.22 08:57
Ich würde die Wand ggü der Treppe bei der Küche auf einen Meter Breite öffnen und die Tür beim WZ schließen.

Grundriss eines Hauses mit Wohnzimmer, Essen, Diele; Pfeile zeigen Änderungen.
Climbee20.10.22 14:19
stöckli schrieb:

Schlafgäste pro Jahr: 20
stöckli schrieb:

Gäste haben wir nicht oft.

Mit der Wand wie von YPG vorgeschlagen, würde ich das besser finden.
Insgesamt wäre mit aber das Gästezimmer da vorn beim Kinderzimmer lieber. Aber das ist Geschmacksache.

Bei einer Generalsanierung kann man mit den Anschlüssen viel machen, da ist auch das Starkstromkabel dann kein Problem.
S
stöckli
21.10.22 10:03
ypg schrieb:

Ich würde die Wand ggü der Treppe bei der Küche auf einen Meter Breite öffnen und die Tür beim WZ schließen.
Ich habe euren Vorschlag mal in meinen Plan ergänzt. Ich hoffe, dass es so von euch gemeint war.
Könnt ihr erläutern, warum ihr diesen Durchgang Küche-Treppenhaus gut findet?

Der Durchgang wäre dann fast neben der Haustür und der Bereich zum Schuhe ausziehen würde weiter nach innen in die Diele wandern. Somit wäre auch die Schmutzzone größer.

Als Variante habe ich außerdem mal das Gästebad etwas verkleinert, die Dusche in den linken Teil integriert und dafür noch einen Abstellraum eingeplant (vgl. neuen Plan mit Anfangspost). Sonst wüsste ich nicht was man mit dem Platz machen sollte, außer dass es noch Diele wird.
Was meint ihr dazu?

20 Gäste pro Jahr (maximal) sind dann alle 2-3 Wochen mal jemand, das finde ich nicht so häufig. Da ist mir die Küche im Süden an der Terrasse lieber, weil man sich da täglich aufhält. Aber da stimme ich zu: Geschmackssache.

2D-Grundrissplan eines Hauses mit Wohnen, Essen, Kochen, Arbeiten und Gaestebereich
kücheterrassedieletreppenhauskinderzimmerwandstummelduscheesszimmerdurchgangfenster