ᐅ Grundriss Schlafzimmer, Ankleide und Bad en Suite
Erstellt am: 21.09.21 17:59
D
derdietmar21.09.21 17:59Hallo zusammen,
ich hoffe ich habe das Thema im richtigen Bereich eröffnet, obwohl es sich nicht um den Grundriss eines gesamten Hauses handelt.
Wir befinden uns vor Abschluss der Planungen für unser Haus. Offen ist derzeit noch die genaue Einteilung des Elternschlafzimmers mit Duschbad en Suite. Hier hoffe ich auf einige kreative Ideen hier aus dem Forum 😉

Danke und viele Grüße!
ich hoffe ich habe das Thema im richtigen Bereich eröffnet, obwohl es sich nicht um den Grundriss eines gesamten Hauses handelt.
Wir befinden uns vor Abschluss der Planungen für unser Haus. Offen ist derzeit noch die genaue Einteilung des Elternschlafzimmers mit Duschbad en Suite. Hier hoffe ich auf einige kreative Ideen hier aus dem Forum 😉
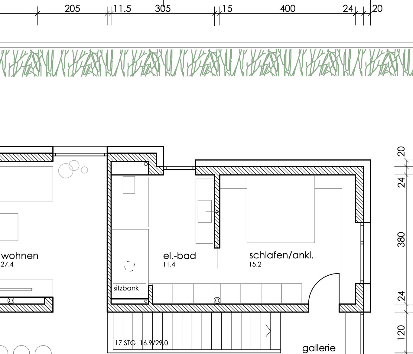
- Das angehängte Bild zeigt den gegebenen, genordeten Grundriss - ein Raster entspricht 10cm (Raumbreite 4 bzw. 4,2m, Raumlänge ~7,25m).
- Die Türe im Westen führt in den Wohnbereich, die Türe im Südosten in den Flur (die Treppe kommt aus dem Untergeschoss und endet vor der Schlafzimmertür, der Osten des Treppenhauses ist verglast).
- Variabel sind beide Türen, sie können auch entfallen, wobei natürlich eine der Türen als Zugang vorhanden sein muss.
- Die Position des 1m breiten bodentiefen Nordfensters samt Versprung in der Fassade kann noch variieren, beides soll aber grundsätzlich in dieser Form erhalten bleiben. Aus optischen Gründen sollte der Versatz zudem nicht allzu weit nach Osten verschoben sein, sonst stimmt das Verhältnis der Außenansicht nicht mehr.
- Weitere Fenster im Norden sind nicht erwünscht.
- Das große Fenster im Osten ist ebenfalls variabel. Da diese Seite eine schöne Sicht ins Grüne bietet, soll sich der Raum dahin möglichst öffnen.
- Es handelt sich um ein Obergeschoss mit Flachdach, daher sind Oberlichter möglich und erwünscht 🙂
- Wir favorisieren eine offene Gestaltung statt einer klassischen Konfiguration aus Schlafzimmer mit kleiderschrank und separatem Bad mit Dusche und WC
- Eine Badewanne ist im Familienbad vorhanden und daher nicht nötig
Danke und viele Grüße!
D
derdietmar21.09.21 18:23Hallo,
Norden ist planoben.
Für die Helligkeit sollen ja die Oberlichter sorgen 😉
Viele Grüße!
Norden ist planoben.
Für die Helligkeit sollen ja die Oberlichter sorgen 😉
Viele Grüße!
Wichtig fürs Bad sind eventuelle Fallrohre und die Räume darunter, daneben bzw. Lage der weiteren Leitungen (Familienbad).
Relevant für die Lage des Bettes können weitere Schlafzimmer sein.
Wichtig für die Fensterlage sind die weiteren Fenster… hier eher die Außenansichten.
Ad hoc, auch gern mal anders als langweiliig 😉, am PC gespielt:


Relevant für die Lage des Bettes können weitere Schlafzimmer sein.
Wichtig für die Fensterlage sind die weiteren Fenster… hier eher die Außenansichten.
Ad hoc, auch gern mal anders als langweiliig 😉, am PC gespielt:
D
derdietmar21.09.21 20:38Hallo,
danke für die Vorschläge. Der erste geht schon in die Richtung unserer Planungen. Der zweite ist wohl nicht ganz unser Geschmack 😉 , aber wenigstens mal außerhalb der Norm gedacht - danke dafür!
Hier mal der Planungsstand:

Und eine Variante mit separat verschließbarem Duschraum inkl. Toilette:

Viele Grüße!
danke für die Vorschläge. Der erste geht schon in die Richtung unserer Planungen. Der zweite ist wohl nicht ganz unser Geschmack 😉 , aber wenigstens mal außerhalb der Norm gedacht - danke dafür!
Hier mal der Planungsstand:
Und eine Variante mit separat verschließbarem Duschraum inkl. Toilette:
Viele Grüße!
Ähnliche Themen