Hausbau - Ratgeber
Bauherrenhilfe
- Bauherrenhilfe vor Vertragsabschluss
-- Warum einen unabhängigen Baubetreuer?
-- Vertragsgrundlagen
-- Bausumme
-- Zahlungsplan zur Kostenkontrolle
-- Pflichten des Bauherren vor Vertragsabschluss
-- Unterlagen beim Hausbau vor Vertragsabschluss
- Bauherrenhilfe nach Vertragsabschluss
-- Bauantrag bei Behörden
-- Bau-Genehmigungsverfahren bei Baubehörden
-- Bauspezifische Versicherungen
-- Bauzeitenplan
-- Baubeginn - die Letzten Pflichten der Bauherrschaft
- Bauherrenhilfe während der Bauzeit
- Gewährleistungsansprüche
- Bauabnahme
Baufinanzierung
- Baufinanzierung - Allgemeine Fragen
- Kreditarten
- Kredit-Konditionen
- Bausparen
- Staatliche Förderungen
- Verkehrswert
- Haushaltsrechnung und Bonität
Hausbau Planung
- Haustypen
- Hausbau Vorbereitungsarbeiten
- Das Baugrundstück
- Baugrund beim Hausbau
- Baurecht
- Gebäudeschutz
- Erdarbeiten und Wasserhaltung
- Stützmauern
- Einfriedung
- Untergeschoss
- Kanalisation
- Tragende Elemente
- Nichttragende Innenwände
- Fundation / Fundament
- Deckenkonstruktionen
- Dächer
- Kaminanlagen
- Treppen Rampen Leitern
- Dachbeläge und Spengler
- Fenster
- Sonnen und Wetterschutz
- Aussenputze
- Einbauten, Küchen, Türen
- Bodenbeläge und Unterlagsböden
- Parkett
- Gips, Wand, Decke
Haustechnik und Energie
- Heiztechnik
- Lüftung und Klimatechnik
- Sanitärtechnik
- Elektrotechnik
- Erneuerbare Energie
Whirlpools / Jacuzzi
Hausbau Magazin
- Baufinanzierung trotz Krise?
- Das Blockhaus
- Moderne Dämmstoffe im Vergleich
- Erker Vor- und Nachteile
- Glasflächen beim Hausbau
- Günstig ein Haus Bauen
- Mediterraner Hausbaustil
- Mehrgenerationenhaus
- Moderne Architektur
- Gartengestaltung leicht gemacht
- Traditioneller Ziegelbau
- Villa als höchster Traum
- Im Eigenheim Ruhestand geniessen
- Altbau sanieren
- Kauf einer Holzgarage
- Immobilienmakler
- Arbeitshandschuhe für den Winter
- Zuhause verschönern
- Outdoor-Plissees
- Schlafzimmer planen
- Terrassenüberdachung
- Wohngebäudeversicherung
- Zaunarten und Eigenschaften
- Hauseingang gestalten
- Der perfekte Grundriss
- Sparsamer heizen im Altbau
- Einfamilienhaus smart finanzieren
- Planung einer PV-Anlage
- Neues Haus
- Immobilienfinanzierung
- Installation einer Photovoltaikanlage
- Asbest erkennen und entfernen
- Gartenpflege im Frühling – worauf achten
- Sauna im Fokus - Wellness zuhause
- Erfolgreich vermieten
- Die perfekte Winterbekleidung
- Das Niedrigenergiehaus
- Der April und seine Stürme
- Architektonische Vielfalt
- Ökologisch und nachhaltig bauen
- Das perfekte Schlafzimmer
- Nachhaltige Energieversorgung
- Zukunftsorientiert bauen
- Nachhaltigkeit beim Hausbau
- Tiny Houses
- Wärmepumpen als nachhaltige Heizvariante
- Maßgeschneiderten Kleiderschrank
- Der richtige Baukredit
- Ratgeber für erfolgreichen Hausbau
- Haus als Altersvorsorge
Do-it-yourself Anleitungen
- Verlegeanleitung für Bodenbeläge und Parkett
- Bodenbeläge und Parkett reinigen und pflegen
- Malerarbeiten am Haus
- Garten Tipps
- Umzug und Reinigung

ᐅ Grundriss Schlafzimmer, Ankleide und Bad en Suite

Erstellt am: 21.09.21 17:59
D
derdietmar
kbt0921.09.21 20:42
Ich finde es unheimlich anstrengend, Teilpläne ohne Maße (Brüstungshöhe, Wandlängen) mit textlichen Vorgaben von welcher Anschlussraum wo ist (warum nicht wenigstens in dem Grundriss vermerken, welche Öffnung wo auch immer hingeht?) , zu verstehen und dann auch noch Ideen zu erwarten. Wirklich mal wieder kaum zu glauben.
D
derdietmar
21.09.21 20:48
Hallo @kbt09 ,

der Ausschnitt ist doch bemaßt (unterlegtes Raster). Die Brüstungshöhen sind nicht vorgegeben und variabel.

Viele Grüße
kbt0921.09.21 20:50
derdietmar schrieb:

er Ausschnitt ist doch bemaßt (unterlegtes Raster). D
Und du erwartest, dass hier jeder erst mal den Text liest, um das Raster zu erfahren? Dass hier jeder erstmal den Text liest, um zu wissen, welcher Ausgang wohin geht. Alles Sachen, die mit einem ordentlich vermaßten Grundriss auf EINEM Blick erkennbar wären, ohne Textwüsten zu lesen 😉. Du hast den Plan natürlich im Kopf, aber wir nicht.
D
derdietmar
21.09.21 20:58
Hallo,

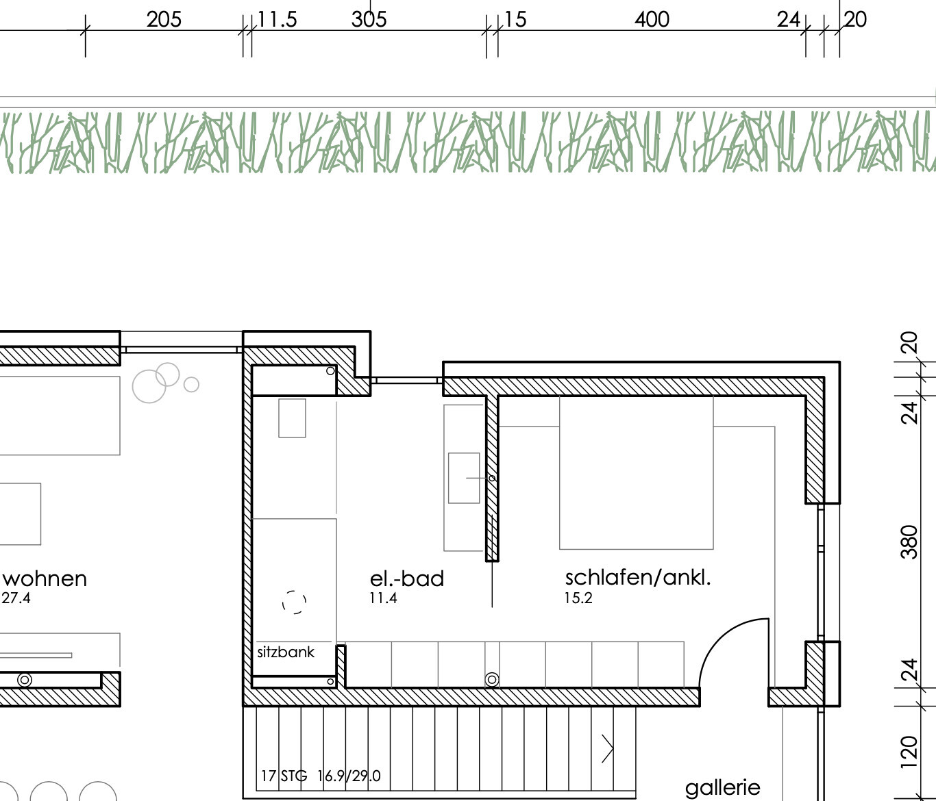
ehrlich gesagt gehe ich wirklich davon aus, dass Interessierte den Eingangspost lesen 😉 Aber dein Argument ist ja richtig, ein bemaßter Ausschnitt ist sicher hilfreich.

Hier mal der Ausschnitt aus dem "echten" Plan mit angrenzenden Räumen, Achtung der Versatz an der Nordseite ist hier 40cm.


Grundriss eines Wohn-/Schlafbereichs mit Bad, Sitzecke, Bank, Galerie und Garten.


Viele Grüße!
kbt0921.09.21 21:03


fände ich aber wesentlich spannender. Was soll denn der Eingang planrechts sein? Aus dem Wohnbereich?
Y
ypg
21.09.21 21:31
derdietmar schrieb:

Hier mal der Planungsstand:
Gefällt mir sehr, sehr gut. Halt moderne Langeweile 😀
derdietmar schrieb:

Und eine Variante mit separat verschließbarem Duschraum inkl. Toilette:
Das ist zu verwinkelt. Dadurch wirkt alles klein und beengt.
derdietmar schrieb:

Der zweite ist wohl nicht ganz unser Geschmack 😉
Und warum nicht? Du lebst schließlich da drin und schaust nicht von oben drauf… ist Dir das zu offen? Zu großzügig? Zu einzigartig?
kbt09 schrieb:

Was soll denn der Eingang planrechts sein?
Rechts: Fenster, unten: Flurtür, links: WZ-Tür..