Hallo Zusammen,
bald wird meine Wohnung (derzeit vermietet) frei und wird eigengenutzt. Aus diesem Grund würden wir gerne den Grundriss etwas optimieren,
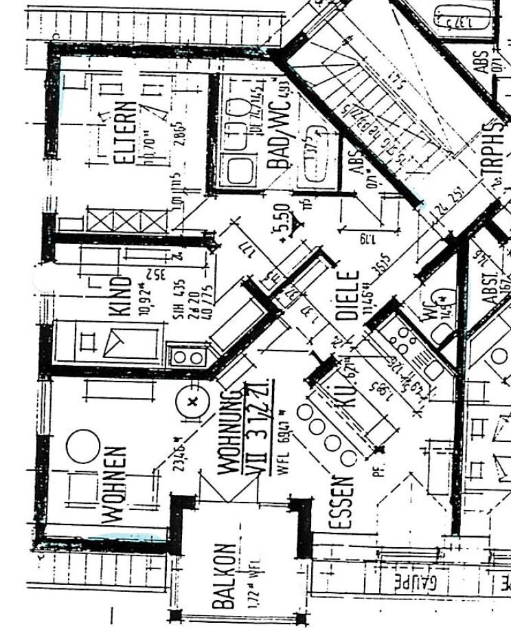
sodass dieser gefühlt größer wirkt. Anbei ein Bild vom Grundriss. Die JPG-Datei ist das Hauptgeschoss, neben der Diele führt eine kleine Treppe
in das Dachstuhl. Uns geht es grundsätzlich nur um das Hauptgeschoss.
Habt Ihr Tipps welche Wände wir entfernen können, sodass wir mehr Platz haben? Ein Kind ist auf dem Weg und somit wird das Kinderzimmer + Elternzimmer notwendig sein.
Des weiteren habe ich mal folgende QM Zahlen aus der Teilungserklärung:
Wohnen/Essen 23.16 m²
Eltern 10.37 m²
Kind 10.92 m²
Küche 6,21 m²
Bad 4.69 m² (soll nicht beachtet werden / bereits renoviert)
Abstellraum 0,48 m²
Diele 11.26 m²
WC 1,38 m²
Balkon 1,72 m²
Gibt es evtl. auch Tipps mit welchen KI Tools ich so ein Grundriss bearbeiten kann? Wie macht ihr das?
Besten Dank im Voraus.

bald wird meine Wohnung (derzeit vermietet) frei und wird eigengenutzt. Aus diesem Grund würden wir gerne den Grundriss etwas optimieren,
sodass dieser gefühlt größer wirkt. Anbei ein Bild vom Grundriss. Die JPG-Datei ist das Hauptgeschoss, neben der Diele führt eine kleine Treppe
in das Dachstuhl. Uns geht es grundsätzlich nur um das Hauptgeschoss.
Habt Ihr Tipps welche Wände wir entfernen können, sodass wir mehr Platz haben? Ein Kind ist auf dem Weg und somit wird das Kinderzimmer + Elternzimmer notwendig sein.
Des weiteren habe ich mal folgende QM Zahlen aus der Teilungserklärung:
Wohnen/Essen 23.16 m²
Eltern 10.37 m²
Kind 10.92 m²
Küche 6,21 m²
Bad 4.69 m² (soll nicht beachtet werden / bereits renoviert)
Abstellraum 0,48 m²
Diele 11.26 m²
WC 1,38 m²
Balkon 1,72 m²
Gibt es evtl. auch Tipps mit welchen KI Tools ich so ein Grundriss bearbeiten kann? Wie macht ihr das?
Besten Dank im Voraus.
H
hanghaus202309.05.25 12:31EYGanove schrieb:
mit welchen KI Tools ich so ein Grundriss bearbeiten kann? Wie macht ihr das?Mit KI kann ich nicht helfen. Aber mit eigenen Ideen. Ich mache so etwas meist im Excel.
MMn geht das nicht viel offener. Der Grundriss ist schon recht optimiert.
EYGanove schrieb:
würden wir gerne den Grundriss etwas optimieren,
sodass dieser gefühlt größer wirkt.Von den Wänden (die sämtlich zum Gemeinschaftseigentum gehören) sehe ich nur das Garderobenwändchen in der Diele entfernbar.https://www.instagram.com/11antgmxde/
https://www.linkedin.com/company/bauen-jetzt/
N
nordanney13.05.25 08:29EYGanove schrieb:
Das ist nicht ganz korrekt, Innenwände sind nicht Gemeinschaftseigentum. Sind modifizierbar, solange die Statik nicht leidet.Jetzt machen wir es mal komplett richtig. Tragende und aussteifende Innenwände sind zwingend Gemeinschaftseigentum. Alle anderen gehören dir.EYGanove schrieb:
Habt Ihr Tipps welche Wände wir entfernen können, sodass wir mehr Platz haben?EYGanove schrieb:
Das ist nicht ganz korrekt, Innenwände sind nicht Gemeinschaftseigentum. Sind modifizierbar, solange die Statik nicht leidet.Der Grundriss besteht augenscheinlich fast nur aus Wänden, die statisch relevant sind. Es ist halt eine alte Grundrissabbildung aus ehemaligen Zeiten. Relevante Maße sehe ich nicht, nur wenige.
Zwei Schlafzimmer sind gesetzt, Bad ist renoviert. Im Prinzip geht es doch nur um eine intelligente Möblierungslösung, die man während der Renovierung von Wänden und Böden einplanen und umsetzen kann.
Ich frage mich auch, wie hoch der Drempel ist.
Anscheinend ist bis auf einem Meter abgedrempelt, die 2-Meter-Linie eingezeichnet. Es könnte allerdings auch die 2,20 oder 2,30er Linie sein.
Wie dem auch sei: AB ist notwendig, separates WC ist notwendig. Ob man die in meinen Augen großzügige Diele noch vergrößern sollte, erschließt sich mir nicht. Die Wand dient der Zonierung für Wohnen und Privat. Ich würde die planobere und planuntere Seite der Dielenwand für Einbauschränke nutzen, sei es auf privater Seite für die private Garderobe und auf der Küchenseite für Vorräte und Speisersatz. Wasser wird wohl schwer, das zu verlegen, somit bleibt die Waschmaschine in der Küche oder im Keller. In der Küche würde ich den Tresen herausreißen und planrechts die Küche erweitern. Dort die Wasserwege etwas nach Planunten Richtung Gaube strecken. So etwas gelingt, in dem man die Küchenschränke um 10cm vorsetzt und die Arbeitsplatte auf grob 70cm vertieft. Ggf auch unter der Gaube die Arbeitsfläche langlaufen lassen. Es ergibt sich ein offener Essbereich.
Der Wandstummel in der Küche stört natürlich. Wenn der nicht weg darf, was zu vermuten ist, dann dort einen schicken Kühlschrank setzen. Hochschränke sehe ich ansonsten an der Wand planrechts, an der die Küchenzeile eingezeichnet ist. Grundsätzlich bedarf es aber eine Küchenplanung vom Fachmann, um die vorhandenen Leitungen optimal zu nutzen.
Wenn die Küchenplanung, wie von mir vorgeschlagen, umgesetzt wird, bedarf es keine weiteren Schränke für Speisersatz. Dann dort schöne Garderobe von beiden Seiten einpflegen.
Ähnliche Themen