ᐅ Grundriss mit Einschränkungen für Stadthaus (Reihenmittelhaus) für Familie.
Erstellt am: 15.01.22 11:41
M
Maig001
Hallo zusammen,
wir beplanen derzeit unser Grundstück welches durch gewisse Rahmenbedinungen nicht sehr viel Spielraum für Gestaltungsmöglichkeiten lässt. Leider habe ich festgestellt, dass das die Grundrissplanung eher kompliziert macht, auch wenn man denkt, dass viel dadurch vorgegeben ist. Wir wollen zu einem späteren Zeitpunkt auch noch einen Architekt beauftragen, sind aber jetzt schonmal dabei Ideen zu sammeln. Das kleine Grundstück befindet sich mitten im Ortskern. Der Eingang ist direkt vom Gehweg. Die Nachbarn haben im EG Geschäfte. Auf der Rückseite befindet sich ein kleiner Innen- bzw. Hinterhof der ruhig ist aber grundsätzlich von den Nachbarn durchquert werden darf.
Folgende Eckdaten sind gegeben oder bekannt:
Bebauungsplan/Einschränkungen
Größe des Grundstücks: 139qm
Hang: nein
Baufenster, Baulinie und -grenze: Profilgleicher Anbau an das Nachbargebäude
Anzahl Stellplatz: Eine Garage im Haus
Geschossigkeit: Keller+EG+1.OG+DG
Dachform: Satteldach 40 Grad mit Gauben
Maximale Höhen/Begrenzungen: Wandhöhe 6,2m, Grundfläche (seitlich grenzständig): 6,8m x 14,1m
weitere Vorgaben: Bebauung nach §34
Anforderungen der Bauherren
Stilrichtung, Dachform, Gebäudetyp
Keller, Geschosse
Anzahl der Personen, Alter: 2 Erwachsene + 2 Kleinkinder
Büro: Familiennutzung
Schlafgäste pro Jahr: 0
konservativ oder moderne Bauweise: eher modern nach Möglichkeiten
offene Küche, Kochinsel: Wohn-/Koch-/Essbereich mit Kochinsel
Anzahl Essplätze: 1
Balkon, Dachterrasse: Vorder- und Rückseite je eine Dachterrasse
Garage, Carport: Eine Garage im Haus
Nutzgarten, Treibhaus: Kein Garten nur Innenhof
weitere Wünsche/Besonderheiten/Tagesablauf, gern auch Begründungen, warum dieses oder das nicht sein soll:
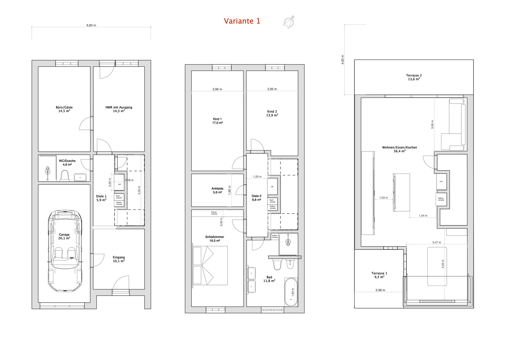
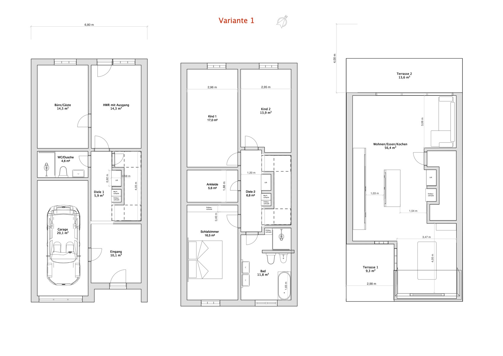
Wir haben das Haus entsprechend der Umgebung so geplant, dass das EG ein reines NutzEG wird, das 1.OG die Schlafräume hat und im DG evtl. mit Galerie sich der Wohn- Eis- und Kochbereich befindet. Wir haben außerdem einen Speiselift (vom Keller bis ins DG) eingeplant und einen Wäscheschacht vom Keller bis ins 1.OG.
Hausentwurf
Von wem stammt die Planung:
-Do-it-Yourself
Persönliches Preislimit fürs Haus, inkl Ausstattung: 600-700T€
favorisierte Heiztechnik: Gas
Was würdet Ihr an dem Grundriss ändern? Ich habe vor allem ewig mit der Treppe überlegt. Ich hätte gerne eine Treppe die in den Kurven ein Podest hat und somit gut zu begehen ist. Das braucht Platz. Leider gibt es in meinem Zeichenprogramm keine Treppe wie ich sie benötige, ich habe daher jetzt nur mal Lufträume für die Treppen vorgesehen. Was sagt Ihr zum Grundkonzept und zur Raumaufteilung? Wie gesagt die Details soll dann der Architekt noch verbessern. Ich überlege auch immer wie viel ich dem Architekten vorgeben soll? Ich will ja, dass sich der auch Gedanken macht und was überlegt. Außerdem habe ich für das 1.OG 3 Varianten erstellt. Diese unterscheiden sich im Prinzip nur durch die Dielenbreite. Welche meint Ihr ist am besten? Oder ist das alles nichts...?
Beste Grüße Martin


wir beplanen derzeit unser Grundstück welches durch gewisse Rahmenbedinungen nicht sehr viel Spielraum für Gestaltungsmöglichkeiten lässt. Leider habe ich festgestellt, dass das die Grundrissplanung eher kompliziert macht, auch wenn man denkt, dass viel dadurch vorgegeben ist. Wir wollen zu einem späteren Zeitpunkt auch noch einen Architekt beauftragen, sind aber jetzt schonmal dabei Ideen zu sammeln. Das kleine Grundstück befindet sich mitten im Ortskern. Der Eingang ist direkt vom Gehweg. Die Nachbarn haben im EG Geschäfte. Auf der Rückseite befindet sich ein kleiner Innen- bzw. Hinterhof der ruhig ist aber grundsätzlich von den Nachbarn durchquert werden darf.
Folgende Eckdaten sind gegeben oder bekannt:
Bebauungsplan/Einschränkungen
Größe des Grundstücks: 139qm
Hang: nein
Baufenster, Baulinie und -grenze: Profilgleicher Anbau an das Nachbargebäude
Anzahl Stellplatz: Eine Garage im Haus
Geschossigkeit: Keller+EG+1.OG+DG
Dachform: Satteldach 40 Grad mit Gauben
Maximale Höhen/Begrenzungen: Wandhöhe 6,2m, Grundfläche (seitlich grenzständig): 6,8m x 14,1m
weitere Vorgaben: Bebauung nach §34
Anforderungen der Bauherren
Stilrichtung, Dachform, Gebäudetyp
Keller, Geschosse
Anzahl der Personen, Alter: 2 Erwachsene + 2 Kleinkinder
Büro: Familiennutzung
Schlafgäste pro Jahr: 0
konservativ oder moderne Bauweise: eher modern nach Möglichkeiten
offene Küche, Kochinsel: Wohn-/Koch-/Essbereich mit Kochinsel
Anzahl Essplätze: 1
Balkon, Dachterrasse: Vorder- und Rückseite je eine Dachterrasse
Garage, Carport: Eine Garage im Haus
Nutzgarten, Treibhaus: Kein Garten nur Innenhof
weitere Wünsche/Besonderheiten/Tagesablauf, gern auch Begründungen, warum dieses oder das nicht sein soll:
Wir haben das Haus entsprechend der Umgebung so geplant, dass das EG ein reines NutzEG wird, das 1.OG die Schlafräume hat und im DG evtl. mit Galerie sich der Wohn- Eis- und Kochbereich befindet. Wir haben außerdem einen Speiselift (vom Keller bis ins DG) eingeplant und einen Wäscheschacht vom Keller bis ins 1.OG.
Hausentwurf
Von wem stammt die Planung:
-Do-it-Yourself
Persönliches Preislimit fürs Haus, inkl Ausstattung: 600-700T€
favorisierte Heiztechnik: Gas
Was würdet Ihr an dem Grundriss ändern? Ich habe vor allem ewig mit der Treppe überlegt. Ich hätte gerne eine Treppe die in den Kurven ein Podest hat und somit gut zu begehen ist. Das braucht Platz. Leider gibt es in meinem Zeichenprogramm keine Treppe wie ich sie benötige, ich habe daher jetzt nur mal Lufträume für die Treppen vorgesehen. Was sagt Ihr zum Grundkonzept und zur Raumaufteilung? Wie gesagt die Details soll dann der Architekt noch verbessern. Ich überlege auch immer wie viel ich dem Architekten vorgeben soll? Ich will ja, dass sich der auch Gedanken macht und was überlegt. Außerdem habe ich für das 1.OG 3 Varianten erstellt. Diese unterscheiden sich im Prinzip nur durch die Dielenbreite. Welche meint Ihr ist am besten? Oder ist das alles nichts...?
Beste Grüße Martin
Maig001 schrieb:
aber bevor ich den Architekten jetzt von Anfang an 10 Entwürfe machen lasse, versuche ich halt schonmal was zu machen. Kostet ja auch was.Das ist wohl ein weit verbreiteter doppelter Irrglauben, der Architekt1. präsentiere dem Kunden so viele Brautkleidentwürfe wie Pinterest, Instagram und Konsorten;
2. wenn man schon welche mitbrächte, würde der Entwurfsprozeß billiger oder zumindest minder kostspielig.
Keines von beidem trifft zu.
https://www.instagram.com/11antgmxde/
https://www.linkedin.com/company/bauen-jetzt/
Wo ist denn nun SÜDEN??????
Aber gut, die TE hatte ja noch das Zaunverbot erwähnt 🙁
Um die Details kann sich der Architekt kümmern. Er hätte eventuell auch eine ganz andere Idee mit der Treppe. Oder den Eingang. Warum nicht mal die Garage auf 4 Meter ausreizen und innenliegend den Eingang setzen?
Mein Favorit, hat hier mal jmd im RH gebaut, war es @One00 ?, Souterrain Küche und Essen, 30qm reichen da, kleine Speis, kleines WC... damit sind die ersten Bedürfnisse, wenn man nach Hause kommt, befriedigt. Das gilt für Euer EG.
Als nächstes Geschoss Schlaf/Kinder finde ich gut. Statt Eltern Hauswirtschaftsraum und mal schauen, was passt. Auch dort eine kleine Einbuchtung für eine Loggia.
Als oberstes Geschoss Wohnzimmer, ggf kleine Paintry, Gast und Elternbereich. Dachterrasse.
Der zusätzliche Vorteil, den man etwas mehr Beachtung schenken sollte: die Kinder stören die Eltern nicht mehr, wenn sie abends mit Freunden nach Hause kommen und noch etwas lauter bzw geselliger sind. Im Haus, unter Kontrolle, aber nicht störend.
RomeoZwo schrieb:Soviel ich verstehe, hat man da noch sein eigenen Grund, bevor es zum Allgemeingut geht.
Ne, aber das die 36m2 Hof sind, über die auch die Nachbarn latschen dürfen ...
Aber gut, die TE hatte ja noch das Zaunverbot erwähnt 🙁
Maig001 schrieb:Ja, aber mach halt Du mal mehrere Entwürfe, als nur Details zu ändern. Du kannst doch dann selbst das Für und Wider aufschreiben und ggf die ganz schlechten in die Ablage tun, zumindest erstmal umdrehen.
aber bevor ich den Architekten jetzt von Anfang an 10 Entwürfe machen lasse, versuche ich halt schonmal was zu machen. Kostet ja auch was.
Um die Details kann sich der Architekt kümmern. Er hätte eventuell auch eine ganz andere Idee mit der Treppe. Oder den Eingang. Warum nicht mal die Garage auf 4 Meter ausreizen und innenliegend den Eingang setzen?
Mein Favorit, hat hier mal jmd im RH gebaut, war es @One00 ?, Souterrain Küche und Essen, 30qm reichen da, kleine Speis, kleines WC... damit sind die ersten Bedürfnisse, wenn man nach Hause kommt, befriedigt. Das gilt für Euer EG.
Als nächstes Geschoss Schlaf/Kinder finde ich gut. Statt Eltern Hauswirtschaftsraum und mal schauen, was passt. Auch dort eine kleine Einbuchtung für eine Loggia.
Als oberstes Geschoss Wohnzimmer, ggf kleine Paintry, Gast und Elternbereich. Dachterrasse.
Der zusätzliche Vorteil, den man etwas mehr Beachtung schenken sollte: die Kinder stören die Eltern nicht mehr, wenn sie abends mit Freunden nach Hause kommen und noch etwas lauter bzw geselliger sind. Im Haus, unter Kontrolle, aber nicht störend.
Maig001 schrieb:Dann mach das so. Wir haben Podest auf der Arbeit. Die kostet mich 2 Sekunden für weitere 3 Schritte plus Drehen. 😉
Also das mit der Treppe empfinde ich anders. Wenn ich eine gewandelte Treppe gehe finde ich das nicht so förderlich für den Gehfluss,
H
Hausbautraum2015.01.22 20:02Mich würde stören, dass man alle Einkäufe zwei Stockwerke hochtragen muss bzw ja immer diese 2 Stockwerke laufen muss.
Aber ansonsten ist der Plan schon irgendwie stimmig.
Aber ansonsten ist der Plan schon irgendwie stimmig.
Wegen dem hochtragen hätte ich ja den Speiselift geplant.
Die Gaube wäre an der Süd-West Seite über dem Essplatz neben der kleineren Terrasse. Auf der anderen Seite bräuchte ich keine, da ich die Außenwand 2m rein gezogen habe für die zweite Terrasse. Außerdem überlege ich ob man dort noch über die Fassade hinaus die Terrasse um 2m vergrößern kann. Und analog dazu einen gemeinsamen Balkon an die beiden Kinderzimmer macht.
Die Gaube wäre an der Süd-West Seite über dem Essplatz neben der kleineren Terrasse. Auf der anderen Seite bräuchte ich keine, da ich die Außenwand 2m rein gezogen habe für die zweite Terrasse. Außerdem überlege ich ob man dort noch über die Fassade hinaus die Terrasse um 2m vergrößern kann. Und analog dazu einen gemeinsamen Balkon an die beiden Kinderzimmer macht.
Ähnliche Themen