Ein Haus von der kurzen Giebelseite aus zu erschließen, ist immer sehr schlecht, weil dann im klassisch geplanten Haus ein langer Flur herauskommt.
Mir siehts auch leider eher wie eine Aneinanderreihung von Räumen aus.
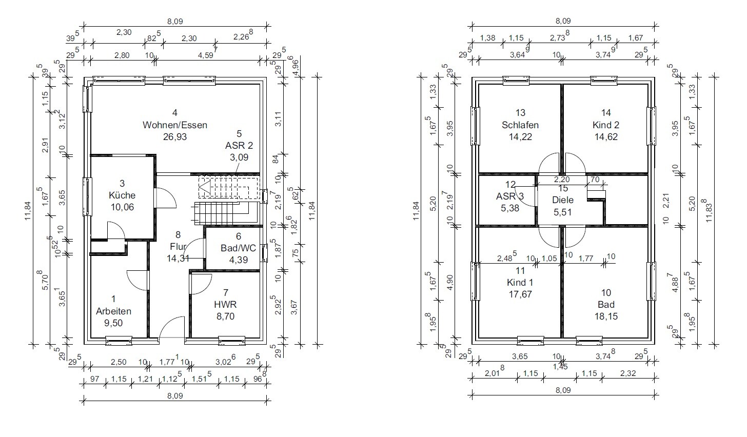
Wo zB willst Du eine Küchenzeile hinstellen, wo die Garderobe für 4 Personen unterbringen?
Gruß, Yvonne
Mir siehts auch leider eher wie eine Aneinanderreihung von Räumen aus.
Wo zB willst Du eine Küchenzeile hinstellen, wo die Garderobe für 4 Personen unterbringen?
Gruß, Yvonne
B
Bauprinzessin14.02.17 20:14Ich glaube, die Grundfläche ist für alles was ihr möchtet zu klein oder zu ungeschickt geplant 🙁
Hat die Speisekammer ernsthaft nur 52 cm Innenmaß? Das ist doch viel zu klein um wirklich sinnvoll etwas zu lagern, da könntet ihr mit einem Vorratsschrank mehr in der Küche mehr besser fahren.
Und wie schon gesagt wurde, es fehlt der Platz für eine Garderobe.
Wie wäre es, Gäste-WC und Hauswirtschaftsraum zu tauschen und das WC etwas mehr einrücken? Dann könnte davor vielleicht zumindest noch eine kleine Garderobe und der Eingang ist nicht ganz so Schlauchig.
Das OG ist auch nicht meins, die Zimmer sind wirklich ziemlich unterschiedlich. Wenn die Treppe verschoben wird, könnte es oben die Lage etwas entzerren. Was ist der kleine Raum? Abstellkammer? Auf der schönen Südseite?
Hat die Speisekammer ernsthaft nur 52 cm Innenmaß? Das ist doch viel zu klein um wirklich sinnvoll etwas zu lagern, da könntet ihr mit einem Vorratsschrank mehr in der Küche mehr besser fahren.
Und wie schon gesagt wurde, es fehlt der Platz für eine Garderobe.
Wie wäre es, Gäste-WC und Hauswirtschaftsraum zu tauschen und das WC etwas mehr einrücken? Dann könnte davor vielleicht zumindest noch eine kleine Garderobe und der Eingang ist nicht ganz so Schlauchig.
Das OG ist auch nicht meins, die Zimmer sind wirklich ziemlich unterschiedlich. Wenn die Treppe verschoben wird, könnte es oben die Lage etwas entzerren. Was ist der kleine Raum? Abstellkammer? Auf der schönen Südseite?
Ich hoffe so ist es besser im Anhang.
Wäre auf jeden Fall die erste gute Idee mal den Hauswirtschaftsraum mit dem Gäste-WC zu tauschen.
Es besteht natürlich die Möglichkeit das Haus zu vergrößern, allerdings möchte ich mir die Kosten sparen und es ändert nicht wirklich wesentlich etwas.
Sinnvoll wäre natürlich vom Aufbau das Wohnzimmer auf die längere Seite zu verlegen, allerdings habe ich dann den Nachbar direkt vor der Nase im Süden.
Der kleine Raum oben soll eine Abstellkammer sein. Ich möchte aber, dass es ein Ankleidezimmer für das Schlafzimmer daneben sein soll. Und aus dem großen Bad möchte ich noch ein kleines Abstellzimmer herausschneiden.
Die Speisekammer ist meines Erachtens ebenfalls viel zu klein geraten. Ich weiß nicht was der Architekt sich dabei denkt. Der Platz ist ebenfalls nicht wirklich ideal. Da sollte eigentlich die Küchenzeile als L Form hin.
Also ich wäre über jede Verbesserung und Hilfe sehr dankbar...


Wäre auf jeden Fall die erste gute Idee mal den Hauswirtschaftsraum mit dem Gäste-WC zu tauschen.
Es besteht natürlich die Möglichkeit das Haus zu vergrößern, allerdings möchte ich mir die Kosten sparen und es ändert nicht wirklich wesentlich etwas.
Sinnvoll wäre natürlich vom Aufbau das Wohnzimmer auf die längere Seite zu verlegen, allerdings habe ich dann den Nachbar direkt vor der Nase im Süden.
Der kleine Raum oben soll eine Abstellkammer sein. Ich möchte aber, dass es ein Ankleidezimmer für das Schlafzimmer daneben sein soll. Und aus dem großen Bad möchte ich noch ein kleines Abstellzimmer herausschneiden.
Die Speisekammer ist meines Erachtens ebenfalls viel zu klein geraten. Ich weiß nicht was der Architekt sich dabei denkt. Der Platz ist ebenfalls nicht wirklich ideal. Da sollte eigentlich die Küchenzeile als L Form hin.
Also ich wäre über jede Verbesserung und Hilfe sehr dankbar...
Wie kommt es zustande, daß z.B. die Breite des Hauses ausgerechnet Acht Meter Neun beträgt, haben die ungewöhnlichen Maße einen Bezug zu einer konkreten Vorlage ?
Auch zu ausgerechnet 29,5 cm (der Zeichnung nach wohl zweischaliger) Außenwand frage ich mich das. Ist der Abstellraum 3 dort Absicht (wozu, bei der Riesengarage) oder ein zufälliger Flächenrest ?
Mir ist da insgesamt nicht recht erkennbar, was Absicht ist und was nur irgendwie so gekommen.
https://www.instagram.com/11antgmxde/
https://www.linkedin.com/company/bauen-jetzt/
Auch zu ausgerechnet 29,5 cm (der Zeichnung nach wohl zweischaliger) Außenwand frage ich mich das. Ist der Abstellraum 3 dort Absicht (wozu, bei der Riesengarage) oder ein zufälliger Flächenrest ?
Mir ist da insgesamt nicht recht erkennbar, was Absicht ist und was nur irgendwie so gekommen.
https://www.instagram.com/11antgmxde/
https://www.linkedin.com/company/bauen-jetzt/
11ant schrieb:
Wie kommt es zustande, daß z.B. die Breite des Hauses ausgerechnet Acht Meter Neun beträgt, haben die ungewöhnlichen Maße einen Bezug zu einer konkreten Vorlage ?
Auch zu ausgerechnet 29,5 cm (der Zeichnung nach wohl zweischaliger) Außenwand frage ich mich das. Ist der Abstellraum 3 dort Absicht (wozu, bei der Riesengarage) oder ein zufälliger Flächenrest ?
Mir ist da insgesamt nicht recht erkennbar, was Absicht ist und was nur irgendwie so gekommen.Es handelt sich um ein Fertighaus in Holzständerbauweise. Die Maße sind so aufgrund der Rastereinteilung. Wenn ich also das Haus größer machen möchte, wird es in Rastern vergrößert (Pro Raster ca.~67cm?!). Weshalb man hier dann genau auf 8,09m kommt kann ich nicht direkt beantworten, ist entweder einem Programm des Architekten geschuldet oder weil alles noch etwas ungenau gezeichnet wurde.
Der Anordnung der Zimmer ist schon so gewollt, allerdings wurde noch nicht vorgegeben welche exakte Größe die Zimmer haben sollen. Zu klein empfinde ich die Küche, die Speisekammer und das Wohnzimmer. Das Gäste-WC zu groß.
Der Abstellraum 3 oben wird wiegesagt zum Ankleidezimmer möglicherweise umfunktioniert für das Anliegende Schlafzimmer im Westen (Auf dem Bild oben). Ich empfinde so einen Abstellraum nicht ganz so schlecht, insbesondere für Staubsauger, Spielsachen o.ä. Dinge die ich ansonsten nur so rumstehen habe.
Ich werde heute Abend dann das Haus möblieren und den Hauswirtschaftsraum mit dem Gäste-WC auf jeden Fall tauschen. Dann kann ich mir am Eingangsbereich direkt eine Garderobe basteln. Das Gäste-WC ist meineserachtens zu groß da wir keine Dusche unten benötigen werden.
Habe definitiv noch ein Problem mit der Speisekammer. Der Platz ist wirklich mehr als ungünstig an dieser Stelle.
Schöne Grüße,
Ravosch
Ähnliche Themen