Liebes Forum,
wir sind gerade in der Grundrissplanung mit unserer Architektin und würden uns über Anregungen und/oder Infos freuen. Unser Grundstück ist recht schmal und hat auf der einen Seite einen Feldweg sowie auf der anderen Seite eine großflächige, fast grenzständige Bebauung durch einen Bauernhof.
Derzeit befindet sich auf dem Grundstück noch ein alter Vierkanthof, der im Zuge des Neubaus abgerissen wird. Auf dem Lageplan sind in gelb alle Teile markiert, die abgerissen werden. Lila bleibt als Kellerersatz, Lagerfläche stehen. In rot sieht man die ungefähre Position des Neubaus.
Wir bauen also sozusagen in zweiter Reihe, dies gefällt uns so und ist mit dem Bauamt abgeklärt.
Hier anbei unser Fragebogen:
Bebauungsplan/Einschränkungen
Größe des Grundstücks: ca. 1000qm
Hang: nein
Grundflächenzahl
Geschossflächenzahl
Baufenster, Baulinie und -grenze: Ende des Baufensters auf Höhe des Nachbarhauses 11a
Randbebauung
Anzahl Stellplatz: zwei im Carport
Geschossigkeit
Dachform
Stilrichtung
Ausrichtung
Maximale Höhen/Begrenzungen
weitere Vorgaben: richtet sich nach Nachbarbebauung, diese umfasst hauptsächlich Satteldachhäuser mit 1,5-2,5 Geschossen
Anforderungen der Bauherren
Stilrichtung, Dachform, Gebäudetyp: Satteldach ohne Dachüberstand
Keller, Geschosse: kein Keller, zwei Vollgeschosse
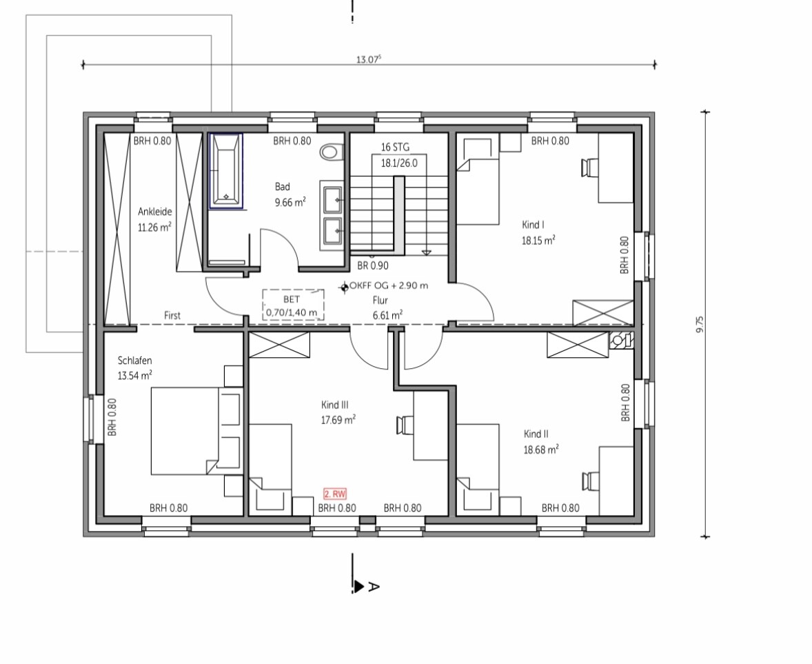
Anzahl der Personen, Alter: 2 Erwachsene, 3 Kinder (2 davon noch in Planung)
Raumbedarf im EG, OG: EG großer Allraum, separate Garderobe, kleines Büro
OG drei Kinderzimmer, Schlafzimmer mit Ankleide, Familienbad
Büro: Familiennutzung oder Homeoffice?: Homeoffice, nur großer schreibtisch ohne Regale usw
Schlafgäste pro Jahr: 5 maximal
offene oder geschlossene Architektur: eher geschlossen, Treppe unbedingt vom Wohnbereich getrennt
konservativ oder moderne Bauweise: eine Mischung?
offene Küche, Kochinsel: Zeile mit Hochschränken sowie große Halbinsel
Anzahl Essplätze: 8
Kamin: gerne, wenn es passt
Musik/Stereowand: nein
Balkon, Dachterrasse: nein
Garage, Carport: Carport gerne an die Garderobe angeschlossen
Nutzgarten, Treibhaus: nein
weitere Wünsche/Besonderheiten/Tagesablauf, gern auch Begründungen, warum dieses oder das nicht sein soll: Waschen soll im EG sein mit kurzen Wegen nach draußen, große Garderobe mit separatem Eingang
Hausentwurf
Von wem stammt die Planung:
-Architektin
Was gefällt besonders? Warum? Separate Garderobe und Waschen gut gelöst, schönes EG gene
Was gefällt nicht? Warum?
Schlafzimmer im Süden! Fenster in EG-Dusche, Kinderzimmer dürften etwas größer sein
Preisschätzung laut Architekt/Planer: reines Haus 500.000€
Persönliches Preislimit fürs Haus, inkl. Ausstattung: 650.000€
favorisierte Heiztechnik: Wärmepumpe
Wenn Ihr verzichten müsst, auf welche Details/Ausbauten
-könnt Ihr verzichten: schwierig zu sagen
-könnt Ihr nicht verzichten: schwierig zu sagen
Warum ist der Entwurf so geworden, wie er jetzt ist? ZB
Architektin hat unsere Anforderungen umgesetzt
Vielleicht seht ihr hier ja noch grobe Schnitzer, die uns nicht aufgefallen sind oder habt Ideen, wie das Ganze noch verbessert werden kann.
Danke und viele Grüße
Annie


wir sind gerade in der Grundrissplanung mit unserer Architektin und würden uns über Anregungen und/oder Infos freuen. Unser Grundstück ist recht schmal und hat auf der einen Seite einen Feldweg sowie auf der anderen Seite eine großflächige, fast grenzständige Bebauung durch einen Bauernhof.
Derzeit befindet sich auf dem Grundstück noch ein alter Vierkanthof, der im Zuge des Neubaus abgerissen wird. Auf dem Lageplan sind in gelb alle Teile markiert, die abgerissen werden. Lila bleibt als Kellerersatz, Lagerfläche stehen. In rot sieht man die ungefähre Position des Neubaus.
Wir bauen also sozusagen in zweiter Reihe, dies gefällt uns so und ist mit dem Bauamt abgeklärt.
Hier anbei unser Fragebogen:
Bebauungsplan/Einschränkungen
Größe des Grundstücks: ca. 1000qm
Hang: nein
Grundflächenzahl
Geschossflächenzahl
Baufenster, Baulinie und -grenze: Ende des Baufensters auf Höhe des Nachbarhauses 11a
Randbebauung
Anzahl Stellplatz: zwei im Carport
Geschossigkeit
Dachform
Stilrichtung
Ausrichtung
Maximale Höhen/Begrenzungen
weitere Vorgaben: richtet sich nach Nachbarbebauung, diese umfasst hauptsächlich Satteldachhäuser mit 1,5-2,5 Geschossen
Anforderungen der Bauherren
Stilrichtung, Dachform, Gebäudetyp: Satteldach ohne Dachüberstand
Keller, Geschosse: kein Keller, zwei Vollgeschosse
Anzahl der Personen, Alter: 2 Erwachsene, 3 Kinder (2 davon noch in Planung)
Raumbedarf im EG, OG: EG großer Allraum, separate Garderobe, kleines Büro
OG drei Kinderzimmer, Schlafzimmer mit Ankleide, Familienbad
Büro: Familiennutzung oder Homeoffice?: Homeoffice, nur großer schreibtisch ohne Regale usw
Schlafgäste pro Jahr: 5 maximal
offene oder geschlossene Architektur: eher geschlossen, Treppe unbedingt vom Wohnbereich getrennt
konservativ oder moderne Bauweise: eine Mischung?
offene Küche, Kochinsel: Zeile mit Hochschränken sowie große Halbinsel
Anzahl Essplätze: 8
Kamin: gerne, wenn es passt
Musik/Stereowand: nein
Balkon, Dachterrasse: nein
Garage, Carport: Carport gerne an die Garderobe angeschlossen
Nutzgarten, Treibhaus: nein
weitere Wünsche/Besonderheiten/Tagesablauf, gern auch Begründungen, warum dieses oder das nicht sein soll: Waschen soll im EG sein mit kurzen Wegen nach draußen, große Garderobe mit separatem Eingang
Hausentwurf
Von wem stammt die Planung:
-Architektin
Was gefällt besonders? Warum? Separate Garderobe und Waschen gut gelöst, schönes EG gene
Was gefällt nicht? Warum?
Schlafzimmer im Süden! Fenster in EG-Dusche, Kinderzimmer dürften etwas größer sein
Preisschätzung laut Architekt/Planer: reines Haus 500.000€
Persönliches Preislimit fürs Haus, inkl. Ausstattung: 650.000€
favorisierte Heiztechnik: Wärmepumpe
Wenn Ihr verzichten müsst, auf welche Details/Ausbauten
-könnt Ihr verzichten: schwierig zu sagen
-könnt Ihr nicht verzichten: schwierig zu sagen
Warum ist der Entwurf so geworden, wie er jetzt ist? ZB
Architektin hat unsere Anforderungen umgesetzt
Vielleicht seht ihr hier ja noch grobe Schnitzer, die uns nicht aufgefallen sind oder habt Ideen, wie das Ganze noch verbessert werden kann.
Danke und viele Grüße
Annie
Danke für eure Beiträge.
Okay, sehen wir ein, die Türe nach vorne zum Carport fliegt raus. Ansonsten kann ich mir eine bessere Aufteilung im Anbau nicht so recht vorstellen, könnte das jemand aufzeichnen?
Es wäre definitiv in unserem Sinne, wenn die Nische für Waschmaschine/Trockner wieder verschwinden würde, da sie uns im OG schlaflose Nächte bereitet hat..
Wenn die Treppe wieder um 70cm nach planlinks rutscht, dann müsste unser Schlafzimmer wieder in den Norden wandern können.
Zum Stauraum: Angedacht ist, dass selten genutzte Dinge (Stichwort angebrochene Farbeimer) in die Scheune wandern. Dort wird es auch Schränke für saisonale Deko geben. Die Scheune ist trocken und kellerähnlich ausgebaut. Vorräte, Staubsauger und co sollen dann im Vorratsraum unterkommen.
Der Technikraum ist wirklich rein für die Haustechnik. Ich habe zwei mal nachgefragt, laut Architektin soll das passen. Aber ich lasse es mir mal einzeichnen!
Es gibt keine Lüftungsanlage. Fenster übers Eck sind eigentlich erwünscht, aber wohl in der letzten Überarbeitung verloren gegangen. Ein Fenster im Vorratsraum wollten wir nicht, weil da ein Gefrierschrank stehen soll.
Ich hänge mal noch den vorherigen Entwurf des OG an (da war das Haus aber noch etwas größer). Da hatte uns die Aufteilung der Räume besser gefallen.

Okay, sehen wir ein, die Türe nach vorne zum Carport fliegt raus. Ansonsten kann ich mir eine bessere Aufteilung im Anbau nicht so recht vorstellen, könnte das jemand aufzeichnen?
Es wäre definitiv in unserem Sinne, wenn die Nische für Waschmaschine/Trockner wieder verschwinden würde, da sie uns im OG schlaflose Nächte bereitet hat..
Wenn die Treppe wieder um 70cm nach planlinks rutscht, dann müsste unser Schlafzimmer wieder in den Norden wandern können.
Zum Stauraum: Angedacht ist, dass selten genutzte Dinge (Stichwort angebrochene Farbeimer) in die Scheune wandern. Dort wird es auch Schränke für saisonale Deko geben. Die Scheune ist trocken und kellerähnlich ausgebaut. Vorräte, Staubsauger und co sollen dann im Vorratsraum unterkommen.
Der Technikraum ist wirklich rein für die Haustechnik. Ich habe zwei mal nachgefragt, laut Architektin soll das passen. Aber ich lasse es mir mal einzeichnen!
Es gibt keine Lüftungsanlage. Fenster übers Eck sind eigentlich erwünscht, aber wohl in der letzten Überarbeitung verloren gegangen. Ein Fenster im Vorratsraum wollten wir nicht, weil da ein Gefrierschrank stehen soll.
Ich hänge mal noch den vorherigen Entwurf des OG an (da war das Haus aber noch etwas größer). Da hatte uns die Aufteilung der Räume besser gefallen.
Edit: im Vergleich zum letzten Grundriss für das OG wären Treppe und Bad dann natürlich getauscht.
Außerdem noch als Ergänzung zum letzten Beitrag: vor allem das Thema Waschen sehe ich ebenfalls als Problem. Im Sommer, okay, dann bin ich schnell draußen. Aber im Winter habe ich keinen echten Ort zum Aufhängen. Gebügelt wird hier aber nichts.
Außerdem noch als Ergänzung zum letzten Beitrag: vor allem das Thema Waschen sehe ich ebenfalls als Problem. Im Sommer, okay, dann bin ich schnell draußen. Aber im Winter habe ich keinen echten Ort zum Aufhängen. Gebügelt wird hier aber nichts.
AnniePH schrieb:
Ich hänge mal noch den vorherigen Entwurf des OG an (da war das Haus aber noch etwas größer). Da hatte uns die Aufteilung der Räume besser gefallen.Was gab den Anstoß zu dieser Verkleinerung ? (Kosten können es kaum gewesen sein, denn der Übereckanbau ist drin geblieben).AnniePH schrieb:
Der Technikraum ist wirklich rein für die Haustechnik.Ich würde hier die Bezeichnung "Schaltschrank" bevorzugen.AnniePH schrieb:
Gebügelt wird hier aber nichts.Es gibt noch Wetten, daß meine Herzdame mir diese Junggesellenmarotte bald abgewöhnt.https://www.instagram.com/11antgmxde/
https://www.linkedin.com/company/bauen-jetzt/
Oben ist nahezu geblieben.
Man kann da noch 3 Wochen lang rumfeilen - hier nur mal so, wie es sein könnte (bitte als Skizze sehen)
Schuhe und Taschen, da könnte noch ein Kinderwagen parken, bevor drei Schulranzen und Sportbeutel irgendwo parken müssen.
Gäste-Wc bekommt ein Fenster über der Toi, Hauswirtschaftsraum ggf auch eine Terrassentür, wenn dort Waschmaschine steht.
Garderobenschränke sind 1,50 und 2,50


Man kann da noch 3 Wochen lang rumfeilen - hier nur mal so, wie es sein könnte (bitte als Skizze sehen)
Schuhe und Taschen, da könnte noch ein Kinderwagen parken, bevor drei Schulranzen und Sportbeutel irgendwo parken müssen.
Gäste-Wc bekommt ein Fenster über der Toi, Hauswirtschaftsraum ggf auch eine Terrassentür, wenn dort Waschmaschine steht.
Garderobenschränke sind 1,50 und 2,50
Allthewayup schrieb:
Ihr müsst auf alle Fälle auf die Ankleide verzichten.Warum und was soll das konkret hier bringen?Allthewayup schrieb:
Dort wo jetzt die Garderobe ist auf 8-9qm ein Büro. Den Technikraum auf 10qm aufbohren um Platz für Wasche machen dort zu haben. Wo und wie willst Du hier auf 10 qm aufbohren? Skizze?Allthewayup schrieb:
Jetziges Büro etwas verkleinern und zur Diele umfunktionieren. Bad im EG so gestalten das es Altersgerecht ist mit bodenebener Dusche (glaube das ist ja geplant) und ebenfalls etwas größer machen damit auch ein kleiner Schrank reinpasst für Handtücher, Toilettenpapier, Reiniger, etc.Da würde mich auch mal die Skizze interessieren insbesondere der Schrank im Gäste-WC.AnniePH schrieb:
Es wäre definitiv in unserem Sinne, wenn die Nische für Waschmaschine/Trockner wieder verschwinden würde, da sie uns im OG schlaflose Nächte bereitet hat.An der Diskussion beteiligt seid auf der Stakeholderseite nur Ihr, und auf der Planungsdienstleistungsseite die Architektin. Wer also hext dann etwas hinein, was Euch schlaflose Nächte bereitet ?Noch dazu ins OG, das in der Planung das Masterfrage-Geschoss ist. Wenn das nicht sauber steht, verpfuscht das auch das abgeleitete EG. Womit wir eigentlich auch wieder bei meiner Hinterfragung des Übereck-Anbaues sind. Beziehungsweise wage ich mal die Unterstellung, der sei kein Flächenbudget-Ergebnis, sondern ein Gimmick von der Wunschliste (ich lese die Eckfenster mal als Hinweis). Gerne wiederhole ich meinen allgemeinen Hinweis, daß Ängste vor zu unpfiffigen Baukörpern unbegründet sind. Kein Haus wird tödlich unsexy, nur weil man den roten Ledermini wegläßt. In Eurem Fall langt schon die Konstellation "Vorgarten / Scheune / Haus ewig hinten", um auffallend aus der Reihe zu tanzen. Also schon das "vorderhauslose Hinterhaus" allein ist "unique" - und wäre es selbst als Schuhkarton.
Die "moderne" Planungsweise, die Variantendiskussion auf der Entwurfsebene statt auf der Vorentwurfsebene abzuhandeln, ist ein Fehler, der durch Popularität nicht besser wird. Das "Anfahren im dritten Gang" ist eine Fehlentwicklung !
K a t j a schrieb:
Wo und wie willst Du hier auf 10 qm aufbohren? Skizze?
[...] Da würde mich auch mal die Skizze interessieren insbesondere der Schrank im Gäste-WC.Da schließe ich mich an.K a t j a schrieb:
Warum und was soll das konkret hier bringen?Ich würde hier ebenfalls eher das traditionelle Schlafzimmer vorsehen. Das Flächenbudget mit einem separaten Nicht-auf-Schranktüren-blicken-Raum zu belasten und dafür das Schlafzimmer zu einer auf 1,000 Möblierungsvarianten beschränkten Abstellkammer für ein Doppelbett zu machen, erscheint mir nicht erstrebenswert. Zumal hier keine Nichtstörung des Längerschlafenden erreicht wird, also außer Spesen nichts gewesen ist.https://www.instagram.com/11antgmxde/
https://www.linkedin.com/company/bauen-jetzt/
Ähnliche Themen