ᐅ Grundriss Einfamilienhaus auf schmalem Grundstück mit ca. 120 m²
Erstellt am: 03.03.23 21:17
B
Bauherren AD
Bebauungsplan/Einschränkungen
Größe des Grundstücks: 958,0 m²
Hang: nein
Grundflächenzahl: -
Geschossflächenzahl: 0,7
Baufenster, Baulinie und -grenze: komplett mit Drehung ausgenutzt; Baufenster (vorne: 8,24 | hinten: 5,94 m | Länge: 14,50 m)
Randbebauung: nein
Anzahl Stellplatz: 3
Geschossigkeit: 2 Vollgeschosse
Dachform: Satteldach
Stilrichtung: -
Ausrichtung: Nordwest
Maximale Höhen/Begrenzungen: keine
weitere Vorgaben --> Entwurf wurde mit Bauamt abgesprochen und angepasst; Abweichungen Garage über hintere Baugrenze (Voschlag Bauamt) und nicht auf Baulinie bauen Drehung Richtung Süden) sind mölich
Anforderungen der Bauherren
Stilrichtung, Dachform, Gebäudetyp: Satteldach, Einfamilienhaus
Keller, Geschosse: keine Keller, 2 Vollgeschosse + DG
Anzahl der Personen, Alter: 2 (33Jahre, 26 Jahre); zwei Kinder geplant
Raumbedarf im EG, OG
Büro: Homeoffice nowendig und Lehrerin
Schlafgäste pro Jahr: wenige
offene oder geschlossene Architektur: eher offen
konservativ oder moderne Bauweise: modern
offene Küche, Kochinsel: ja
Anzahl Essplätze: 6
Kamin: nein
Musik/Stereowand: nein
Balkon, Dachterrasse: nein
Garage, Carport: Garage (muss in Baulinien sein)
Nutzgarten, Treibhaus: nein
weitere Wünsche/Besonderheiten/Tagesablauf, gern auch Begründungen, warum dieses oder das nicht sein soll: DG wird ab gewissen Alter der KInder ausgebaut und dort sollen diese hinziehen (möglicher Ausbau siehe DG). Kinderzimmer im OG werden dann Ankleide und Büro. Keine Keller gewünscht. Möglichst große Flexibilität.
Hausentwurf
Von wem stammt die Planung:
-Do-it-Yourself
Was gefällt besonders? Warum? Drehung Richtung Süden, Wohnbereich Richtung Garten
Was gefällt nicht? Warum? keine Sonne aus Südost in Wohnbereich, aber Platztechnisch keine Möglichkeit gefunden, da Gartenzugang wichtiger
Preisschätzung lt Architekt/Planer: Angebot schlüsselfertig über 426.000 € erhalten
Persönliches Preislimit fürs Haus, inkl Ausstattung: 480.000 €
favorisierte Heiztechnik: Wärmepumpe
Wenn Ihr verzichten müsst, auf welche Details/Ausbauten
-könnt Ihr verzichten: Dusche im Gäste-Bad
-könnt Ihr nicht verzichten: ausbaufähiges DG
Warum ist der Entwurf so geworden, wie er jetzt ist? ZB
Türeingang seitlich, da ansonsten Diele zu schmal. Garage im Nordbereich, wo keine Sonne hinkommt. Erker für Sonne aus mehreren Richtungen, da Nachbarhäuser nur 2m Grenzabtand. Haustechnikaum tlw. als Garderobe noch verwendbar, falls Platz übrig.
Was macht ihn in Euren Augen besonders gut oder schlecht? Drehung Richtung Süden, um mehr Sonne zu bekommen. Flexibilität
Was ist die wichtigste/grundlegende Frage zum Grundriss in 130 Zeichen zusammengefasst?
Gibt es weitere hilfreiche Tipps oder Ideen? Was könnte verbessert werden? Ist es stimmig? Wo besteht weiters Einsparpotenzial
Größe des Grundstücks: 958,0 m²
Hang: nein
Grundflächenzahl: -
Geschossflächenzahl: 0,7
Baufenster, Baulinie und -grenze: komplett mit Drehung ausgenutzt; Baufenster (vorne: 8,24 | hinten: 5,94 m | Länge: 14,50 m)
Randbebauung: nein
Anzahl Stellplatz: 3
Geschossigkeit: 2 Vollgeschosse
Dachform: Satteldach
Stilrichtung: -
Ausrichtung: Nordwest
Maximale Höhen/Begrenzungen: keine
weitere Vorgaben --> Entwurf wurde mit Bauamt abgesprochen und angepasst; Abweichungen Garage über hintere Baugrenze (Voschlag Bauamt) und nicht auf Baulinie bauen Drehung Richtung Süden) sind mölich
Anforderungen der Bauherren
Stilrichtung, Dachform, Gebäudetyp: Satteldach, Einfamilienhaus
Keller, Geschosse: keine Keller, 2 Vollgeschosse + DG
Anzahl der Personen, Alter: 2 (33Jahre, 26 Jahre); zwei Kinder geplant
Raumbedarf im EG, OG
Büro: Homeoffice nowendig und Lehrerin
Schlafgäste pro Jahr: wenige
offene oder geschlossene Architektur: eher offen
konservativ oder moderne Bauweise: modern
offene Küche, Kochinsel: ja
Anzahl Essplätze: 6
Kamin: nein
Musik/Stereowand: nein
Balkon, Dachterrasse: nein
Garage, Carport: Garage (muss in Baulinien sein)
Nutzgarten, Treibhaus: nein
weitere Wünsche/Besonderheiten/Tagesablauf, gern auch Begründungen, warum dieses oder das nicht sein soll: DG wird ab gewissen Alter der KInder ausgebaut und dort sollen diese hinziehen (möglicher Ausbau siehe DG). Kinderzimmer im OG werden dann Ankleide und Büro. Keine Keller gewünscht. Möglichst große Flexibilität.
Hausentwurf
Von wem stammt die Planung:
-Do-it-Yourself
Was gefällt besonders? Warum? Drehung Richtung Süden, Wohnbereich Richtung Garten
Was gefällt nicht? Warum? keine Sonne aus Südost in Wohnbereich, aber Platztechnisch keine Möglichkeit gefunden, da Gartenzugang wichtiger
Preisschätzung lt Architekt/Planer: Angebot schlüsselfertig über 426.000 € erhalten
Persönliches Preislimit fürs Haus, inkl Ausstattung: 480.000 €
favorisierte Heiztechnik: Wärmepumpe
Wenn Ihr verzichten müsst, auf welche Details/Ausbauten
-könnt Ihr verzichten: Dusche im Gäste-Bad
-könnt Ihr nicht verzichten: ausbaufähiges DG
Warum ist der Entwurf so geworden, wie er jetzt ist? ZB
Türeingang seitlich, da ansonsten Diele zu schmal. Garage im Nordbereich, wo keine Sonne hinkommt. Erker für Sonne aus mehreren Richtungen, da Nachbarhäuser nur 2m Grenzabtand. Haustechnikaum tlw. als Garderobe noch verwendbar, falls Platz übrig.
Was macht ihn in Euren Augen besonders gut oder schlecht? Drehung Richtung Süden, um mehr Sonne zu bekommen. Flexibilität
Was ist die wichtigste/grundlegende Frage zum Grundriss in 130 Zeichen zusammengefasst?
Gibt es weitere hilfreiche Tipps oder Ideen? Was könnte verbessert werden? Ist es stimmig? Wo besteht weiters Einsparpotenzial
Mal skizziert, wobei ich mich bemüht habe, sehr nahe am Ausgangsentwurf zu bleiben. Grundsätzlich ist hier jeden Zentimeter in der Breite ein Gewinn. Darauf zu verzichten, bringt nur Nachteile.

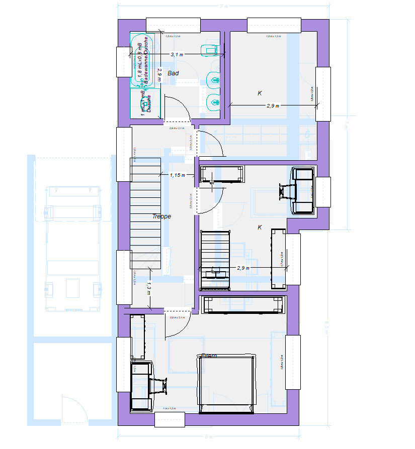
Im EG ist ganz entscheidend der Platzgewinn für die Küchenzeile. Mit 6 x 60er Standardschränken kann man was schönes planen. Im Ausgangsentwurf sind es nur magere 4.

Im OG ist es eine wahre Befreiung für das Bad und auch für die Kinderzimmer. Hier schlagen 3,10m Badbreite die bisherigen 2,38m (!) um Längen und lassen einen Durchatmen. Auch das Kinderzimmer gewinnt von 2,61m auf die 2,90m, was das Raumgefühl normalisiert. Die gerade Treppe erlaubt, den Flur etwas schmaler zu machen, so dass beide Kinderzimmer den Effekt genießen.

Im Dachgeschoss ändert sich wenig. Mangels Daten zum Kniestock hab ich das nur angedeutet.
Im EG ist ganz entscheidend der Platzgewinn für die Küchenzeile. Mit 6 x 60er Standardschränken kann man was schönes planen. Im Ausgangsentwurf sind es nur magere 4.
Im OG ist es eine wahre Befreiung für das Bad und auch für die Kinderzimmer. Hier schlagen 3,10m Badbreite die bisherigen 2,38m (!) um Längen und lassen einen Durchatmen. Auch das Kinderzimmer gewinnt von 2,61m auf die 2,90m, was das Raumgefühl normalisiert. Die gerade Treppe erlaubt, den Flur etwas schmaler zu machen, so dass beide Kinderzimmer den Effekt genießen.
Im Dachgeschoss ändert sich wenig. Mangels Daten zum Kniestock hab ich das nur angedeutet.
H
hanghaus202304.03.23 08:51Gibt es einen Vermessungsplan vom Grundstück? Hier geht es doch um cm.
Gibt es ein Luftbild der Umgebung?
Gibt es ein Luftbild der Umgebung?
H
hanghaus202304.03.23 09:25Frag doch mal die Nummer 83 und 85 wie die das mit den 2 m Grenzabstand hinbekommen haben?
H
hanghaus202304.03.23 09:51Hier mal ein Vorschlag mit 15*8m. Die Garage kann noch nach hinten verlängert werden als Abstellplatz. An die Wand kommt der HA Raum und die Treppe.
H
hanghaus202304.03.23 10:05Ähnliche Themen