ᐅ Grundriss Einfamilienhaus, 2 Vollgeschosse und Staffelgeschoss
Erstellt am: 15.03.21 22:05
S
StephanMStephanM schrieb:
Soweit ich den Bebauungsplan Nr. 900 der Stadt Bochum verstehe, ist in der textlichen Fassung folgendes vermerkt:
"2.2.4 Oberste Geschosse
...
Im allgemeinen Wohngebieten WA 1 ist bei Gebäuden mit Flachdach oberhalb des obersten Vollgeschosses ein weiteres Geschoss zulässig, wenn es zu allen Seiten um mindestens 1,00 m hinter die senkrecht aufsteigende Außenwand des darunter liegenden Vollgeschosses zurücktritt."Das liest sich harmlos, ist aber ziemlicher Sprengstoff: es bedeutet kundig gelesen leider nichts anderes, als daß es an vier von vier Seiten A. Außenwände (also schwere Wände) hat, die nicht über ihren Pendants im darunterliegenden Geschoss stehen und B. im Bereich des Rücksprunges eine Geschossdecke zum Dach machen, was massiv erhöhten Dämmaufwand - u.a. mit „Isokörben“ (R) erfordert. Das wird statisch und energetisch sauteuer, und die Mehr-Wohnfläche des Staffelgeschosses damit vom Quadratmeterpreis zum Pyrrhussieg. Wenn die Fläche des Staffelgeschosses nicht verzichtbar ist, wäre das für mich ein entscheidendes Argument gegen dieses Grundstück. Ich sehe gerade, ich sollte wohl ´mal so etwas wie meine Kellerformel auch für Staffelgeschosse errechnen.StephanM schrieb:
Hast Du eine fixe Idee bezüglich "andere Treppe", welche Du aus dem Ärmel schütteln kannst, die einfacher zu integrieren ist?Die Treppe ist ein weiteres Problem: sie wird durch das allseitige Zurückweichen ja auch in den darunterliegenden Geschossen von der Außenwand weggezogen, was eine ziemliche Honkerei ergeben kann, zu bewundern in: https://www.hausbau-forum.de/threads/einfamilienhaus-staffelgeschoss-sued-westlage-in-bonn.36685/page-25#post-452398StephanM schrieb:
Der Eigentumsübergang geschieht erst, wenn der Entwurf durch die Projektentwicklungsgesellschaft "genehmigt" wurde gemäß der "Gestaltungsrichtilinien" für dieses Baugebiet. Dann kann Bauantrag eingereicht werden und damit der Grundstückskauf notariell bestätigt werden.Solcherlei Kasperkram hatten wir hier auch schon, im Thread https://www.hausbau-forum.de/threads/grundriss-wie-veraendern.24706/#post-209824 von @arnonyme (wenn ich recht erinnere, in der Pforzheimer Gegend): da mußte man sich mit den Vorentwürfen seines Hauses darum bewerben, das Grundstück kaufen zu dürfen. D.h. ein Gremium wie eine Architektenwettbewerb-Jury hat die Pläne geprüft, ob sie schön genug seien, daß man sie im Ensemble mit denen der Nachbarn so für bauwürdig hielt. Erst nach dem "Gutbefund" dieses Gremiums (einen so schweizerisch klingenden Begriff hatte ich vorher in Deutschland noch nie gehört) war dem gemeinen Bittsteller gestattet, den höchstkaiserlich geweihten Baugrund untertänigst zu erwerben. Gütige Göttin, von solchem Blödsinn hatte ich gehofft, der sei zumindest ein Unikat - gibt es derlei nun ernsthaft auch schon im Revier, das doch gemeinhin als das letzte Reservat der „normalen Leute“ gilt ?StephanM schrieb:
für eine Familie mit vier Kindern. Findet man jedenfalls nicht auf Katalogseite 17...Nein, Seite 17a, die muß man ausklappen ;-)Ich würde „wegen der zwei Mehrkinder“ nicht die Flinte ins Korn werfen, bei Standardentwürfen fündig werden zu können: nach meiner Vermutung werden sich solche für Zweikinderfamilien plus Einlieger oft recht gut eignen, minimalinvasiv umgestrickt zu werden. Wenn es nicht gerade Vierlinge sind, sind bei vier Kindern ja auch meist welche dabei, die in sehr absehbarer Zeit auswilderungsreif werden bzw. nicht undankbar dafür sind, mit den jüngeren Geschwistern nicht all zu nah zusammenzuglucken.
StephanM schrieb:
Idee der Verkleinerung kann ich nachvollziehen. Wird wahrscheinlich am Ende unweigerlich darauf hinauslaufen, wenn die Angebote der GU/GÜ vorliegen...Das ist bei Häusern wie bei Brüsten: die Verkleinerung ist die deutlich schwierigere Operation. Das gilt ebenso für das Procedere, Planungen nach Angeboten anzupassen: das ist die ganz böse falsche Reihenfolge. Die Ausschreibung folgt immer auf die Planung, N.I.E.M.A.L.S. umgekehrt !K1300S schrieb:
Du könntest mal bei einer Firma aus Marl anfragen, deren Name wie das Kfz-Kennzeichen in Sprockhövel beginnt. Einen Katalog haben die nicht, und grundsätzlich sind die eher im mittleren/gehobenen (nicht Luxus) Segment unterwegs.Immer diese Rätsel - EN oder WIT ?K1300S schrieb:
Der (Junior-)Chef hat übrigens auch Kinder, ist allerdings BVB-Fan.Das stört mich als Saupreiß überhaupt nicht, wenn jemand den Bayern die Lederhosen auszieht ;-)https://www.instagram.com/11antgmxde/
https://www.linkedin.com/company/bauen-jetzt/
11ant schrieb:
Immer diese Rätsel - EN oder WIT ?Sag ich nicht. :p Aber mit WIT und den anderen Hinweisen dürfte man schwerlich was finden. 😉Liebe Community und erfahrene Bauherren,
ihr habt mir mit Euren Hinweisen im März enorm weitergeholfen was die Planung unseres Einfamilienhaus mit vier (!) KZ angeht. Herzlichen Dank noch einmal dafür!
Wir sind mit dem jetzigen Planungsstand schon ziemlich zufrieden, allerdings fürchte ich, dass sowohl meine Frau als auch ich nach den ganzen Diskussionen betriebsblind geworden sind. Aus diesem Grund hätte ich gerne Euren unverstellten und frischen Blick auf unseren letzten Planungsstand.
Folgende Randbedingungen sind gegeben:
Anbei die Unterlagen für eine besser Vorstellung der Gegebenheiten:
Schönes Wochenende Euch allen!
Gruß
Stephan








ihr habt mir mit Euren Hinweisen im März enorm weitergeholfen was die Planung unseres Einfamilienhaus mit vier (!) KZ angeht. Herzlichen Dank noch einmal dafür!
Wir sind mit dem jetzigen Planungsstand schon ziemlich zufrieden, allerdings fürchte ich, dass sowohl meine Frau als auch ich nach den ganzen Diskussionen betriebsblind geworden sind. Aus diesem Grund hätte ich gerne Euren unverstellten und frischen Blick auf unseren letzten Planungsstand.
Folgende Randbedingungen sind gegeben:
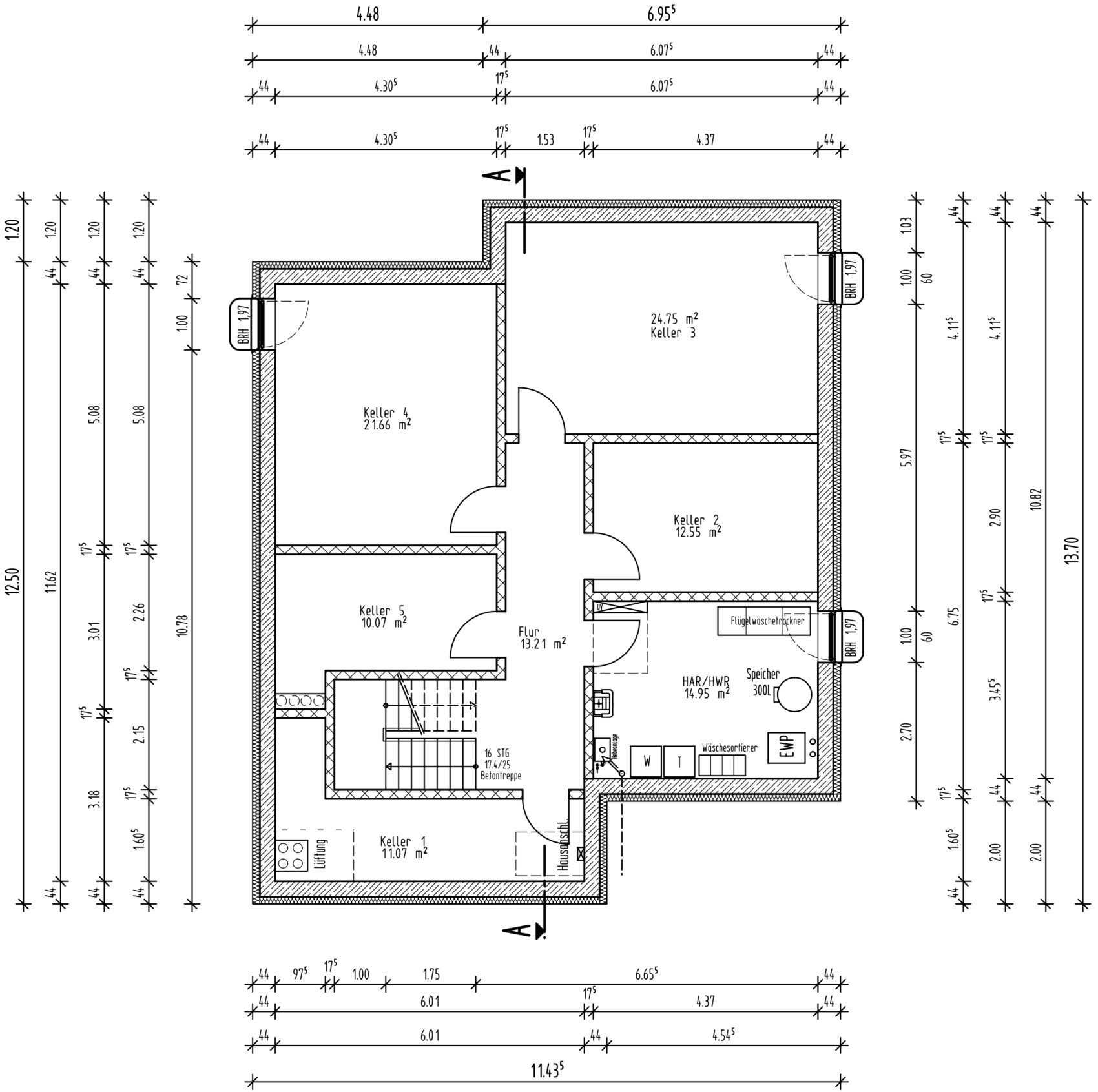
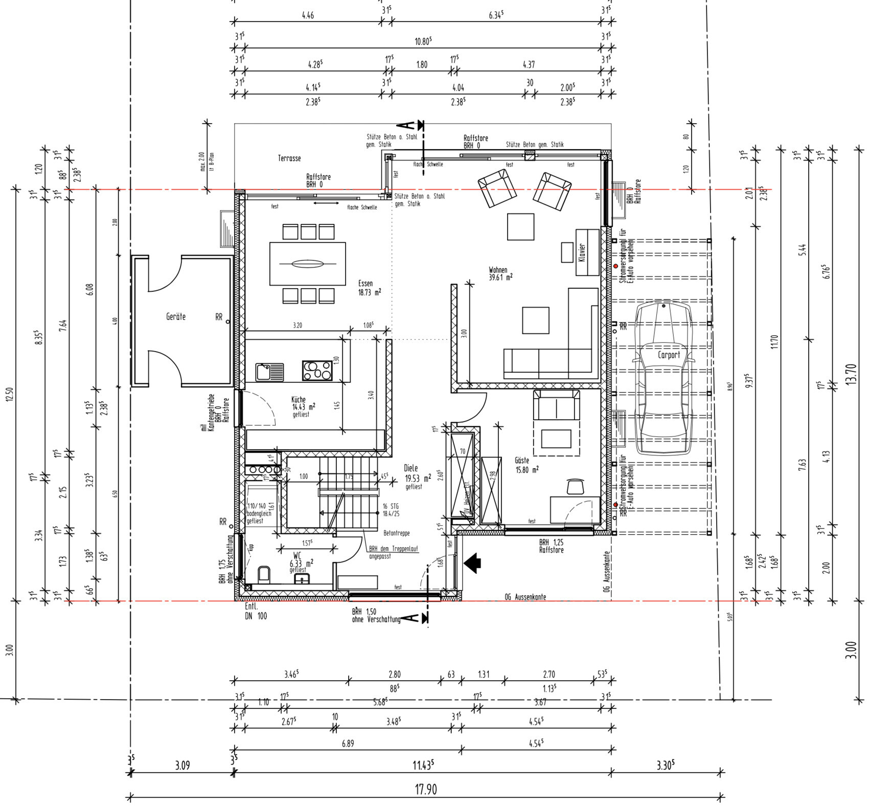
- Das Baufenster ist ca. 11,6m breit und 12,5m tief
- Grundstück hat Südausrichtung und ist eben
- Das EG darf maximal um 2m bis auf 14,5m in der Tiefe erweitert werden, das 1. OG muss aber im Baufenster mit 12,5m Tiefe liegen. Die über dem EG dadurch entstehende Dachfläche darf als Terrasse genutzt werden
- Abstandsflächen links und rechts je 3m
- Carport/Garage muss 2m hinter Fassade zurückspringen
- Das Baufenster ist durch Baugrenzen begrenzt
- maximale Gebäudehöhe ab OKE 9m
- Keller + 2 Vollgeschosse + 1 Nicht-Vollgeschoss mit Flachdach
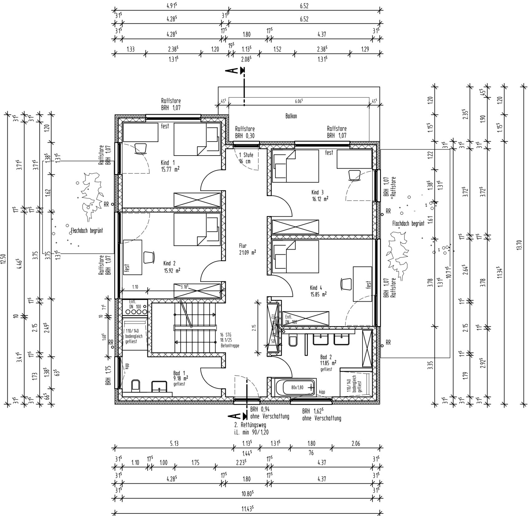
- Nicht-Vollgeschoss (Staffelgeschoss) muss allseits (!) mind. 1m zurückspringen
- Habt ihr noch andere Ideen die Treppe in den Grundriss zu integrieren und gleichzeitig den Rücksprung des Staffelgeschosses zu berücksichtigen. Sie darf schon prominent sein, jedoch nicht im WZ starten/enden. Gerade Treppe haben wir ausgeschlossen, da wir in meinen Augen nicht die Fläche habe als dass sie richtig wirken könnte...
- Wie kritisch seht ihr ein Treppenhaus ohne natürlichen Lichteinfall (außer durch Fenster im 2.OG)?
- Die verschwenderische Erschließung des 1. OG finde ich recht attraktiv wg. Bilderhängung, Sideboards, Großzügigkeit etc. Habt ihr dennoch eine Idee dies zu optimieren, ohne den großzügigen Charakter aufzugeben?
- Zwei Bäder für vier Kinder (davon 3 Mädchen ;-) halte ich für notwendig. Habt ihr eine andere Meinung außer "drei Bäder für drei Mädels" ;-)?
- Aufteilung im Staffelgeschoss ist etwas "verschachtelt", liegt an der Lage der Treppe. Irgendwelche Vorschläge dies noch besser zu gestalten und gleichzeitig Schlafzimmer & Ankleide (was eigentlich mehr ein Allzweckraum ist) nach Süden auszurichten?
- Wir finden liegende Fensterformate ansprechender (allein schon wegen entstehender Stellfläche für Schreibtische bei einer Brüstungshöhe von 90cm). Allerdings könnte die Anordnung etwas "wild" wirken, wie ist Euer Eindruck, irgendwelche Tipps?
- Welche Möglichkeiten fallen Euch ein, die Fassade (straßenseitig) durch (Putz-)Farben/Materialien aufzulockern bzw. eine Struktur zu verleihen?
- Wir möchten den Carport (ggf. wird es auch eine Garage) in die Fassade des Hauses integrieren. Hatten an eine Holzlattung im Bereich des Rücksprungs im EG gedacht, die sich über das Garagentor fortführt, sodass dadurch eine zusammenhänge Holzfläche entsteht, die sich so von der Putzfassade abhebt. Die Lattung würden wir im Gerätehaus auf der linken Seite (Fahrräder, Mülltonnen etc.) wieder aufnehmen. Habt ihr noch weitere Ideen dieses ästhetische Problem zu lösen?
- Aufgrund der max. Höhe von 9m und der geforderten Attika (0,4m), bleiben "nur" ca. 2,5m lichte Raumhöhe pro Stock. Die Höhe des Fußbodenaufbaus ist in allen Stöcken mit 19cm inkl. Fußbodenheizung und Belag angenommen bei einem KfW55 Haus bei beheiztem/gedämmten Keller. Seht ihr eine Möglichkeit durch einen schlankeren Bodenaufbau noch Raumhöhe zu generieren? Benötigt man zum UG und den anderen beheizten Geschossen tatsächlich 19cm Fußbodenaufbau? Ggf. ist das allein schon wegen Abwasser-/Lüftungsrohren, Kabeln notwendig?
- Die Austritte im 1. und 2. OG sollen möglichst schwellenlos sein. Scheint technisch etwas anspruchsvoller, da unter den Terrassen Wohnraum. Habt ihr damit Erfahrungen ggf. auch wie so etwas technisch solide gelöst werden kann?
- Wandaufbau: Wir planen für KfW55 mit Kalksandstein 17,5cm + WDVM 14cm = 31,5cm. Da fehlt ja nicht mehr viel bis zu einem monolithischen Aufbau mit 36er Steinen, der mir auch zusagen würde. Allein der GU findet das nicht so gut (u.a. wegen Lastabtragung, Schallschutz)... Mir ist klar, dass diese Frage nicht pauschal zu beantworten ist wg. Energieberechnung, Fensterflächen etc., doch vielleicht habt ihr dennoch ein paar Denkanstöße: Welche andere Möglichkeit seht ihr beim Wandaufbau um mind. KfW55 zu erreichen ohne deutlich mehr Wanddicke zu produzieren?
- Nachträgliche Trennung in zwei/drei Einheiten. Leider ist unser jetziges Treppenkonzept nur bedingt geeignet das Haus später in mehrere Einheiten aufzuteilen. Fallen Euch spontan Ideen ein, wie das zu bewerkstelligen wäre?
Anbei die Unterlagen für eine besser Vorstellung der Gegebenheiten:
- Lageplan
- Grundrisse
- Schnitt
- Ansichten
Schönes Wochenende Euch allen!
Gruß
Stephan
StephanM schrieb:
ihr habt mir mit Euren Hinweisen im März enorm weitergeholfen was die Planung unseres Einfamilienhaus mit vier (!) KZ angeht.Angesichts über sechs Millionen Toter bevorzuge ich die Abkürzung Kinderzimmer. Fünfeinhalb Monate Pause sind eine gute Zeit für eine gründliche Überarbeitung. Du solltest dazu die Beitragsnummern der vorherigen Entwürfe nennen.Ein allseitiges Zurückspringen des Staffelgeschosses ist auch statisch eine Hypothek. Auch wenn es dadurch nicht gleich federleicht wird, würde ich darüber nachdenken, das Staffelgeschoss in Holzrahmenbau aufzusetzen. Im übrigen sehe ich mal wieder eine Menge Pfuschertaschen "eingeplant", ibs. bei den Mauerstücken zwischen Fensteröffnungen.
https://www.instagram.com/11antgmxde/
https://www.linkedin.com/company/bauen-jetzt/
Schön, dass die Story fortgesetzt wird. Der Zeichnungsstil des Entwurfs kommt mir bekannt vor. 😉
11ant schrieb:So haben wir es auch gelöst und sind im Nachhinein sehr zufrieden mit der Entscheidung.
Auch wenn es dadurch nicht gleich federleicht wird, würde ich darüber nachdenken, das Staffelgeschoss in Holzrahmenbau aufzusetzen.
StephanM schrieb:Ich würde rein von den Ansichten her lediglich Nord und Ost ein wenig aufräumen, aber das war's dann schon.
Allerdings könnte die Anordnung etwas "wild" wirken, wie ist Euer Eindruck, irgendwelche Tipps?
StephanM schrieb:Das übliche: Klinker (Riemchen), Holz (Vorhang), Aluminium (Vorhang) oder halt mit farbigen Flächen
Welche Möglichkeiten fallen Euch ein, die Fassade (straßenseitig) durch (Putz-)Farben/Materialien aufzulockern bzw. eine Struktur zu verleihen?
StephanM schrieb:19 cm finde ich schon sehr wenig. Wir sind aktuell bei 25, insofern sehe ich da nicht mehr viel Potenzial, das noch weiter zu reduzieren.
Seht ihr eine Möglichkeit durch einen schlankeren Bodenaufbau noch Raumhöhe zu generieren?
StephanM schrieb:Muss es eine bündige Schwelle sein? Ansonsten gibt es noch diese Mini-Schwellen (1,5 cm oder so). Die lassen sich offenbar genau wie ein normales Fenster einbauen. Dass an solch einem neuralgischen Punkt ordentlich und gewissenhaft gearbeitet werden muss (vor allem bezogen auf die Abdichtung), dürfte ohnehin klar sein, egal ob normale Fenstertür oder mit reduzierter Schwelle.
Habt ihr damit Erfahrungen ggf. auch wie so etwas technisch solide gelöst werden kann?
StephanM schrieb:Kann ich verstehen ... Porenbeton ist halt nicht so super stabil, wenn er gleichzeitig super dämmen soll.
Allein der GU findet das nicht so gut (u.a. wegen Lastabtragung, Schallschutz)
StephanM schrieb:Holzrahmenbau. 😉 Wie oben schon gesagt, würde sich das vermutlich aus mehreren Gründen fürs Staffelgeschoss anbieten, was ja ohnehin das kleinste Geschoss ist, aber damit werdet Ihr wohl die Kuh noch nicht vom Eis holen. Wäre eine etwas stärkere Wand (in UG/EG/OG) denn nicht akzeptabel?
Welche andere Möglichkeit seht ihr beim Wandaufbau um mind. KfW55 zu erreichen ohne deutlich mehr Wanddicke zu produzieren?
Ähnliche Themen