ᐅ Grundriss Einfamilienhaus 160m²
Erstellt am: 29.05.17 22:15
Hallo liebe Forenmitglieder,
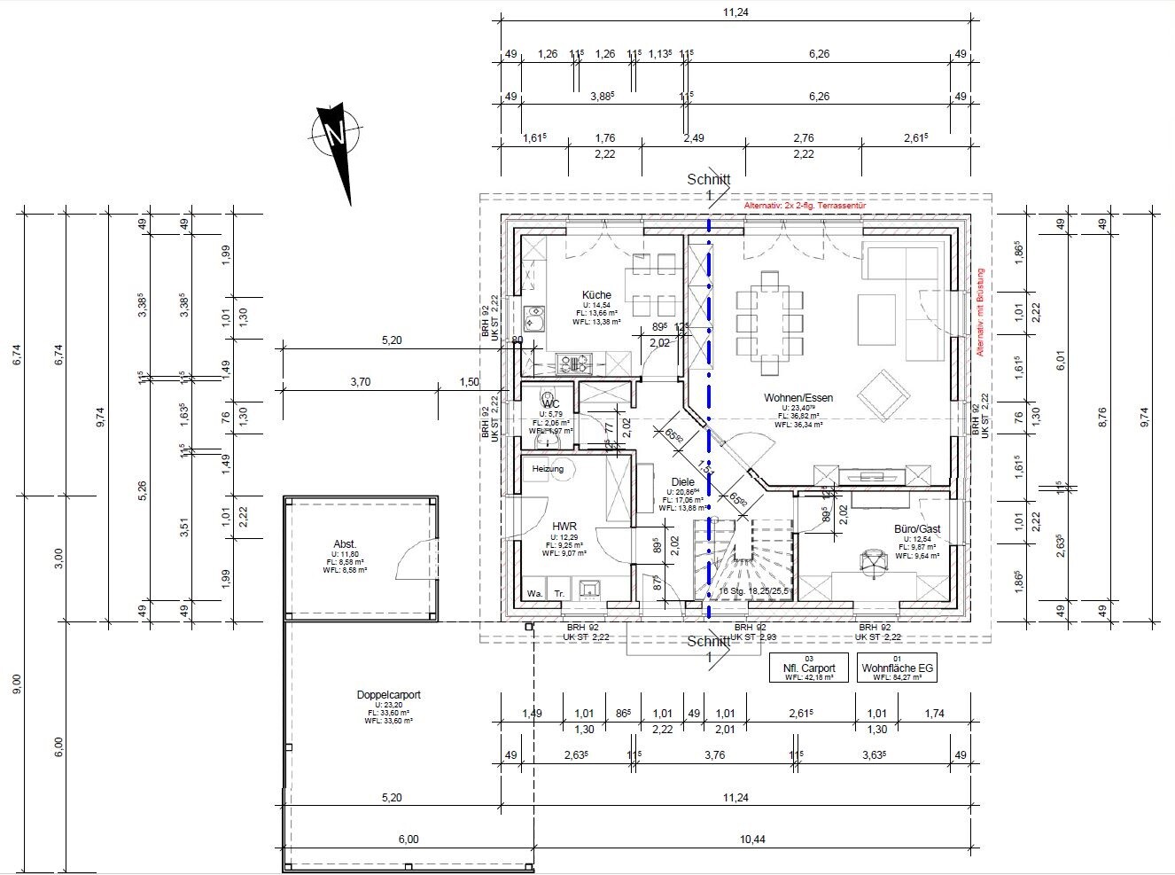
nach langem Mitlesen wir es bei uns nun konkreter. Haben von einem ortsansässigen Bauunternehmen (GU) mit gutem Ruf ein Angebot und Grundriss bekommen. Ich hoffe die Masse an Informationen ist nicht zu viel. Als erstes wollte ich euch deshalb nach Verbesserungsvorschlägen, Ideen, Anmerkungen zu den Grundrissen fragen, natürlich auch gerne auch zu den im Fragenkatalog angegebenen Daten.
Anbei der Fragenkatalog und die Grundrisse:
Bebauungsplan/Einschränkungen
Größe des Grundstücks 810m²
Größe Haus 160m²
Hang nein
Grundflächenzahl 0,25
Geschossflächenzahl 0,375
Baufenster, Baulinie und -grenze im Lageplan gezeichnet
Anzahl Stellplatz 2
Geschossigkeit 1
Grundstück/Haus liegt in 2. Reihe
Zuwegung über Nachbargrundstück (Im Grundbuch eingetragenes Wege- und Leitungsrecht)
Grundstück ist reserviert aber noch nicht gekauft, soll kurzfristig erfolgen
Anforderungen der Bauherren
Stilrichtung, Dachform, Gebäudetyp klassisches Einfamilienhaus mit Satteldach
kein Keller, 1 Geschoss
4 Personen, Alter 38, 35, 3, 1
Büro: Familiennutzung
konservative Bauweise
Kamin nein
Carport mit Schuppen
Nutzgarten, Treibhaus noch nicht geplant
Hausentwurf
Von wem stammt die Planung:
Planer eines ortsansässigen Bauunternehmens
Was gefällt besonders? Kinderbad, Drempel 150cm, Ankleideraum, Größe der einzelnen Räume
Was gefällt nicht? Eigentlich bis jetzt alles
Preisschätzung (Angebot) Planer: 270t €
favorisierte Heiztechnik: Gasbrennwertanlage (Haus nach Energieeinsparverordnung)
Sonstige Hausdetails: zentrale Kontrollierte-Wohnraumlüftung mit Wärme und Feuchterückgewinnung (Helios)
Elektrische Aufsatzrollläden an allen Fenstern
Wandaufbau außen: Klinker, 4cm Luftspalt, 16cm WLG035, Porenbeton 17,5cm
Innenwände 11,5cm Kalksandstein
Wenn Ihr verzichten müsst, auf welche Details/Ausbauten
-könnt Ihr verzichten: eigentlich nichts
-könnt Ihr nicht verzichten:
Warum ist der Entwurf so geworden, wie er jetzt ist?
Entwurf vom Planer mit eigenen Ideen
Ich bin gespannt auf eure Anmerkungen.
Vielen Dank im voraus.
Stefan

nach langem Mitlesen wir es bei uns nun konkreter. Haben von einem ortsansässigen Bauunternehmen (GU) mit gutem Ruf ein Angebot und Grundriss bekommen. Ich hoffe die Masse an Informationen ist nicht zu viel. Als erstes wollte ich euch deshalb nach Verbesserungsvorschlägen, Ideen, Anmerkungen zu den Grundrissen fragen, natürlich auch gerne auch zu den im Fragenkatalog angegebenen Daten.
Anbei der Fragenkatalog und die Grundrisse:
Bebauungsplan/Einschränkungen
Größe des Grundstücks 810m²
Größe Haus 160m²
Hang nein
Grundflächenzahl 0,25
Geschossflächenzahl 0,375
Baufenster, Baulinie und -grenze im Lageplan gezeichnet
Anzahl Stellplatz 2
Geschossigkeit 1
Grundstück/Haus liegt in 2. Reihe
Zuwegung über Nachbargrundstück (Im Grundbuch eingetragenes Wege- und Leitungsrecht)
Grundstück ist reserviert aber noch nicht gekauft, soll kurzfristig erfolgen
Anforderungen der Bauherren
Stilrichtung, Dachform, Gebäudetyp klassisches Einfamilienhaus mit Satteldach
kein Keller, 1 Geschoss
4 Personen, Alter 38, 35, 3, 1
Büro: Familiennutzung
konservative Bauweise
Kamin nein
Carport mit Schuppen
Nutzgarten, Treibhaus noch nicht geplant
Hausentwurf
Von wem stammt die Planung:
Planer eines ortsansässigen Bauunternehmens
Was gefällt besonders? Kinderbad, Drempel 150cm, Ankleideraum, Größe der einzelnen Räume
Was gefällt nicht? Eigentlich bis jetzt alles
Preisschätzung (Angebot) Planer: 270t €
favorisierte Heiztechnik: Gasbrennwertanlage (Haus nach Energieeinsparverordnung)
Sonstige Hausdetails: zentrale Kontrollierte-Wohnraumlüftung mit Wärme und Feuchterückgewinnung (Helios)
Elektrische Aufsatzrollläden an allen Fenstern
Wandaufbau außen: Klinker, 4cm Luftspalt, 16cm WLG035, Porenbeton 17,5cm
Innenwände 11,5cm Kalksandstein
Wenn Ihr verzichten müsst, auf welche Details/Ausbauten
-könnt Ihr verzichten: eigentlich nichts
-könnt Ihr nicht verzichten:
Warum ist der Entwurf so geworden, wie er jetzt ist?
Entwurf vom Planer mit eigenen Ideen
Ich bin gespannt auf eure Anmerkungen.
Vielen Dank im voraus.
Stefan
Ähnliche Themen