Hausbau - Ratgeber
Bauherrenhilfe
- Bauherrenhilfe vor Vertragsabschluss
-- Warum einen unabhängigen Baubetreuer?
-- Vertragsgrundlagen
-- Bausumme
-- Zahlungsplan zur Kostenkontrolle
-- Pflichten des Bauherren vor Vertragsabschluss
-- Unterlagen beim Hausbau vor Vertragsabschluss
- Bauherrenhilfe nach Vertragsabschluss
-- Bauantrag bei Behörden
-- Bau-Genehmigungsverfahren bei Baubehörden
-- Bauspezifische Versicherungen
-- Bauzeitenplan
-- Baubeginn - die Letzten Pflichten der Bauherrschaft
- Bauherrenhilfe während der Bauzeit
- Gewährleistungsansprüche
- Bauabnahme
Baufinanzierung
- Baufinanzierung - Allgemeine Fragen
- Kreditarten
- Kredit-Konditionen
- Bausparen
- Staatliche Förderungen
- Verkehrswert
- Haushaltsrechnung und Bonität
Hausbau Planung
- Haustypen
- Hausbau Vorbereitungsarbeiten
- Das Baugrundstück
- Baugrund beim Hausbau
- Baurecht
- Gebäudeschutz
- Erdarbeiten und Wasserhaltung
- Stützmauern
- Einfriedung
- Untergeschoss
- Kanalisation
- Tragende Elemente
- Nichttragende Innenwände
- Fundation / Fundament
- Deckenkonstruktionen
- Dächer
- Kaminanlagen
- Treppen Rampen Leitern
- Dachbeläge und Spengler
- Fenster
- Sonnen und Wetterschutz
- Aussenputze
- Einbauten, Küchen, Türen
- Bodenbeläge und Unterlagsböden
- Parkett
- Gips, Wand, Decke
Haustechnik und Energie
- Heiztechnik
- Lüftung und Klimatechnik
- Sanitärtechnik
- Elektrotechnik
- Erneuerbare Energie
Whirlpools / Jacuzzi
Hausbau Magazin
- Baufinanzierung trotz Krise?
- Das Blockhaus
- Moderne Dämmstoffe im Vergleich
- Erker Vor- und Nachteile
- Glasflächen beim Hausbau
- Günstig ein Haus Bauen
- Mediterraner Hausbaustil
- Mehrgenerationenhaus
- Moderne Architektur
- Gartengestaltung leicht gemacht
- Traditioneller Ziegelbau
- Villa als höchster Traum
- Im Eigenheim Ruhestand geniessen
- Altbau sanieren
- Kauf einer Holzgarage
- Immobilienmakler
- Arbeitshandschuhe für den Winter
- Zuhause verschönern
- Outdoor-Plissees
- Schlafzimmer planen
- Terrassenüberdachung
- Wohngebäudeversicherung
- Zaunarten und Eigenschaften
- Hauseingang gestalten
- Der perfekte Grundriss
- Sparsamer heizen im Altbau
- Einfamilienhaus smart finanzieren
- Planung einer PV-Anlage
- Neues Haus
- Immobilienfinanzierung
- Installation einer Photovoltaikanlage
- Asbest erkennen und entfernen
- Gartenpflege im Frühling – worauf achten
- Sauna im Fokus - Wellness zuhause
- Erfolgreich vermieten
- Die perfekte Winterbekleidung
- Das Niedrigenergiehaus
- Der April und seine Stürme
- Architektonische Vielfalt
- Ökologisch und nachhaltig bauen
- Das perfekte Schlafzimmer
- Nachhaltige Energieversorgung
- Zukunftsorientiert bauen
- Nachhaltigkeit beim Hausbau
- Tiny Houses
- Wärmepumpen als nachhaltige Heizvariante
- Maßgeschneiderten Kleiderschrank
- Der richtige Baukredit
- Ratgeber für erfolgreichen Hausbau
- Haus als Altersvorsorge
Do-it-yourself Anleitungen
- Verlegeanleitung für Bodenbeläge und Parkett
- Bodenbeläge und Parkett reinigen und pflegen
- Malerarbeiten am Haus
- Garten Tipps
- Umzug und Reinigung

ᐅ Grundriss effizientes Haus am Hang 10 x 10 m

Erstellt am: 07.05.24 21:41
R
RechtsamWald
R
RechtsamWald
07.05.24 21:41
Guten Abend,

ich plane ein Haus im Stil "Quadratisch Praktisch Gut" mit den Abmessungen 10 mal 10 Meter am Hang. Der Eingang von der Straße ist im Erdgeschoss und der Zugang zum Garten befindet sich im Untergeschoss. Es ist ein alter Bebauungsplan mit wenigen Vorgaben. Das Grundstück ist erworben und ein Bodengutachten bescheinigt eine zweigeschossige Bauweise. Bei drei Geschossen muss ein Bodenaustausch für höhere Belastungen erfolgen.
Zur Zeit bin ich in den Vorplanungen, noch ohne Architekten oder Statiker im Boot.
Mich würde mal Euere Meinungen zu diesem Grundriss interessieren.

Die Eckdaten lauten:
Grundstück: 660 m²
Baulücke am Hang
Länge an der Straße: 21 m
Grundflächenzahl 0,4
Geschossflächenzahl 0,8
Dachneigung 20 -35°
Offene Bauweise
Garage 8 m auf der Grenze möglich

Im Erdgeschoss soll der Wohn- und Gästebereich entstehen, im Untergeschoss der Schlaf- und Arbeitsbereich.
Effizienz und erneuerbare Energien im Haus sind mir sehr wichtig. Daher soll die Dachform möglichst viel Fläche für Photovoltaik Richtung Süden bieten.
Auf Grund von einem hohen Anteil an Homeoffice ist das Arbeitszimmer etwas großzügiger gestaltet. Kinderzimmer sind keine eingeplant, Gäste eventuell 2 bis 3 mal im Jahr. Noch offen ist ein möglicher Zugang zum Garten aus dem Erdgeschoss. Ich freue mich auf eure Hinweise und Ideen.
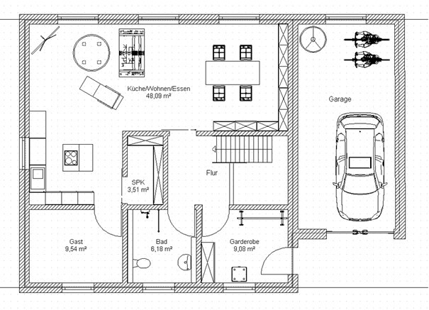
2D Grundriss eines Hauses mit Küche, Wohnen, Essen, Bad, Garderobe und Garage

Grundriss eines Hauses: Schlafen, Bad, Technik/HWR, Hobby, Arbeiten, Werkstatt, Flur, Treppe.

Kleines Einfamilienhaus mit rotem Ziegeldach und integrierter Garage, Zufahrt aus Asphalt.

3D-Modell eines zweistöckigen Hauses, linke graue Fassade, rechte weiße Wand, Solarpanel-Satteldach.
Y
ypg
07.05.24 22:37
RechtsamWald schrieb:

ich plane ein Haus im Stil "Quadratisch Praktisch Gut" mit den Abmessungen 10 mal 10 Meter am Hang.
Eigentlich ganz im Gegenteil.
RechtsamWald schrieb:

Noch offen ist ein möglicher Zugang zum Garten aus dem Erdgeschoss.
Hanggrundstück mit Ausrichtung gen Süden, Eckdaten: ohne Kinder? Bitte mal den Fragebogen ausfüllen. Danke.

Ansonsten: prädestiniert für Schlafbereich / Bürobereich im EG, Wohnbereich / Kochbereich mit Außenzugang und Öffnung des Lebensraumes in den Garten im UG.
H
hanse987
07.05.24 23:55
RechtsamWald schrieb:

Garage 8 m auf der Grenze möglich
Garage in der Regel OK aber mit Werkstatt unten drunter? Was hat der Nachbar an der Grundstücksgrenze zur Garage gebaut? Ist ein Stellplatz ausreichend? Beim Garagentor würde ich zu einem breiteren greifen, da man sonst mit Rädern immer am Autoeck vorbei muss.

Schlafzimmer mit etwa 3 m wäre mir zu schmal. 45-50cm neben dem Bett erinnern mich an Mobilehomes aus dem Urlaub.

Esstisch und Couch würde ich tauschen.

Insgesamt würde ich den Wohnbereich im UG sehen weil direkter Gartenzugang. Schlafbereich nach oben.

Man sieht halt, dass kein Profi am Werk war. Wenn du zu einem Planer gehst, dann zeige dem bitte nicht deinen Entwurf. Der soll selbst kreativ werden!
H
hanghaus2023
08.05.24 18:46
Komplett ohne Angaben zum Grundstück (Höhen) und Umgebung, kann man hier nichts sagen.
Bilder vom Grundstück sind auch recht hilfreich.
Warum die Garage in der thermischen Hülle?

Wo ist Norden?
Y
ypg
08.05.24 21:15
hanghaus2023 schrieb:

Wo ist Norden?
„Vorn“, EG, siehe Foto.
hanghaus2023 schrieb:

Warum die Garage in der thermischen Hülle?
Wahrscheinlich weil er sich beim Wändezeichnen nichts dabei gedacht hat. Er ist Laie und schreibt, dass er noch keinen Fachmann involviert hat. Nimm das einfach „nur“ als Skizze!
H
hanghaus2023
09.05.24 08:41
ypg schrieb:

Hanggrundstück mit Ausrichtung gen Süden
Das habe ich schon gelesen. Nur wo hast Du die Info her?
grundstückgarageerdgeschossgartenhanguntergeschossbauweiseschlafbereichwohnbereich