Nee .. oder? Die Treppe muss ja dann an der Ecke Richtung Hauswirtschaftsraum losgehen, damit man unter dem Dach noch mit Stehhöhe ankommt. Damit wird der Raum Gast/Arbeiten im EG dann aber sehr unnutzbar.
Ist fürs Dach wirklich ein Giebel geplant?
Hmm .. ich finde das nicht ausgereift. Jetzt eine Dachluke, die nur eng und schlecht nutzbar ist, also auch ein Loch in der Decke. Und für die Treppe würdet ihr ja auch noch ein Loch vorbereiten - oder?
Die Terrasse .. da stehen dann Stühle oder eine Bank vor dem bodentiefen Fenster zum Wohnzimmer Max. 120 cm breit, da es ja noch in der geschützten Ecke sein soll, man aber auch aus der Esszimmer-Terrassentür noch rauskommen soll.
Wollt ihr diese eingezeichnete freistehende Wanne im Hauptbad? Zum Duschen dann ins andere Bad?
Mich überzeugt das ganze Konzept nicht, es erscheint mir einiges so unausgegoren und nicht konsequent durchdacht.
Ist fürs Dach wirklich ein Giebel geplant?
Hmm .. ich finde das nicht ausgereift. Jetzt eine Dachluke, die nur eng und schlecht nutzbar ist, also auch ein Loch in der Decke. Und für die Treppe würdet ihr ja auch noch ein Loch vorbereiten - oder?
Die Terrasse .. da stehen dann Stühle oder eine Bank vor dem bodentiefen Fenster zum Wohnzimmer Max. 120 cm breit, da es ja noch in der geschützten Ecke sein soll, man aber auch aus der Esszimmer-Terrassentür noch rauskommen soll.
Wollt ihr diese eingezeichnete freistehende Wanne im Hauptbad? Zum Duschen dann ins andere Bad?
Michaela1986 schrieb:
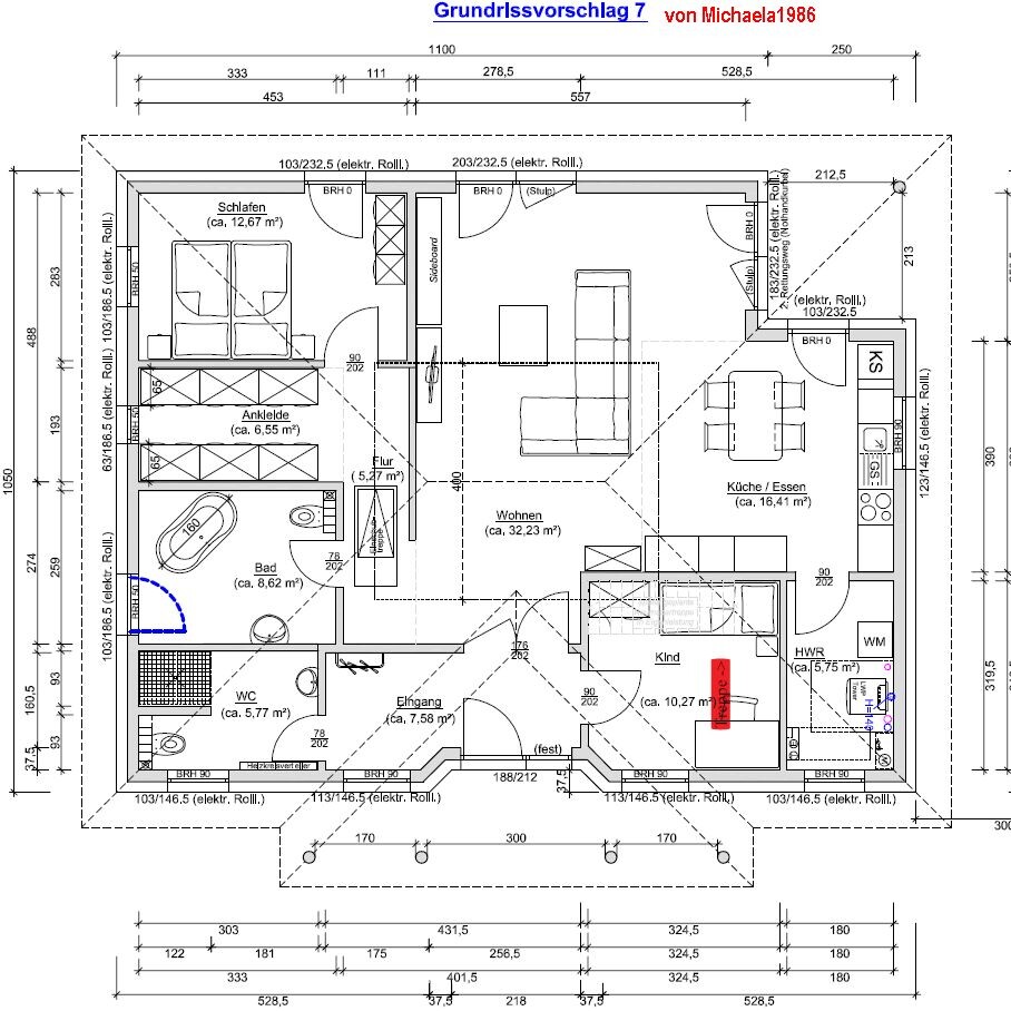
Was gefällt nicht? Warum?: Hauswirtschaftsraum zu klein, geht aber nicht anders, da wir unsere Küche mitnehmen.
Mich überzeugt das ganze Konzept nicht, es erscheint mir einiges so unausgegoren und nicht konsequent durchdacht.
@Michaela1986 .. ich will nicht nur motzen, sondern auch versuchen, eine andere Möglichkeit aufzuzeigen.
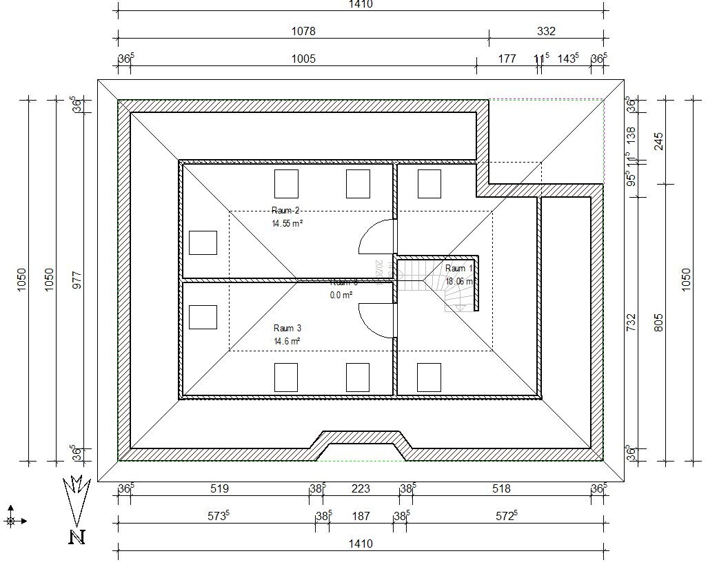
Links - meine Variante ... Rechts Michaela mit angedeuteter evtl. Treppe im Gastzimmer
.






Links - meine Variante ... Rechts Michaela mit angedeuteter evtl. Treppe im Gastzimmer
- Küche .. die vorhandenen 390 cm passen, dazu Unterschränke wie bisher geplant, allerdings als Halbinsel zusammengestellt. Kleiner Buffetplatz, große Arbeitsfläche fürs Backen usw.
- Hauswirtschaftsraum ist etwas größer, man kann sich zumindest besser bewegen.
- Zugang Terrasse durch eine Schiebetür aus dem eher Küchenbereich, Terrassenecke etwas größer
- Sofaecke offen in den Raum, aber nicht so direkt von der Haustür im Blickfeld
- Möglichkeit wie eingezeichnet einen 200 cm langen Tisch zu stellen
- Platz für eine gewendelte Raumspartreppe. Vorläufig könnte man sie weglassen, dort in den Ausschnitt nur eine Bodentreppe setzen und die Nische von der Treppe z. B. mit einem Metalllamellenvorhang schließen. Dann gibt es dahinter noch Platz für Stauraum, durch Wegziehen eines Lamellenvorhangs kann aber auch die Bodentreppe genutzt werden. Lamellenvorhang wäre also flexibler als kleine Abstellkammer dort.
- Wenn dann Raumspartreppe doch mal installiert wird, eine Andeutung, wie man das DG aufteilen könnte.
- Gästebad mit 160x90 cm Dusche, gleich neben dem Hauptbad. Hier könnte ich mir zwischen den Bädern eine Schiebetür vorstellen. Habt ihr Gäste, wird die Tür einfach abgeschlossen, ansonsten ist sie offen. So könnt ihr von eurem Hauptbad auch ins Duschbad wechseln ohne über den Flur zu müssen.
- Schrankraum jetzt als Eingang in den Privatbereich und mit 232 cm eine wesentlich besser nutzbare Breite als die 193 cm aus eurem Plan.
Na ja, es wird ja noch nicht gebaut und im Juli ist die Diskussion wg. Urlaub an mir vorbeigegangen.
Außerdem habe ich ja nichts grundsätzliches geändert .. außer ein paar Punkten, wo wohl auch Michaela nicht unbedingt das beste Gefühl hat:
- Terrassengröße mit Zugang dorthin, wenn dort auch Terrassenmöbel stehen.
- Treppenposition, falls doch DG
- und von mir .. Breite der Ankleide sowie die Tatsache, dass im Hauptbad direkt nur eine Wanne geplant ist .
Außerdem habe ich ja nichts grundsätzliches geändert .. außer ein paar Punkten, wo wohl auch Michaela nicht unbedingt das beste Gefühl hat:
- Terrassengröße mit Zugang dorthin, wenn dort auch Terrassenmöbel stehen.
- Treppenposition, falls doch DG
- und von mir .. Breite der Ankleide sowie die Tatsache, dass im Hauptbad direkt nur eine Wanne geplant ist .
@kbt09: Ich bin mal wieder schwer beeindruckt. Bei gleicher Tiefe und nur 60 cm mehr Breite (sprich: 6.3 qm mehr überbauter Fläche) kann so eine (ohne alles über den Haufen zu werfen !) erheblich attraktivere Aufteilung erreicht werden. Chapeau !
Es fällt wirklich schwer zu glauben, daß Du das nicht beruflich machst.
https://www.instagram.com/11antgmxde/
https://www.linkedin.com/company/bauen-jetzt/
Es fällt wirklich schwer zu glauben, daß Du das nicht beruflich machst.
https://www.instagram.com/11antgmxde/
https://www.linkedin.com/company/bauen-jetzt/
Guten Abend,
ich lese gerade alles durch... endlich habe ich die Zeit. Apros Apros, kann die bitte jemand anhalten, die vergeht zu schnell.
I
ich lese gerade alles durch... endlich habe ich die Zeit. Apros Apros, kann die bitte jemand anhalten, die vergeht zu schnell.
I
Ähnliche Themen