O.k., an die Raffstore-Entscheidung kommt also ein Haken dran.
Und sonst - wie weit ist die Destillation des aus Eurer Sicht fertigen Hausentwurfes gediehen ?
https://www.instagram.com/11antgmxde/
https://www.linkedin.com/company/bauen-jetzt/
Und sonst - wie weit ist die Destillation des aus Eurer Sicht fertigen Hausentwurfes gediehen ?
https://www.instagram.com/11antgmxde/
https://www.linkedin.com/company/bauen-jetzt/
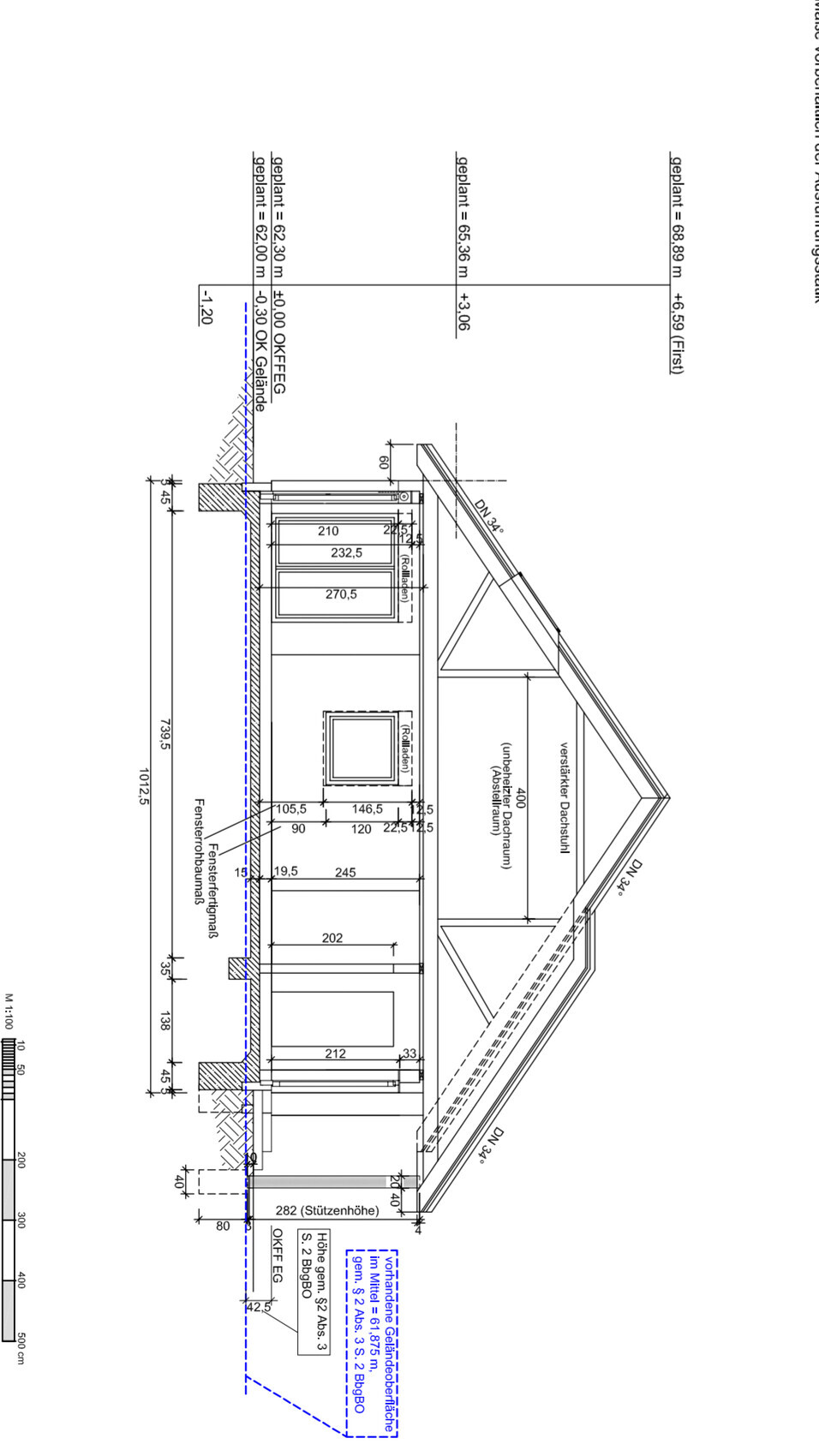
Soweit sind wir durch
Wir hatten nur noch Bauchschmerzen mit dem Hauswirtschaftsraum, da wir keine Vorstellung haben, wie klein er wirklich ist, wenn die Anschlüsse, die Therme vorhanden sind.
Wir hatten nur noch Bauchschmerzen mit dem Hauswirtschaftsraum, da wir keine Vorstellung haben, wie klein er wirklich ist, wenn die Anschlüsse, die Therme vorhanden sind.
Michaela1986 schrieb:
Soweit sind wir durch
Wir hatten nur noch Bauchschmerzen mit dem Hauswirtschaftsraum,Das heißt: auf welchem Stand seid Ihr nun ? - sag es mal als Beitragsnummer Eures letzten Entwurfes, und welche Änderungsvorschläge danach noch umgesetzt wurden.https://www.instagram.com/11antgmxde/
https://www.linkedin.com/company/bauen-jetzt/
W
winnetou7807.10.17 20:14bisschen Schmal , aber man wird ja nicht gezwungen auf jeder Seite 65 cm Schränke hinzustellen.
Ich find, es wird ein schönes Haus ,
Ich find, es wird ein schönes Haus ,