Grundriss Bungalow 150m² - Meinungen erwünscht

4,40 Stern(e) 5 Votes
Zuletzt aktualisiert 22.11.2025
Sie befinden sich auf der Seite 5 der Diskussion zum Thema: Grundriss Bungalow 150m² - Meinungen erwünscht
>> Zum 1. Beitrag <<

Y

ypg

Das ist eine Wandscheibe vor Schlafzimmer und WC, damit der Intimsbereich gewährleistet ist.
Denn man hätte einen kurzen Weg von Schlafzimmer zum WC. Schlafzimmer könnte natürlich auch als Hobbyraum oder später als Kinderzimmer genutzt werden. Genauso die gewünschten Lichtbänder können ja an der Front geplant werden, meins ist ja nur ein Vorschlag. Seitlich gibt es ja auch Möglichkeiten für Fenster.
Für Garagen-Grenzbebauung gibt es Vorschriften.
Warum muss ein Hauswirtschaftsraum jetzt vorn sein? Ggf muss man die Garage und Fenster vermitteln... ich habe eh jetzt auf einen Carport geschlossen. Nun denn.

Wenns nicht passt, passt es nicht, aber zumindest habt ihr ggf. mal ne Vorstellung, wie man es mit einem richtigen WZ planen kann.
Ihr solltet Euch auch noch Gedanken machen, ob ihr tatsächlich die großen Fenster zum Süd und West haben wollt. Wenn nämlich Sonne scheint, kann es dort schnell zu heiss werden, auch im Winter. Fast jeder träumt von viel Licht, bedenkt aber nicht, dass man doch sehr oft die Rollläden bedienen muss, wenn ein zentraler Ort im Haus extrem belichtet wird.
 
kbt09

kbt09

5. Abgetrennter privater Bereich vom WZ (Beispiel : Freundin geht duschen und meine Kumpels sind da, das Sie auch mal mit dem Bademantel aus dem Bad rauslaufen kann...)
6. Dusche im Gäste-WC, für das Kind später...
Was du in 5. deiner Freundin gönnst, gönnst du deinem Kind nicht. Das soll vor allen vorbeimarschieren und sein Bad nutzen ;).

Ich hatte mal einen Bungalow nach "Schwedenvorbild" entworfen. Den habe ich jetzt mal nur gedreht, damit er zu deiner Ausrichtung passt. Wenn man im Elternbad das Fenster an der Westseite weglassen würde, könnte man die Garage auch dorthin setzen. Ich denke nämlich auch immer, dass man diesen Zugang über den Hauswirtschaftsraum nicht unbedingt braucht, und der eigentlich wertvollen Platz klaut, sowohl im Hauswirtschaftsraum als auch in der Garage. Man sollte sich klar machen, dass da oft eine Stufe ist, und, dass man in der Garage auch irgendwo noch Fahrräder etc. stellen will.

ca. 70m² Lagerfläche im Dachgeschoss
Was wollt ihr da alles lagern? Und wo habt ihr den Zugang zum Dach geplant?

In meiner Skizze, die ja für 2 Kinder gedacht ist (hier könnte man Schlaf- und Spielbereich vielleicht trennen), würde ich mir im Koch/Essraum einen TV an die Wand zum Elternschlafzimmer hängen und zum Sofa-/TV-Platz evtl. sogar eine Schiebetür einbauen. Dann kann nämlich die Kumpelrunde z. B. auch im Sofa-TV-Raum Fussball gucken und die Frauenrunde oder so kann die Küche mit Esstisch und Terrassenzugang noch nutzen ;).

Wenn ein Kind dann mal Teenager ist, sitzt man im Sofa-Bereich auch noch geschützt, wenn sich die "Kinderfreunde" die Türklinke in die Hand geben.

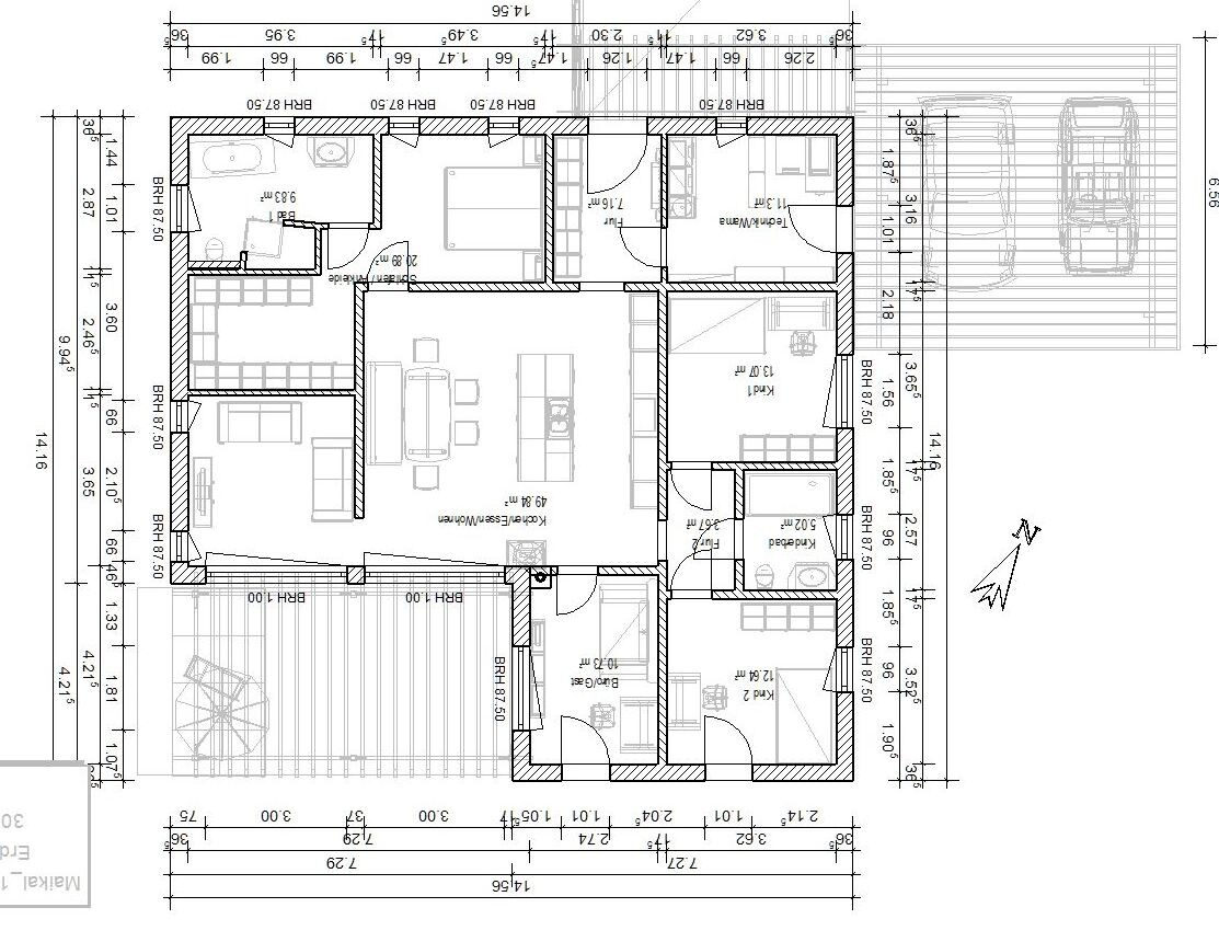
Grundriss eines Hauses mit Wohnzimmer, Küche, Schlafzimmern, Bad und Treppen
 
E

Evo89

Guten Abend, den ganzen Entwurf wollte ich nicht umgestalten, lediglich eine Verbesserung der Wohnzimmersituation erarbeiten.
Auf dem Dachboden soll dann so Zeugs wie Karton, deko etc (was sonst im Keller ist) eingelagert werden.
Die Bodeneinschubtreppe (geplant ist 1m breit) wollte ich eigentlich in den Flur Bereich machen. (Relativ weit zum Kinderzimmer hin)
Ich habe nochmal ein bisschen rumgekritzelt. Ich habe das Sofa mit dem
Küchenbereich getauscht und die Tür aus dem Hauswirtschaftsraum zur Küche, in die Diele gepackt. Man müsste nurnoch eine neue Position für den Kamin finden. Evtl würde ich die Schiebetür noch so versetzen, das eine gerade Durchgangslinie entsteht.( man rennt nicht gleich auf die kochinsel zu)
Was meint ihr?
Architekturgrundriss eines Hauses mit Küche, Insel, Wohnzimmer und Bad
 
kbt09

kbt09

Naja, etwas besser, allerdings finde ich Gästebad und dazugeordnete Räume Kind/Arbeiten immer noch SEHR ungünstig. Das Sofa vermittelt irgendwie überhaupt keine Gemütlichkeit .. immer im Rücken den Raumeingang und den Küchenbereich.

Durch das Umsetzen der Hauswirtschaftsraum-Tür wird der Platz für Schuhe/Garderobe noch weniger, aber das Wenige hat immerhin gut 8qm Platz ;).

Einen Kamin habe ich in den bisherigen Planungen gar nicht identifiziert, zumindest war keiner in den Einrichtungsplänen eingezeichnet. Wüßte jetzt auch nicht, wo hier sinnvoll ein Kamin hin könnte. In meiner Schwedenbungalow-Skizze gäbe es einen sinnvollen Platz.

Warum die äußere Hülle nicht mit anderem Inhalt füllen? Denn hier ein bisschen nachbessern und da ein bisschen nachbessern, macht die Räume meist eher ungünstiger.
 
Y

ypg

Guten Abend, den ganzen Entwurf wollte ich nicht umgestalten, lediglich eine Verbesserung der Wohnzimmersituation erarbeiten.
Anhang anzeigen 17026
Eigentlich habt Ihr kein Wohnzimmer - somit ist es schwierig, am Entwurf nur etwas zu verändern, ohne anderes zu ändern.

Dass ein Sofa kein Wohnzimmer macht, sieht man ganz gut in Deinem letzten Post.
1,50 vor einem TV ist nebenbei bemerkt absolut zu nah dran.
 
Zuletzt aktualisiert 22.11.2025
Im Forum Grundrissplanung / Grundstücksplanung gibt es 2535 Themen mit insgesamt 87984 Beiträgen


Ähnliche Themen zu Grundriss Bungalow 150m² - Meinungen erwünscht
Nr.ErgebnisBeiträge
1Entwurf - alle Richtungen bei Neubau vom Einfamilienhaus 91
2Einfamilienhaus ca. 185qm - Erster Entwurf - Verbesserungsvorschläge? 17
3OG Stadtville optimieren. Fenster Bodentief - Seite 13104
4Erst-Entwurf vom Architekten - Optimierung 28
5Bodentiefe Fenster - wie Sofa stellen? - Seite 212
6Hauswirtschaftsraum Raum ohne Fenster - Lüftungsanlage ausreichend? 26
7Grundriss 2-vollgeschossiges Einfamilienhaus ca. 160 m² Wohnfläche 22
8Größe vom Schlafzimmer und Kinderzimmer - Seite 338
9Kinderzimmer und Schlafzimmer - Welche Größe ist zu empfehlen? - Seite 856
10Fenster Brüstungshöhe 130 im Schlafzimmer / Arbeitszimmer? - Seite 1593
11Unser Grundriss-Entwurf, eure Meinungen 20
12Bungalow mit 140qm und Garage im Grundriss 13
13Lage von Haus & Garage im Baufenster planen *Vorplanung* - Seite 15129
14Grundriss-Entwurf Stadtvilla mit Doppelgarage - Seite 238
15Neubau Einfamilienhaus 160-170qm, 3 Kinderzimmer 39
16Neubau Einfamilienhaus ca.220qm, 2. Entwurf Stadtvilla - Seite 259
17Grundriss Bungalow 150qm mit Garage - Seite 1379
18Grundriss 3 Kinderzimmer Einfamilienhaus - Potenziale? 43
19Grundriss erster Entwurf - Meinungen erwünscht - Seite 321
20Grundrissplanung Einfamilienhaus (Stadtvilla) ca.140m² (3 Kinderzimmer) - Seite 242

Oben