Hallo zusammen,
wir planen gerade unser Einfamilienhaus und „hängen“ aktuell noch an ein paar Punkten (siehe unten). Würde mich freuen falls der eine oder andere uns hier neue Impulse geben könnte . Falls ihr mit eurem geschultem Auge darüber hinaus weitere Verbesserungsideen für Grundriss / Außenbereich seht - gerne her damit.
Bitte beachtet, dass ich gegenüber der ursprünglichen Architektenplanung schon ein paar Änderungen eingezeichnet (ja, ich weiß ist nicht besonders schön geworden) und für die geänderten Bereiche die original Zeichnung und die von mir erstellte Zeichnung angehängt habe.
Danke & Viel Glück
J.
Bebauungsplan/Einschränkungen
Größe des Grundstücks: 635qm
Hang: Nein
Grundflächenzahl: 0,4
Geschossflächenzahl: Nicht im Bebauungsplan gefunden
Baufenster, Baulinie und -grenze: Vorhanden
Randbebauung: Möglich mit Garage
Anzahl Stellplatz: 1 (in den Plänen noch 2)
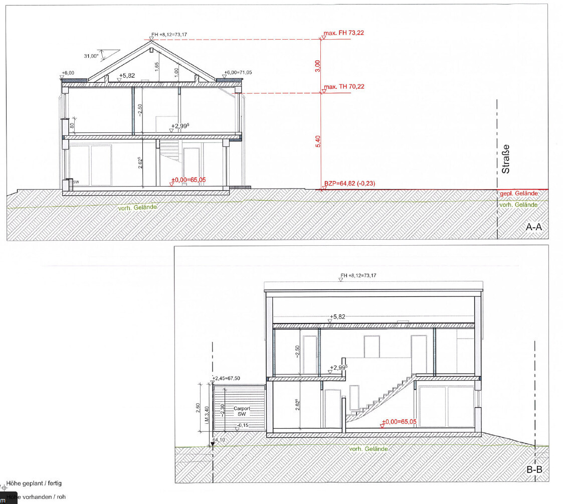
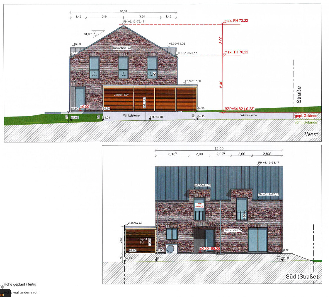
Geschossigkeit: Indirekt eingeschränkt durch max. First- (8,4m) und Traufhöhe (5,4m) über Straßenniveau
Dachform: Satteldach vorgeschrieben
Stilrichtung: Keine Vorgabe
Ausrichtung: First ost -west
Maximale Höhen/Begrenzungen: Max. First- (8,4m) und Traufhöhe (5,4m) über Straßenniveau
Anforderungen der Bauherren
Stilrichtung, Dachform, Gebäudetyp: Klinkerhaus; Satteldach mit flachen Dachziegeln;
Keller, Geschosse: Kein Keller; 2 Vollgeschosse, Spitzboden
Anzahl der Personen, Alter: 2 Erwachsene, 2 Kinder (6 + 8)
Raumbedarf im EG, OG:
Büro: Familiennutzung oder Homeoffice? Ja
Schlafgäste pro Jahr: 4-5 mal pro Jahr
offene oder geschlossene Architektur: Offener Ess-Wohnbereich + Küche, Flur geschlossen
konservativ oder moderne Bauweise: Modern
offene Küche, Kochinsel: Ja
Anzahl Essplätze: 8
Kamin: Nein
Musik/Stereowand: Stereo an der Kopfseite des Wohnzimmers
Balkon, Dachterrasse: Nein
Garage, Carport: Carport
Nutzgarten, Treibhaus: Nein
weitere Wünsche/Besonderheiten/Tagesablauf, gern auch Begründungen, warum dieses oder das nicht sein soll
Hausentwurf
Von wem stammt die Planung: Architekt des Bauunternehmers nach unseren Vorgaben
Was gefällt? Warum?
Großer Wohn-Essbereich mit Sitzfenster mit Blick ins Naturschutzgebiet und offener Küche
Küche mit Zugang zur Terrasse / Garten
Arbeitszimmer oben (als Hauswirtschaftsraum bezeichnet) mit Blick ins Naturschutzgebiet
Vergleichsweise großzügig gehalten (Größe Kinderzimmer, Diele / Flure, Bad oben)
Moderne Klinker Optik
Gauben
Folgende Dinge sollen am aktuellen Entwurf werden wir noch ändern:
Folgende Fragen beschäftigen uns derzeit









wir planen gerade unser Einfamilienhaus und „hängen“ aktuell noch an ein paar Punkten (siehe unten). Würde mich freuen falls der eine oder andere uns hier neue Impulse geben könnte . Falls ihr mit eurem geschultem Auge darüber hinaus weitere Verbesserungsideen für Grundriss / Außenbereich seht - gerne her damit.
Bitte beachtet, dass ich gegenüber der ursprünglichen Architektenplanung schon ein paar Änderungen eingezeichnet (ja, ich weiß ist nicht besonders schön geworden) und für die geänderten Bereiche die original Zeichnung und die von mir erstellte Zeichnung angehängt habe.
Danke & Viel Glück
J.
Bebauungsplan/Einschränkungen
Größe des Grundstücks: 635qm
Hang: Nein
Grundflächenzahl: 0,4
Geschossflächenzahl: Nicht im Bebauungsplan gefunden
Baufenster, Baulinie und -grenze: Vorhanden
Randbebauung: Möglich mit Garage
Anzahl Stellplatz: 1 (in den Plänen noch 2)
Geschossigkeit: Indirekt eingeschränkt durch max. First- (8,4m) und Traufhöhe (5,4m) über Straßenniveau
Dachform: Satteldach vorgeschrieben
Stilrichtung: Keine Vorgabe
Ausrichtung: First ost -west
Maximale Höhen/Begrenzungen: Max. First- (8,4m) und Traufhöhe (5,4m) über Straßenniveau
Anforderungen der Bauherren
Stilrichtung, Dachform, Gebäudetyp: Klinkerhaus; Satteldach mit flachen Dachziegeln;
Keller, Geschosse: Kein Keller; 2 Vollgeschosse, Spitzboden
Anzahl der Personen, Alter: 2 Erwachsene, 2 Kinder (6 + 8)
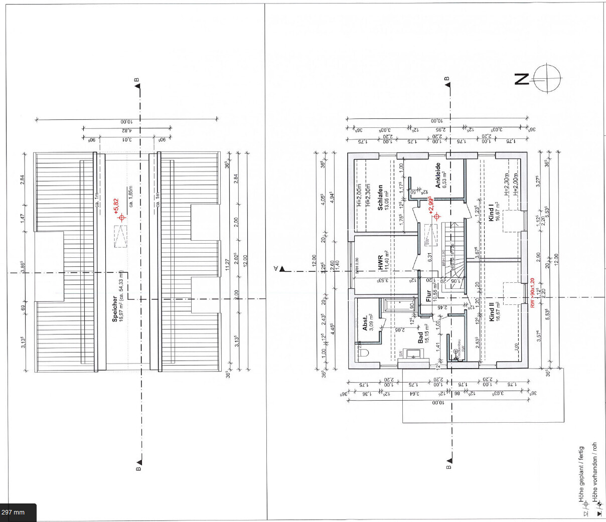
Raumbedarf im EG, OG:
- EG, so geplant, dass man ggf im Alter zu zweit unten leben könnte
- Flur: Zwei Nischen für schuhschrank und Garderobe
- Gästezimmer / Büro: Ein Elternteil 2-3 / Woche im Homeoffice; der andere Elternteil 1x pro Woche
- Großer Wohn-Essbereich mit Blick ins Naturschutzgebiet mit offener Küche (Nische unter der Treppe für Vorräte)
- Badezimmer mit Dusche und WC
- OG:
- Büro für Home-Office (Bezeichnung Hauswirtschaftsraum), falls beide Elternteile von daheim aus arbeiten
- Zwei Kinderzimmer
- Elternschlafzimmer
- Größeres (Haupt)Badezimmer
- Kleiner Abstellraum für Wäsche, Putzmittel, Staubsauger etc
Büro: Familiennutzung oder Homeoffice? Ja
Schlafgäste pro Jahr: 4-5 mal pro Jahr
offene oder geschlossene Architektur: Offener Ess-Wohnbereich + Küche, Flur geschlossen
konservativ oder moderne Bauweise: Modern
offene Küche, Kochinsel: Ja
Anzahl Essplätze: 8
Kamin: Nein
Musik/Stereowand: Stereo an der Kopfseite des Wohnzimmers
Balkon, Dachterrasse: Nein
Garage, Carport: Carport
Nutzgarten, Treibhaus: Nein
weitere Wünsche/Besonderheiten/Tagesablauf, gern auch Begründungen, warum dieses oder das nicht sein soll
Hausentwurf
Von wem stammt die Planung: Architekt des Bauunternehmers nach unseren Vorgaben
Was gefällt? Warum?
Großer Wohn-Essbereich mit Sitzfenster mit Blick ins Naturschutzgebiet und offener Küche
Küche mit Zugang zur Terrasse / Garten
Arbeitszimmer oben (als Hauswirtschaftsraum bezeichnet) mit Blick ins Naturschutzgebiet
Vergleichsweise großzügig gehalten (Größe Kinderzimmer, Diele / Flure, Bad oben)
Moderne Klinker Optik
Gauben
Folgende Dinge sollen am aktuellen Entwurf werden wir noch ändern:
- Die beiden südlichen Fenster auf beiden Giebelseiten nicht Bodentief für flexiblere Nutzungsmöglichkeit der Räume
- EG: Bereich zwischen Gästezimmer / Flur / Wohnzimmer -> Siehe händisch Zeichnung
- OG: Bad -> Abstellkammer (u.a. für Waschmaschine Trockner) verlegt damit diese etwas größer wird und vom Bad getrennt ist -> Siehe händische Zeichnung:
- Begehbare Dusche mit feststehender Glasscheibe
- Toilette mit halbhoher Trockenbauwand von Dusche getrennt
- Halb freistehende Badewanne
- Wärmepumpe hinter den Geräteschuppen versetzen
- 2. Stellplatz entfällt
Folgende Fragen beschäftigen uns derzeit
- Sollen wir den Flur im OG zum Dach hin öffnen und ein schmales Lichtband ins Dach auf der Nordseite einziehen (max. 50cm Höhe möglich). Südseite geht nicht aufgrund von Photovoltaikanlage.
- Vorteile:
- Tageslicht im Flur
- Großzügigkeit (Optik)
- Nachteil:
- Sonderlösung / zusätzliche Kosten
- Unfunktional: Sommerliche Wärme?, Stellfläche Spitzboden geht verloren, streichen / Fenster sauber machen umständlich …
- Alternative wäre ein Fensterelement über der Tür zum Abstellraum
- Flur unten: Wir mussten bei der Treppe ganz schön quetschen. Wie „wirkt“ der Treppenaufgang. Wir tendieren das Fensterelement zum Wohnzimmer doch wegzulassen, da der Flur wahrscheinlich ausreichend hell ist, wir das Wohnzimmer dann noch flexibler gestalten können (möbel / Bilder) und der Treppenaufgang dann optisch besser wirkt. Weitere Veränderungsideen?
- Bad oben: Gibt es nach der Änderung (siehe händische Zeichnung) weitere Optimierungsmöglichkeiten – z.B. Idee das Fenster in der Abstellkammer leicht (10-20cm) nach Süden versetzen, damit die Nische der Badewanne noch etwas tiefer wird.
- Gewässerrandstreifen: Das Grundstück wird bis zum Gewässerrandstreifen bis Straßenniveau aufgeschüttet. Der Gewässerrandstreifen darf nicht aufgeschüttet werden. Wir würden hier gerne eine 1m hohe Natursteinmauer setzen. Blöderweise geht der Gewässerstreifen bis ans Baufenster. Habt ihr Ideen wie man dies lösen kann?
- Geräteschuppen hinter dem Carport wie Carport mit Stahl + Holzverkleidung und gepflastertem Boden oder massiv gemauert + verklinkert mit Fundament. Vor- und Nachteile? Optische Wirkung?
- Breite des Wegs von der Zufahrt zum Hauseingangs: Der Weg vom Carport / Einfahrt zum Hauseingang ist für uns aktuell unnötig breit. Was wäre eine großzügige / sinnvolle Breite?
Schöne Optik. Nicht meins, aber sehr harmonisch.
By the way: Ich würde der Küche 30cm mehr Tiefe geben und dann eine richtige Insel planen, nicht so ein Anhängsel.
Ob die Wanne nun bündig oder tiefer sitzt, ist nach Einzug sowas von egal.
John333 schrieb:Ist es das? Möchtet Ihr das kleine Bad vor dem Eingang als Euer nutzen? Bevor man sich im Alter mit so etwas abfindet, hat man eher die Schnauze von der Gartenarbeit voll und sieht sich in einer Stadtwohnung wieder.
EG, so geplant, dass man ggf im Alter zu zweit unten leben könnte
John333 schrieb:Und genau DAS sehe ich als richtiges Manko. Ihr habt ja quasi nur einen kleinen schmalen Geheimpfad in Richtung Allraum. Auch vor der Änderung liegt da versteckt eine Tür zum WZ, die nicht gerade einladend wirkt. Die Küchentür als schmale Röhre mit Einkäufen zu betreten, wäre nicht meins.
Wir mussten bei der Treppe ganz schön quetschen. Wie „wirkt“ der Treppenaufgang.
By the way: Ich würde der Küche 30cm mehr Tiefe geben und dann eine richtige Insel planen, nicht so ein Anhängsel.
John333 schrieb:
Bad oben: Gibt es nach der Änderung (siehe händische Zeichnung) weitere Optimierungsmöglichkeiten – z.B. Idee das Fenster in der Abstellkammer leicht (10-20cm) nach Süden versetzen, damit die Nische der Badewanne noch etwas tiefer wird.
John333 schrieb:Ich muss ganz ehrlich sagen: seit ich das gelesen habe, macht mir der Entwurf Bauchschmerzen. Ihr braucht den Hauswirtschaftsraum, ihr braucht Abstellfläche, ihr braucht einen Platz zum Wäschewaschen. TK ist zu klein. (Nebenbei Gäste-WC und TK tauschen)
Büro für Home-Office (Bezeichnung Hauswirtschaftsraum), falls beide Elternteile von daheim aus arbeiten
Ob die Wanne nun bündig oder tiefer sitzt, ist nach Einzug sowas von egal.
Das, was @ypg geschrieben hat.
Zusätzlich: Die neue Tür zum Office im EG ist zu schmal einzeichnet. Warum? Weil sie sonst nicht in den Grundriss passt...
Ansonsten müsstet ihr auch die Wand zum Wohnzimmer verschieben.
Wozu plant Ihr, dass Ihr im EG leben könnt? Macht eh keiner, entweder hat man einen Treppenlift oder verflucht das Riesenhaus und seine Kosten und zieht in die Stadt in eine barrierefreie Wohnung, ggf. mit Aufzug.
Euch ist klar, dass Ihr im Schlafzimmer direkt ins Bett stolpert nach dem Reinkommen?
Bei 200cm Bettbreite + 2 * 40cm Nachttisch geht zwar die Tür gerade noch auf, aber die Durchgangsbreite ist gering. Lasst Euch das mal möblieren, dann seht ihr es.
Die Ankleide hat welchen Sinn, außer zusätzliche Verkehrsfläche zu generieren? Sinn einer Ankleide kann entweder sein, keinen Kleiderschrank vom Bett zu sehen (reine Ästhetik), sich einen großzügigen "Ich tüddel mich fein Bereich" zu schaffen oder den Partner beim Anziehen nicht zu wecken, weil man durch die Ankleide zum Flur heraus kann. Zwei dieser Optionen scheiden bei Euch aus...
Zusätzlich: Die neue Tür zum Office im EG ist zu schmal einzeichnet. Warum? Weil sie sonst nicht in den Grundriss passt...
Ansonsten müsstet ihr auch die Wand zum Wohnzimmer verschieben.
Wozu plant Ihr, dass Ihr im EG leben könnt? Macht eh keiner, entweder hat man einen Treppenlift oder verflucht das Riesenhaus und seine Kosten und zieht in die Stadt in eine barrierefreie Wohnung, ggf. mit Aufzug.
Euch ist klar, dass Ihr im Schlafzimmer direkt ins Bett stolpert nach dem Reinkommen?
Bei 200cm Bettbreite + 2 * 40cm Nachttisch geht zwar die Tür gerade noch auf, aber die Durchgangsbreite ist gering. Lasst Euch das mal möblieren, dann seht ihr es.
Die Ankleide hat welchen Sinn, außer zusätzliche Verkehrsfläche zu generieren? Sinn einer Ankleide kann entweder sein, keinen Kleiderschrank vom Bett zu sehen (reine Ästhetik), sich einen großzügigen "Ich tüddel mich fein Bereich" zu schaffen oder den Partner beim Anziehen nicht zu wecken, weil man durch die Ankleide zum Flur heraus kann. Zwei dieser Optionen scheiden bei Euch aus...
Kurz gesagt: verabschiedet Euch von der Optikpriorisierung, und alle Knoten sind gelöst.
https://www.instagram.com/11antgmxde/
https://www.linkedin.com/company/bauen-jetzt/
John333 schrieb:Ich habe den Fehler durch Unterstreichung markiert.
Von wem stammt die Planung: Architekt des Bauunternehmers nach unseren Vorgaben
https://www.instagram.com/11antgmxde/
https://www.linkedin.com/company/bauen-jetzt/
Vielleicht sollte man auch einfach nochmal erwähnen, dass die Treppenlage das A und O ist. Sie beeinflusst den ganzen Grundriss. Es ist oft unglücklich, wenn man die Treppe mit dem First laufen lässt. Oder gegen den Eingang. Hier sperrt sie den Gang in den Allraum. Beide Zugänge sind versteckt und machen das Haus nicht einladend - wichtige Sichtachsen gibt es keine, Flur oben ist dunkel. Die Frage/den Vorschlag mit dem Fenster habe ich nicht verstanden.
Ähnliche Themen